+48 22 59 05 000

pn.-pt. 8-20

Kontakt i pomoc^
Kontakt i pomoc
Zamów rozmowę
Napisz do nas
Pomoc w kredycie
Bezpłatna analiza działki
logo
ulubione 0
REKLAMA
REKLAMA
MG0858

Zefir 2

wersja lustrzana
Rzuty
Działka
Parametry
Podobne
Zmiany
Dokumentacja
Dodatki
Inspiracje
REKLAMA

Rzuty, przekrój, elewacje

Parter 73,48 m2
Wersja lustrzana
Pomieszczenie Użytkowa
1
przedsionek
3,92 m2
2
hol
6,45 m2
3
łazienka
4,05 m2
4
sypialnia
12,38 m2
5
pokój dzienny + jadalnia
32,96 m2
6
kuchnia
10,12 m2
7
spiżarnia
1,53 m2
8
wc
2,07 m2
Razem 73,48 m2
9
kotłownia
4,58 m2

W nawiasach podano powierzchnie pomieszczenia netto

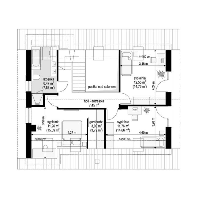
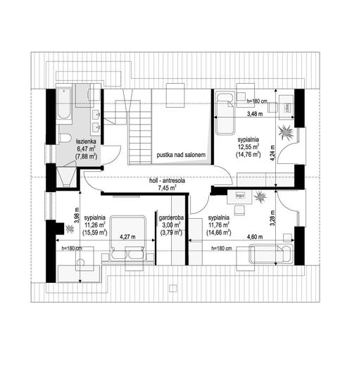
Poddasze 52,49 m2
Wersja lustrzana
Pomieszczenie Użytkowa
1
hol
7,45 m2
2
sypialnia (14,76)
12,55 m2
3
sypialnia (14,66)
11,76 m2
4
garderoba (3,79)
3,0 m2
5
sypialnia (15,59)
11,26 m2
6
łazienka (7,88)
6,47 m2
Razem 52,49 m2

W nawiasach podano powierzchnie pomieszczenia netto

Elewacje
Wersja lustrzana
Elewacja 1
Elewacja 1
Elewacja 2
Elewacja 3
Elewacja 4
REKLAMA

Działka

Wybór działki to jedna z ważniejszych decyzji poprzedzających budowę wymarzonego domu. Oczywiście najważniejsza jest jej lokalizacja, ale trzeba także przeanalizować lokalne ograniczenia wyszczególnione w miejscowym planie zagospodarowania przestrzennego lub w warunkach zabudowy. Często zapisy w w/w dokumentach uniemożliwiają budowę wybranego projektu i trzeba szukać dalej.

Ważne jest także usytuowanie działki i domu względem stron świata, gdyż to właśnie decyduje o stopniu nasłonecznienia poszczególnych pomieszczeń. Dlatego każdy projekt oferujemy w dwóch wersjach: podstawowej oraz lustrzanej, aby można było wybrać najkorzystniejszy układ pomieszczeń względem stron świata, a także względem ukształtowania krajobrazu w otoczeniu działki.

Wymiary działki
Wymiary działki (szerokość x głębokość), na której możliwe jest wybudowanie domu. Wynikają one z wymiarów budynku powiększonych o wymagane przepisami odległości poszczególnych elementów budynku od granic działki. Rzeczywistą odległość od drogi należy sprawdzić i dostosować do wymogów zawartych w MPZA lub WZ.
19.20 x 18.02 m
Wymiary działki po obrocie domu o 90°
Wymiary działki po adaptacji – obrót o 90 st.
Wymiary (szerokość x głębokość) działki, na której możliwe jest wybudowanie domu, po obróceniu budynku o 90 st. (przy założeniu, że taka zmiana jest możliwa i nie wpłynie niekorzystnie na układ funkcjonalny działki oraz budynku mieszkalnego). Wynikają z wymiarów budynku powiększonych o wymagane przepisami odległości poszczególnych elementów budynku od granic działki. Rzeczywistą odległość od drogi należy sprawdzić i dostosować do wymogów zawartych w MPZA lub WZ.
18.02 x 19.20 m
Przekrój
Wersja lustrzana

Parametry

Dane Techniczne
Technologia i materiały
Parametry cieplne
Powierzchnia użytkowa
Suma powierzchni pomieszczeń mierzona po wewnętrznym obrysie ścian. Na jej wielkość ma wpływ wysokość pomieszczenia i jest liczona: – w 100% – przy wysokości w świetle powyżej 2,2 m, – w 50% – przy wysokości między 1,4 m a 2,2 m, – pomija się – przy wysokości poniżej 1,4 m. Do powierzchni użytkowej domu nie dolicza się powierzchni niektórych pomieszczeń, np. piwnicy, garażu, kotłowni, strychu.
125,97 m2
Powierzchnia zabudowy
Powierzchnia mierzona po obrysie zewnętrznych krawędzi wykończonego budynku z uwzględnieniem powierzchni nadwieszonych (np. wykusz). Nie dolicza się do niej elementów drugorzędnych (np. schodów zewnętrznych, daszków, ramp) oraz elementów niewystających ponad powierzchnię terenu
100,45 m2
Powierzchnia netto
Powierzchnia wszystkich pomieszczeń budynku mierzona na poziomie podłogi, po wewnętrznym obrysie ścian w stanie wykończonym. Na jej wartość nie wpływa wysokość pomieszczeń.
130,72 m2
Powierzchnia całkowita
Suma powierzchni całkowitych wszystkich kondygnacji (w tym znajdujących się całkowicie lub częściowo poniżej poziomu terenu) mierzona po zewnętrznym obrysie ścian (wraz z ociepleniem) oraz wszystkich elementów wykraczających poza kubaturę, np. tarasy, schody zewnętrzne, balkony, podcienie, zjazdy do garaży, itp.
161,35 m2
Powierzchnia dodatkowa
Dodatkowe powierzchnie niewliczane do powierzchni użytkowej: piwnica + garaż + kotłownia + strych + poddasze do adaptacji.
4,58 m2
Powierzchnia dachu
181,9 m2
Kąt nachylenia dachu
42°
Kubatura
Objętość budynku liczona wraz z przegrodami zewnętrznymi i wewnętrznymi (ścianami, stropem, dachem i podmurówką)
522 m3
Wysokość budynku
Wysokość mierzona od poziomu terenu przy wejściu do budynku do najwyższego punktu dachu – kalenicy
8,64 m
Wysokość parteru
Podana wartość to wysokość pomieszczeń parteru w stanie wykończonym, mierzona od poziomu posadzki do spodu sufitu.
2,65 m
Wysokość poddasza / piętra
Dla poddasza podano zakres wysokości. Pierwsza podana wartość to minimalna wysokość pomieszczenia w stanie wykończonym (mierzona przy ściance kolankowej lub tzw. przedściance - o ile występuje), druga wartość to maksymalna wysokość pomieszczenia mierzona od poziomu posadzki do płyt wykończeniowych mocowanych do elementów konstrukcyjnych ograniczających przestrzeń pomieszczeń. Dla piętra podana wartość to wysokość pomieszczeń piętra w stanie wykończonym, mierzona od poziomu posadzki do spodu sufitu.
2,60 m
Wymiary budynku
11,2 x 10,02 m
Pokoje (z salonem)
Liczba wszystkich pokoi
5
Łazienki i wc
Suma łazienek i wc
3
Sezonowość
Całoroczny
REKLAMA

Opis projektu

Projekt domu Zefir 2 to nieco mniejsza wersja wariantowa popularnego
Zefir 2 parterowy dom jednorodzinny z poddaszem użytkowym, przeznaczony dla 4- 6-osobowej rodziny. Budynek zaprojektowano jako prostą bryłę na planie prostokąta, zwieńczoną dwuspadowym dachem z okapami, bez udziwnień i podrażających budowę niepotrzebnych elementów.
Zefir 2 jest mniejszy i węższy od bazowego projektu - zmieści się na mniejszej działce. Architekturę domu tworzą kontrastujące ze sobą białe ściany z grafitowymi wstawkami. Całość daje nowoczesne i czyste połączenie, zmiękczone oknami i podbitkami w kolorze drewna. Elewacja frontowa jest trochę bardziej zamknięta i powściągliwa, natomiast elewacja ogrodowa to przede wszystkim szerokie przeszklone otwarcie salonu na taras. Wnętrze Zefir 2 podzielono na część dzienną na parterze, oraz pokoje sypialne na poddaszu. Mimo niewielkiej powierzchni użytkowej domu, udało się tutaj zaprojektować otwarcie przestrzenne nad salonem i antresolę, poprawiające atrakcyjność wizualną i poczucie przestronności wnętrza. Do budynku wchodzimy wygodnym przedsionkiem do holu i dalej do pokoju dziennego, z pustką nad schodami i częścią wypoczynkową. Kuchnia jest częściowo oddzielona od reszty wnętrza ścianą telewizyjno-kominkową. Z lewej strony parteru mamy dodatkowy pokój - gabinet lub sypialnię - łazienkę, oraz sporą kotłownię. Na poddaszu zaprojektowano trzy pokoje sypialne i dużą łazienkę. Sypialnia państwa domu ma wydzieloną garderobę. Wysoka ścianka kolankowa pozwala na zminimalizowanie uciążliwych skosów dachu.
Zefir 2 ma prostą konstrukcję – bryłę bez udziwnień, lany strop, dwuspadowy dach. Wszystko zostało zaprojektowane tak, aby uprościć budowę i zracjonalizować wydatki. Budynek zaprojektowano jako energooszczędny, z dobrymi izolacjami przegród i nowoczesnymi instalacjami.
Zefir 2, to doskonała propozycja dla Inwestorów planujących budowę sensownej wielkości domu.
Projekt dostępny jest, także w wersji odbicia lustrzanego.
REKLAMA

Zmiany w projekcie

Zobacz zakres zmian, które możesz wprowadzić, w tym projekcie bez zgody autora.
Lista możliwych zmian

Jeśli zmiany, które chcesz wprowadzić nie są ujęte w powyższym zestawieniu, skontaktuj się z nami. Nasz architekt przeanalizuje i doradzi, które z Twoich propozycji warto wdrożyć. O zgodę na zmiany możesz wystąpić nie tylko w momencie zakupu projektu, ale także później i otrzymasz ją bezpłatnie w ciągu kilku dni.

Dokumentacja (zawartość pakietu projektowego)

Dodatki

Pakiet dodatków, który otrzymasz razem z projektem

addon
Teczka inwestora
Do przechowywania niezbędnej dokumentacji
addon
Kupony rabatowe na zakupy
Dzięki którym zaoszczędzisz nawet kilkanaście tysięcy złotych.
addon
Projekty małej architektury
Wybudujesz samodzielnie m.in. domek dla dzieci czy altanę z grillem.
Pamiętaj
dostawa
Wysyłkę projektu ze wszystkimi dodatkami na terenie Polski bierzemy na siebie. Ty wybierasz, gdzie odbierzesz swój projekt. Masz do wyboru kuriera DPD lub punkty Paczkomat InPost 24/7.
zwroty

Masz 30 dni na zwrot i 365 dni na wymianę projektu

Inspiracje

Wnętrza
Wszystkie
Pokój dzienny
Sypialnia
Łazienka