+48 22 59 05 000

pn.-pt. 8-20

Kontakt i pomoc^
Kontakt i pomoc
Zamów rozmowę
Umów wideorozmowę
Napisz do nas
Pomoc w kredycie
Bezpłatna analiza działki
logo
ulubione 0
REKLAMA
REKLAMA
AL095

Tanis 2

wersja lustrzana
Kupując u nas, zyskujesz więcej

Dodatki

Atrakcyjne rabaty

Kompleksowe wsparcie

Gwarancja najniższej ceny

Wygodne zakupy

Zgoda na zmiany w projekcie

Szczegółowa dokumentacja

Rzuty
Działka
Parametry
Podobne
Zmiany
Dokumentacja
Dodatki
REKLAMA

Rzuty, przekrój, elewacje

Parter 106,69 m2
Wersja lustrzana
Pomieszczenie Użytkowa
1
przedsionek
4,26 m2
2
korytarz
12,96 m2
3
spiżarnia
2,21 m2
4
kuchnia
8,6 m2
5
pokój dzienny + jadalnia
27,8 m2
6
sypialnia
11,43 m2
7
sypialnia
10,67 m2
8
łazienka
5,76 m2
9
korytarz
3,17 m2
10
sypialnia
12,9 m2
11
kotłownia + pom. gosp.
6,93 m2
Razem 106,69 m2
12
garaż
18,5 m2

W nawiasach podano powierzchnie pomieszczenia netto

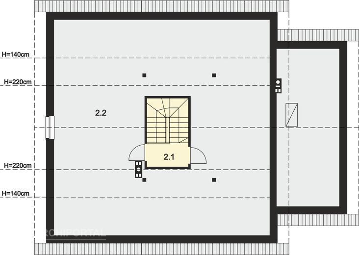
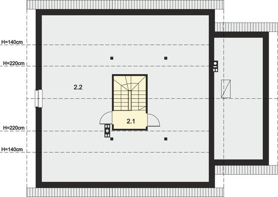
Poddasze
Wersja lustrzana
Pomieszczenie Użytkowa
1
komunikacja
2,66 m2
2
poddasze do adaptacji (114,71)
54,99 m2

W nawiasach podano powierzchnie pomieszczenia netto

Przekrój
Wersja lustrzana
Przekrój
Kąt nachylenia dachu 30°
Wysokość budynku 7,45 m
Elewacje
Wersja lustrzana
Elewacja 1
Elewacja 1
Elewacja 2
Elewacja 3
Elewacja 4
REKLAMA

Działka

Wybór działki to jedna z ważniejszych decyzji poprzedzających budowę wymarzonego domu. Oczywiście najważniejsza jest jej lokalizacja, ale trzeba także przeanalizować lokalne ograniczenia wyszczególnione w miejscowym planie zagospodarowania przestrzennego lub w warunkach zabudowy. Często zapisy w w/w dokumentach uniemożliwiają budowę wybranego projektu i trzeba szukać dalej.

Ważne jest także usytuowanie działki i domu względem stron świata, gdyż to właśnie decyduje o stopniu nasłonecznienia poszczególnych pomieszczeń. Dlatego każdy projekt oferujemy w dwóch wersjach: podstawowej oraz lustrzanej, aby można było wybrać najkorzystniejszy układ pomieszczeń względem stron świata, a także względem ukształtowania krajobrazu w otoczeniu działki.

Wymiary działki
Wymiary działki (szerokość x głębokość), na której możliwe jest wybudowanie domu. Wynikają one z wymiarów budynku powiększonych o wymagane przepisami odległości poszczególnych elementów budynku od granic działki. Rzeczywistą odległość od drogi należy sprawdzić i dostosować do wymogów zawartych w MPZA lub WZ.
22.54 x 20.94 m
Przekrój
Wersja lustrzana

Parametry

W dokumentacji uwzględniono dwa źródła ciepła (kocioł na gaz i kocioł na paliwo stałe) oraz dwa systemy wentylacji (wentylację grawitacyjną i wentylację mechaniczną z rekuperacją). Wyboru opcji należy dokonać na etapie adaptacji projektu.

Dane Techniczne
Technologia i materiały
Parametry cieplne
Powierzchnia użytkowa
Suma powierzchni pomieszczeń mierzona po wewnętrznym obrysie ścian. Na jej wielkość ma wpływ wysokość pomieszczenia i jest liczona: – w 100% – przy wysokości w świetle powyżej 2,2 m, – w 50% – przy wysokości między 1,4 m a 2,2 m, – pomija się – przy wysokości poniżej 1,4 m. Do powierzchni użytkowej domu nie dolicza się powierzchni niektórych pomieszczeń, np. piwnicy, garażu, kotłowni, strychu.
106,69 m2
Powierzchnia zabudowy
Powierzchnia mierzona po obrysie zewnętrznych krawędzi wykończonego budynku z uwzględnieniem powierzchni nadwieszonych (np. wykusz). Nie dolicza się do niej elementów drugorzędnych (np. schodów zewnętrznych, daszków, ramp) oraz elementów niewystających ponad powierzchnię terenu
174,75 m2
Powierzchnia netto
Powierzchnia wszystkich pomieszczeń budynku mierzona na poziomie podłogi, po wewnętrznym obrysie ścian w stanie wykończonym. Na jej wartość nie wpływa wysokość pomieszczeń.
242,56 m2
Powierzchnia całkowita
Suma powierzchni całkowitych wszystkich kondygnacji (w tym znajdujących się całkowicie lub częściowo poniżej poziomu terenu) mierzona po zewnętrznym obrysie ścian (wraz z ociepleniem) oraz wszystkich elementów wykraczających poza kubaturę, np. tarasy, schody zewnętrzne, balkony, podcienie, zjazdy do garaży, itp.
336,1 m2
Powierzchnia dodatkowa
Dodatkowe powierzchnie niewliczane do powierzchni użytkowej: piwnica + garaż + kotłownia + strych + poddasze do adaptacji.
73,49 m2
Powierzchnia garażu
18,5 m2
Powierzchnia dachu
248,55 m2
Kąt nachylenia dachu
30°
Kubatura
Objętość budynku liczona wraz z przegrodami zewnętrznymi i wewnętrznymi (ścianami, stropem, dachem i podmurówką)
901,86 m3
Wysokość budynku
Wysokość mierzona od poziomu terenu przy wejściu do budynku do najwyższego punktu dachu – kalenicy
7,45 m
Wymiary budynku
15,54 x 11,94 m
Wymiary działki
Wymiary działki (szerokość x głębokość), na której możliwe jest wybudowanie domu. Wynikają one z wymiarów budynku powiększonych o wymagane przepisami odległości poszczególnych elementów budynku od granic działki. Rzeczywistą odległość od drogi należy sprawdzić i dostosować do wymogów zawartych w MPZA lub WZ
22,54 x 20,94 m
Pokoje (z salonem)
Liczba wszystkich pokoi
4
Łazienki i wc
Suma łazienek i wc
1
Miejsca postojowe
Suma miejsc postojowych (garaż + wiata garażowa)
1
Sezonowość
Całoroczny
REKLAMA

Opis projektu

Tanis 2 to prosty dom parterowy z dwuspadowym dachem i możliwością adaptacji poddasza. Do dyspozycji mieszkańców jest duży, dobrze oświetlony salon, kuchnia z praktyczną spiżarnią, 3 ustawne pokoje oraz łazienka z miejscem na wannę i prysznic. Przez korytarz dostaniemy się natomiast do garażu, za którym znalazła się spora kotłownia. W domu zaprojektowano dwa rodzaje ogrzewania: GAZOWE oraz na PALIWO STAŁE. Dzięki takiemu zabiegowi, projektu nie trzeba przerabiać, inwestor sam decyduje, który rodzaj ogrzewania zastosuje w swoim domu - dokumentacja zawiera schematy i rozwinięcia instalacji c.o. i elektrycznych dla obydwu rozwiązań. Kolejnym atutem budynku są schody , zlokalizowane naprzeciwko wejścia, prowadzące na poddasze nieużytkowe. Można je zaadaptować na strych, pokój hobby, studio, pracownię lub podzielić na dodatkowe pokoje mieszkalne. Strop wylewany nad parterem daje także możliwość doprojektowania kolejnej łazienki.

Dom ma prostą bryłę, dzięki czemu będzie tani w budowie i późniejszej eksploatacji. Projekt dostępny w wersji lustrzanej.
REKLAMA

Zmiany w projekcie

Zobacz zakres zmian, które możesz wprowadzić, w tym projekcie bez zgody autora.
Lista możliwych zmian

Jeśli zmiany, które chcesz wprowadzić nie są ujęte w powyższym zestawieniu, skontaktuj się z nami. Nasz architekt przeanalizuje i doradzi, które z Twoich propozycji warto wdrożyć. O zgodę na zmiany możesz wystąpić nie tylko w momencie zakupu projektu, ale także później i otrzymasz ją bezpłatnie w ciągu kilku dni.

Dokumentacja (zawartość pakietu projektowego)

Dodatki

Pakiet dodatków, który otrzymasz razem z projektem

addon
Teczka inwestora
Do przechowywania niezbędnej dokumentacji
addon
Kupony rabatowe na zakupy
Dzięki którym zaoszczędzisz nawet kilkanaście tysięcy złotych.
addon
Projekty małej architektury
Wybudujesz samodzielnie m.in. domek dla dzieci czy altanę z grillem.
Pamiętaj
dostawa
Wysyłkę projektu ze wszystkimi dodatkami na terenie Polski bierzemy na siebie. Ty wybierasz, gdzie odbierzesz swój projekt. Masz do wyboru kuriera DPD lub punkty Paczkomat InPost 24/7.
zwroty

Masz 30 dni na zwrot i 365 dni na wymianę projektu