+48 22 59 05 000
pn.-pt. 8-20
Kontakt i pomoc^
Kontakt i pomoc
Zamów rozmowę
Napisz do nas
Pomoc w kredycie
Bezpłatna analiza działki
REKLAMA
REKLAMA
<
>
Iwonkowy wersja lustrzana
<
Wizualizacje
Rzuty
>
IM1313
Iwonkowy
wersja lustrzanaKredyt hipoteczny z ING
Oblicz ratę dla tej nieruchomości
Reklama
Najniższa cena z 30 dni przed obniżką
-
Pakiet gratisów
-
Karta zniżkowa HomeProfit
-
Pakiet kuponów rabatowych
-
Bezpłatna zgoda na zmiany w projekcie
-
Bezpłatna analiza działki
-
Darmowa dostawa - kurier, paczkomaty
-
30 dni na zwrot, 365 dni na wymianę
-
Gwarancja najniższej ceny
Koncepcja projektu
Nasi doradcy przedstawią szczegółowe informacje dotyczące projektu.
-
Pakiet gratisów
-
Pakiet kuponów rabatowych
-
Bezpłatna zgoda na zmiany w projekcie
-
Bezpłatna analiza działki
-
Darmowa dostawa - kurier, paczkomaty
-
30 dni na zwrot, 365 dni na wymianę
-
Gwarancja najniższej ceny
Projekt wycofany z oferty
Zapytaj o projekt
+48 22 59 05 000
Zamów
rozmowę
pn.-pt. 8-20
REKLAMA
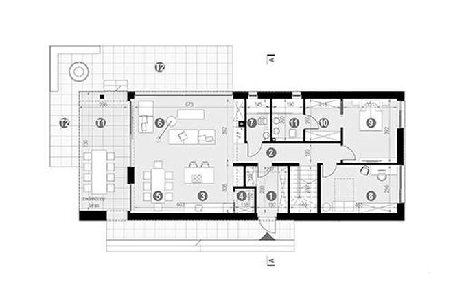
Rzuty, przekrój, elewacje
Parter
REKLAMA
Parametry
Dane Techniczne
Technologia i materiały
Parametry cieplne
Powierzchnia użytkowa
Suma powierzchni pomieszczeń mierzona po wewnętrznym obrysie ścian. Na jej wielkość ma wpływ wysokość pomieszczenia i jest liczona:
– w 100% – przy wysokości w świetle powyżej 2,2 m,
– w 50% – przy wysokości między 1,4 m a 2,2 m,
– pomija się – przy wysokości poniżej 1,4 m.
Do powierzchni użytkowej domu nie dolicza się powierzchni niektórych pomieszczeń, np. piwnicy, garażu, kotłowni, strychu.
345 m2
Powierzchnia zabudowy
Powierzchnia mierzona po obrysie zewnętrznych krawędzi wykończonego budynku z uwzględnieniem powierzchni nadwieszonych (np. wykusz). Nie dolicza się do niej elementów drugorzędnych (np. schodów zewnętrznych, daszków, ramp) oraz elementów niewystających ponad powierzchnię terenu
123 m2
Powierzchnia netto
Powierzchnia wszystkich pomieszczeń budynku mierzona na poziomie podłogi, po wewnętrznym obrysie ścian w stanie wykończonym. Na jej wartość nie wpływa wysokość pomieszczeń.
321 m2
Powierzchnia całkowita
Suma powierzchni całkowitych wszystkich kondygnacji (w tym znajdujących się całkowicie lub częściowo poniżej poziomu terenu) mierzona po zewnętrznym obrysie ścian (wraz z ociepleniem) oraz wszystkich elementów wykraczających poza kubaturę, np. tarasy, schody zewnętrzne, balkony, podcienie, zjazdy do garaży, itp.
323 m2
Powierzchnia garażu
22,88 m2
Kąt nachylenia dachu
11°
Kubatura
Objętość budynku liczona wraz z przegrodami zewnętrznymi i wewnętrznymi (ścianami, stropem, dachem i podmurówką)
1234,56 m3
Wysokość budynku
Wysokość mierzona od poziomu terenu przy wejściu do budynku do najwyższego punktu dachu – kalenicy
2,12 m
Wysokość parteru
Podana wartość to wysokość pomieszczeń parteru w stanie wykończonym, mierzona od poziomu posadzki do spodu sufitu.
3,33 m
Wysokość poddasza / piętra
Dla poddasza podano zakres wysokości. Pierwsza podana wartość to minimalna wysokość pomieszczenia w stanie wykończonym (mierzona przy ściance kolankowej lub tzw. przedściance - o ile występuje), druga wartość to maksymalna wysokość pomieszczenia mierzona od poziomu posadzki do płyt wykończeniowych mocowanych do elementów konstrukcyjnych ograniczających przestrzeń pomieszczeń. Dla piętra podana wartość to wysokość pomieszczeń piętra w stanie wykończonym, mierzona od poziomu posadzki do spodu sufitu.
11 m
Wysokość ścianki kolankowej
Ścianka kolankowa to zewnętrzna ściana nośna poddasza, wznoszona powyżej najwyższego stropu budynku, na której jest oparta więźba dachowa. Od wysokości ścianki kolankowej zależy funkcjonalność poddasza, wielkość jego powierzchni użytkowej oraz wygląd bryły budynku.
0,22 m
Pokoje (z salonem)
Liczba wszystkich pokoi
8
Łazienki i wc
Suma łazienek i wc
4
Miejsca postojowe
Suma miejsc postojowych (garaż + wiata garażowa)
2
Sezonowość
Całoroczny
REKLAMA
Opis projektu
tralalala
REKLAMA
Zmiany w projekcie
Zobacz zakres zmian, które możesz wprowadzić, w tym projekcie bez zgody autora.
Jeśli zmiany, które chcesz wprowadzić nie są ujęte w powyższym zestawieniu, skontaktuj się z nami. Nasz architekt przeanalizuje i doradzi, które z Twoich propozycji warto wdrożyć. O zgodę na zmiany możesz wystąpić nie tylko w momencie zakupu projektu, ale także później i otrzymasz ją bezpłatnie w ciągu kilku dni.
Zapytaj o dodatkowe zmiany
Dokumentacja (zawartość pakietu projektowego)
Dodatki
Pakiet dodatków, który otrzymasz razem z projektem
Teczka inwestora
Do przechowywania niezbędnej dokumentacji
Kupony rabatowe na zakupy
Dzięki którym zaoszczędzisz nawet kilkanaście tysięcy złotych.
Projekty małej architektury
Wybudujesz samodzielnie m.in. domek dla dzieci czy altanę z grillem.
Pamiętaj
Wysyłkę projektu ze wszystkimi dodatkami na terenie Polski bierzemy na siebie. Ty wybierasz, gdzie odbierzesz swój projekt. Masz do wyboru kuriera DPD lub punkty Paczkomat InPost 24/7.
Masz 30 dni na zwrot i 365 dni na wymianę projektu
Dodatki w dobrej cenie
Dodatki możesz dobrać także w koszyku lub podczas zakupów u naszego doradcy.