+48 22 59 05 000

pn.-pt. 8-20

Kontakt i pomoc^
Kontakt i pomoc
Zamów rozmowę
Umów wideorozmowę
Napisz do nas
Pomoc w kredycie
Bezpłatna analiza działki
logo
ulubione 0
REKLAMA
REKLAMA
HK93B

HOMEKONCEPT 93 B (bliźniak, segment A)

wersja lustrzana
Kupując u nas, zyskujesz więcej

Dodatki

Atrakcyjne rabaty

Kompleksowe wsparcie

Gwarancja najniższej ceny

Wygodne zakupy

Zgoda na zmiany w projekcie

Szczegółowa dokumentacja

Rzuty
Działka
Parametry
Koszty
Podobne
Zmiany
Pliki do pobrania
Dokumentacja
Dodatki
Inspiracje
REKLAMA

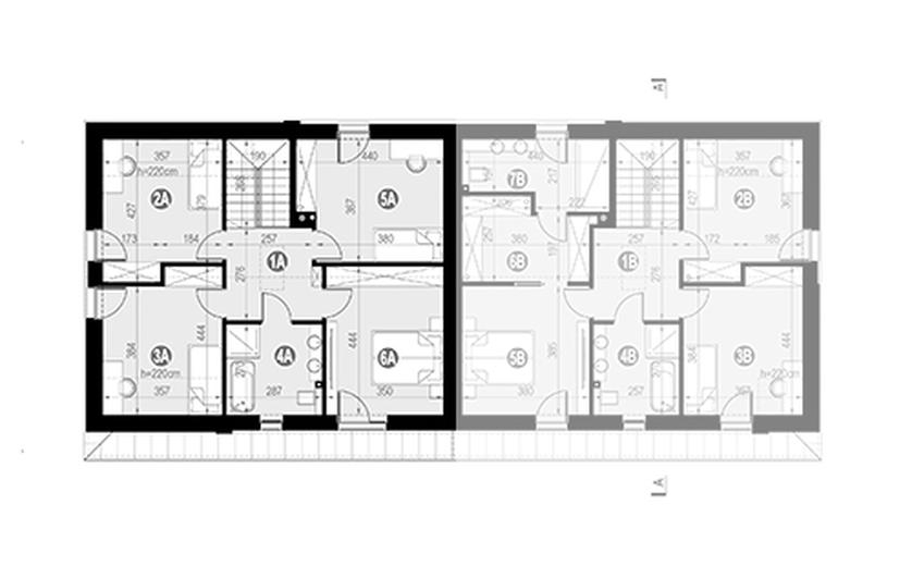
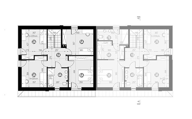
Rzuty, przekrój, elewacje

Parter 55,15 m2
Wersja lustrzana

Segment B - patrz HK93B (bliźniak, segment B)

Pomieszczenie Użytkowa
1A
przedsionek
4,6 m2
2A
garderoba
2,35 m2
3A
korytarz
4,81 m2
4A
schowek (4,7)
1,7 m2
5A
wc
2,33 m2
6A
pokój dzienny + jadalnia
22,93 m2
7A
kuchnia
9,15 m2
8A
pom. gosp.
7,28 m2
Razem 55,15 m2
GA
garaż
23,46 m2
T
taras (14,9)

W nawiasach podano powierzchnie pomieszczenia netto

Poddasze 76,15 m2
Wersja lustrzana

Możliwość wykorzystania dodatkowej powierzchni na strychu. Segment B - patrz HK93B (bliźniak, segment B)

Pomieszczenie Użytkowa
1A
korytarz
12,61 m2
2A
sypialnia (14,14)
12,18 m2
3A
sypialnia (14,74)
12,78 m2
4A
łazienka
7,71 m2
5A
sypialnia
15,33 m2
6A
sypialnia
15,54 m2
Razem 76,15 m2

W nawiasach podano powierzchnie pomieszczenia netto

Przekrój
Wersja lustrzana
Przekrój
Kąt nachylenia dachu 35°
Wysokość budynku 8,22 m
Wysokość parteru 2,85 m
Wysokość poddasza/piętra
Minimalna 1,4 m
Pomieszczeń 1,40-2,51 m
Elewacje
Wersja lustrzana
Elewacja 1
Elewacja 1
Elewacja 2
Elewacja 3
Elewacja 4
REKLAMA

Działka

Wybór działki to jedna z ważniejszych decyzji poprzedzających budowę wymarzonego domu. Oczywiście najważniejsza jest jej lokalizacja, ale trzeba także przeanalizować lokalne ograniczenia wyszczególnione w miejscowym planie zagospodarowania przestrzennego lub w warunkach zabudowy. Często zapisy w w/w dokumentach uniemożliwiają budowę wybranego projektu i trzeba szukać dalej.

Ważne jest także usytuowanie działki i domu względem stron świata, gdyż to właśnie decyduje o stopniu nasłonecznienia poszczególnych pomieszczeń. Dlatego każdy projekt oferujemy w dwóch wersjach: podstawowej oraz lustrzanej, aby można było wybrać najkorzystniejszy układ pomieszczeń względem stron świata, a także względem ukształtowania krajobrazu w otoczeniu działki.

Wymiary działki
Wymiary działki (szerokość x głębokość), na której możliwe jest wybudowanie domu. Wynikają one z wymiarów budynku powiększonych o wymagane przepisami odległości poszczególnych elementów budynku od granic działki. Rzeczywistą odległość od drogi należy sprawdzić i dostosować do wymogów zawartych w MPZA lub WZ.
29.92 x 17.98 m
Przekrój
pdf dxf
Wersja lustrzana

Parametry

Wymiary budynku i działki dotyczą dwóch segmentów. Pozostałe dane techniczne - jednego segmentu.

Dane Techniczne
Technologia i materiały
Parametry cieplne
Powierzchnia użytkowa
Suma powierzchni pomieszczeń mierzona po wewnętrznym obrysie ścian. Na jej wielkość ma wpływ wysokość pomieszczenia i jest liczona: – w 100% – przy wysokości w świetle powyżej 2,2 m, – w 50% – przy wysokości między 1,4 m a 2,2 m, – pomija się – przy wysokości poniżej 1,4 m. Do powierzchni użytkowej domu nie dolicza się powierzchni niektórych pomieszczeń, np. piwnicy, garażu, kotłowni, strychu.
131,3 m2
Powierzchnia zabudowy
Powierzchnia mierzona po obrysie zewnętrznych krawędzi wykończonego budynku z uwzględnieniem powierzchni nadwieszonych (np. wykusz). Nie dolicza się do niej elementów drugorzędnych (np. schodów zewnętrznych, daszków, ramp) oraz elementów niewystających ponad powierzchnię terenu
205,17 m2
Powierzchnia netto
Powierzchnia wszystkich pomieszczeń budynku mierzona na poziomie podłogi, po wewnętrznym obrysie ścian w stanie wykończonym. Na jej wartość nie wpływa wysokość pomieszczeń.
161,68 m2
Powierzchnia całkowita
Suma powierzchni całkowitych wszystkich kondygnacji (w tym znajdujących się całkowicie lub częściowo poniżej poziomu terenu) mierzona po zewnętrznym obrysie ścian (wraz z ociepleniem) oraz wszystkich elementów wykraczających poza kubaturę, np. tarasy, schody zewnętrzne, balkony, podcienie, zjazdy do garaży, itp.
403,44 m2
Powierzchnia dodatkowa
Dodatkowe powierzchnie niewliczane do powierzchni użytkowej: piwnica + garaż + kotłownia + strych + poddasze do adaptacji.
23,46 m2
Powierzchnia garażu
23,46 m2
Powierzchnia dachu
92 m2
Kąt nachylenia dachu
35°
Kubatura
Objętość budynku liczona wraz z przegrodami zewnętrznymi i wewnętrznymi (ścianami, stropem, dachem i podmurówką)
1359 m3
Wysokość budynku
Wysokość mierzona od poziomu terenu przy wejściu do budynku do najwyższego punktu dachu – kalenicy
8,22 m
Wysokość parteru
Podana wartość to wysokość pomieszczeń parteru w stanie wykończonym, mierzona od poziomu posadzki do spodu sufitu.
2,85 m
Wysokość poddasza / piętra
Dla poddasza podano zakres wysokości. Pierwsza podana wartość to minimalna wysokość pomieszczenia w stanie wykończonym (mierzona przy ściance kolankowej lub tzw. przedściance - o ile występuje), druga wartość to maksymalna wysokość pomieszczenia mierzona od poziomu posadzki do płyt wykończeniowych mocowanych do elementów konstrukcyjnych ograniczających przestrzeń pomieszczeń. Dla piętra podana wartość to wysokość pomieszczeń piętra w stanie wykończonym, mierzona od poziomu posadzki do spodu sufitu.
1,40-2,51 m
Wysokość ścianki kolankowej
Ścianka kolankowa to zewnętrzna ściana nośna poddasza, wznoszona powyżej najwyższego stropu budynku, na której jest oparta więźba dachowa. Od wysokości ścianki kolankowej zależy funkcjonalność poddasza, wielkość jego powierzchni użytkowej oraz wygląd bryły budynku.
1,4 m
Wymiary budynku
21,92 x 9,98 m
Wymiary działki
Wymiary działki (szerokość x głębokość), na której możliwe jest wybudowanie domu. Wynikają one z wymiarów budynku powiększonych o wymagane przepisami odległości poszczególnych elementów budynku od granic działki. Rzeczywistą odległość od drogi należy sprawdzić i dostosować do wymogów zawartych w MPZA lub WZ
29,92 x 17,98 m
Pokoje (z salonem)
Liczba wszystkich pokoi
5
Łazienki i wc
Suma łazienek i wc
2
Miejsca postojowe
Suma miejsc postojowych (garaż + wiata garażowa)
1
Sezonowość
Całoroczny
REKLAMA

Opis projektu

Projekt domu HomeKONCEPT-93 B (bliźniak, segment B) to projekt parterowego domu, niepodpiwniczonego, z poddaszem użytkowym. Jego łączna powierzchnia użytkowa wynosi 131,3 m2, dom idealny na działkę średniej wielkości. Jest to wersja domu z zaplanowanym jednostanowiskowym garażem, przeznaczona dla 5-6 osobowej rodziny. Projekt wyróżnia się oryginalnością, o czym może świadczyć fakt, że połówki domu nie są takie same.

 

Bryła budynku

 

W projekcie domu HomeKONCEPT-93 B zastosowano nieskomplikowane i oszczędne rozwiązania tj. typową bryłę budynku oraz popularny dwuspadowy dach. Mimo to dom bez wątpienia prezentuje się oryginalnie i luksusowo. Budynek powstał z myślą o zabudowie bliźniaczej. Zalecana technologia realizacji – murowana – to gwarancja trwałości i solidności całej konstrukcji.

 

Wnętrze budynku

 

Wnętrze w projekcie HomeKONCEPT-93 B charakteryzuje się wyraźnym podziałem na strefę dzienną i nocną. Na parterze znajdziemy funkcjonalną kuchnię, salon połączony z jadalnią oraz toaletę. Do tego przewidziano miejsce na schowek, garderobę i dodatkowe, niezwykle praktyczne pomieszczenie gospodarcze. Poddasze to starannie rozplanowana strefa nocna. Autor zaplanował cztery wygodne sypialnie do dostosowania według własnych potrzeb. Do dyspozycji domowników jest również wspólna, w pełni wyposażona łazienka. Niepowtarzalny klimat domu podtrzymuje taras, zapewniający łatwy i przyjemny kontakt z naturą.

Pod względem wizualnym projekt domu HomeKONCEPT-93 B stoi na bardzo wysokim poziomie, dlatego zadowoli większość zainteresowanych osób. Do tego odpowiednio zaaranżowane wnętrze, które sprawia, że projekt jest bardzo ciekawą ofertą, z której na pewno warto skorzystać.

Koszty

Orientacyjne koszty budowy netto - wycena wskaźnikowa Ceny aktualne na: IV kwartał 2025
Jak dokonujemy wyliczeń? icon arrow
Przedstawione orientacyjne koszty budowy dotyczą jednego segmentu.
Razem (etapy 1-3): 409 200 zł
1. Stan zero
Koszt etapu 122 400 zł
Zakres prac

wytyczenie budynku i roboty ziemne; ławy i stopy fundamentowe; ściany podziemne z izolacjami cieplnymi i przeciwwilgociowymi

2. Stan surowy otwarty
Koszt etapu + 225 500 zł
Zakres prac

ściany murowane zewnętrzne i wewnętrzne; stropy i schody wewnętrzne; konstrukcja dachu z pokryciem, obróbkami, rynnami i rurami spustowymi; podłoża pod posadzki ( np. chudy beton)

3. Stan surowy zamknięty
Koszt etapu + 61 400 zł
Zakres prac

Stan zero (wytyczenie budynku i roboty ziemne; ławy i stopy fundamentowe; ściany podziemne z izolacjami cieplnymi i przeciwwilgociowymi) oraz stan surowy (ściany murowane z zewnętrzne i wewnętrzne; stropy i schody wewnętrzne, konstrukcja dachu z pokryciem, obróbkami, rynnami i rurami spustowymi; podłoża pod posadzki (np. chudy beton), okna i drzwi zewnętrzne; bramy garażowe; warstwy wyrównawcze pod posadzki na gruncie i na stropie z izolacjami cieplnymi i przeciwwilgociowymi).

Razem (etapy 1-3): 409 200 zł
4. Instalacje elektryczne
Koszt etapu od 62,40 do 219,70 zł/m2

*

Zakres prac

wewnętrzna instalacja oświetleniowa; instalacja gniazd wtykowych; instalacja siły oraz instalacja odgromowa i inne wewnętrzne instalacje teletechniczne

5. Instalacje sanitarne
Koszt etapu od 232,70 do 910 zł/m2

**

Zakres prac

wewnętrzna instalacja wod. - kan. z przyborami sanitarnymi i bateriami; instalacja c.o. z kotłem i grzejnikami, bez kominka; instalacja gazowa bez osprzętu kuchennego; wentylacja mechaniczna ( jeśli występuje)

6. Wykończenie zewnętrzne
Koszt etapu od 126,10 do 638,30 zł/m2

***

Zakres prac

system dociepleń i tynki zewnętrzne z malowaniem; okładziny elewacyjne; balustrady, parapety zewnętrzne i inne roboty zewnętrzne np. taras, opaski wokół domu, schody zewnętrzne

7. Wykończenie wewnętrzne
Koszt etapu od 429 do 878,80 zł/m2

***

Zakres prac

tynki wewnętrzne, drzwi i okna wewnętrzne, lekkie ścianki działowe, roboty malarskie, posadzki i inne prace wykończeniowe

* w zależności od ilości punktów elektrycznych na 1m2

** w zależności od ilości punktów sanitarnych na 1m2 oraz ilości (odległości) instalacji rurowej

*** w zależności od rodzaju użytych meteriałów i specyfikacji wykończenia

Zmiany w projekcie

Zobacz zakres zmian, które możesz wprowadzić, w tym projekcie bez zgody autora.
Lista możliwych zmian

Jeśli zmiany, które chcesz wprowadzić nie są ujęte w powyższym zestawieniu, skontaktuj się z nami. Nasz architekt przeanalizuje i doradzi, które z Twoich propozycji warto wdrożyć. O zgodę na zmiany możesz wystąpić nie tylko w momencie zakupu projektu, ale także później i otrzymasz ją bezpłatnie w ciągu kilku dni.

Pliki do pobrania

Zestawienie materiałówpdf Pobierz
Rysunki szczegółowepdf Pobierz
Obrys działkipdf Pobierz
Obrys działkidxf Pobierz

Dokumentacja (zawartość pakietu projektowego)

Dodatki

Pakiet dodatków, który otrzymasz razem z projektem

addon
Prezent na Święta: Karta 200 zł do Zalando!
Święta tuż-tuż, a my mamy dla Ciebie prezent, który umili czas oczekiwania!
addon
Teczka inwestora
Do przechowywania niezbędnej dokumentacji
addon
Kupony rabatowe na zakupy
Dzięki którym zaoszczędzisz nawet kilkanaście tysięcy złotych.
addon
Projekty małej architektury
Wybudujesz samodzielnie m.in. domek dla dzieci czy altanę z grillem.
Pamiętaj
dostawa
Wysyłkę projektu ze wszystkimi dodatkami na terenie Polski bierzemy na siebie. Ty wybierasz, gdzie odbierzesz swój projekt. Masz do wyboru kuriera DPD lub punkty Paczkomat InPost 24/7.
zwroty

Masz 30 dni na zwrot i 365 dni na wymianę projektu

Inspiracje

Wnętrza
Wszystkie
Pokój dzienny
Kuchnia
Sypialnia
Łazienka