+48 22 59 05 000

pn.-pt. 8-20

Kontakt i pomoc^
Kontakt i pomoc
Zamów rozmowę
Umów wideorozmowę
Napisz do nas
Pomoc w kredycie
Bezpłatna analiza działki
logo
ulubione 0
REKLAMA
REKLAMA
PEG75

Garaż / Budynek gospodarczy G8

wersja lustrzana
Kupując u nas, zyskujesz więcej

Dodatki

Atrakcyjne rabaty

Kompleksowe wsparcie

Gwarancja najniższej ceny

Wygodne zakupy

Zgoda na zmiany w projekcie

Szczegółowa dokumentacja

Rzuty
Parametry
Podobne
Zmiany
Dokumentacja
Dodatki
REKLAMA

Rzuty, przekrój, elewacje

Parter
Wersja lustrzana
Pomieszczenie Użytkowa
1
garaż
25,21 m2
2
pom. gosp.
10,56 m2
Razem 35,77 m2

W nawiasach podano powierzchnie pomieszczenia netto

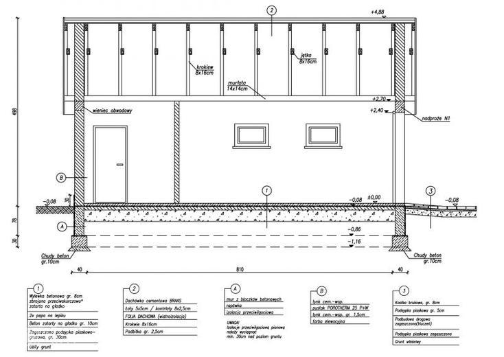
Przekrój
Wersja lustrzana
Przekrój
Elewacje
Wersja lustrzana
Elewacja 1
Elewacja 1
REKLAMA

Parametry

Dane Techniczne
Technologia i materiały
Powierzchnia użytkowa
Suma powierzchni pomieszczeń mierzona po wewnętrznym obrysie ścian. Na jej wielkość ma wpływ wysokość pomieszczenia i jest liczona: – w 100% – przy wysokości w świetle powyżej 2,2 m, – w 50% – przy wysokości między 1,4 m a 2,2 m, – pomija się – przy wysokości poniżej 1,4 m
35,77 m2
Powierzchnia zabudowy
Powierzchnia mierzona po obrysie zewnętrznych krawędzi wykończonego budynku z uwzględnieniem powierzchni nadwieszonych (np. wykusz). Nie dolicza się do niej elementów drugorzędnych (np. schodów zewnętrznych, daszków, ramp) oraz elementów niewystających ponad powierzchnię terenu
42,88 m2
Powierzchnia netto
Powierzchnia wszystkich pomieszczeń budynku mierzona na poziomie podłogi, po wewnętrznym obrysie ścian w stanie wykończonym. Na jej wartość nie wpływa wysokość pomieszczeń.
35,77 m2
Powierzchnia całkowita
Suma powierzchni całkowitych wszystkich kondygnacji (w tym znajdujących się całkowicie lub częściowo poniżej poziomu terenu) mierzona po zewnętrznym obrysie ścian (wraz z ociepleniem) oraz wszystkich elementów wykraczających poza kubaturę, np. tarasy, schody zewnętrzne, balkony, podcienie, zjazdy do garaży, itp.
42,88 m2
Powierzchnia garażu
25,21 m2
Kąt nachylenia dachu
35°
Kubatura
Objętość budynku liczona wraz z przegrodami zewnętrznymi i wewnętrznymi (ścianami, stropem, dachem i podmurówką)
165,55 m3
Wysokość budynku
Wysokość mierzona od poziomu terenu przy wejściu do budynku do najwyższego punktu dachu – kalenicy
4,96 m
Wymiary budynku
4,9 x 8,75 m
Szerokość wjazdu
Szerokość i wysokość otworu mierzona w świetle ścian (w stanie wykończonym)
2,4 m
Wysokość wjazdu
Szerokość i wysokość otworu mierzona w świetle ścian (w stanie wykończonym)
2,4 m
REKLAMA

Opis projektu

Wolno stojący garaż G8 , w technologii murowej, z miejscem na jeden samochód, z pomieszczeniem gospodarczym, z dwuspadowym dachem o kącie nachylenia 30 st.
Garaż G8 dostępny jest także w wersji lustrzanej.
Projekt dostępny także w technologii szkieletu drewnianego G8 (drewniany)
Dokumentacja projektowa opracowana jest w dwóch wersjach: jako garaż i jako budynek gospodarczy (wyboru wersji należy dokonać przy składaniu zamówienia).

Zmiany w projekcie

Zobacz zakres zmian, które możesz wprowadzić, w tym projekcie bez zgody autora.
Lista możliwych zmian

Jeśli zmiany, które chcesz wprowadzić nie są ujęte w powyższym zestawieniu, skontaktuj się z nami. Nasz architekt przeanalizuje i doradzi, które z Twoich propozycji warto wdrożyć. O zgodę na zmiany możesz wystąpić nie tylko w momencie zakupu projektu, ale także później i otrzymasz ją bezpłatnie w ciągu kilku dni.

Dokumentacja (zawartość pakietu projektowego)

Dodatki

Pakiet dodatków, który otrzymasz razem z projektem

addon
Teczka inwestora
Do przechowywania niezbędnej dokumentacji
addon
Kupony rabatowe na zakupy
Dzięki którym zaoszczędzisz nawet kilkanaście tysięcy złotych.
addon
Projekty małej architektury
Wybudujesz samodzielnie m.in. domek dla dzieci czy altanę z grillem.
Pamiętaj
dostawa
Wysyłkę projektu ze wszystkimi dodatkami na terenie Polski bierzemy na siebie. Ty wybierasz, gdzie odbierzesz swój projekt. Masz do wyboru kuriera DPD lub punkty Paczkomat InPost 24/7.
zwroty

Masz 30 dni na zwrot i 365 dni na wymianę projektu