+48 22 59 05 000

pn.-pt. 8-20

Kontakt i pomoc^
Kontakt i pomoc
Zamów rozmowę
Umów wideorozmowę
Napisz do nas
Pomoc w kredycie
Bezpłatna analiza działki
logo
ulubione 0
REKLAMA
REKLAMA
DW114

Zgrabny 1

wersja lustrzana
Kupując u nas, zyskujesz więcej

Dodatki

Atrakcyjne rabaty

Kompleksowe wsparcie

Gwarancja najniższej ceny

Wygodne zakupy

Zgoda na zmiany w projekcie

Szczegółowa dokumentacja

Rzuty
Działka
Parametry
Koszty
Zmiany
Dokumentacja
Dodatki
REKLAMA

Rzuty, przekrój, elewacje

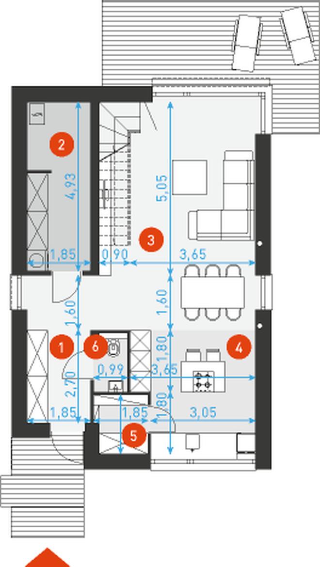
Parter 49,6 m2
Wersja lustrzana
Pomieszczenie Użytkowa
1
komunikacja
7,7 m2
3
pokój dzienny + jadalnia
25,9 m2
4
kuchnia
11,9 m2
5
spiżarnia
2,5 m2
6
wc
1,6 m2
Razem 49,6 m2
2
kotłownia + pom. gosp.
8,8 m2

W nawiasach podano powierzchnie pomieszczenia netto

Poddasze 39,9 m2
Wersja lustrzana
Pomieszczenie Użytkowa
1
komunikacja (15,6)
9,6 m2
2
sypialnia (14,1)
10,0 m2
3
łazienka (5,3)
3,1 m2
4
sypialnia (12,7)
9,2 m2
5
sypialnia (12,1)
8,0 m2
Razem 39,9 m2

W nawiasach podano powierzchnie pomieszczenia netto

REKLAMA

Działka

Wybór działki to jedna z ważniejszych decyzji poprzedzających budowę wymarzonego domu. Oczywiście najważniejsza jest jej lokalizacja, ale trzeba także przeanalizować lokalne ograniczenia wyszczególnione w miejscowym planie zagospodarowania przestrzennego lub w warunkach zabudowy. Często zapisy w w/w dokumentach uniemożliwiają budowę wybranego projektu i trzeba szukać dalej.

Ważne jest także usytuowanie działki i domu względem stron świata, gdyż to właśnie decyduje o stopniu nasłonecznienia poszczególnych pomieszczeń. Dlatego każdy projekt oferujemy w dwóch wersjach: podstawowej oraz lustrzanej, aby można było wybrać najkorzystniejszy układ pomieszczeń względem stron świata, a także względem ukształtowania krajobrazu w otoczeniu działki.

Wymiary działki
Wymiary działki (szerokość x głębokość), na której możliwe jest wybudowanie domu. Wynikają one z wymiarów budynku powiększonych o wymagane przepisami odległości poszczególnych elementów budynku od granic działki. Rzeczywistą odległość od drogi należy sprawdzić i dostosować do wymogów zawartych w MPZA lub WZ.
15.55 x 20.15 m
Przekrój
Wersja lustrzana

Parametry

Dane Techniczne
Technologia i materiały
Parametry cieplne
Powierzchnia użytkowa
Suma powierzchni pomieszczeń mierzona po wewnętrznym obrysie ścian. Na jej wielkość ma wpływ wysokość pomieszczenia i jest liczona: – w 100% – przy wysokości w świetle powyżej 2,2 m, – w 50% – przy wysokości między 1,4 m a 2,2 m, – pomija się – przy wysokości poniżej 1,4 m. Do powierzchni użytkowej domu nie dolicza się powierzchni niektórych pomieszczeń, np. piwnicy, garażu, kotłowni, strychu.
89,6 m2
Powierzchnia zabudowy
Powierzchnia mierzona po obrysie zewnętrznych krawędzi wykończonego budynku z uwzględnieniem powierzchni nadwieszonych (np. wykusz). Nie dolicza się do niej elementów drugorzędnych (np. schodów zewnętrznych, daszków, ramp) oraz elementów niewystających ponad powierzchnię terenu
84,2 m2
Powierzchnia netto
Powierzchnia wszystkich pomieszczeń budynku mierzona na poziomie podłogi, po wewnętrznym obrysie ścian w stanie wykończonym. Na jej wartość nie wpływa wysokość pomieszczeń.
118,2 m2
Kąt nachylenia dachu
45°
Kubatura
Objętość budynku liczona wraz z przegrodami zewnętrznymi i wewnętrznymi (ścianami, stropem, dachem i podmurówką)
474 m3
Wysokość budynku
Wysokość mierzona od poziomu terenu przy wejściu do budynku do najwyższego punktu dachu – kalenicy
8,09 m
Wymiary budynku
7,55 x 11,15 m
Wymiary działki
Wymiary działki (szerokość x głębokość), na której możliwe jest wybudowanie domu. Wynikają one z wymiarów budynku powiększonych o wymagane przepisami odległości poszczególnych elementów budynku od granic działki. Rzeczywistą odległość od drogi należy sprawdzić i dostosować do wymogów zawartych w MPZA lub WZ
15,55 x 20,15 m
Pokoje (z salonem)
Liczba wszystkich pokoi
4
Łazienki i wc
Suma łazienek i wc
2
Sezonowość
Całoroczny
REKLAMA

Opis projektu

Projekt niedużego nowoczesnego domu z użytkowym poddaszem. Jego głównymi zaletami są niebanalny wygląd oraz niewielkie wymiary zewnętrzne i niska powierzchnia zabudowy, która umożliwia realizację na bardzo małych działkach. Jego prosta, zaplanowana na rzucie prostokąta forma przykryta dwuspadowym dachem jest tradycyjna, ale zastosowane przez nas materiały wykończeniowe nadają jej zdecydowanie nowoczesnego wizerunku. Do pokrycia niemal całego domu wybraliśmy ciemną, ręcznie formowaną cegłę klinkierową. Elewację parteru uzupełnia intensywnie żółta, kontrastująca z klinkierem płyta HPL, która akcentuję strefę wejściową oraz przestrzeń między oknami w salonie. Brak okapów, ukryte rynny systemowe Galeco, grafitowa płaska dachówka oraz proste stalowe balustrady okien na poddaszu uzupełniają nowoczesną stylistykę. Oczywiście zaproponowane przez nas materiały są opcjonalne, dlatego przygotowaliśmy również wizualizacje z budżetową wersję elewacji z wykorzystaniem znacznie tańszego tynku cienkowarstwowego oraz blachą panelową na rąbek zamiast dachówki.

Plan wnętrza jest równie prosty jak zewnętrza forma budynku. Rzut parteru jest podzielony na trzy strefy – wejściową, gospodarczą i dzienną. Otwarty plan części dziennej łączący w jedną wizualną całość przestrzeń kuchni, jadalni, salonu i schodów na poddasze jest charakterystyczny dla naszej pracowni. Taki zabieg oraz zastosowanie dużych okien pozwala na wizualne powiększenie niewielkiej powierzchni. Usytuowana na froncie duża kuchnia z wyspą posiada wygodną spiżarnię. Umieszczone na ścianie salonu nowoczesne dywanowe schody stanowią nie tylko komunikację na górną kondygnację, ale są również pięknym elementem dekoracyjnym. Część gospodarcza jest wyjątkowo duża. Składa się z uniwersalnego pomieszczenia pełniącego funkcję garderoby, pralni i suszarni oraz pomieszczenia na kocioł i rekuperator. Na poddaszu znajdują się trzy sypialnie, ogólnodostępna łazienka oraz otwarta przestrzeń sąsiadująca z biegiem schodów, którą zaaranżowaliśmy jako aneks gabinetowy, oświetlony przedłużonym oknem połaciowym oraz wysokim oknem w ścianie szczytowej nad schodami. Powyżej poddasza znajduje się jeszcze praktyczny strych, który można wykorzystać na przestrzeń magazynową. Wysoki kąt nachylenia połaci sprawia, że przestrzeń poddasza jest wygodna i funkcjonalna.

Projekt Zgrabny 1 jest przeznaczony dla 3 – 4-osobowej rodziny. Dedykujemy go inwestorom, którzy posiadają niewielką działkę i ograniczony budżet, ale pragną zamieszkać w domu nowoczesnym i oryginalnym. Tradycyjna konstrukcja, możliwość zastosowania tańszych materiałów wykończeniowych bez straty na wyglądzie budynku i niewielkie wymiary zewnętrzne przekładają się wprost na niskie koszty budowy. Z kolei nieduża powierzchnia użytkowa i kubatura oraz wentylacja mechaniczna gwarantują niskie koszty eksploatacji.


Zalety projektu:

  • niewielkie wymiary zewnętrzne oraz niska powierzchnia zabudowy umożliwiająca budowę na bardzo małych działkach
  • prosty, tradycyjna forma uwspółcześniona nowoczesnymi materiałami wykończeniowymi
  • tradycyjna, nieskomplikowana konstrukcja
  • niskie koszty budowy i eksploatacji
  • możliwość zamiany materiałów wykończeniowych bez straty na estetyce budynku
  • na parterze: wejście osłonięte podcieniem / zintegrowana i otwarta strefa dzienna powiększająca optycznie wnętrze / kuchnia z wyspą i spiżarnią ulokowana od frontu / duże zaplecze gospodarcze
  • na poddaszu: duży kąt nachylenia połaci polepszający funkcjonalność
  • projekt energooszczędny z instalacją rekuperacji w standardzie

Koszty

Orientacyjne koszty budowy netto - wycena wskaźnikowa Ceny aktualne na: IV kwartał 2025
Jak dokonujemy wyliczeń? icon arrow
Razem (etapy 1-3): 259 900 zł
1. Stan zero
Koszt etapu 50 300 zł
Zakres prac

wytyczenie budynku i roboty ziemne; ławy i stopy fundamentowe; ściany podziemne z izolacjami cieplnymi i przeciwwilgociowymi

2. Stan surowy otwarty
Koszt etapu + 164 900 zł
Zakres prac

ściany murowane zewnętrzne i wewnętrzne; stropy i schody wewnętrzne; konstrukcja dachu z pokryciem, obróbkami, rynnami i rurami spustowymi; podłoża pod posadzki ( np. chudy beton)

3. Stan surowy zamknięty
Koszt etapu + 44 900 zł
Zakres prac

okna i drzwi zewnętrzne; bramy garażowe; warstwy wyrównawcze pod posadzki na gruncie i na stropie z izolacjami cieplnymi i przeciwwilgociowymi

Razem (etapy 1-3): 259 900 zł
4. Instalacje elektryczne
Koszt etapu od 62,40 do 219,70 zł/m2

*

Zakres prac

wewnętrzna instalacja oświetleniowa; instalacja gniazd wtykowych; instalacja siły oraz instalacja odgromowa i inne wewnętrzne instalacje teletechniczne

5. Instalacje sanitarne
Koszt etapu od 232,70 do 910 zł/m2

**

Zakres prac

wewnętrzna instalacja wod. - kan. z przyborami sanitarnymi i bateriami; instalacja c.o. z kotłem i grzejnikami, bez kominka; instalacja gazowa bez osprzętu kuchennego; wentylacja mechaniczna ( jeśli występuje)

6. Wykończenie zewnętrzne
Koszt etapu od 126,10 do 638,30 zł/m2

***

Zakres prac

system dociepleń i tynki zewnętrzne z malowaniem; okładziny elewacyjne; balustrady, parapety zewnętrzne i inne roboty zewnętrzne np. taras, opaski wokół domu, schody zewnętrzne

7. Wykończenie wewnętrzne
Koszt etapu od 429 do 878,80 zł/m2

***

Zakres prac

tynki wewnętrzne, drzwi i okna wewnętrzne, lekkie ścianki działowe, roboty malarskie, posadzki i inne prace wykończeniowe

* w zależności od ilości punktów elektrycznych na 1m2

** w zależności od ilości punktów sanitarnych na 1m2 oraz ilości (odległości) instalacji rurowej

*** w zależności od rodzaju użytych meteriałów i specyfikacji wykończenia

Zmiany w projekcie

Zobacz zakres zmian, które możesz wprowadzić, w tym projekcie bez zgody autora.
Lista możliwych zmian

Jeśli zmiany, które chcesz wprowadzić nie są ujęte w powyższym zestawieniu, skontaktuj się z nami. Nasz architekt przeanalizuje i doradzi, które z Twoich propozycji warto wdrożyć. O zgodę na zmiany możesz wystąpić nie tylko w momencie zakupu projektu, ale także później i otrzymasz ją bezpłatnie w ciągu kilku dni.

Dokumentacja (zawartość pakietu projektowego)

Dodatki

Pakiet dodatków, który otrzymasz razem z projektem

addon
Prezent na Święta: Karta 200 zł do Zalando!
Święta tuż-tuż, a my mamy dla Ciebie prezent, który umili czas oczekiwania!
addon
Teczka inwestora
Do przechowywania niezbędnej dokumentacji
addon
Kupony rabatowe na zakupy
Dzięki którym zaoszczędzisz nawet kilkanaście tysięcy złotych.
addon
Projekty małej architektury
Wybudujesz samodzielnie m.in. domek dla dzieci czy altanę z grillem.
Pamiętaj
dostawa
Wysyłkę projektu ze wszystkimi dodatkami na terenie Polski bierzemy na siebie. Ty wybierasz, gdzie odbierzesz swój projekt. Masz do wyboru kuriera DPD lub punkty Paczkomat InPost 24/7.
zwroty

Masz 30 dni na zwrot i 365 dni na wymianę projektu