+48 22 59 05 000

pn.-pt. 8-20

Kontakt i pomoc^
Kontakt i pomoc
Zamów rozmowę
Napisz do nas
Pomoc w kredycie
Bezpłatna analiza działki
logo
ulubione 0
REKLAMA
REKLAMA
MG0864

Wymarzony 8 B

wersja lustrzana
Rzuty
Działka
Parametry
Podobne
Zmiany
Dokumentacja
Dodatki
Inspiracje
REKLAMA

Rzuty, przekrój, elewacje

Parter 118,01 m2
Wersja lustrzana
Pomieszczenie Użytkowa
1
przedsionek
4,05 m2
2
hol
8,23 m2
3
pokój dzienny
35,08 m2
4
kuchnia
12,0 m2
5
spiżarnia
1,17 m2
6
pralnia
2,67 m2
7
wc
2,26 m2
8
korytarz
5,51 m2
9
sypialnia
10,8 m2
10
sypialnia
10,8 m2
11
sypialnia
12,6 m2
12
łazienka
6,12 m2
13
gabinet
6,72 m2
Razem 118,01 m2
14
kotłownia
3,48 m2

W nawiasach podano powierzchnie pomieszczenia netto

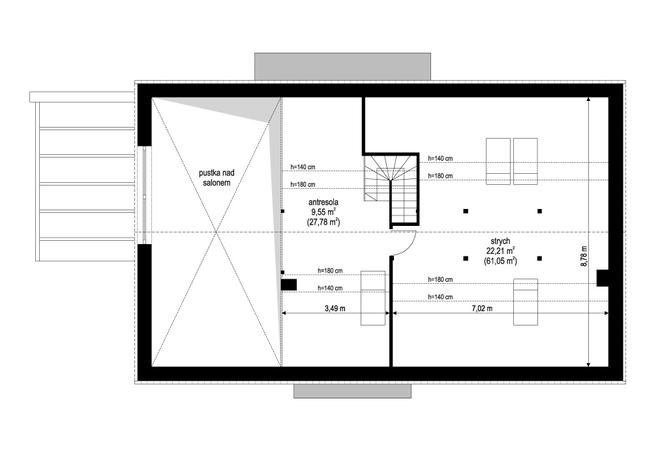
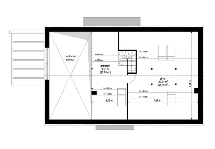
Strych
Wersja lustrzana

Możliwość wykorzystania 31,76 m2 pow. użytkowej na poddaszu, 88,83m2 pow. netto (po dostosowaniu pomieszczeń do stałego pobytu osób) - indywidualna adaptacja projektu.

Pomieszczenie Użytkowa
1
antresola (27,78)
9,55 m2
2
poddasze do adaptacji (61,05)
22,21 m2

W nawiasach podano powierzchnie pomieszczenia netto

Elewacje
Wersja lustrzana
Elewacja 1
Elewacja 1
Elewacja 2
Elewacja 3
Elewacja 4
REKLAMA

Działka

Wybór działki to jedna z ważniejszych decyzji poprzedzających budowę wymarzonego domu. Oczywiście najważniejsza jest jej lokalizacja, ale trzeba także przeanalizować lokalne ograniczenia wyszczególnione w miejscowym planie zagospodarowania przestrzennego lub w warunkach zabudowy. Często zapisy w w/w dokumentach uniemożliwiają budowę wybranego projektu i trzeba szukać dalej.

Ważne jest także usytuowanie działki i domu względem stron świata, gdyż to właśnie decyduje o stopniu nasłonecznienia poszczególnych pomieszczeń. Dlatego każdy projekt oferujemy w dwóch wersjach: podstawowej oraz lustrzanej, aby można było wybrać najkorzystniejszy układ pomieszczeń względem stron świata, a także względem ukształtowania krajobrazu w otoczeniu działki.

Wymiary działki
Wymiary działki (szerokość x głębokość), na której możliwe jest wybudowanie domu. Wynikają one z wymiarów budynku powiększonych o wymagane przepisami odległości poszczególnych elementów budynku od granic działki. Rzeczywistą odległość od drogi należy sprawdzić i dostosować do wymogów zawartych w MPZA lub WZ.
25.26 x 18.30 m
Wymiary działki po obrocie domu o 90°
Wymiary działki po adaptacji – obrót o 90 st.
Wymiary (szerokość x głębokość) działki, na której możliwe jest wybudowanie domu, po obróceniu budynku o 90 st. (przy założeniu, że taka zmiana jest możliwa i nie wpłynie niekorzystnie na układ funkcjonalny działki oraz budynku mieszkalnego). Wynikają z wymiarów budynku powiększonych o wymagane przepisami odległości poszczególnych elementów budynku od granic działki. Rzeczywistą odległość od drogi należy sprawdzić i dostosować do wymogów zawartych w MPZA lub WZ.
18.30 x 25.26 m
Przekrój
Wersja lustrzana

Parametry

Dane Techniczne
Technologia i materiały
Parametry cieplne
Powierzchnia użytkowa
Suma powierzchni pomieszczeń mierzona po wewnętrznym obrysie ścian. Na jej wielkość ma wpływ wysokość pomieszczenia i jest liczona: – w 100% – przy wysokości w świetle powyżej 2,2 m, – w 50% – przy wysokości między 1,4 m a 2,2 m, – pomija się – przy wysokości poniżej 1,4 m. Do powierzchni użytkowej domu nie dolicza się powierzchni niektórych pomieszczeń, np. piwnicy, garażu, kotłowni, strychu.
118,01 m2
Powierzchnia zabudowy
Powierzchnia mierzona po obrysie zewnętrznych krawędzi wykończonego budynku z uwzględnieniem powierzchni nadwieszonych (np. wykusz). Nie dolicza się do niej elementów drugorzędnych (np. schodów zewnętrznych, daszków, ramp) oraz elementów niewystających ponad powierzchnię terenu
154,07 m2
Powierzchnia netto
Powierzchnia wszystkich pomieszczeń budynku mierzona na poziomie podłogi, po wewnętrznym obrysie ścian w stanie wykończonym. Na jej wartość nie wpływa wysokość pomieszczeń.
121,49 m2
Powierzchnia całkowita
Suma powierzchni całkowitych wszystkich kondygnacji (w tym znajdujących się całkowicie lub częściowo poniżej poziomu terenu) mierzona po zewnętrznym obrysie ścian (wraz z ociepleniem) oraz wszystkich elementów wykraczających poza kubaturę, np. tarasy, schody zewnętrzne, balkony, podcienie, zjazdy do garaży, itp.
154,07 m2
Powierzchnia dodatkowa
Dodatkowe powierzchnie niewliczane do powierzchni użytkowej: piwnica + garaż + kotłownia + strych + poddasze do adaptacji.
25,69 m2
Powierzchnia dachu
192,76 m2
Kąt nachylenia dachu
35°
Kubatura
Objętość budynku liczona wraz z przegrodami zewnętrznymi i wewnętrznymi (ścianami, stropem, dachem i podmurówką)
769 m3
Wysokość budynku
Wysokość mierzona od poziomu terenu przy wejściu do budynku do najwyższego punktu dachu – kalenicy
7,02 m
Wysokość parteru
Podana wartość to wysokość pomieszczeń parteru w stanie wykończonym, mierzona od poziomu posadzki do spodu sufitu.
2,70 m
Wymiary budynku
15,76 x 11,25 m
Wymiary działki
Wymiary działki (szerokość x głębokość), na której możliwe jest wybudowanie domu. Wynikają one z wymiarów budynku powiększonych o wymagane przepisami odległości poszczególnych elementów budynku od granic działki. Rzeczywistą odległość od drogi należy sprawdzić i dostosować do wymogów zawartych w MPZA lub WZ
25,26 x 18,3 m
Pokoje (z salonem)
Liczba wszystkich pokoi
5
Łazienki i wc
Suma łazienek i wc
2
Sezonowość
Całoroczny
REKLAMA

Opis projektu

Projekt domu Wymarzony 8 B jest wersją wariantową projektu domu jednorodzinnego z serii Wymarzony . Budynek parterowy przeznaczony dla 4 -osobowej rodziny, zbudowany na planie prostokąta, przykryty dwuspadowym bezokapowym dachem, mieszczący salon i trzy pokoje sypialne, gabinet, pustkę nad salonem z antresolą oraz obszerną przestrzeń strychową do dowolnego wykorzystania. Nowoczesna, minimalistyczna architektura domu, łączy się tutaj z funkcjonalnym, praktycznie zaprojektowanym wnętrzem. Budynek nadawać się będzie dobrze zarówno na działkę z częścią ogrodową z tyłu domu, jak również z wjazdem od południa (z ogrodem z boku lub frontu). Dom może być też postawiony kalenicą wzdłuż działki, czyli elewacją boczną do drogi dojazdowej.
Wejście od frontu domu podkreślono kubicznym podcieniem przykrywającym podest i schodki. Większość okien w budynku sięga podłogi, dzięki czemu duże przeszklenia dodają bryle atrakcyjności, powiększają wnętrze oraz otwierają dom na otaczający go ogród.
Wnętrze podzielone zostało na cześć dzienną usytuowaną po lewej stronie oraz pokoje sypialne po prawej. Pokój dzienny z jadalnią doświetlony z trzech stron, dodatkowo otwiera się na antresolę aż do kalenicy dachu, powiększając wrażenie przestronności. Szerokie wyjście na taras jest dodatkowo podniesione z pomocą górnego naświetla, dając fantastyczny efekt.
Do domu wchodzimy wygodnym przedsionkiem, stamtąd dalej do salonu i kuchni. Kuchnia z wyspą otwiera się na jadalnię. Z kuchni mamy też dostęp do pomieszczenia gospodarczego - pralni i spiżarni. W części sypialnej mieszczą się trzy sypialnie i łazienka, oraz dodatkowy pokój - domowe biuro. Na końcu korytarza domu przewidziano kotłownię - przy zastosowaniu kotła gazowego, jest to sensowna lokalizacja pomieszczenia. .
Nad parterem domu znajduje się sporej wielkości strych, który można zaadaptować na ewentualne poddasze użytkowe.
W budynku zastosowano nowoczesne materiały i technologie, energooszczędne instalacje i dobre izolacje przegród zewnętrznych, dzięki czemu budynek będzie niedrogi w utrzymaniu i łatwy w eksploatacji. Konstrukcja domu jest prosta. Wymarzony 8 B to doskonała propozycja dla Inwestorów planujących budowę wygodnego parterowego domu, o nowoczesnej minimalistycznej architekturze, pasującego na trudną działkę.
Projekt dostępny jest, także w wersji odbicia lustrzanego.
REKLAMA

Zmiany w projekcie

Zobacz zakres zmian, które możesz wprowadzić, w tym projekcie bez zgody autora.
Lista możliwych zmian

Jeśli zmiany, które chcesz wprowadzić nie są ujęte w powyższym zestawieniu, skontaktuj się z nami. Nasz architekt przeanalizuje i doradzi, które z Twoich propozycji warto wdrożyć. O zgodę na zmiany możesz wystąpić nie tylko w momencie zakupu projektu, ale także później i otrzymasz ją bezpłatnie w ciągu kilku dni.

Dokumentacja (zawartość pakietu projektowego)

Dodatki

Pakiet dodatków, który otrzymasz razem z projektem

addon
Teczka inwestora
Do przechowywania niezbędnej dokumentacji
addon
Kupony rabatowe na zakupy
Dzięki którym zaoszczędzisz nawet kilkanaście tysięcy złotych.
addon
Projekty małej architektury
Wybudujesz samodzielnie m.in. domek dla dzieci czy altanę z grillem.
Pamiętaj
dostawa
Wysyłkę projektu ze wszystkimi dodatkami na terenie Polski bierzemy na siebie. Ty wybierasz, gdzie odbierzesz swój projekt. Masz do wyboru kuriera DPD lub punkty Paczkomat InPost 24/7.
zwroty

Masz 30 dni na zwrot i 365 dni na wymianę projektu

Inspiracje

Wnętrza
Wszystkie
Pokój dzienny
Kuchnia