+48 22 59 05 000

pn.-pt. 8-20

Kontakt i pomoc^
Kontakt i pomoc
Zamów rozmowę
Umów wideorozmowę
Napisz do nas
Pomoc w kredycie
Bezpłatna analiza działki
logo
ulubione 0
REKLAMA
REKLAMA
MG0599

Willa Parkowa 6 modern A

wersja lustrzana
Kupując u nas, zyskujesz więcej

Dodatki

Atrakcyjne rabaty

Kompleksowe wsparcie

Gwarancja najniższej ceny

Wygodne zakupy

Zgoda na zmiany w projekcie

Szczegółowa dokumentacja

Rzuty
Działka
Parametry
Koszty
Podobne
Zmiany
Pliki do pobrania
Dokumentacja
Dodatki
Inspiracje
REKLAMA

Rzuty, przekrój, elewacje

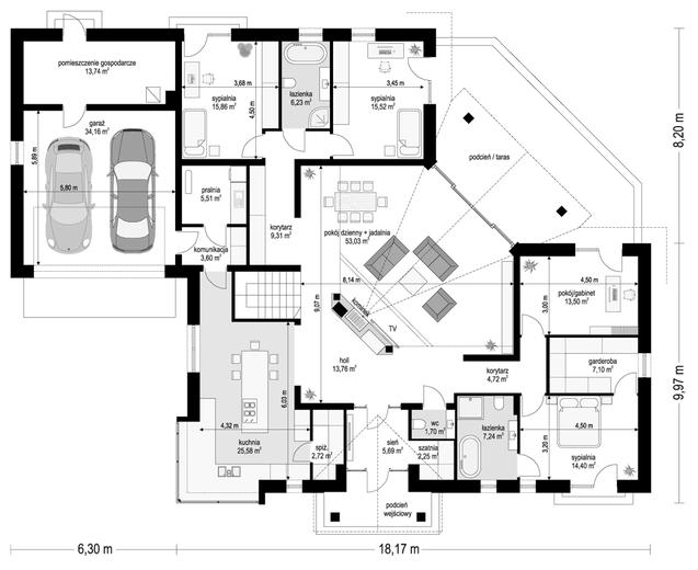
Parter 207,68 m2
Wersja lustrzana
Pomieszczenie Użytkowa
1
wiatrołap
5,69 m2
2
garderoba
2,25 m2
3
hol
13,35 m2
4
pokój dzienny + jadalnia
53,4 m2
5
kuchnia
25,58 m2
6
spiżarnia
2,72 m2
7
korytarz
9,31 m2
8
pokój
15,86 m2
9
łazienka
6,23 m2
10
pokój
15,52 m2
11
pokój
13,5 m2
12
korytarz
4,72 m2
13
pokój
14,4 m2
14
garderoba
7,1 m2
15
łazienka
7,24 m2
16
wc
1,7 m2
17
korytarz
3,6 m2
18
pralnia
5,51 m2
Razem 207,68 m2
19
pom. gosp.
13,74 m2
20
garaż
34,16 m2

W nawiasach podano powierzchnie pomieszczenia netto

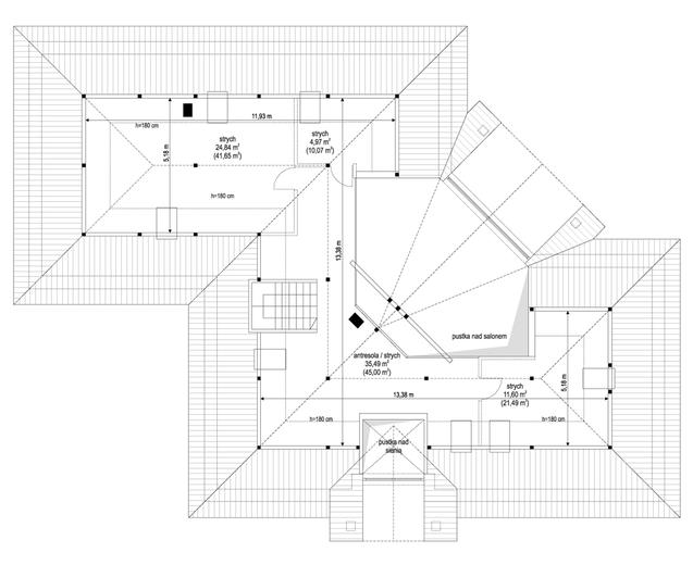
Poddasze
Wersja lustrzana

Możliwość wykorzystania 76,90 m2 pow. użytkowej na poddaszu (po dostosowaniu pomieszczeń do stałego pobytu osób) - indywidualna adaptacja projektu

Pomieszczenie Użytkowa
1
poddasze do adaptacji (21,49)
11,6 m2
2
antresola (45,0)
35,49 m2
3
poddasze do adaptacji (10,07)
4,97 m2
4
poddasze do adaptacji (41,47)
24,84 m2

W nawiasach podano powierzchnie pomieszczenia netto

Elewacje
Wersja lustrzana
Elewacja 1
Elewacja 1
Elewacja 2
Elewacja 3
Elewacja 4
REKLAMA

Działka

Wybór działki to jedna z ważniejszych decyzji poprzedzających budowę wymarzonego domu. Oczywiście najważniejsza jest jej lokalizacja, ale trzeba także przeanalizować lokalne ograniczenia wyszczególnione w miejscowym planie zagospodarowania przestrzennego lub w warunkach zabudowy. Często zapisy w w/w dokumentach uniemożliwiają budowę wybranego projektu i trzeba szukać dalej.

Ważne jest także usytuowanie działki i domu względem stron świata, gdyż to właśnie decyduje o stopniu nasłonecznienia poszczególnych pomieszczeń. Dlatego każdy projekt oferujemy w dwóch wersjach: podstawowej oraz lustrzanej, aby można było wybrać najkorzystniejszy układ pomieszczeń względem stron świata, a także względem ukształtowania krajobrazu w otoczeniu działki.

Wymiary działki
Wymiary działki (szerokość x głębokość), na której możliwe jest wybudowanie domu. Wynikają one z wymiarów budynku powiększonych o wymagane przepisami odległości poszczególnych elementów budynku od granic działki. Rzeczywistą odległość od drogi należy sprawdzić i dostosować do wymogów zawartych w MPZA lub WZ.
32.47 x 26.17 m
Przekrój
Wersja lustrzana

Parametry

Dane Techniczne
Technologia i materiały
Parametry cieplne
Powierzchnia użytkowa
Suma powierzchni pomieszczeń mierzona po wewnętrznym obrysie ścian. Na jej wielkość ma wpływ wysokość pomieszczenia i jest liczona: – w 100% – przy wysokości w świetle powyżej 2,2 m, – w 50% – przy wysokości między 1,4 m a 2,2 m, – pomija się – przy wysokości poniżej 1,4 m. Do powierzchni użytkowej domu nie dolicza się powierzchni niektórych pomieszczeń, np. piwnicy, garażu, kotłowni, strychu.
207,29 m2
Powierzchnia zabudowy
Powierzchnia mierzona po obrysie zewnętrznych krawędzi wykończonego budynku z uwzględnieniem powierzchni nadwieszonych (np. wykusz). Nie dolicza się do niej elementów drugorzędnych (np. schodów zewnętrznych, daszków, ramp) oraz elementów niewystających ponad powierzchnię terenu
314,68 m2
Powierzchnia netto
Powierzchnia wszystkich pomieszczeń budynku mierzona na poziomie podłogi, po wewnętrznym obrysie ścian w stanie wykończonym. Na jej wartość nie wpływa wysokość pomieszczeń.
255,58 m2
Powierzchnia całkowita
Suma powierzchni całkowitych wszystkich kondygnacji (w tym znajdujących się całkowicie lub częściowo poniżej poziomu terenu) mierzona po zewnętrznym obrysie ścian (wraz z ociepleniem) oraz wszystkich elementów wykraczających poza kubaturę, np. tarasy, schody zewnętrzne, balkony, podcienie, zjazdy do garaży, itp.
314 m2
Powierzchnia dodatkowa
Dodatkowe powierzchnie niewliczane do powierzchni użytkowej: piwnica + garaż + kotłownia + strych + poddasze do adaptacji.
75,57 m2
Powierzchnia garażu
34,16 m2
Kąt nachylenia dachu
30°
Kubatura
Objętość budynku liczona wraz z przegrodami zewnętrznymi i wewnętrznymi (ścianami, stropem, dachem i podmurówką)
1348 m3
Wysokość budynku
Wysokość mierzona od poziomu terenu przy wejściu do budynku do najwyższego punktu dachu – kalenicy
6,85 m
Wymiary budynku
24,47 x 18,17 m
Wymiary działki
Wymiary działki (szerokość x głębokość), na której możliwe jest wybudowanie domu. Wynikają one z wymiarów budynku powiększonych o wymagane przepisami odległości poszczególnych elementów budynku od granic działki. Rzeczywistą odległość od drogi należy sprawdzić i dostosować do wymogów zawartych w MPZA lub WZ
32,47 x 26,17 m
Pokoje (z salonem)
Liczba wszystkich pokoi
5
Łazienki i wc
Suma łazienek i wc
3
Miejsca postojowe
Suma miejsc postojowych (garaż + wiata garażowa)
2
Sezonowość
Całoroczny
REKLAMA

Opis projektu

Projekt domu Willa Parkowa 6 modern A jest wersją wariantową popularnego projektu Willa Parkowa 6 – tym razem w nowoczesnej stylistyce, ze współczesną nie stylizowaną architekturą, w wersji „Modern A”. Dom został zaprojektowany bardzo podobnie do pierwotnego projektu - z zachowaniem wielkości i układu przestrzennego bryły, z tą zmianą, że budynek zdobią nowoczesne detale, materiały i rozwiązania architektoniczne. Willa Parkowa 6 – „Modern A” to komfortowa podmiejska willa, nadająca się ma rozłożystą działkę, z całym programem użytkowym przewidzianym na jednym poziomie parteru, z dodatkową przestrzenią strychowo-poddaszową na górnej kondygnacji. Budynek ma kształt litery „L” z dobudowaną częścią garażową i przykryty jest łagodnym wielospadowym dachem, krytym nowoczesną płaską dachówką ceramiczną. Front domu zdobi piękne reprezentacyjne wejście, z wysokimi drzwiami z naświetlami bocznymi i górnym. Dodatkową ozdobą frontu jest piękne narożne okno kuchni z wykuszem. Zróżnicowane kolorystycznie i materiałowo fragmenty ścian elewacji, oraz wysokie okna do ziemi dają poczucie dynamiki i nowoczesności. Garaż wycofany wgłąb działki nie kłóci się z wejściem i tworzy frontowy placyk – dziedziniec, miejsce na parking dla dodatkowych aut. Od strony ogrodu rzuca się w oczy przede wszystkim narożna pięknie przeszklona ściana szczytowa dwukondygnacyjnego salonu, łącząca się z tarasami urokliwym zadaszeniem podcienia. Duże przeszklenia z części dziennej i z sypialni pozwalają na maksymalne połączenie wnętrza budynku z otaczającym ogrodem. Do wnętrza wchodzimy przez wysoki reprezentacyjny przedsionek z podwyższonym sufitem, wprost do holu i salonu. Pokój dzienny o podzielony jest na centralną część wypoczynkową – z kanapami naprzeciwko pięknie ozdobionej ściany telewizyjno – kominkowej, oraz część jadalnianą z wygodnym stołem dla ośmiu osób. Po przeciwnej stronie domu we frontowym narożniku zaprojektowano bardzo ładną kuchnię z miejscem do spożywania codziennych posiłków – domowe centrum zarządzania. Kuchnia połączona jest funkcjonalnie z techniczno-gospodarczą częścią domu, z pralnią,garażem i kotłownią. Dzięki temu bieganie z zakupami z auta będzie krótsze i łatwiejsze. W dwóch przeciwległych skrzydłach domu zaprojektowano oddzielne : sypialnie dzieci z łazienką, oraz apartament master z łazienką, garderobą i dodatkowym pokojem – gabinetem. Na parterze przewidziano wszelkie potrzebne pomieszczenia do życia, ale nad parterem znajduje się jeszcze pokaźna przestrzeń strychowa, którą można zagospodarować jako poddasze użytkowe, lub zamknąć je i wykorzystać jako domowy strych -magazyn. Zgodnie z pomysłem i decyzją właścicieli. Izolacje i nowoczesne instalacje w budynku powodują, że jest on energooszczędny. Zastosowane materiały i technologie sprawią, że ta nowoczesna mini-rezydencja jest ponadczasowa i będzie się ładnie starzeć, nie tracąc swojej wartości. Willa Parkowa 6 – „Modern A” to doskonała propozycja dla Klientów, którym podoba się Willa Parkowa 6, ale mają obiekcje co do klasycznej stylistyki zewnętrznej budynku. W tym projekcie architektura jest jednocześnie nowoczesna i szykowna. Zapraszamy !

Koszty

Orientacyjne koszty budowy netto - wycena wskaźnikowa Ceny aktualne na: IV kwartał 2025
Jak dokonujemy wyliczeń? icon arrow
Razem (etapy 1-3): 964 100 zł
1. Stan zero
Koszt etapu 187 700 zł
Zakres prac

wytyczenie budynku i roboty ziemne; ławy i stopy fundamentowe; ściany podziemne z izolacjami cieplnymi i przeciwwilgociowymi

2. Stan surowy otwarty
Koszt etapu + 647 000 zł
Zakres prac

ściany murowane zewnętrzne i wewnętrzne; stropy i schody wewnętrzne; konstrukcja dachu z pokryciem, obróbkami, rynnami i rurami spustowymi; podłoża pod posadzki ( np. chudy beton)

3. Stan surowy zamknięty
Koszt etapu + 129 500 zł
Zakres prac

Stan zero (wytyczenie budynku i roboty ziemne; ławy i stopy fundamentowe; ściany podziemne z izolacjami cieplnymi i przeciwwilgociowymi) oraz stan surowy (ściany murowane z zewnętrzne i wewnętrzne; stropy i schody wewnętrzne, konstrukcja dachu z pokryciem, obróbkami, rynnami i rurami spustowymi; podłoża pod posadzki (np. chudy beton), okna i drzwi zewnętrzne; bramy garażowe; warstwy wyrównawcze pod posadzki na gruncie i na stropie z izolacjami cieplnymi i przeciwwilgociowymi).

Razem (etapy 1-3): 964 100 zł
4. Instalacje elektryczne
Koszt etapu od 62,40 do 219,70 zł/m2

*

Zakres prac

wewnętrzna instalacja oświetleniowa; instalacja gniazd wtykowych; instalacja siły oraz instalacja odgromowa i inne wewnętrzne instalacje teletechniczne

5. Instalacje sanitarne
Koszt etapu od 232,70 do 910 zł/m2

**

Zakres prac

wewnętrzna instalacja wod. - kan. z przyborami sanitarnymi i bateriami; instalacja c.o. z kotłem i grzejnikami, bez kominka; instalacja gazowa bez osprzętu kuchennego; wentylacja mechaniczna ( jeśli występuje)

6. Wykończenie zewnętrzne
Koszt etapu od 126,10 do 638,30 zł/m2

***

Zakres prac

system dociepleń i tynki zewnętrzne z malowaniem; okładziny elewacyjne; balustrady, parapety zewnętrzne i inne roboty zewnętrzne np. taras, opaski wokół domu, schody zewnętrzne

7. Wykończenie wewnętrzne
Koszt etapu od 429 do 878,80 zł/m2

***

Zakres prac

tynki wewnętrzne, drzwi i okna wewnętrzne, lekkie ścianki działowe, roboty malarskie, posadzki i inne prace wykończeniowe

* w zależności od ilości punktów elektrycznych na 1m2

** w zależności od ilości punktów sanitarnych na 1m2 oraz ilości (odległości) instalacji rurowej

*** w zależności od rodzaju użytych meteriałów i specyfikacji wykończenia

Zmiany w projekcie

Zobacz zakres zmian, które możesz wprowadzić, w tym projekcie bez zgody autora.
Lista możliwych zmian

Jeśli zmiany, które chcesz wprowadzić nie są ujęte w powyższym zestawieniu, skontaktuj się z nami. Nasz architekt przeanalizuje i doradzi, które z Twoich propozycji warto wdrożyć. O zgodę na zmiany możesz wystąpić nie tylko w momencie zakupu projektu, ale także później i otrzymasz ją bezpłatnie w ciągu kilku dni.

Pliki do pobrania

Zestawienie materiałówpdf Pobierz
Rysunki szczegółowepdf Pobierz

Dokumentacja (zawartość pakietu projektowego)

Dodatki

Pakiet dodatków, który otrzymasz razem z projektem

addon
Prezent na Święta: Karta 200 zł do Zalando!
Święta tuż-tuż, a my mamy dla Ciebie prezent, który umili czas oczekiwania!
addon
Teczka inwestora
Do przechowywania niezbędnej dokumentacji
addon
Kupony rabatowe na zakupy
Dzięki którym zaoszczędzisz nawet kilkanaście tysięcy złotych.
addon
Projekty małej architektury
Wybudujesz samodzielnie m.in. domek dla dzieci czy altanę z grillem.
Pamiętaj
dostawa
Wysyłkę projektu ze wszystkimi dodatkami na terenie Polski bierzemy na siebie. Ty wybierasz, gdzie odbierzesz swój projekt. Masz do wyboru kuriera DPD lub punkty Paczkomat InPost 24/7.
zwroty

Masz 30 dni na zwrot i 365 dni na wymianę projektu

Inspiracje

Wnętrza
Wszystkie
Pokój dzienny
Kuchnia