+48 22 59 05 000

pn.-pt. 8-20

Kontakt i pomoc^
Kontakt i pomoc
Zamów rozmowę
Umów wideorozmowę
Napisz do nas
Pomoc w kredycie
Bezpłatna analiza działki
logo
ulubione 0
REKLAMA
REKLAMA
MG0651

Willa Parkowa 6 D

wersja lustrzana
Kupując u nas, zyskujesz więcej

Dodatki

Atrakcyjne rabaty

Kompleksowe wsparcie

Gwarancja najniższej ceny

Wygodne zakupy

Zgoda na zmiany w projekcie

Szczegółowa dokumentacja

Rzuty
Działka
Parametry
Koszty
Podobne
Zmiany
Pliki do pobrania
Dokumentacja
Dodatki
Inspiracje
REKLAMA

Rzuty, przekrój, elewacje

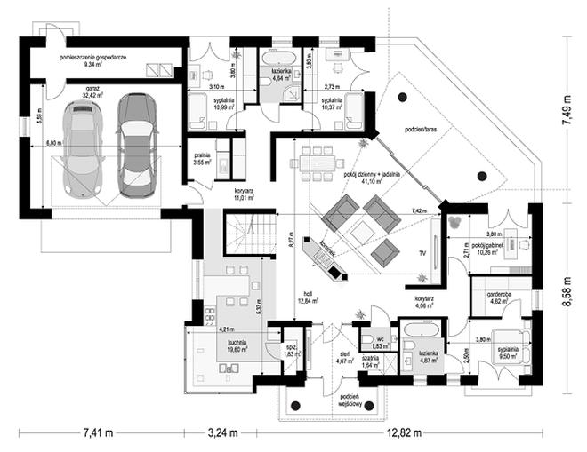
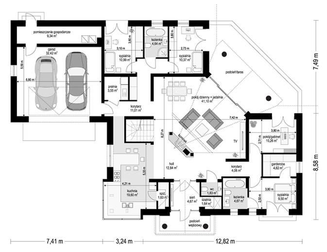
Parter 157,58 m2
Wersja lustrzana
Pomieszczenie Użytkowa
1
przedsionek
4,67 m2
2
garderoba
1,64 m2
3
hol
12,84 m2
4
kuchnia
19,6 m2
5
spiżarnia
1,83 m2
6
korytarz
11,01 m2
7
pralnia
3,55 m2
8
sypialnia
10,99 m2
9
łazienka
4,64 m2
10
sypialnia
10,37 m2
11
pokój dzienny + jadalnia
41,1 m2
12
gabinet
10,26 m2
13
sypialnia
9,5 m2
14
garderoba
4,82 m2
15
łazienka
4,87 m2
16
korytarz
4,06 m2
17
wc
1,83 m2
Razem 157,58 m2
18
kotłownia
9,34 m2
19
garaż
32,42 m2

W nawiasach podano powierzchnie pomieszczenia netto

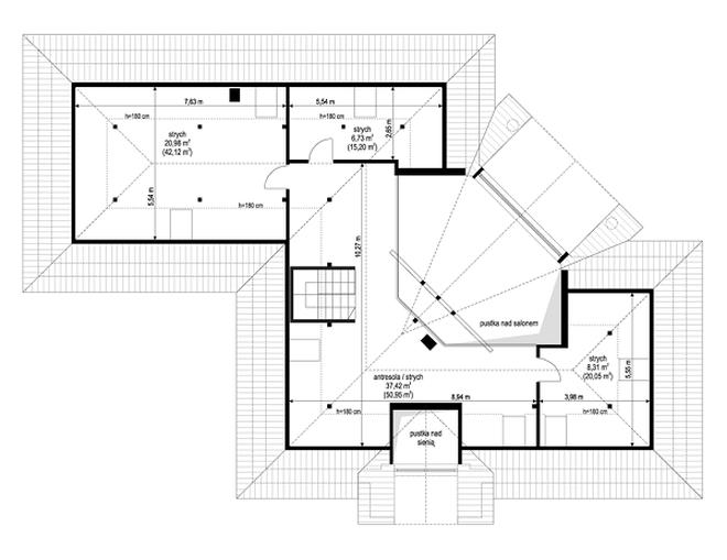
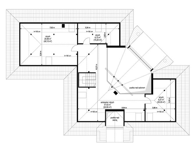
Poddasze
Wersja lustrzana

Możliwość wykorzystania 73,44 m2 pow. użytkowej na poddaszu (po dostosowaniu pomieszczeń do stałego pobytu osób) - indywidualna adaptacja projektu

Pomieszczenie Użytkowa
1
antresola (50,95)
37,42 m2
1
antresola (50,95)
37,42 m2
2
poddasze do adaptacji (42,12)
20,98 m2
2
poddasze do adaptacji (42,12)
20,98 m2
3
poddasze do adaptacji (15,2)
6,73 m2
3
poddasze do adaptacji (15,2)
6,73 m2
4
poddasze do adaptacji (20,05)
8,31 m2
4
poddasze do adaptacji (20,05)
8,31 m2

W nawiasach podano powierzchnie pomieszczenia netto

Elewacje
Wersja lustrzana
Elewacja 1
Elewacja 1
Elewacja 2
Elewacja 3
Elewacja 4
REKLAMA

Działka

Wybór działki to jedna z ważniejszych decyzji poprzedzających budowę wymarzonego domu. Oczywiście najważniejsza jest jej lokalizacja, ale trzeba także przeanalizować lokalne ograniczenia wyszczególnione w miejscowym planie zagospodarowania przestrzennego lub w warunkach zabudowy. Często zapisy w w/w dokumentach uniemożliwiają budowę wybranego projektu i trzeba szukać dalej.

Ważne jest także usytuowanie działki i domu względem stron świata, gdyż to właśnie decyduje o stopniu nasłonecznienia poszczególnych pomieszczeń. Dlatego każdy projekt oferujemy w dwóch wersjach: podstawowej oraz lustrzanej, aby można było wybrać najkorzystniejszy układ pomieszczeń względem stron świata, a także względem ukształtowania krajobrazu w otoczeniu działki.

Wymiary działki
Wymiary działki (szerokość x głębokość), na której możliwe jest wybudowanie domu. Wynikają one z wymiarów budynku powiększonych o wymagane przepisami odległości poszczególnych elementów budynku od granic działki. Rzeczywistą odległość od drogi należy sprawdzić i dostosować do wymogów zawartych w MPZA lub WZ.
31.47 x 24.07 m
Przekrój
Wersja lustrzana

Parametry

Dane Techniczne
Technologia i materiały
Parametry cieplne
Powierzchnia użytkowa
Suma powierzchni pomieszczeń mierzona po wewnętrznym obrysie ścian. Na jej wielkość ma wpływ wysokość pomieszczenia i jest liczona: – w 100% – przy wysokości w świetle powyżej 2,2 m, – w 50% – przy wysokości między 1,4 m a 2,2 m, – pomija się – przy wysokości poniżej 1,4 m. Do powierzchni użytkowej domu nie dolicza się powierzchni niektórych pomieszczeń, np. piwnicy, garażu, kotłowni, strychu.
157,58 m2
Powierzchnia zabudowy
Powierzchnia mierzona po obrysie zewnętrznych krawędzi wykończonego budynku z uwzględnieniem powierzchni nadwieszonych (np. wykusz). Nie dolicza się do niej elementów drugorzędnych (np. schodów zewnętrznych, daszków, ramp) oraz elementów niewystających ponad powierzchnię terenu
259,8 m2
Powierzchnia netto
Powierzchnia wszystkich pomieszczeń budynku mierzona na poziomie podłogi, po wewnętrznym obrysie ścian w stanie wykończonym. Na jej wartość nie wpływa wysokość pomieszczeń.
199,34 m2
Powierzchnia całkowita
Suma powierzchni całkowitych wszystkich kondygnacji (w tym znajdujących się całkowicie lub częściowo poniżej poziomu terenu) mierzona po zewnętrznym obrysie ścian (wraz z ociepleniem) oraz wszystkich elementów wykraczających poza kubaturę, np. tarasy, schody zewnętrzne, balkony, podcienie, zjazdy do garaży, itp.
259 m2
Powierzchnia dodatkowa
Dodatkowe powierzchnie niewliczane do powierzchni użytkowej: piwnica + garaż + kotłownia + strych + poddasze do adaptacji.
113,8 m2
Powierzchnia garażu
32,42 m2
Kąt nachylenia dachu
35°
Kubatura
Objętość budynku liczona wraz z przegrodami zewnętrznymi i wewnętrznymi (ścianami, stropem, dachem i podmurówką)
1019 m3
Wysokość budynku
Wysokość mierzona od poziomu terenu przy wejściu do budynku do najwyższego punktu dachu – kalenicy
7,02 m
Wymiary budynku
23,47 x 16,07 m
Wymiary działki
Wymiary działki (szerokość x głębokość), na której możliwe jest wybudowanie domu. Wynikają one z wymiarów budynku powiększonych o wymagane przepisami odległości poszczególnych elementów budynku od granic działki. Rzeczywistą odległość od drogi należy sprawdzić i dostosować do wymogów zawartych w MPZA lub WZ
31,47 x 24,07 m
Pokoje (z salonem)
Liczba wszystkich pokoi
5
Łazienki i wc
Suma łazienek i wc
3
Miejsca postojowe
Suma miejsc postojowych (garaż + wiata garażowa)
2
Sezonowość
Całoroczny
REKLAMA

Opis projektu

Projekt domu Willa Parkowa 6 D jest wersją popularnego projektu Willa Parkowa 6, tym razem jest to wariant D - dom o zmniejszonej o około 50 m2 powierzchni, o mniejszej powierzchni zabudowy i wymiarach zewnętrznych. Willa mimo zmniejszonych wymiarów zachowuje wszystkie rozwiązania funkcjonalne i estetyczne pierwotnego budynku. Willa Parkowa 6 D to komfortowa podmiejska mini-rezydencja, o stylowej architekturze, łącząca w sobie klasyczną estetykę, z nowocześnie zaprojektowanym wnętrzem. Budynek zaprojektowany jest w kształcie litery „L”, z dodatkowo dobudowaną częścią garażową. Bryła budynku tworzy dwa wewnętrzne dziedzińce. Frontowy od strony garażu - dzięki czemu brama garażowa jest wepchnięta wgłąb działki i oddzielona od reprezentacyjnego wejścia. Drugi wewnętrzny dziedziniec od strony ogrodowej, gdzie boczne ściany tworzą wewnętrzne patio z tarasem i ciekawym narożnym wyjściem z salonu do ogrodu. Front domu zdobi elegancki portyk wejściowy, z wysokimi drzwiami zakończonymi łukowym naświetlem. Dodatkowym elementem zdobiącym elewację frontową jest szerokie piękne narożne okno kuchenne z wykuszem. Od strony ogrodowej pierwsze skrzypce gra duże okno z salonu na taras, z łukowym naświetlem łączącym dwukondygnacyjny salon z pięknie zadaszonym podcieniem. Wnętrze domu zaprojektowano wokół centralnie ustawionego salonu, do którego wchodzimy z przedsionka i holu. Salon dzieli się na dwie części - wypoczynkową z kanapami ustawionymi naprzeciwko pięknie wyeksponowanej ściany kominkowo – telewizyjnej, oraz część jadalnianą z wygodnym stołem. Po przeciwnej stronie domu za ścianą kominkową znajduje się piękna kuchnia ze stołem do szybkich codziennych posiłków. Kuchnia łączy się funkcjonalnie z częścią techniczno-gospodarczą domu - z pomieszczeniem pralni, garażem i kotłownią. Dzięki temu chodzenie z zakupami z garażu będzie ułatwione. W dwóch skrajnych skrzydłach budynku zaprojektowano sypialnie, rozdzielając je na część z sypialniami dziecięcymi z łazienką, oraz na oddzielną część z sypialnią rodziców – z własną garderobą i łazienką. Obok sypialni master przewidziano dodatkowy pokój – gabinet. Całość funkcji użytkowej mieści się na parterze domu, ale nad parterem mamy jeszcze do dyspozycji bardzo ładną przestrzeń strychową, którą można pozostawić jako strych, lub zaadaptować na dodatkowe poddasze użytkowe. Może tutaj być pozostawiona jedna duża otwarta przestrzeń, lub można wydzielić pokoje - dowolnie, wedle inwencji właścicieli. Nad częścią garażową zaprojektowano wydzielony strych -magazyn. Budynek zaprojektowano z wykorzystaniem nowoczesnych materiałów i technologii. Dom, dzięki dobrym izolacjom i wydajnym instalacjom jest energooszczędny i będzie niedrogi w późniejszym utrzymaniu. Willa Parkowa 6D to doskonała propozycja dla osób szukających nietuzinkowej oryginalnej architektury. Marzących o reprezentacyjnej willi, ale bez niepotrzebnej ekstrawagancji i przesady. Zapraszamy ! Zapraszamy do zapoznania się z pozostałymi projektami domów z serii parkowych: (Willa Parkowa), (Willa Parkowa 2), (Willa Parkowa 3), (Willa Parkowa 4), (Willa Parkowa 5), (Willa Parkowa B), (Willa Parkowa C), (Willa Parkowa D). Projekty są również dostępne w odbiciu lustrzanym.

Koszty

Orientacyjne koszty budowy netto - wycena wskaźnikowa Ceny aktualne na: IV kwartał 2025
Jak dokonujemy wyliczeń? icon arrow
Razem (etapy 1-3): 760 500 zł
1. Stan zero
Koszt etapu 155 000 zł
Zakres prac

wytyczenie budynku i roboty ziemne; ławy i stopy fundamentowe; ściany podziemne z izolacjami cieplnymi i przeciwwilgociowymi

2. Stan surowy otwarty
Koszt etapu + 504 600 zł
Zakres prac

ściany murowane zewnętrzne i wewnętrzne; stropy i schody wewnętrzne; konstrukcja dachu z pokryciem, obróbkami, rynnami i rurami spustowymi; podłoża pod posadzki ( np. chudy beton)

3. Stan surowy zamknięty
Koszt etapu + 101 000 zł
Zakres prac

Stan zero (wytyczenie budynku i roboty ziemne; ławy i stopy fundamentowe; ściany podziemne z izolacjami cieplnymi i przeciwwilgociowymi) oraz stan surowy (ściany murowane z zewnętrzne i wewnętrzne; stropy i schody wewnętrzne, konstrukcja dachu z pokryciem, obróbkami, rynnami i rurami spustowymi; podłoża pod posadzki (np. chudy beton), okna i drzwi zewnętrzne; bramy garażowe; warstwy wyrównawcze pod posadzki na gruncie i na stropie z izolacjami cieplnymi i przeciwwilgociowymi).

Razem (etapy 1-3): 760 500 zł
4. Instalacje elektryczne
Koszt etapu od 62,40 do 219,70 zł/m2

*

Zakres prac

wewnętrzna instalacja oświetleniowa; instalacja gniazd wtykowych; instalacja siły oraz instalacja odgromowa i inne wewnętrzne instalacje teletechniczne

5. Instalacje sanitarne
Koszt etapu od 232,70 do 910 zł/m2

**

Zakres prac

wewnętrzna instalacja wod. - kan. z przyborami sanitarnymi i bateriami; instalacja c.o. z kotłem i grzejnikami, bez kominka; instalacja gazowa bez osprzętu kuchennego; wentylacja mechaniczna ( jeśli występuje)

6. Wykończenie zewnętrzne
Koszt etapu od 126,10 do 638,30 zł/m2

***

Zakres prac

system dociepleń i tynki zewnętrzne z malowaniem; okładziny elewacyjne; balustrady, parapety zewnętrzne i inne roboty zewnętrzne np. taras, opaski wokół domu, schody zewnętrzne

7. Wykończenie wewnętrzne
Koszt etapu od 429 do 878,80 zł/m2

***

Zakres prac

tynki wewnętrzne, drzwi i okna wewnętrzne, lekkie ścianki działowe, roboty malarskie, posadzki i inne prace wykończeniowe

* w zależności od ilości punktów elektrycznych na 1m2

** w zależności od ilości punktów sanitarnych na 1m2 oraz ilości (odległości) instalacji rurowej

*** w zależności od rodzaju użytych meteriałów i specyfikacji wykończenia

Zmiany w projekcie

Zobacz zakres zmian, które możesz wprowadzić, w tym projekcie bez zgody autora.
Lista możliwych zmian

Jeśli zmiany, które chcesz wprowadzić nie są ujęte w powyższym zestawieniu, skontaktuj się z nami. Nasz architekt przeanalizuje i doradzi, które z Twoich propozycji warto wdrożyć. O zgodę na zmiany możesz wystąpić nie tylko w momencie zakupu projektu, ale także później i otrzymasz ją bezpłatnie w ciągu kilku dni.

Pliki do pobrania

Zestawienie materiałówpdf Pobierz
Rysunki szczegółowepdf Pobierz

Dokumentacja (zawartość pakietu projektowego)

Dodatki

Pakiet dodatków, który otrzymasz razem z projektem

addon
Teczka inwestora
Do przechowywania niezbędnej dokumentacji
addon
Kupony rabatowe na zakupy
Dzięki którym zaoszczędzisz nawet kilkanaście tysięcy złotych.
addon
Projekty małej architektury
Wybudujesz samodzielnie m.in. domek dla dzieci czy altanę z grillem.
Pamiętaj
dostawa
Wysyłkę projektu ze wszystkimi dodatkami na terenie Polski bierzemy na siebie. Ty wybierasz, gdzie odbierzesz swój projekt. Masz do wyboru kuriera DPD lub punkty Paczkomat InPost 24/7.
zwroty

Masz 30 dni na zwrot i 365 dni na wymianę projektu

Inspiracje

Wnętrza
Wszystkie