+48 22 59 05 000

pn.-pt. 8-20

Kontakt i pomoc^
Kontakt i pomoc
Zamów rozmowę
Umów wideorozmowę
Napisz do nas
Pomoc w kredycie
Bezpłatna analiza działki
logo
ulubione 0
REKLAMA
REKLAMA
AL114

Tesla

wersja lustrzana
Kupując u nas, zyskujesz więcej

Dodatki

Atrakcyjne rabaty

Kompleksowe wsparcie

Gwarancja najniższej ceny

Wygodne zakupy

Zgoda na zmiany w projekcie

Szczegółowa dokumentacja

Rzuty
Działka
Parametry
Podobne
Zmiany
Dokumentacja
Dodatki
REKLAMA

Rzuty, przekrój, elewacje

Parter 88,39 m2
Wersja lustrzana
Pomieszczenie Użytkowa
1
przedsionek
3,93 m2
2
hol
6,73 m2
3
spiżarnia
5,34 m2
4
pokój dzienny + kuchnia
33,02 m2
5
sypialnia
9,44 m2
6
sypialnia
11,95 m2
7
sypialnia
11,14 m2
8
łazienka
6,84 m2
Razem 88,39 m2

W nawiasach podano powierzchnie pomieszczenia netto

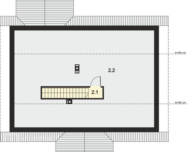
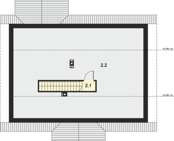
Poddasze
Wersja lustrzana
Pomieszczenie Użytkowa
1
komunikacja
1,08 m2
2
poddasze do adaptacji (89,68)
46,41 m2

W nawiasach podano powierzchnie pomieszczenia netto

Przekrój
Wersja lustrzana
Przekrój
Kąt nachylenia dachu 35°
Wysokość budynku 7,37 m
Elewacje
Wersja lustrzana
Elewacja 1
Elewacja 1
Elewacja 2
Elewacja 3
Elewacja 4
REKLAMA

Działka

Wybór działki to jedna z ważniejszych decyzji poprzedzających budowę wymarzonego domu. Oczywiście najważniejsza jest jej lokalizacja, ale trzeba także przeanalizować lokalne ograniczenia wyszczególnione w miejscowym planie zagospodarowania przestrzennego lub w warunkach zabudowy. Często zapisy w w/w dokumentach uniemożliwiają budowę wybranego projektu i trzeba szukać dalej.

Ważne jest także usytuowanie działki i domu względem stron świata, gdyż to właśnie decyduje o stopniu nasłonecznienia poszczególnych pomieszczeń. Dlatego każdy projekt oferujemy w dwóch wersjach: podstawowej oraz lustrzanej, aby można było wybrać najkorzystniejszy układ pomieszczeń względem stron świata, a także względem ukształtowania krajobrazu w otoczeniu działki.

Wymiary działki
Wymiary działki (szerokość x głębokość), na której możliwe jest wybudowanie domu. Wynikają one z wymiarów budynku powiększonych o wymagane przepisami odległości poszczególnych elementów budynku od granic działki. Rzeczywistą odległość od drogi należy sprawdzić i dostosować do wymogów zawartych w MPZA lub WZ.
19.54 x 19.44 m
Wymiary działki po obrocie domu o 90°
Wymiary działki po adaptacji – obrót o 90 st.
Wymiary (szerokość x głębokość) działki, na której możliwe jest wybudowanie domu, po obróceniu budynku o 90 st. (przy założeniu, że taka zmiana jest możliwa i nie wpłynie niekorzystnie na układ funkcjonalny działki oraz budynku mieszkalnego). Wynikają z wymiarów budynku powiększonych o wymagane przepisami odległości poszczególnych elementów budynku od granic działki. Rzeczywistą odległość od drogi należy sprawdzić i dostosować do wymogów zawartych w MPZA lub WZ.
19.44 x 19.54 m
Przekrój
Wersja lustrzana

Parametry

W dokumentacji uwzględniono dwa źródła ciepła (kocioł na gaz i kocioł na paliwo stałe) oraz dwa systemy wentylacji (wentylację grawitacyjną i wentylację mechaniczną z rekuperacją). Wyboru opcji należy dokonać na etapie adaptacji projektu.

Dane Techniczne
Technologia i materiały
Parametry cieplne
Powierzchnia użytkowa
Suma powierzchni pomieszczeń mierzona po wewnętrznym obrysie ścian. Na jej wielkość ma wpływ wysokość pomieszczenia i jest liczona: – w 100% – przy wysokości w świetle powyżej 2,2 m, – w 50% – przy wysokości między 1,4 m a 2,2 m, – pomija się – przy wysokości poniżej 1,4 m. Do powierzchni użytkowej domu nie dolicza się powierzchni niektórych pomieszczeń, np. piwnicy, garażu, kotłowni, strychu.
88,39 m2
Powierzchnia zabudowy
Powierzchnia mierzona po obrysie zewnętrznych krawędzi wykończonego budynku z uwzględnieniem powierzchni nadwieszonych (np. wykusz). Nie dolicza się do niej elementów drugorzędnych (np. schodów zewnętrznych, daszków, ramp) oraz elementów niewystających ponad powierzchnię terenu
112,11 m2
Powierzchnia netto
Powierzchnia wszystkich pomieszczeń budynku mierzona na poziomie podłogi, po wewnętrznym obrysie ścian w stanie wykończonym. Na jej wartość nie wpływa wysokość pomieszczeń.
179,15 m2
Powierzchnia dodatkowa
Dodatkowe powierzchnie niewliczane do powierzchni użytkowej: piwnica + garaż + kotłownia + strych + poddasze do adaptacji.
46,41 m2
Powierzchnia dachu
184,38 m2
Kąt nachylenia dachu
35°
Kubatura
Objętość budynku liczona wraz z przegrodami zewnętrznymi i wewnętrznymi (ścianami, stropem, dachem i podmurówką)
594,76 m3
Wysokość budynku
Wysokość mierzona od poziomu terenu przy wejściu do budynku do najwyższego punktu dachu – kalenicy
7,37 m
Wymiary budynku
12,54 x 8,94 m
Wymiary działki
Wymiary działki (szerokość x głębokość), na której możliwe jest wybudowanie domu. Wynikają one z wymiarów budynku powiększonych o wymagane przepisami odległości poszczególnych elementów budynku od granic działki. Rzeczywistą odległość od drogi należy sprawdzić i dostosować do wymogów zawartych w MPZA lub WZ
19,54 x 19,44 m
Pokoje (z salonem)
Liczba wszystkich pokoi
4
Łazienki i wc
Suma łazienek i wc
1
Sezonowość
Całoroczny
REKLAMA

Opis projektu

Tesla to niewielki dom parterowy, który doskonale nadaje się dla 3-4 osobowej rodziny. Jego zaletami są: funkcjonalność, prosta bryła budynku, niskie koszty budowy i późniejszej eksploatacji, oraz możliwość adaptacji poddasza.

Wnętrze domu zostało podzielone na dwie strefy dzienną i nocną. W ciągu dnia mieszkańcy mogą relaksować się w przestronnym, dobrze oświetlonym salonie, połączonym z otwartą kuchnią, w sąsiedztwie której znajduje się spora kotłownia, pełniącą jednocześnie rolę spiżarni. Strefa nocna to 3 ustawne pokoje oraz duża, jasna łazienka, w której przewidziano miejsce na wannę, prysznic oraz pralkę. W salonie zaprojektowano, schody drewniane prowadzące na poddasze, które w razie potrzeby może zostać zaadaptowane na studio, pokój hobby, lub dodatkowe pokoje dla mieszkańców. W projekcie przewidziano strop żelbetowy, co daje możliwość dowolnej aranżacji przestrzeni na poddaszu włącznie z doprojektowaniem dodatkowej łazienki.

Dom posiada tradycyjną elewacje, którą można wykończyć także w nowoczesny sposób, a zadaszone wejście i taras dodają mu uroku i charakteru. Projekt dostępny w wersji lustrzanej.
REKLAMA

Zmiany w projekcie

Zobacz zakres zmian, które możesz wprowadzić, w tym projekcie bez zgody autora.
Lista możliwych zmian

Jeśli zmiany, które chcesz wprowadzić nie są ujęte w powyższym zestawieniu, skontaktuj się z nami. Nasz architekt przeanalizuje i doradzi, które z Twoich propozycji warto wdrożyć. O zgodę na zmiany możesz wystąpić nie tylko w momencie zakupu projektu, ale także później i otrzymasz ją bezpłatnie w ciągu kilku dni.

Dokumentacja (zawartość pakietu projektowego)

Dodatki

Pakiet dodatków, który otrzymasz razem z projektem

addon
Teczka inwestora
Do przechowywania niezbędnej dokumentacji
addon
Kupony rabatowe na zakupy
Dzięki którym zaoszczędzisz nawet kilkanaście tysięcy złotych.
addon
Projekty małej architektury
Wybudujesz samodzielnie m.in. domek dla dzieci czy altanę z grillem.
Pamiętaj
dostawa
Wysyłkę projektu ze wszystkimi dodatkami na terenie Polski bierzemy na siebie. Ty wybierasz, gdzie odbierzesz swój projekt. Masz do wyboru kuriera DPD lub punkty Paczkomat InPost 24/7.
zwroty

Masz 30 dni na zwrot i 365 dni na wymianę projektu