+48 22 59 05 000

pn.-pt. 8-20

Kontakt i pomoc^
Kontakt i pomoc
Zamów rozmowę
Umów wideorozmowę
Napisz do nas
Pomoc w kredycie
Bezpłatna analiza działki
logo
ulubione 0
REKLAMA
REKLAMA
MG0420

Rezydencja z widokiem

wersja lustrzana
Kupując u nas, zyskujesz więcej

Dodatki

Atrakcyjne rabaty

Kompleksowe wsparcie

Gwarancja najniższej ceny

Wygodne zakupy

Zgoda na zmiany w projekcie

Szczegółowa dokumentacja

Rzuty
Działka
Parametry
Koszty
Zmiany
Pliki do pobrania
Dokumentacja
Dodatki
Inspiracje
REKLAMA

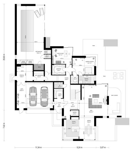
Rzuty, przekrój, elewacje

Parter 299,43 m2
Wersja lustrzana
Pomieszczenie Użytkowa
1
przedsionek
4,9 m2
2
hol
20,52 m2
3
szatnia
4,88 m2
4
wc
3,07 m2
5
korytarz
9,89 m2
6
basen
103,41 m2
7
wc
1,63 m2
8
garderoba
7,85 m2
9
pokój
18,71 m2
10
sypialnia
22,17 m2
11
garderoba
3,64 m2
12
łazienka
7,54 m2
13
pokój dzienny
50,08 m2
14
jadalnia
19,98 m2
15
kuchnia
18,42 m2
16
spiżarnia
2,74 m2
Razem 299,43 m2
17
pom. gosp.
5,74 m2
18
kotłownia
14,62 m2
19
garaż
54,6 m2

W nawiasach podano powierzchnie pomieszczenia netto

Piętro 208,14 m2
Wersja lustrzana
Pomieszczenie Użytkowa
1
hol
26,25 m2
2
sypialnia
20,44 m2
3
sypialnia
19,89 m2
4
łazienka
4,75 m2
5
garderoba
2,05 m2
6
sypialnia
21,88 m2
7
garderoba
2,2 m2
8
łazienka
4,08 m2
9
łazienka
8,96 m2
10
łazienka
7,03 m2
11
sypialnia
22,03 m2
12
sypialnia
24,34 m2
13
pom. rekreacyjne (88,97)
44,24 m2
Razem 208,14 m2

W nawiasach podano powierzchnie pomieszczenia netto

Poddasze 6,37 m2
Wersja lustrzana
Pomieszczenie Użytkowa
1
antresola (16,61)
6,37 m2
Razem 6,37 m2
2
strych (132,15)
5,63 m2

W nawiasach podano powierzchnie pomieszczenia netto

Elewacje
Wersja lustrzana
Elewacja 1
Elewacja 1
Elewacja 2
Elewacja 3
Elewacja 4
REKLAMA

Działka

Wybór działki to jedna z ważniejszych decyzji poprzedzających budowę wymarzonego domu. Oczywiście najważniejsza jest jej lokalizacja, ale trzeba także przeanalizować lokalne ograniczenia wyszczególnione w miejscowym planie zagospodarowania przestrzennego lub w warunkach zabudowy. Często zapisy w w/w dokumentach uniemożliwiają budowę wybranego projektu i trzeba szukać dalej.

Ważne jest także usytuowanie działki i domu względem stron świata, gdyż to właśnie decyduje o stopniu nasłonecznienia poszczególnych pomieszczeń. Dlatego każdy projekt oferujemy w dwóch wersjach: podstawowej oraz lustrzanej, aby można było wybrać najkorzystniejszy układ pomieszczeń względem stron świata, a także względem ukształtowania krajobrazu w otoczeniu działki.

Wymiary działki
Wymiary działki (szerokość x głębokość), na której możliwe jest wybudowanie domu. Wynikają one z wymiarów budynku powiększonych o wymagane przepisami odległości poszczególnych elementów budynku od granic działki. Rzeczywistą odległość od drogi należy sprawdzić i dostosować do wymogów zawartych w MPZA lub WZ.
32.68 x 41.05 m
Przekrój
Wersja lustrzana

Parametry

Dane Techniczne
Technologia i materiały
Parametry cieplne
Powierzchnia użytkowa
Suma powierzchni pomieszczeń mierzona po wewnętrznym obrysie ścian. Na jej wielkość ma wpływ wysokość pomieszczenia i jest liczona: – w 100% – przy wysokości w świetle powyżej 2,2 m, – w 50% – przy wysokości między 1,4 m a 2,2 m, – pomija się – przy wysokości poniżej 1,4 m. Do powierzchni użytkowej domu nie dolicza się powierzchni niektórych pomieszczeń, np. piwnicy, garażu, kotłowni, strychu.
523,34 m2
Powierzchnia zabudowy
Powierzchnia mierzona po obrysie zewnętrznych krawędzi wykończonego budynku z uwzględnieniem powierzchni nadwieszonych (np. wykusz). Nie dolicza się do niej elementów drugorzędnych (np. schodów zewnętrznych, daszków, ramp) oraz elementów niewystających ponad powierzchnię terenu
452,32 m2
Powierzchnia netto
Powierzchnia wszystkich pomieszczeń budynku mierzona na poziomie podłogi, po wewnętrznym obrysie ścian w stanie wykończonym. Na jej wartość nie wpływa wysokość pomieszczeń.
627,26 m2
Powierzchnia całkowita
Suma powierzchni całkowitych wszystkich kondygnacji (w tym znajdujących się całkowicie lub częściowo poniżej poziomu terenu) mierzona po zewnętrznym obrysie ścian (wraz z ociepleniem) oraz wszystkich elementów wykraczających poza kubaturę, np. tarasy, schody zewnętrzne, balkony, podcienie, zjazdy do garaży, itp.
702,82 m2
Powierzchnia dodatkowa
Dodatkowe powierzchnie niewliczane do powierzchni użytkowej: piwnica + garaż + kotłownia + strych + poddasze do adaptacji.
74,85 m2
Powierzchnia garażu
54,6 m2
Kubatura
Objętość budynku liczona wraz z przegrodami zewnętrznymi i wewnętrznymi (ścianami, stropem, dachem i podmurówką)
2496 m3
Wysokość budynku
Wysokość mierzona od poziomu terenu przy wejściu do budynku do najwyższego punktu dachu – kalenicy
9,5 m
Wymiary budynku
22,65 x 33,05 m
Wymiary działki
Wymiary działki (szerokość x głębokość), na której możliwe jest wybudowanie domu. Wynikają one z wymiarów budynku powiększonych o wymagane przepisami odległości poszczególnych elementów budynku od granic działki. Rzeczywistą odległość od drogi należy sprawdzić i dostosować do wymogów zawartych w MPZA lub WZ
32,68 x 41,05 m
Pokoje (z salonem)
Liczba wszystkich pokoi
8
Łazienki i wc
Suma łazienek i wc
7
Miejsca postojowe
Suma miejsc postojowych (garaż + wiata garażowa)
2
Sezonowość
Całoroczny
REKLAMA

Opis projektu

Projekt domu Rezydencja z widokiem to projekt okazałej rezydencji, największego z serii „Domów z widokiem”. Jest to luksusowy, superkomfortowy dom jednorodzinny dla cztero-, a nawet sośmioosobowej rodziny. To piękna, rozłożysta willa z mnóstwem przestrzeni i z częścią rekreacyjno - basenową. Budynek powtarza rozwiązania i detale popularnego i modnego wśród Klientów „Domu z widokiem”, ale jest to wydanie superluksusowe tego projektu. Architektura : rdzeniem domu jest piętrowa dwukondygnacyjna bryła części mieszkalnej. Wokół niej dołączono parterowe części z poddaszami. Od frontu jest to część nad kuchnią i jadalnią, oraz skrzydło garaży i pomieszczeń gospodarczych. Od strony ogrodu natomiast jest to dodatkowe skrzydło zawierające salę basenową, oraz podcienie i tarasy przy salonie. Motywem przewodnim w architekturze rezydencji są duże narożne okna, podział elewacji na poziome pasy wykończone kontrastującymi materiałami, oraz układ łagodnych wielospadowych dachów, przykrywających piętrową i parterowe bryły, tworząc ciekawą kompozycję. Projekt domu Rezydencja z widokiem ma bardzo dużą powierzchnię, jednak dzięki właściwym proporcjom i zróżnicowaniu brył nie przytłacza. Z pewnością robi wrażenie luksusowej rezydencji, ale nie straszy swoją skalą. Do domu wchodzimy przez przeszklony narożnik z szerokimi reprezentacyjnymi drzwiami wejściowymi wprost do przedsionka. Stamtąd przeszklonymi drzwiami do pięknego holu otwierającego się na salon. Jednoprzestrzenne wnętrze holu, salonu, szerokich schodów, jadalni i kuchni tworzą wspólną przestrzeń dzienną domowników. Są jednocześnie doskonałą oprawą dla spotkań w większym i mniejszym gronie gości. Przestronna kuchnia z wyspą i pięknym narożnym oknem będzie z kolei dobrym miejscem do szybkich interakcji między domownikami w biegu dnia. Na parterze obok części dziennej przewidziano miejsce na apartament rodziców, składający się z sypialni, łazienki, dwóch garderób i gabinetu do pracy. Tą część domu można oczywiście dowolnie zaaranżować - według potrzeb inwestorów. Przy wejściu do domu mamy naprawdę duży garaż, oraz dodatkową przestrzeń gospodarczą z pomieszczeniem technicznym na instalacje. Za tą częścią domu znajduje się sala basenowa, z dużą 10-ciometrową niecką, sauną, natryskiem, oraz salką rekreacyjno-sportową na poddaszu-antresoli nad basenem. Wszystkie pokoje mają piękne okna na okalające dom tarasy. Na piętrze zaprojektowano aż pięć pokoi, dwie łazienki i pralnię. Z piętra można też przejść bez problemu do pokoju sportowego. Podziały piętra na pomieszczenia i nadanie pokojom innych funkcji są oczywiście możliwe. Przy monolitycznych żelbetowych stropach domu można właściwie dowolnie przestawiać ścianki działowe - wedle życzenia i wyobraźni właścicieli. Projekt domu Rezydencja z widokiem to z pewnością propozycja dla osób planujących budowę dużego domu. Taka willa to dla wielu osób spełnienie marzeń. Dom nie będzie najtańszy, ale jeśli można sobie na to pozwolić, to czy nie warto czasem podarować sobie „odrobinę” luksusu, po to żeby piękniej żyć i mieszkać ? Zapraszamy !

Koszty

Orientacyjne koszty budowy netto - wycena wskaźnikowa Ceny aktualne na: IV kwartał 2025
Jak dokonujemy wyliczeń? icon arrow
Razem (etapy 1-3): 1 622 300 zł
1. Stan zero
Koszt etapu 269 800 zł
Zakres prac

wytyczenie budynku i roboty ziemne; ławy i stopy fundamentowe; ściany podziemne z izolacjami cieplnymi i przeciwwilgociowymi

2. Stan surowy otwarty
Koszt etapu + 1 114 600 zł
Zakres prac

ściany murowane zewnętrzne i wewnętrzne; stropy i schody wewnętrzne; konstrukcja dachu z pokryciem, obróbkami, rynnami i rurami spustowymi; podłoża pod posadzki ( np. chudy beton)

3. Stan surowy zamknięty
Koszt etapu + 238 000 zł
Zakres prac

Stan zero (wytyczenie budynku i roboty ziemne; ławy i stopy fundamentowe; ściany podziemne z izolacjami cieplnymi i przeciwwilgociowymi) oraz stan surowy (ściany murowane z zewnętrzne i wewnętrzne; stropy i schody wewnętrzne, konstrukcja dachu z pokryciem, obróbkami, rynnami i rurami spustowymi; podłoża pod posadzki (np. chudy beton), okna i drzwi zewnętrzne; bramy garażowe; warstwy wyrównawcze pod posadzki na gruncie i na stropie z izolacjami cieplnymi i przeciwwilgociowymi).

Razem (etapy 1-3): 1 622 300 zł
4. Instalacje elektryczne
Koszt etapu od 62,40 do 219,70 zł/m2

*

Zakres prac

wewnętrzna instalacja oświetleniowa; instalacja gniazd wtykowych; instalacja siły oraz instalacja odgromowa i inne wewnętrzne instalacje teletechniczne

5. Instalacje sanitarne
Koszt etapu od 232,70 do 910 zł/m2

**

Zakres prac

wewnętrzna instalacja wod. - kan. z przyborami sanitarnymi i bateriami; instalacja c.o. z kotłem i grzejnikami, bez kominka; instalacja gazowa bez osprzętu kuchennego; wentylacja mechaniczna ( jeśli występuje)

6. Wykończenie zewnętrzne
Koszt etapu od 126,10 do 638,30 zł/m2

***

Zakres prac

system dociepleń i tynki zewnętrzne z malowaniem; okładziny elewacyjne; balustrady, parapety zewnętrzne i inne roboty zewnętrzne np. taras, opaski wokół domu, schody zewnętrzne

7. Wykończenie wewnętrzne
Koszt etapu od 429 do 878,80 zł/m2

***

Zakres prac

tynki wewnętrzne, drzwi i okna wewnętrzne, lekkie ścianki działowe, roboty malarskie, posadzki i inne prace wykończeniowe

* w zależności od ilości punktów elektrycznych na 1m2

** w zależności od ilości punktów sanitarnych na 1m2 oraz ilości (odległości) instalacji rurowej

*** w zależności od rodzaju użytych meteriałów i specyfikacji wykończenia

Zmiany w projekcie

Zobacz zakres zmian, które możesz wprowadzić, w tym projekcie bez zgody autora.
Lista możliwych zmian

Jeśli zmiany, które chcesz wprowadzić nie są ujęte w powyższym zestawieniu, skontaktuj się z nami. Nasz architekt przeanalizuje i doradzi, które z Twoich propozycji warto wdrożyć. O zgodę na zmiany możesz wystąpić nie tylko w momencie zakupu projektu, ale także później i otrzymasz ją bezpłatnie w ciągu kilku dni.

Pliki do pobrania

Zestawienie materiałówpdf Pobierz
Rysunki szczegółowepdf Pobierz

Dokumentacja (zawartość pakietu projektowego)

Dodatki

Pakiet dodatków, który otrzymasz razem z projektem

addon
Prezent na Święta: Karta 200 zł do Zalando!
Święta tuż-tuż, a my mamy dla Ciebie prezent, który umili czas oczekiwania!
addon
Teczka inwestora
Do przechowywania niezbędnej dokumentacji
addon
Kupony rabatowe na zakupy
Dzięki którym zaoszczędzisz nawet kilkanaście tysięcy złotych.
addon
Projekty małej architektury
Wybudujesz samodzielnie m.in. domek dla dzieci czy altanę z grillem.
Pamiętaj
dostawa
Wysyłkę projektu ze wszystkimi dodatkami na terenie Polski bierzemy na siebie. Ty wybierasz, gdzie odbierzesz swój projekt. Masz do wyboru kuriera DPD lub punkty Paczkomat InPost 24/7.
zwroty

Masz 30 dni na zwrot i 365 dni na wymianę projektu

Inspiracje

Wnętrza
Wszystkie
Pokój dzienny
Kuchnia