+48 22 59 05 000

pn.-pt. 8-20

Kontakt i pomoc^
Kontakt i pomoc
Zamów rozmowę
Umów wideorozmowę
Napisz do nas
Pomoc w kredycie
Bezpłatna analiza działki
logo
ulubione 0
REKLAMA
REKLAMA
MG0264

Rezydencja Parkowa 2

wersja lustrzana
Kupując u nas, zyskujesz więcej

Dodatki

Atrakcyjne rabaty

Kompleksowe wsparcie

Gwarancja najniższej ceny

Wygodne zakupy

Zgoda na zmiany w projekcie

Szczegółowa dokumentacja

Rzuty
Działka
Parametry
Koszty
Podobne
Zmiany
Pliki do pobrania
Dokumentacja
Dodatki
Inspiracje
REKLAMA

Rzuty, przekrój, elewacje

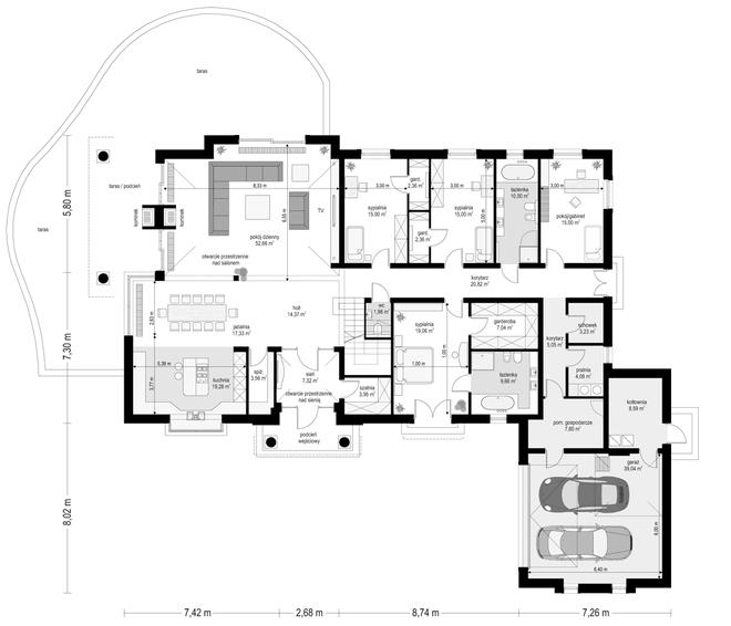
Parter 256,79 m2
Wersja lustrzana
Pomieszczenie Użytkowa
1
przedsionek
7,32 m2
2
hol
14,37 m2
3
kuchnia
19,28 m2
4
spiżarnia
3,56 m2
5
jadalnia
17,33 m2
6
pokój dzienny
52,66 m2
7
sypialnia
15,0 m2
8
garderoba
2,36 m2
9
garderoba
2,36 m2
10
sypialnia
15,0 m2
11
łazienka
10,0 m2
12
gabinet
15,0 m2
13
korytarz
20,82 m2
14
wc
1,98 m2
15
sypialnia
19,06 m2
16
garderoba
7,04 m2
17
łazienka
9,56 m2
18
szatnia
3,95 m2
19
korytarz
5,05 m2
20
schowek
3,23 m2
21
pralnia
4,06 m2
22
pom. gosp.
7,8 m2
Razem 256,79 m2
23
kotłownia
8,59 m2
24
garaż
39,04 m2

W nawiasach podano powierzchnie pomieszczenia netto

Poddasze
Wersja lustrzana

do indywidualnej adaptacji

Pomieszczenie Użytkowa
1
strych (129,15)
70,78 m2

W nawiasach podano powierzchnie pomieszczenia netto

Elewacje
Wersja lustrzana
Elewacja 1
Elewacja 1
Elewacja 2
Elewacja 3
Elewacja 4
REKLAMA

Działka

Wybór działki to jedna z ważniejszych decyzji poprzedzających budowę wymarzonego domu. Oczywiście najważniejsza jest jej lokalizacja, ale trzeba także przeanalizować lokalne ograniczenia wyszczególnione w miejscowym planie zagospodarowania przestrzennego lub w warunkach zabudowy. Często zapisy w w/w dokumentach uniemożliwiają budowę wybranego projektu i trzeba szukać dalej.

Ważne jest także usytuowanie działki i domu względem stron świata, gdyż to właśnie decyduje o stopniu nasłonecznienia poszczególnych pomieszczeń. Dlatego każdy projekt oferujemy w dwóch wersjach: podstawowej oraz lustrzanej, aby można było wybrać najkorzystniejszy układ pomieszczeń względem stron świata, a także względem ukształtowania krajobrazu w otoczeniu działki.

Wymiary działki
Wymiary działki (szerokość x głębokość), na której możliwe jest wybudowanie domu. Wynikają one z wymiarów budynku powiększonych o wymagane przepisami odległości poszczególnych elementów budynku od granic działki. Rzeczywistą odległość od drogi należy sprawdzić i dostosować do wymogów zawartych w MPZA lub WZ.
34.30 x 29.92 m
Przekrój
Wersja lustrzana

Parametry

Dane Techniczne
Technologia i materiały
Parametry cieplne
Powierzchnia użytkowa
Suma powierzchni pomieszczeń mierzona po wewnętrznym obrysie ścian. Na jej wielkość ma wpływ wysokość pomieszczenia i jest liczona: – w 100% – przy wysokości w świetle powyżej 2,2 m, – w 50% – przy wysokości między 1,4 m a 2,2 m, – pomija się – przy wysokości poniżej 1,4 m. Do powierzchni użytkowej domu nie dolicza się powierzchni niektórych pomieszczeń, np. piwnicy, garażu, kotłowni, strychu.
256,91 m2
Powierzchnia zabudowy
Powierzchnia mierzona po obrysie zewnętrznych krawędzi wykończonego budynku z uwzględnieniem powierzchni nadwieszonych (np. wykusz). Nie dolicza się do niej elementów drugorzędnych (np. schodów zewnętrznych, daszków, ramp) oraz elementów niewystających ponad powierzchnię terenu
366,87 m2
Powierzchnia netto
Powierzchnia wszystkich pomieszczeń budynku mierzona na poziomie podłogi, po wewnętrznym obrysie ścian w stanie wykończonym. Na jej wartość nie wpływa wysokość pomieszczeń.
304,42 m2
Powierzchnia całkowita
Suma powierzchni całkowitych wszystkich kondygnacji (w tym znajdujących się całkowicie lub częściowo poniżej poziomu terenu) mierzona po zewnętrznym obrysie ścian (wraz z ociepleniem) oraz wszystkich elementów wykraczających poza kubaturę, np. tarasy, schody zewnętrzne, balkony, podcienie, zjazdy do garaży, itp.
366 m2
Powierzchnia dodatkowa
Dodatkowe powierzchnie niewliczane do powierzchni użytkowej: piwnica + garaż + kotłownia + strych + poddasze do adaptacji.
118,41 m2
Powierzchnia garażu
39,04 m2
Kąt nachylenia dachu
30°
Kubatura
Objętość budynku liczona wraz z przegrodami zewnętrznymi i wewnętrznymi (ścianami, stropem, dachem i podmurówką)
1570 m3
Wysokość budynku
Wysokość mierzona od poziomu terenu przy wejściu do budynku do najwyższego punktu dachu – kalenicy
7,68 m
Wymiary budynku
27,3 x 21,92 m
Wymiary działki
Wymiary działki (szerokość x głębokość), na której możliwe jest wybudowanie domu. Wynikają one z wymiarów budynku powiększonych o wymagane przepisami odległości poszczególnych elementów budynku od granic działki. Rzeczywistą odległość od drogi należy sprawdzić i dostosować do wymogów zawartych w MPZA lub WZ
34,3 x 29,92 m
Pokoje (z salonem)
Liczba wszystkich pokoi
5
Łazienki i wc
Suma łazienek i wc
3
Miejsca postojowe
Suma miejsc postojowych (garaż + wiata garażowa)
2
Sezonowość
Całoroczny
REKLAMA

Opis projektu

Projekt domu Rezydencja parkowa 2 jest nieco mniejszą wersją popularnego projektu Rezydencja parkowa. Projekt jest odpowiedzią na pragnienie wielu Inwestorów, aby zamieszkać w rozległej parterowej willi, na jednej kondygnacji, blisko otaczającego dom ogrodu. Mieszkanie w parterowym domu daje ogromne poczucie komfortu - nie ma wiecznego biegania po schodach. Dom przeznaczony jest dla 4-6cioosobowej rodziny. Wnętrze Rezydencji parkowej 2 podzielono na trzy części : dzienną - dużą otwartą przestrzeń użytkowaną wspólnie przez domowników, część nocną - z sypialniami, łazienkami i garderobami, oraz część gospodarczą - z pomieszczeniami gospodarczymi i wygodnym garażem. Reprezentacyjny salon, połączony z jadalnią, holem i kuchnią tworzy bardzo atrakcyjne wnętrze. Będzie w nim można urządzać fantastyczne przyjęcia z rodziną i znajomymi. Z salonu wychodzimy do ogrodu - przez obszerny podcień z kominkiem, lub bezpośrednio drzwiami balkonowymi na taras tylni. Wygodna część wejściowa – z dużą sienią, holem i eleganckimi schodami zaprasza wchodzące do domu osoby. W części nocnej umieszczono sypialnie - państwa domu i dzieci. Sypialnia rodziców to osobny apartament – z własną łazienką i dużą garderobą. Zaletą domu Rezydencja parkowa 2 jest niewątpliwie niemała część gospodarczo-techniczna, z podwójnym garażem i pomieszczeniami gospodarczymi. Nad parterem przewidziano dużą przestrzeń strychową, którą można zaadaptować na część użytkową. Wówczas uzyskujemy dodatkowe ca 60 m2 powierzchni wnętrza. Architektura zewnętrzna domu nawiązuje do klimatu polskiego dworku w połączeniu z językiem detali zaczerpniętych z amerykańskich, czy francuskich podmiejskich willi. Taki styl architektoniczny zapewni domowi ponadczasowość - budynek nigdy nie stanie się niemodny, nigdy się nie zestarzeje. Projekt domu Rezydencja parkowa 2 jest praktyczną, nowoczesną, „kompaktową” rezydencją na miarę XXI wieku. Pracownia oferuje też wersję domu w odbiciu lustrzanym, oraz inne weresje serii: (Rezydencja Parkowa), (Rezydencja Parkowa 3), (Rezydencja Parkowa 3C), (Rezydencja Parkowa 3D), (Rezydencja Parkowa 4). Uwaga do kosztów realizacji: Wycena zakłada zagospodarowanie strychu na poddasze użytkowe.  Przy pozostawieniu strychu jako nieużytkowego koszt budowy jest niższy  - odpowiednio o:  SSO -  9 170 zł  / SSZ - 21 267 zł  / RW - 28 400 zł / RDPK - 49 667 zł

Koszty

Orientacyjne koszty budowy netto - wycena wskaźnikowa Ceny aktualne na: IV kwartał 2025
Jak dokonujemy wyliczeń? icon arrow
Razem (etapy 1-3): 969 800 zł
1. Stan zero
Koszt etapu 218 900 zł
Zakres prac

wytyczenie budynku i roboty ziemne; ławy i stopy fundamentowe; ściany podziemne z izolacjami cieplnymi i przeciwwilgociowymi

2. Stan surowy otwarty
Koszt etapu + 624 800 zł
Zakres prac

ściany murowane zewnętrzne i wewnętrzne; stropy i schody wewnętrzne; konstrukcja dachu z pokryciem, obróbkami, rynnami i rurami spustowymi; podłoża pod posadzki ( np. chudy beton)

3. Stan surowy zamknięty
Koszt etapu + 126 200 zł
Zakres prac

Stan zero (wytyczenie budynku i roboty ziemne; ławy i stopy fundamentowe; ściany podziemne z izolacjami cieplnymi i przeciwwilgociowymi) oraz stan surowy (ściany murowane z zewnętrzne i wewnętrzne; stropy i schody wewnętrzne, konstrukcja dachu z pokryciem, obróbkami, rynnami i rurami spustowymi; podłoża pod posadzki (np. chudy beton), okna i drzwi zewnętrzne; bramy garażowe; warstwy wyrównawcze pod posadzki na gruncie i na stropie z izolacjami cieplnymi i przeciwwilgociowymi).

Razem (etapy 1-3): 969 800 zł
4. Instalacje elektryczne
Koszt etapu od 62,40 do 219,70 zł/m2

*

Zakres prac

wewnętrzna instalacja oświetleniowa; instalacja gniazd wtykowych; instalacja siły oraz instalacja odgromowa i inne wewnętrzne instalacje teletechniczne

5. Instalacje sanitarne
Koszt etapu od 232,70 do 910 zł/m2

**

Zakres prac

wewnętrzna instalacja wod. - kan. z przyborami sanitarnymi i bateriami; instalacja c.o. z kotłem i grzejnikami, bez kominka; instalacja gazowa bez osprzętu kuchennego; wentylacja mechaniczna ( jeśli występuje)

6. Wykończenie zewnętrzne
Koszt etapu od 126,10 do 638,30 zł/m2

***

Zakres prac

system dociepleń i tynki zewnętrzne z malowaniem; okładziny elewacyjne; balustrady, parapety zewnętrzne i inne roboty zewnętrzne np. taras, opaski wokół domu, schody zewnętrzne

7. Wykończenie wewnętrzne
Koszt etapu od 429 do 878,80 zł/m2

***

Zakres prac

tynki wewnętrzne, drzwi i okna wewnętrzne, lekkie ścianki działowe, roboty malarskie, posadzki i inne prace wykończeniowe

* w zależności od ilości punktów elektrycznych na 1m2

** w zależności od ilości punktów sanitarnych na 1m2 oraz ilości (odległości) instalacji rurowej

*** w zależności od rodzaju użytych meteriałów i specyfikacji wykończenia

Zmiany w projekcie

Zobacz zakres zmian, które możesz wprowadzić, w tym projekcie bez zgody autora.
Lista możliwych zmian

Jeśli zmiany, które chcesz wprowadzić nie są ujęte w powyższym zestawieniu, skontaktuj się z nami. Nasz architekt przeanalizuje i doradzi, które z Twoich propozycji warto wdrożyć. O zgodę na zmiany możesz wystąpić nie tylko w momencie zakupu projektu, ale także później i otrzymasz ją bezpłatnie w ciągu kilku dni.

Pliki do pobrania

Zestawienie materiałówpdf Pobierz
Rysunki szczegółowepdf Pobierz

Dokumentacja (zawartość pakietu projektowego)

Dodatki

Pakiet dodatków, który otrzymasz razem z projektem

addon
Prezent na Święta: Karta 200 zł do Zalando!
Święta tuż-tuż, a my mamy dla Ciebie prezent, który umili czas oczekiwania!
addon
Teczka inwestora
Do przechowywania niezbędnej dokumentacji
addon
Kupony rabatowe na zakupy
Dzięki którym zaoszczędzisz nawet kilkanaście tysięcy złotych.
addon
Projekty małej architektury
Wybudujesz samodzielnie m.in. domek dla dzieci czy altanę z grillem.
Pamiętaj
dostawa
Wysyłkę projektu ze wszystkimi dodatkami na terenie Polski bierzemy na siebie. Ty wybierasz, gdzie odbierzesz swój projekt. Masz do wyboru kuriera DPD lub punkty Paczkomat InPost 24/7.
zwroty

Masz 30 dni na zwrot i 365 dni na wymianę projektu

Inspiracje

Wnętrza
Wszystkie
Pokój dzienny