+48 22 59 05 000

pn.-pt. 8-20

Kontakt i pomoc^
Kontakt i pomoc
Zamów rozmowę
Napisz do nas
Pomoc w kredycie
Bezpłatna analiza działki
logo
ulubione 0
REKLAMA
REKLAMA
MG0880

Przyjemny 8

wersja lustrzana
Rzuty
Działka
Parametry
Podobne
Zmiany
Dokumentacja
Dodatki
Inspiracje
REKLAMA

Rzuty, przekrój, elewacje

Parter 51,94 m2
Wersja lustrzana
Pomieszczenie Użytkowa
1
przedsionek
4,07 m2
2
hol
8,29 m2
3
kuchnia
8,3 m2
4
pokój dzienny + jadalnia
20,53 m2
5
pokój
8,38 m2
6
łazienka
2,37 m2
Razem 51,94 m2
7
kotłownia
3,49 m2
8
garaż
20,64 m2

W nawiasach podano powierzchnie pomieszczenia netto

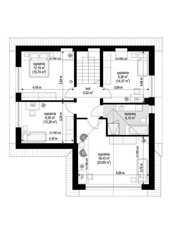
Poddasze 61,42 m2
Wersja lustrzana
Pomieszczenie Użytkowa
1
hol
4,01 m2
2
sypialnia (23,85)
18,43 m2
3
sypialnia (13,28)
9,35 m2
4
sypialnia (15,74)
12,15 m2
5
sypialnia (14,37)
9,38 m2
6
łazienka
8,1 m2
Razem 61,42 m2

W nawiasach podano powierzchnie pomieszczenia netto

Elewacje
Wersja lustrzana
Elewacja 1
Elewacja 1
Elewacja 2
Elewacja 3
Elewacja 4
REKLAMA

Działka

Wybór działki to jedna z ważniejszych decyzji poprzedzających budowę wymarzonego domu. Oczywiście najważniejsza jest jej lokalizacja, ale trzeba także przeanalizować lokalne ograniczenia wyszczególnione w miejscowym planie zagospodarowania przestrzennego lub w warunkach zabudowy. Często zapisy w w/w dokumentach uniemożliwiają budowę wybranego projektu i trzeba szukać dalej.

Ważne jest także usytuowanie działki i domu względem stron świata, gdyż to właśnie decyduje o stopniu nasłonecznienia poszczególnych pomieszczeń. Dlatego każdy projekt oferujemy w dwóch wersjach: podstawowej oraz lustrzanej, aby można było wybrać najkorzystniejszy układ pomieszczeń względem stron świata, a także względem ukształtowania krajobrazu w otoczeniu działki.

Wymiary działki
Wymiary działki (szerokość x głębokość), na której możliwe jest wybudowanie domu. Wynikają one z wymiarów budynku powiększonych o wymagane przepisami odległości poszczególnych elementów budynku od granic działki. Rzeczywistą odległość od drogi należy sprawdzić i dostosować do wymogów zawartych w MPZA lub WZ.
18.82 x 21.64 m
Przekrój
Wersja lustrzana

Parametry

Dane Techniczne
Technologia i materiały
Parametry cieplne
Powierzchnia użytkowa
Suma powierzchni pomieszczeń mierzona po wewnętrznym obrysie ścian. Na jej wielkość ma wpływ wysokość pomieszczenia i jest liczona: – w 100% – przy wysokości w świetle powyżej 2,2 m, – w 50% – przy wysokości między 1,4 m a 2,2 m, – pomija się – przy wysokości poniżej 1,4 m. Do powierzchni użytkowej domu nie dolicza się powierzchni niektórych pomieszczeń, np. piwnicy, garażu, kotłowni, strychu.
113,36 m2
Powierzchnia zabudowy
Powierzchnia mierzona po obrysie zewnętrznych krawędzi wykończonego budynku z uwzględnieniem powierzchni nadwieszonych (np. wykusz). Nie dolicza się do niej elementów drugorzędnych (np. schodów zewnętrznych, daszków, ramp) oraz elementów niewystających ponad powierzchnię terenu
101,27 m2
Powierzchnia netto
Powierzchnia wszystkich pomieszczeń budynku mierzona na poziomie podłogi, po wewnętrznym obrysie ścian w stanie wykończonym. Na jej wartość nie wpływa wysokość pomieszczeń.
155,42 m2
Powierzchnia całkowita
Suma powierzchni całkowitych wszystkich kondygnacji (w tym znajdujących się całkowicie lub częściowo poniżej poziomu terenu) mierzona po zewnętrznym obrysie ścian (wraz z ociepleniem) oraz wszystkich elementów wykraczających poza kubaturę, np. tarasy, schody zewnętrzne, balkony, podcienie, zjazdy do garaży, itp.
179,06 m2
Powierzchnia dodatkowa
Dodatkowe powierzchnie niewliczane do powierzchni użytkowej: piwnica + garaż + kotłownia + strych + poddasze do adaptacji.
24,13 m2
Powierzchnia garażu
20,64 m2
Powierzchnia dachu
175,1 m2
Kąt nachylenia dachu
40°
Kubatura
Objętość budynku liczona wraz z przegrodami zewnętrznymi i wewnętrznymi (ścianami, stropem, dachem i podmurówką)
579 m3
Wysokość budynku
Wysokość mierzona od poziomu terenu przy wejściu do budynku do najwyższego punktu dachu – kalenicy
8,12 m
Wysokość parteru
Podana wartość to wysokość pomieszczeń parteru w stanie wykończonym, mierzona od poziomu posadzki do spodu sufitu.
2,65 m i 2,50 m m
Wymiary budynku
10,82 x 11,34 m
Wymiary działki
Wymiary działki (szerokość x głębokość), na której możliwe jest wybudowanie domu. Wynikają one z wymiarów budynku powiększonych o wymagane przepisami odległości poszczególnych elementów budynku od granic działki. Rzeczywistą odległość od drogi należy sprawdzić i dostosować do wymogów zawartych w MPZA lub WZ
18,82 x 21,64 m
Pokoje (z salonem)
Liczba wszystkich pokoi
6
Łazienki i wc
Suma łazienek i wc
2
Miejsca postojowe
Suma miejsc postojowych (garaż + wiata garażowa)
1
Sezonowość
Całoroczny
REKLAMA

Opis projektu

Projekt domu Przyjemny 8, przeznaczony dla 3-5 osobowej rodziny. Jest to projekt domu parterowego z poddaszem użytkowym, z bryłką w kształcie litery L, przykryty dwuspadowym dachem, z garażem jednostanowiskowym. Architektura budynku łączy w sobie tradycyjną bryłę z nowoczesnymi detalami. Dwuspadowy dach z okapami i szeroką ścianą frontową z pięknym przeszkleniem. Przyjemny 8 jest funkcjonalny, ma spokojną stonowaną, ponadczasową stylistykę. W budynku udało się uzyskać wygodne i funkcjonalne wnętrze pozwalające komfortowe mieszkać minimum czteroosobowej rodzinie.
Na parterze zaprojektowano przestrzeń dzienną salonu, holu i kuchni, kotłownię dostępną z garażu i dodatkowy pokój.
Na poddaszu zaprojektowano cztery sypialnie. Tą nad garażem z racji dużej przestrzeni można przekształcić w pokój fitness lub studio. Poddasze, dzięki wysokiej ścianie kolankowej ma niewielkie skosy.
Na parterze, w pokoju dziennym - szerokie przeszklenie balkonowe otwiera wnętrze na taras i ogród. Daszek nad tarasem, to pergola o konstrukcji drewnianej lub aluminiowej. Można też zastąpić pergolę markizą lub żaglem - dowolnie. Nie jest to element stały budynku. „Przyjemnego 8” zaprojektowaliśmy jako dom maksymalnie prosty i łatwy w budowie. Jego prosta konstrukcja będzie łatwym zadaniem dla dowolnej ekipy. Nie ma tutaj dużych podciągów, podrażających konstrukcję elementów stalowych. Prosta bryła bez udziwnień i dobre izolacje termiczne przegród dają w efekcie dom energooszczędny.
Instalacja c.o. bazowo zasilana jest z kotła gazowego, ale można też zastosować tutaj kocioł na paliwo stałe, albo pompę ciepła. „Przyjemny 8” to doskonała propozycja dla osób planujących budowę niedużego, funkcjonalnego domu, za skończoną określoną kwotę - bez przesady i bujania w obłokach. Dla Inwestorów wolących mieć dom mniejszy, za to lepiej i do końca wykończony. To projekt dla osób pragnących architektury ponadczasowej, osadzonej w tradycji, w nowoczesnym ujęciu, która nie zestarzeje się wraz z odchodzącymi chwilowymi modami.
Projekt dostępny jest, także w wersji odbicia lustrzanego.

REKLAMA

Zmiany w projekcie

Zobacz zakres zmian, które możesz wprowadzić, w tym projekcie bez zgody autora.
Lista możliwych zmian

Jeśli zmiany, które chcesz wprowadzić nie są ujęte w powyższym zestawieniu, skontaktuj się z nami. Nasz architekt przeanalizuje i doradzi, które z Twoich propozycji warto wdrożyć. O zgodę na zmiany możesz wystąpić nie tylko w momencie zakupu projektu, ale także później i otrzymasz ją bezpłatnie w ciągu kilku dni.

Dokumentacja (zawartość pakietu projektowego)

Dodatki

Pakiet dodatków, który otrzymasz razem z projektem

addon
Teczka inwestora
Do przechowywania niezbędnej dokumentacji
addon
Kupony rabatowe na zakupy
Dzięki którym zaoszczędzisz nawet kilkanaście tysięcy złotych.
addon
Projekty małej architektury
Wybudujesz samodzielnie m.in. domek dla dzieci czy altanę z grillem.
Pamiętaj
dostawa
Wysyłkę projektu ze wszystkimi dodatkami na terenie Polski bierzemy na siebie. Ty wybierasz, gdzie odbierzesz swój projekt. Masz do wyboru kuriera DPD lub punkty Paczkomat InPost 24/7.
zwroty

Masz 30 dni na zwrot i 365 dni na wymianę projektu

Inspiracje

Wnętrza
Wszystkie
Pokój dzienny
Sypialnia