+48 22 59 05 000

pn.-pt. 8-20

Kontakt i pomoc^
Kontakt i pomoc
Zamów rozmowę
Napisz do nas
Pomoc w kredycie
Bezpłatna analiza działki
logo
ulubione 0
REKLAMA
REKLAMA
MG1002

Przyjemny 3

wersja lustrzana
Rzuty
Działka
Parametry
Podobne
Zmiany
Dokumentacja
Dodatki
Inspiracje
REKLAMA

Rzuty, przekrój, elewacje

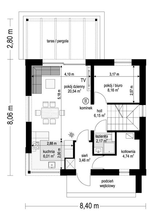
Parter 49,49 m2
Wersja lustrzana
Pomieszczenie Użytkowa
1
przedsionek
6,46 m2
2
kuchnia
6,01 m2
3
hol
6,15 m2
4
pokój dzienny + jadalnia
20,54 m2
5
sypialnia
8,16 m2
6
łazienka
2,17 m2
Razem 49,49 m2
7
kotłownia
4,74 m2

W nawiasach podano powierzchnie pomieszczenia netto

Poddasze 42,68 m2
Wersja lustrzana
Pomieszczenie Użytkowa
1
hol
3,91 m2
2
sypialnia (13,24)
11,95 m2
3
sypialnia (11,93)
11,13 m2
4
sypialnia (10,91)
9,47 m2
5
łazienka (7,3)
6,22 m2
Razem 42,68 m2

W nawiasach podano powierzchnie pomieszczenia netto

Elewacje
Wersja lustrzana
Elewacja 1
Elewacja 1
Elewacja 2
Elewacja 3
Elewacja 4
Elewacja 5
REKLAMA

Działka

Wybór działki to jedna z ważniejszych decyzji poprzedzających budowę wymarzonego domu. Oczywiście najważniejsza jest jej lokalizacja, ale trzeba także przeanalizować lokalne ograniczenia wyszczególnione w miejscowym planie zagospodarowania przestrzennego lub w warunkach zabudowy. Często zapisy w w/w dokumentach uniemożliwiają budowę wybranego projektu i trzeba szukać dalej.

Ważne jest także usytuowanie działki i domu względem stron świata, gdyż to właśnie decyduje o stopniu nasłonecznienia poszczególnych pomieszczeń. Dlatego każdy projekt oferujemy w dwóch wersjach: podstawowej oraz lustrzanej, aby można było wybrać najkorzystniejszy układ pomieszczeń względem stron świata, a także względem ukształtowania krajobrazu w otoczeniu działki.

Wymiary działki
Wymiary działki (szerokość x głębokość), na której możliwe jest wybudowanie domu. Wynikają one z wymiarów budynku powiększonych o wymagane przepisami odległości poszczególnych elementów budynku od granic działki. Rzeczywistą odległość od drogi należy sprawdzić i dostosować do wymogów zawartych w MPZA lub WZ.
16.50 x 16.06 m
Wymiary działki po obrocie domu o 90°
Wymiary działki po adaptacji – obrót o 90 st.
Wymiary (szerokość x głębokość) działki, na której możliwe jest wybudowanie domu, po obróceniu budynku o 90 st. (przy założeniu, że taka zmiana jest możliwa i nie wpłynie niekorzystnie na układ funkcjonalny działki oraz budynku mieszkalnego). Wynikają z wymiarów budynku powiększonych o wymagane przepisami odległości poszczególnych elementów budynku od granic działki. Rzeczywistą odległość od drogi należy sprawdzić i dostosować do wymogów zawartych w MPZA lub WZ.
16.06 x 16.50 m
Przekrój
Wersja lustrzana

Parametry

Dane Techniczne
Technologia i materiały
Parametry cieplne
Powierzchnia użytkowa
Suma powierzchni pomieszczeń mierzona po wewnętrznym obrysie ścian. Na jej wielkość ma wpływ wysokość pomieszczenia i jest liczona: – w 100% – przy wysokości w świetle powyżej 2,2 m, – w 50% – przy wysokości między 1,4 m a 2,2 m, – pomija się – przy wysokości poniżej 1,4 m. Do powierzchni użytkowej domu nie dolicza się powierzchni niektórych pomieszczeń, np. piwnicy, garażu, kotłowni, strychu.
88,96 m2
Powierzchnia zabudowy
Powierzchnia mierzona po obrysie zewnętrznych krawędzi wykończonego budynku z uwzględnieniem powierzchni nadwieszonych (np. wykusz). Nie dolicza się do niej elementów drugorzędnych (np. schodów zewnętrznych, daszków, ramp) oraz elementów niewystających ponad powierzchnię terenu
67,71 m2
Powierzchnia netto
Powierzchnia wszystkich pomieszczeń budynku mierzona na poziomie podłogi, po wewnętrznym obrysie ścian w stanie wykończonym. Na jej wartość nie wpływa wysokość pomieszczeń.
93,7 m2
Powierzchnia całkowita
Suma powierzchni całkowitych wszystkich kondygnacji (w tym znajdujących się całkowicie lub częściowo poniżej poziomu terenu) mierzona po zewnętrznym obrysie ścian (wraz z ociepleniem) oraz wszystkich elementów wykraczających poza kubaturę, np. tarasy, schody zewnętrzne, balkony, podcienie, zjazdy do garaży, itp.
121,37 m2
Powierzchnia dodatkowa
Dodatkowe powierzchnie niewliczane do powierzchni użytkowej: piwnica + garaż + kotłownia + strych + poddasze do adaptacji.
4,74 m2
Powierzchnia dachu
89,6 m2
Kąt nachylenia dachu
40°
Kubatura
Objętość budynku liczona wraz z przegrodami zewnętrznymi i wewnętrznymi (ścianami, stropem, dachem i podmurówką)
408 m3
Wysokość budynku
Wysokość mierzona od poziomu terenu przy wejściu do budynku do najwyższego punktu dachu – kalenicy
89,6 m
Wysokość parteru
Podana wartość to wysokość pomieszczeń parteru w stanie wykończonym, mierzona od poziomu posadzki do spodu sufitu.
2,65 m
Wysokość poddasza / piętra
Dla poddasza podano zakres wysokości. Pierwsza podana wartość to minimalna wysokość pomieszczenia w stanie wykończonym (mierzona przy ściance kolankowej lub tzw. przedściance - o ile występuje), druga wartość to maksymalna wysokość pomieszczenia mierzona od poziomu posadzki do płyt wykończeniowych mocowanych do elementów konstrukcyjnych ograniczających przestrzeń pomieszczeń. Dla piętra podana wartość to wysokość pomieszczeń piętra w stanie wykończonym, mierzona od poziomu posadzki do spodu sufitu.
2,55 m
Wysokość ścianki kolankowej
Ścianka kolankowa to zewnętrzna ściana nośna poddasza, wznoszona powyżej najwyższego stropu budynku, na której jest oparta więźba dachowa. Od wysokości ścianki kolankowej zależy funkcjonalność poddasza, wielkość jego powierzchni użytkowej oraz wygląd bryły budynku.
8,23 m
Wymiary budynku
8,5 x 8,06 m
Wymiary działki
Wymiary działki (szerokość x głębokość), na której możliwe jest wybudowanie domu. Wynikają one z wymiarów budynku powiększonych o wymagane przepisami odległości poszczególnych elementów budynku od granic działki. Rzeczywistą odległość od drogi należy sprawdzić i dostosować do wymogów zawartych w MPZA lub WZ
16,5 x 16,06 m
Pokoje (z salonem)
Liczba wszystkich pokoi
5
Łazienki i wc
Suma łazienek i wc
2
Sezonowość
Całoroczny
REKLAMA

Opis projektu

Projekt domu
Przyjemny 3, to nieduży dom jednorodzinny o stylistyce nowoczesnej stodoły. Budynek parterowy z poddaszem użytkowym, zaprojektowany na planie prostokąta, przeznaczony dla 3-5osobowej rodziny. Minimalistyczna architektura domu łączy w sobie nowoczesną prostotę, z ciekawie dobranymi materiałami i detalami. Zarówno połacie dachów jak i ściany obłożone są tutaj blachą na rąbek stojący. Z tej jednolitej powierzchni wystają kontrastujące lukarny poddasza i zadaszenie podestu wejściowego. Szczyty domu wykończone są kontrastującą okładziną drewnianą - można ją też zastąpić okładziną włókno-cementową lub po prostu - tynkiem. Nowoczesny styl domu podkreśla jego maksymalną funkcjonalność i prostotę konstrukcji. Najważniejsza jest tutaj ekonomia i zdrowy rozsądek, ale też jakość zastosowanych materiałów i poszczególnych detali. Nie ma zbędnych elementów - wszystko pełni tutaj swoją funkcjonalną rolę.
Budynek, mimo niewielkich wymiarów i powierzchni, udało się zaprojektować tak, aby normalna pełna rodzina mogła w nim wygodnie i komfortowo mieszkać. Wszystko dzięki prostocie i funkcjonalności wnętrza. Parter to przestrzeń dzienna, połączonych pomieszczeń salonu, holu ze schodami i kuchni, oraz dodatkowy pokój i spora kotłownia. Na poddaszu zaprojektowano trzy pokoje sypialne i łazienkę – dzięki wysokiej ścianie kolankowej i niewielkim skosom – bardziej funkcjonalne. W salonie na uwagę zasługuje szerokie przesuwne okno balkonowe otwierające wnętrze na taras i ogród. Zadaszenie nad tarasem zaproponowaliśmy jako pergolę przykrytą poliwęglanowymi płytami. Można zamienić ją na dowolne inne rozwiązanie : zadaszenie lamelowe, żagiel, lub markizę - wedle decyzji właścicieli. Nie jest to stały element budynku.
Przyjemny 3 3 to budynek o bardzo prostej konstrukcji - łatwy i niedrogi w budowie. Nie ma tu skomplikowanych lementów, strop jest gęstożebrowy teriva, ściany z bloczków gazobetonowych. Budowa będzie łatwym zadaniem dla dowolnej ekipy. Jedyne trudniejsze zadanie będzie miał tu dekarz, ale trwała ponadczasowa stalowa fasada jest tego warta. Bardzo dobre izolacje termiczne przegród i nowoczesne instalacje, a także nieudziwniona bryła, dają w efekcie dom energooszczędny. Instalacja c.o. bazowo zasilana jest z kotła gazowego, ale można też zastosować tutaj pompę ciepła, albo kocioł na paliwo stałe.
Projekt dostępny w wersji lustrzanej.
REKLAMA

Zmiany w projekcie

Zobacz zakres zmian, które możesz wprowadzić, w tym projekcie bez zgody autora.
Lista możliwych zmian

Jeśli zmiany, które chcesz wprowadzić nie są ujęte w powyższym zestawieniu, skontaktuj się z nami. Nasz architekt przeanalizuje i doradzi, które z Twoich propozycji warto wdrożyć. O zgodę na zmiany możesz wystąpić nie tylko w momencie zakupu projektu, ale także później i otrzymasz ją bezpłatnie w ciągu kilku dni.

Dokumentacja (zawartość pakietu projektowego)

Dodatki

Pakiet dodatków, który otrzymasz razem z projektem

addon
Teczka inwestora
Do przechowywania niezbędnej dokumentacji
addon
Kupony rabatowe na zakupy
Dzięki którym zaoszczędzisz nawet kilkanaście tysięcy złotych.
addon
Projekty małej architektury
Wybudujesz samodzielnie m.in. domek dla dzieci czy altanę z grillem.
Pamiętaj
dostawa
Wysyłkę projektu ze wszystkimi dodatkami na terenie Polski bierzemy na siebie. Ty wybierasz, gdzie odbierzesz swój projekt. Masz do wyboru kuriera DPD lub punkty Paczkomat InPost 24/7.
zwroty

Masz 30 dni na zwrot i 365 dni na wymianę projektu

Inspiracje

Wnętrza
Wszystkie
Pokój dzienny
Sypialnia