pn.-pt. 8-20

Przebojowy pa wersja lustrzana













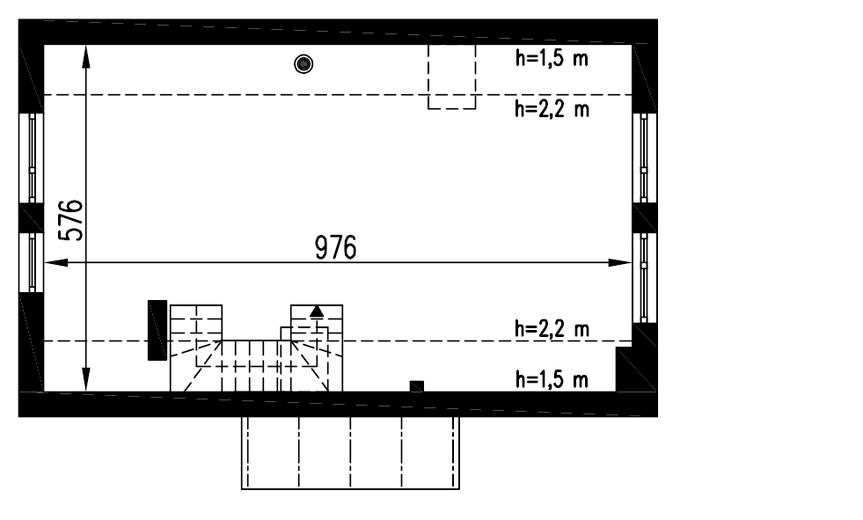
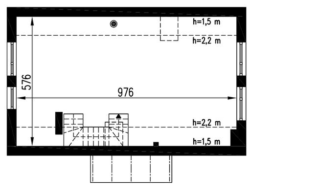
W nawiasach podano powierzchnie pomieszczenia netto






Przebojowy pa
wersja lustrzanaKoncepcja projektu
Nasi doradcy przedstawią szczegółowe informacje dotyczące projektu.
Projekt wycofany z oferty
Dodatki
Atrakcyjne rabaty
Kompleksowe wsparcie
Gwarancja najniższej ceny
Wygodne zakupy
Zgoda na zmiany w projekcie
Szczegółowa dokumentacja
Rzuty, przekrój, elewacje

W nawiasach podano powierzchnie pomieszczenia netto

do indywidualnej adaptacji (50,4 m2 powierzchni użytkowej)






Działka
Wybór działki to jedna z ważniejszych decyzji poprzedzających budowę wymarzonego domu. Oczywiście najważniejsza jest jej lokalizacja, ale trzeba także przeanalizować lokalne ograniczenia wyszczególnione w miejscowym planie zagospodarowania przestrzennego lub w warunkach zabudowy. Często zapisy w w/w dokumentach uniemożliwiają budowę wybranego projektu i trzeba szukać dalej.
Ważne jest także usytuowanie działki i domu względem stron świata, gdyż to właśnie decyduje o stopniu nasłonecznienia poszczególnych pomieszczeń. Dlatego każdy projekt oferujemy w dwóch wersjach: podstawowej oraz lustrzanej, aby można było wybrać najkorzystniejszy układ pomieszczeń względem stron świata, a także względem ukształtowania krajobrazu w otoczeniu działki.

Parametry
Opis projektu
Seria projektów Przebojowy występuje w wielu konfiguracjach funkcjonalnych i estetycznych. Kolejne warianty określają układ parteru z jedną lub dwoma sypialniami i mniejszą albo większą częścią dzienną. Natomiast symbole AR1, AR2, AR3, AR4 definiują układ poddasza. Zróżnicowano także dach – dla części wariantów przewidziano dach z okapami, a dla części – dach licujący ze ścianami elewacji. Dzięki powierzchni zabudowy nie przekraczającej 70m2, seria projektów Przebojowy kwalifikuje się do budynków mieszkalnych, dla których nie trzeba występować o pozwolenie na budowę.
Aranżacje
Układ funkcjonalny parteru jest wspólnym mianownikiem grupy, natomiast poddasze zostało zaprojektowane w różnych wariantach.
Bryła i wygląd
Prezentowany projekt domu Przebojowy A111/1 jest kwintesencją dobrego smaku i dbałości o szczegóły. Stonowana kolorystyka oraz prosta bryła wykreowały harmonijny i przyjazny obraz. Elementy z drewna w sosnowym odcieniu świetnie komponują się z szarością i bielą ścian, tworząc szykowną i elegancką fasadę. Tę ciekawą kompozycję zastosowano na wszystkich elewacjach, dzięki czemu panuje tu równowaga barw i wizualny rytm. Wyższą kondygnację wyznacza złamana biel, która dobitnie kontrastuje z grafitowym dachem i wyraźnie odcina się od kolorystycznego układu na elewacjach parteru. Autorka projektu – oprócz walorów estetycznych i funkcjonalnych – wzięła pod uwagę również zasobność portfela przyszłego inwestora. Prosta bryła przykryta dwuspadowym dachem to ukłon w stronę optymalizacji kosztów budowy, a zastosowane źródła ciepła (gaz + fotowoltaika) wpłyną pozytywnie na koszty eksploatacji. Projekt domu A111/1 zadowoli zarówno miłośników tradycyjnych rozwiązań architektonicznych, jak i zwolenników bardziej nowoczesnych trendów. Jedni i drudzy mogą bowiem wybierać spośród dwóch wizualnych opcji – klasycznej z dachem okapowym lub alternatywnie – nowoczesnej z dachem bez okapów (N).
Rozwiązania funkcjonalne
Analizując funkcje domu, można rzec: dla każdego coś dobrego. Na parterze zaplanowano komfortową strefę dzienną, na którą składa się salon z jadalnią oraz kuchnia. Z boku budynku przewidziano wyjście na słoneczny taras, gdzie mieszkańcy domu będą mogli się oddać błogiemu lenistwu lub zjeść posiłek na łonie natury. Do salonu przylega pokój, który można przeznaczyć na sypialnię lub gabinet, a obok wygodna łazienka z oknem. Poddasze ma wiele odsłon, zatem każdy znajdzie tu coś dla siebie. W projekcie podstawowym na poddaszu przewidziano dużą, widną łazienkę i otwartą przestrzeń do indywidualnej aranżacji. Propozycje aranżacji z dwiema lub trzema sypialniami w różnym układzie i opcjonalnie pralnią, garderobą lub otwartą antresolą mają aranżacje – od AR1 do AR5. Przewidziano także wariant, w którym poddasza zakwalifikowano jako nieużytkowe, jednakże później, gdy zwiększą się potrzeby rodziny albo możliwości finansowe, można je przeznaczyć na cele mieszkalne. Dzięki tak bogatej ofercie funkcjonalnych rozwiązań, Przebojowy, bez wątpienia zasługuje na swoją nazwę.
Cała Rodzina Przebojowego
Biorąc pod uwagę różny układ funkcjonalny parteru oraz poddasza, a także styl i wykończenie elewacji Przebojowy to propozycja aż 56 różnych elewacji projektów, odpowiadająca na potrzeby wielu inwestorów, na różnym etapie życia – jako pierwszy dom, dom rozwojowy dla rodziny 3-4 osobowej, a także jako dom dla seniorów. Po prostu Przebojowy!
Koszty
wytyczenie budynku i roboty ziemne; ławy i stopy fundamentowe; ściany podziemne z izolacjami cieplnymi i przeciwwilgociowymi
ściany murowane zewnętrzne i wewnętrzne; stropy i schody wewnętrzne; konstrukcja dachu z pokryciem, obróbkami, rynnami i rurami spustowymi; podłoża pod posadzki ( np. chudy beton)
okna i drzwi zewnętrzne; bramy garażowe; warstwy wyrównawcze pod posadzki na gruncie i na stropie z izolacjami cieplnymi i przeciwwilgociowymi
*
wewnętrzna instalacja oświetleniowa; instalacja gniazd wtykowych; instalacja siły oraz instalacja odgromowa i inne wewnętrzne instalacje teletechniczne
**
wewnętrzna instalacja wod. - kan. z przyborami sanitarnymi i bateriami; instalacja c.o. z kotłem i grzejnikami, bez kominka; instalacja gazowa bez osprzętu kuchennego; wentylacja mechaniczna ( jeśli występuje)
***
system dociepleń i tynki zewnętrzne z malowaniem; okładziny elewacyjne; balustrady, parapety zewnętrzne i inne roboty zewnętrzne np. taras, opaski wokół domu, schody zewnętrzne
***
tynki wewnętrzne, drzwi i okna wewnętrzne, lekkie ścianki działowe, roboty malarskie, posadzki i inne prace wykończeniowe
* w zależności od ilości punktów elektrycznych na 1m2
** w zależności od ilości punktów sanitarnych na 1m2 oraz ilości (odległości) instalacji rurowej
*** w zależności od rodzaju użytych meteriałów i specyfikacji wykończenia
Zmiany w projekcie
Jeśli zmiany, które chcesz wprowadzić nie są ujęte w powyższym zestawieniu, skontaktuj się z nami. Nasz architekt przeanalizuje i doradzi, które z Twoich propozycji warto wdrożyć. O zgodę na zmiany możesz wystąpić nie tylko w momencie zakupu projektu, ale także później i otrzymasz ją bezpłatnie w ciągu kilku dni.
Dokumentacja (zawartość pakietu projektowego)
3 egzemplarze projektu architektoniczno-budowlanego ze szczegółowym opisem
Dowiedz sie wiecej3 egzemplarze projektu technicznego (konstrukcja, instalacje: wodno-kanalizacyjna, c.o., elektryczna, gazowa (jeśli występują)) ze szczegółowym opisem
Dowiedz sie wiecejCharakterystyka energetyczna (jeśli dotyczy)
Uproszczony ślepy kosztorys – orientacyjne zestawienie materiałów, robocizny i sprzętu z podziałem na etapy budowy
Lista zmian, które można wprowadzić w ramach adaptacji projektu
Dodatki
Pakiet dodatków, który otrzymasz razem z projektem




Masz 30 dni na zwrot i 365 dni na wymianę projektu
Dodatki w dobrej cenie
Dodatki możesz dobrać także w koszyku lub podczas zakupów u naszego doradcy.
Inspiracje





