pn.-pt. 8-20

Projekt domu Zx98 wersja lustrzana







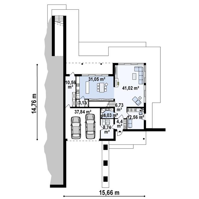
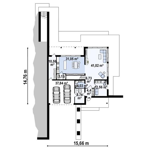
W nawiasach podano powierzchnie pomieszczenia netto

W nawiasach podano powierzchnie pomieszczenia netto
Projekt domu Zx98
wersja lustrzanaKoncepcja projektu
Nasi doradcy przedstawią szczegółowe informacje dotyczące projektu.
Projekt wycofany z oferty
Dodatki
Atrakcyjne rabaty
Kompleksowe wsparcie
Gwarancja najniższej ceny
Wygodne zakupy
Zgoda na zmiany w projekcie
Szczegółowa dokumentacja
Rzuty, przekrój, elewacje

W nawiasach podano powierzchnie pomieszczenia netto

W nawiasach podano powierzchnie pomieszczenia netto
Działka
Wybór działki to jedna z ważniejszych decyzji poprzedzających budowę wymarzonego domu. Oczywiście najważniejsza jest jej lokalizacja, ale trzeba także przeanalizować lokalne ograniczenia wyszczególnione w miejscowym planie zagospodarowania przestrzennego lub w warunkach zabudowy. Często zapisy w w/w dokumentach uniemożliwiają budowę wybranego projektu i trzeba szukać dalej.
Ważne jest także usytuowanie działki i domu względem stron świata, gdyż to właśnie decyduje o stopniu nasłonecznienia poszczególnych pomieszczeń. Dlatego każdy projekt oferujemy w dwóch wersjach: podstawowej oraz lustrzanej, aby można było wybrać najkorzystniejszy układ pomieszczeń względem stron świata, a także względem ukształtowania krajobrazu w otoczeniu działki.

Parametry
Opis projektu
Zx98 to nowoczesny dom z zielonym płaskim dachem.
Swoista twierdza; od frontu – zamknięta, niedostępna, owiana mgłą tajemnicy, niewzruszenie chroni sekrety swoich mieszkańców. Znajduje się tam jedynie frontowy wjazd do garażu oraz wejście do wnętrza budynku, więc życie prywatne domowników skrzętnie skrywane jest przed wzrokiem ciekawskich przechodniów; Od strony ogrodu, twierdzę majestatycznie otwarto na cichość zieleni, z przeznaczeniem dla osób złączonych więzami krwi.
Budynek prezentuje smak architektonicznego minimalizmu, w bogatym, nowatorskim wydaniu. Innowatorska kompozycja elewacji z dodatkiem jasnoszarego klinkieru łączy w sobie czystość bieli z dużymi taflami szkła.
Zielony dach pełni rolę funkcjonalno-wypoczynkową. Powiększa czynną biologicznie powierzchnię działki. Można tam posadzić trawę, niewielkie krzewy owocowe lub rośliny ozdobne i rozkoszować się ciepłymi promieniami słońca leżąc wśród zieleni.
Oryginalna bryła, zielony dach oraz funkcjonalne wnętrze tworzą harmonijną kompozycję o reprezentacyjnym, niezapomnianym charakterze.
Budynek składa się z dwóch prostych sześcianów, na których nasadzono przesuniętą do tyłu kostkę, która stanowi jednocześnie zadaszenie tarasu.
Taras na piętrze dostępny jest z dwóch stron: z wnętrza budynku oraz od strony podwórza. Należy wspiąć się schodami prowadzącymi z ogrodu bezpośrednio na piętro. Dzięki temu nie trzeba przechodzić przez dom, można z sypialni przejść bezpośrednio do basenu w ogrodzie.
Obszerny parter stanowi część dzienną domu. Sień jest ogniwem łączącym część gospodarczą z częścią użytkową. Do części gospodarczej należą: kotłownia na paliwo stałe, dwustanowiskowy garaż, schowek, w którym można pozostawić kosiarkę, ubrania robocze, narzędzia ogrodnicze. Zaprojektowano również bezpośrednie wyjście na ogród ze strefy gospodarczej. Pomysłowy architekt uczynił to po to, aby osoby zajmujące się pielęgnacją ogrodu mogły uszanować porządek jaki panuje w części dziennej i nie musiały przechodzić przez część reprezentacyjną w stroju niegalowym…
Przestronny salon oddzielono od części jadalnej ścianką, na której można osadzić dwustronny kominek. Doda on ciepła domowego ogniska i będzie sypać blaskiem jasnych iskier w ciemne, zimowe wieczory.
Zarówno salon jak i kuchnia z jadalnią posiadają szklany efekt wejścia w ogród. Nadają go przeszklone ściany przesuwne, które dostarczają ogromną ilość dziennego światła. Stanowią także kryształową barierę, którą można otworzyć, powiększając strefę dzienną o przestrzeń tarasową, jakże znakomitą do wykorzystania podczas basenowo - ogrodowych przyjęć.
Po prawej stronie od frontowego wejścia, sąsiadując z salonem, mieści się gabinet, który może być jednocześnie pokojem dla odwiedzających nas gości. Naprzeciwko ulokowano łazienkę wyposażoną w prysznic i pralkę. Dzięki temu goście nie będą musieli korzystać z naszych prywatnych łazienek na piętrze.
Piętro to strefa nocna domu. Mieszczą się tam 3 sypialnie, z których każda posiada luksusowo wykończoną, prywatną łazienkę. Jedna z sypialni dodatkowo posiada garderobę, zaś wyjście na taras, biegnące z każdego pokoju, stanowi niewątpliwy atut. Wyjście na większy taras, od strony ogrodu, daje dostęp do zielonego wypoczynku, zaś mniejszy taras, od strony frontowej, również dostarczy nam potężnej dawki odprężenia.
Willa Zx98 sprosta wymaganiom osób szczególnie wymagających, ceniących nowoczesną elegancję, dobry gust, wykwintność i luksus.
Koszty
wytyczenie budynku i roboty ziemne; ławy i stopy fundamentowe; ściany podziemne z izolacjami cieplnymi i przeciwwilgociowymi
ściany murowane zewnętrzne i wewnętrzne; stropy i schody wewnętrzne; konstrukcja dachu z pokryciem, obróbkami, rynnami i rurami spustowymi; podłoża pod posadzki ( np. chudy beton)
okna i drzwi zewnętrzne; bramy garażowe; warstwy wyrównawcze pod posadzki na gruncie i na stropie z izolacjami cieplnymi i przeciwwilgociowymi
*
wewnętrzna instalacja oświetleniowa; instalacja gniazd wtykowych; instalacja siły oraz instalacja odgromowa i inne wewnętrzne instalacje teletechniczne
**
wewnętrzna instalacja wod. - kan. z przyborami sanitarnymi i bateriami; instalacja c.o. z kotłem i grzejnikami, bez kominka; instalacja gazowa bez osprzętu kuchennego; wentylacja mechaniczna ( jeśli występuje)
***
system dociepleń i tynki zewnętrzne z malowaniem; okładziny elewacyjne; balustrady, parapety zewnętrzne i inne roboty zewnętrzne np. taras, opaski wokół domu, schody zewnętrzne
***
tynki wewnętrzne, drzwi i okna wewnętrzne, lekkie ścianki działowe, roboty malarskie, posadzki i inne prace wykończeniowe
* w zależności od ilości punktów elektrycznych na 1m2
** w zależności od ilości punktów sanitarnych na 1m2 oraz ilości (odległości) instalacji rurowej
*** w zależności od rodzaju użytych meteriałów i specyfikacji wykończenia
Zmiany w projekcie
Jeśli zmiany, które chcesz wprowadzić nie są ujęte w powyższym zestawieniu, skontaktuj się z nami. Nasz architekt przeanalizuje i doradzi, które z Twoich propozycji warto wdrożyć. O zgodę na zmiany możesz wystąpić nie tylko w momencie zakupu projektu, ale także później i otrzymasz ją bezpłatnie w ciągu kilku dni.
Pliki do pobrania
Dokumentacja (zawartość pakietu projektowego)
3 egzemplarze projektu architektoniczno-budowlanego ze szczegółowym opisem
Dowiedz sie wiecej3 egzemplarze projektu technicznego (konstrukcja, instalacje: wodno-kanalizacyjna, c.o., elektryczna, gazowa (jeśli występują)) ze szczegółowym opisem
Dowiedz sie wiecejCharakterystyka energetyczna (jeśli dotyczy)
Lista zmian, które można wprowadzić w ramach adaptacji projektu
Dodatki
Pakiet dodatków, który otrzymasz razem z projektem




Masz 30 dni na zwrot i 365 dni na wymianę projektu
Dodatki w dobrej cenie
Dodatki możesz dobrać także w koszyku lub podczas zakupów u naszego doradcy.