pn.-pt. 8-20

Projekt domu Zb25 wersja lustrzana















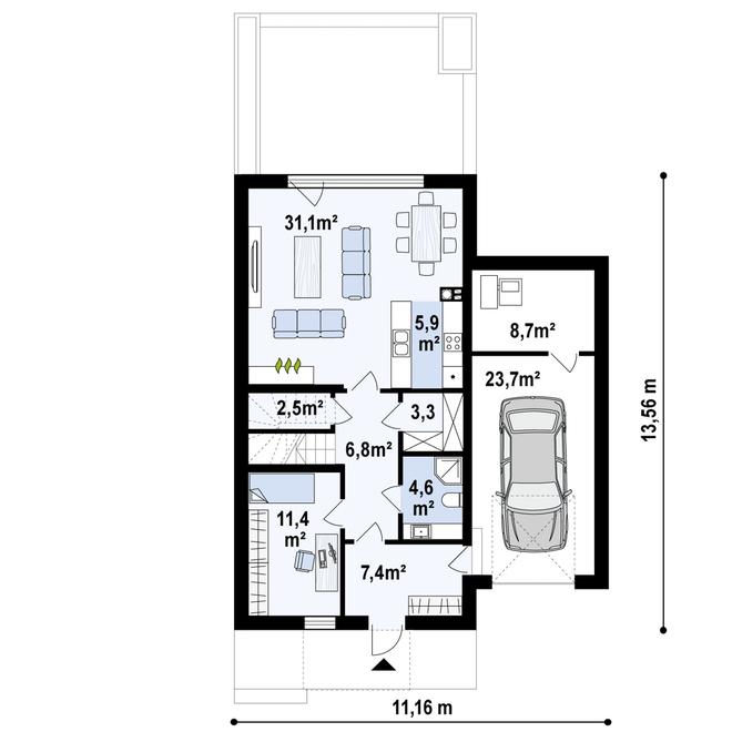
W nawiasach podano powierzchnie pomieszczenia netto

W nawiasach podano powierzchnie pomieszczenia netto




Projekt domu Zb25
wersja lustrzanaKoncepcja projektu
Nasi doradcy przedstawią szczegółowe informacje dotyczące projektu.
Projekt wycofany z oferty
Wszystkie dane techniczne dotyczą jednego segmentu.
Dodatki
Atrakcyjne rabaty
Kompleksowe wsparcie
Gwarancja najniższej ceny
Wygodne zakupy
Zgoda na zmiany w projekcie
Szczegółowa dokumentacja
Rzuty, przekrój, elewacje

W nawiasach podano powierzchnie pomieszczenia netto

W nawiasach podano powierzchnie pomieszczenia netto





Działka
Wybór działki to jedna z ważniejszych decyzji poprzedzających budowę wymarzonego domu. Oczywiście najważniejsza jest jej lokalizacja, ale trzeba także przeanalizować lokalne ograniczenia wyszczególnione w miejscowym planie zagospodarowania przestrzennego lub w warunkach zabudowy. Często zapisy w w/w dokumentach uniemożliwiają budowę wybranego projektu i trzeba szukać dalej.
Ważne jest także usytuowanie działki i domu względem stron świata, gdyż to właśnie decyduje o stopniu nasłonecznienia poszczególnych pomieszczeń. Dlatego każdy projekt oferujemy w dwóch wersjach: podstawowej oraz lustrzanej, aby można było wybrać najkorzystniejszy układ pomieszczeń względem stron świata, a także względem ukształtowania krajobrazu w otoczeniu działki.

Parametry
Wszystkie dane techniczne dotyczą jednego segmentu.
Opis projektu
ZB25 jest projektem do zabudowy bliźniaczej i szeregowej. Każdy segment mieszkalny oddzielony jest bryłą garażową, dzięki czemu zachowujemy odrębność i odosobnienie od sąsiada. Część mieszkalna została pokryta dachem dwuspadowym, zaś garaż zwieńczono stropodachem.
Elewację pokryto drewnem elewacyjnym oraz białym tynkiem nadającym budynkowi wrażenia świeżości. Jednostanowiskowy garaż wykończono drewnem. Główne wejście od strony frontu zostało osłonięte metalowymi elementami maskującymi, zaś nad oknami portfenetrowymi zamontowano zadaszenie systemowe. Tylna elewacja została ozdobiona pergolą i markizą, czyli wysuwanym zadaszeniem. Użyto dużych przeszkleń zarówno w parterze jak i na piętrze.
Parter stanowi dzienną strefę domu. W sieni znajduje się wejście prowadzące do jednostanowiskowego garażu, a którym to z kolei mieści się pomieszczenie gospodarcze na paliwo stałe. Z lewej strony od wejścia zaprojektowano pokój, który może pełnić role gabinetu dla jednego z domowników, lub pokoju gościnnego dla przyjezdnych osób. Ustawny piękny salon z jadalnią zaprojektowano na planie kwadratu, dzięki czemu każdy inwestor będzie mógł wybrać dowolne umeblowanie. Portfenetrowe przeszklenia wpuszczają do środka dużą ilość światła, a w ciepłe letnie dni można rozsunąć przeszklenia i powiększyć powierzchnię salonu o powierzchnię tarasu. Królestwo przyrządzania potraw zostało zaprojektowane jako aneks kuchenny, do którego dodano praktyczną wyspę kuchenną. Pokocha ją każda pani domu. Natomiast spiżarnię docenią również panowie. Wszak trzeba przeznaczyć jakieś miejsce na przechowywanie wina domowej roboty.
Poddasze użytkowe to trzy pokoje, z których jeden posiada prywatna łazienkę i garderobę. Pozostałe dwa pokoje mogą być dziecięcymi sypialniami, bądź pokojami do pracy zdalnej dla mieszkańców. Przypadają na nie jedna łazienka i garderoba.
Z500 specjalnie z myślą o swoich Klientach wprowadziła wyjątkowy standard do projektowania domów. Udało nam się połączyć unikalną architekturę oraz uniwersalność konstrukcji z troską o indywidualne potrzeby Klienta. Szanując Państwa czas oraz środki, jakie przeznaczacie Państwo na budowę domu, kładziemy szczególny nacisk na elastyczność w aranżacji wnętrz i pomieszczeń.
Koszty
wytyczenie budynku i roboty ziemne; ławy i stopy fundamentowe; ściany podziemne z izolacjami cieplnymi i przeciwwilgociowymi
ściany murowane zewnętrzne i wewnętrzne; stropy i schody wewnętrzne; konstrukcja dachu z pokryciem, obróbkami, rynnami i rurami spustowymi; podłoża pod posadzki ( np. chudy beton)
okna i drzwi zewnętrzne; bramy garażowe; warstwy wyrównawcze pod posadzki na gruncie i na stropie z izolacjami cieplnymi i przeciwwilgociowymi
*
wewnętrzna instalacja oświetleniowa; instalacja gniazd wtykowych; instalacja siły oraz instalacja odgromowa i inne wewnętrzne instalacje teletechniczne
**
wewnętrzna instalacja wod. - kan. z przyborami sanitarnymi i bateriami; instalacja c.o. z kotłem i grzejnikami, bez kominka; instalacja gazowa bez osprzętu kuchennego; wentylacja mechaniczna ( jeśli występuje)
***
system dociepleń i tynki zewnętrzne z malowaniem; okładziny elewacyjne; balustrady, parapety zewnętrzne i inne roboty zewnętrzne np. taras, opaski wokół domu, schody zewnętrzne
***
tynki wewnętrzne, drzwi i okna wewnętrzne, lekkie ścianki działowe, roboty malarskie, posadzki i inne prace wykończeniowe
* w zależności od ilości punktów elektrycznych na 1m2
** w zależności od ilości punktów sanitarnych na 1m2 oraz ilości (odległości) instalacji rurowej
*** w zależności od rodzaju użytych meteriałów i specyfikacji wykończenia
Zmiany w projekcie
Jeśli zmiany, które chcesz wprowadzić nie są ujęte w powyższym zestawieniu, skontaktuj się z nami. Nasz architekt przeanalizuje i doradzi, które z Twoich propozycji warto wdrożyć. O zgodę na zmiany możesz wystąpić nie tylko w momencie zakupu projektu, ale także później i otrzymasz ją bezpłatnie w ciągu kilku dni.
Pliki do pobrania
Dokumentacja (zawartość pakietu projektowego)
3 egzemplarze projektu architektoniczno-budowlanego ze szczegółowym opisem
Dowiedz sie wiecej3 egzemplarze projektu technicznego (konstrukcja, instalacje: wodno-kanalizacyjna, c.o., elektryczna, gazowa (jeśli występują)) ze szczegółowym opisem
Dowiedz sie wiecejCharakterystyka energetyczna (jeśli dotyczy)
Lista zmian, które można wprowadzić w ramach adaptacji projektu
Dodatki
Pakiet dodatków, który otrzymasz razem z projektem




Masz 30 dni na zwrot i 365 dni na wymianę projektu
Dodatki w dobrej cenie
Dodatki możesz dobrać także w koszyku lub podczas zakupów u naszego doradcy.
Inspiracje







