+48 22 59 05 000

pn.-pt. 8-20

Kontakt i pomoc^
Kontakt i pomoc
Zamów rozmowę
Umów wideorozmowę
Napisz do nas
Pomoc w kredycie
Bezpłatna analiza działki
logo
ulubione 0
REKLAMA
REKLAMA
Z351

Projekt domu Z351

wersja lustrzana
Kupując u nas, zyskujesz więcej

Dodatki

Atrakcyjne rabaty

Kompleksowe wsparcie

Gwarancja najniższej ceny

Wygodne zakupy

Zgoda na zmiany w projekcie

Szczegółowa dokumentacja

Rzuty
Działka
Parametry
Koszty
Podobne
Zmiany
Pliki do pobrania
Dokumentacja
Dodatki
REKLAMA

Rzuty, przekrój, elewacje

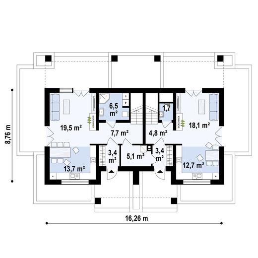
Parter 90,31 m2
Wersja lustrzana
Pomieszczenie Użytkowa
2
przedsionek
3,43 m2
3
hol
7,66 m2
4
łazienka (6,45)
5,6 m2
5
pokój dzienny
19,48 m2
6
kuchnia
13,67 m2
7
przedsionek
3,43 m2
8
hol
4,82 m2
9
wc (1,74)
1,42 m2
10
pokój dzienny
18,1 m2
11
kuchnia
12,7 m2
Razem 90,31 m2
1
pom. gosp. (5,08)

W nawiasach podano powierzchnie pomieszczenia netto

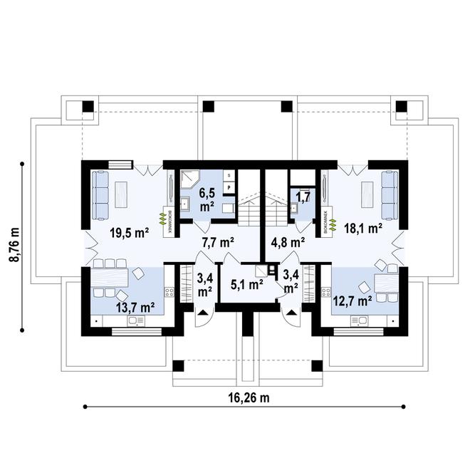
Poddasze 81,83 m2
Wersja lustrzana
Pomieszczenie Użytkowa
1
hol
8,89 m2
2
łazienka (6,12)
4,57 m2
3
pokój (10,45)
7,84 m2
4
pokój (13,4)
11,14 m2
5
pokój (14,44)
11,52 m2
6
garderoba (4,56)
3,59 m2
7
hol
3,55 m2
8
schowek
1,64 m2
9
łazienka (5,19)
3,9 m2
10
pokój (16,47)
13,55 m2
11
pokój (14,78)
11,64 m2
Razem 81,83 m2
12
schody (6,18)
13
schody (6,18)

W nawiasach podano powierzchnie pomieszczenia netto

Elewacje
Wersja lustrzana
Elewacja 1
Elewacja 1
Elewacja 2
Elewacja 3
Elewacja 4
REKLAMA

Działka

Wybór działki to jedna z ważniejszych decyzji poprzedzających budowę wymarzonego domu. Oczywiście najważniejsza jest jej lokalizacja, ale trzeba także przeanalizować lokalne ograniczenia wyszczególnione w miejscowym planie zagospodarowania przestrzennego lub w warunkach zabudowy. Często zapisy w w/w dokumentach uniemożliwiają budowę wybranego projektu i trzeba szukać dalej.

Ważne jest także usytuowanie działki i domu względem stron świata, gdyż to właśnie decyduje o stopniu nasłonecznienia poszczególnych pomieszczeń. Dlatego każdy projekt oferujemy w dwóch wersjach: podstawowej oraz lustrzanej, aby można było wybrać najkorzystniejszy układ pomieszczeń względem stron świata, a także względem ukształtowania krajobrazu w otoczeniu działki.

Wymiary działki
Wymiary działki (szerokość x głębokość), na której możliwe jest wybudowanie domu. Wynikają one z wymiarów budynku powiększonych o wymagane przepisami odległości poszczególnych elementów budynku od granic działki. Rzeczywistą odległość od drogi należy sprawdzić i dostosować do wymogów zawartych w MPZA lub WZ.
24.26 x 16.76 m
Przekrój
Wersja lustrzana

Parametry

Dane Techniczne
Technologia i materiały
Parametry cieplne
Powierzchnia użytkowa
Suma powierzchni pomieszczeń mierzona po wewnętrznym obrysie ścian. Na jej wielkość ma wpływ wysokość pomieszczenia i jest liczona: – w 100% – przy wysokości w świetle powyżej 2,2 m, – w 50% – przy wysokości między 1,4 m a 2,2 m, – pomija się – przy wysokości poniżej 1,4 m. Do powierzchni użytkowej domu nie dolicza się powierzchni niektórych pomieszczeń, np. piwnicy, garażu, kotłowni, strychu.
172,14 m2
Powierzchnia zabudowy
Powierzchnia mierzona po obrysie zewnętrznych krawędzi wykończonego budynku z uwzględnieniem powierzchni nadwieszonych (np. wykusz). Nie dolicza się do niej elementów drugorzędnych (np. schodów zewnętrznych, daszków, ramp) oraz elementów niewystających ponad powierzchnię terenu
142,44 m2
Powierzchnia netto
Powierzchnia wszystkich pomieszczeń budynku mierzona na poziomie podłogi, po wewnętrznym obrysie ścian w stanie wykończonym. Na jej wartość nie wpływa wysokość pomieszczeń.
208,41 m2
Kąt nachylenia dachu
42°
Kubatura
Objętość budynku liczona wraz z przegrodami zewnętrznymi i wewnętrznymi (ścianami, stropem, dachem i podmurówką)
552,24 m3
Wysokość budynku
Wysokość mierzona od poziomu terenu przy wejściu do budynku do najwyższego punktu dachu – kalenicy
8,68 m
Wymiary budynku
16,26 x 8,76 m
Wymiary działki
Wymiary działki (szerokość x głębokość), na której możliwe jest wybudowanie domu. Wynikają one z wymiarów budynku powiększonych o wymagane przepisami odległości poszczególnych elementów budynku od granic działki. Rzeczywistą odległość od drogi należy sprawdzić i dostosować do wymogów zawartych w MPZA lub WZ
24,26 x 16,76 m
Pokoje (z salonem)
Liczba wszystkich pokoi
7
Łazienki i wc
Suma łazienek i wc
4
Sezonowość
Całoroczny
REKLAMA

Opis projektu

Z351 to dom dwulokalowy z tradycyjnym dachem dwuspadowym. Aranżację przyziemia stanowią klomby na tarasie. Elewację wykończono płytkami klinkierowymi. W połączeniu z kompozycją z pergoli są one znakomitym akcentem architektonicznym dopełniającym całość budynku.

Parter to dzienna strefa domu. Stanowią go dwa oddzielne mieszkania połączone pomieszczeniem gospodarczym, które można zamknąć z każdej strony aby uzyskać efekt prywatności. Lewe skrzydło jest większe niż prawe. Pozwala nam to dysponować mieszkaniami w zależności od naszych potrzeb. Oddzielne sienie zaprojektowano po to, aby między rodzinami nie powstawały konflikty na tle zamiatania naniesionego piasku. Kolejny atut stanowią oddzielne łazienki, kuchnie, salon z jadalnią, gdzie znakomicie można wypocząć przy ciepłym kominku.

Piętro to również dwa oddzielne mieszkania, niepołączone ze sobą przejściem jak w przypadku parteru. Lewe skrzydło posiada 3 pokoje, z których jeden sąsiaduje z przylegającą prywatną garderobą. Prawe skrzydło, mniejsze, posiada dwa pokoje i łazienkę oraz schowek na szczotki lub ubrania, to od nas i naszych potrzeb zależy jak wykorzystamy to pomieszczenie.

Budynek dedykowany jest dla osób, które chcą jedno mieszkanie wynająć drugie zajmować samemu. Z biegiem czasu, gdy dzieci podrosną, mogą zamieszkiwać w jednym skrzydle a rodzice w drugim. Podkreślenie wejścia głównego oraz wejść tarasowych przez białe formy architektoniczne oraz kompozycja z pergolami stanowią kunsztowne wykończenie praktycznego domu dwulokalowego.

Koszty

Orientacyjne koszty budowy netto - wycena wskaźnikowa Ceny aktualne na: IV kwartał 2025
Jak dokonujemy wyliczeń? icon arrow
Razem (etapy 1-3): 454 700 zł
1. Stan zero
Koszt etapu 85 000 zł
Zakres prac

wytyczenie budynku i roboty ziemne; ławy i stopy fundamentowe; ściany podziemne z izolacjami cieplnymi i przeciwwilgociowymi

2. Stan surowy otwarty
Koszt etapu + 290 700 zł
Zakres prac

ściany murowane zewnętrzne i wewnętrzne; stropy i schody wewnętrzne; konstrukcja dachu z pokryciem, obróbkami, rynnami i rurami spustowymi; podłoża pod posadzki ( np. chudy beton)

3. Stan surowy zamknięty
Koszt etapu + 79 100 zł
Zakres prac

okna i drzwi zewnętrzne; bramy garażowe; warstwy wyrównawcze pod posadzki na gruncie i na stropie z izolacjami cieplnymi i przeciwwilgociowymi

Razem (etapy 1-3): 454 700 zł
4. Instalacje elektryczne
Koszt etapu od 62,40 do 219,70 zł/m2

*

Zakres prac

wewnętrzna instalacja oświetleniowa; instalacja gniazd wtykowych; instalacja siły oraz instalacja odgromowa i inne wewnętrzne instalacje teletechniczne

5. Instalacje sanitarne
Koszt etapu od 232,70 do 910 zł/m2

**

Zakres prac

wewnętrzna instalacja wod. - kan. z przyborami sanitarnymi i bateriami; instalacja c.o. z kotłem i grzejnikami, bez kominka; instalacja gazowa bez osprzętu kuchennego; wentylacja mechaniczna ( jeśli występuje)

6. Wykończenie zewnętrzne
Koszt etapu od 126,10 do 638,30 zł/m2

***

Zakres prac

system dociepleń i tynki zewnętrzne z malowaniem; okładziny elewacyjne; balustrady, parapety zewnętrzne i inne roboty zewnętrzne np. taras, opaski wokół domu, schody zewnętrzne

7. Wykończenie wewnętrzne
Koszt etapu od 429 do 878,80 zł/m2

***

Zakres prac

tynki wewnętrzne, drzwi i okna wewnętrzne, lekkie ścianki działowe, roboty malarskie, posadzki i inne prace wykończeniowe

* w zależności od ilości punktów elektrycznych na 1m2

** w zależności od ilości punktów sanitarnych na 1m2 oraz ilości (odległości) instalacji rurowej

*** w zależności od rodzaju użytych meteriałów i specyfikacji wykończenia

REKLAMA

Zmiany w projekcie

Zobacz zakres zmian, które możesz wprowadzić, w tym projekcie bez zgody autora.
Lista możliwych zmian

Jeśli zmiany, które chcesz wprowadzić nie są ujęte w powyższym zestawieniu, skontaktuj się z nami. Nasz architekt przeanalizuje i doradzi, które z Twoich propozycji warto wdrożyć. O zgodę na zmiany możesz wystąpić nie tylko w momencie zakupu projektu, ale także później i otrzymasz ją bezpłatnie w ciągu kilku dni.

Pliki do pobrania

Rysunki szczegółowepdf Pobierz

Dokumentacja (zawartość pakietu projektowego)

Dodatki

Pakiet dodatków, który otrzymasz razem z projektem

addon
Teczka inwestora
Do przechowywania niezbędnej dokumentacji
addon
Kupony rabatowe na zakupy
Dzięki którym zaoszczędzisz nawet kilkanaście tysięcy złotych.
addon
Projekty małej architektury
Wybudujesz samodzielnie m.in. domek dla dzieci czy altanę z grillem.
Pamiętaj
dostawa
Wysyłkę projektu ze wszystkimi dodatkami na terenie Polski bierzemy na siebie. Ty wybierasz, gdzie odbierzesz swój projekt. Masz do wyboru kuriera DPD lub punkty Paczkomat InPost 24/7.
zwroty

Masz 30 dni na zwrot i 365 dni na wymianę projektu