pn.-pt. 8-20

Projekt domu Z330 D P wersja lustrzana




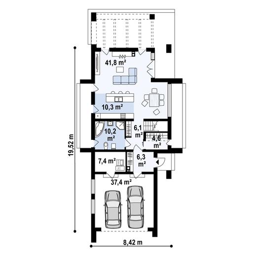
W nawiasach podano powierzchnie pomieszczenia netto

W nawiasach podano powierzchnie pomieszczenia netto
Projekt domu Z330 D P
wersja lustrzanaKoncepcja projektu
Nasi doradcy przedstawią szczegółowe informacje dotyczące projektu.
Projekt wycofany z oferty
Dodatki
Atrakcyjne rabaty
Kompleksowe wsparcie
Gwarancja najniższej ceny
Wygodne zakupy
Zgoda na zmiany w projekcie
Szczegółowa dokumentacja
Rzuty, przekrój, elewacje

W nawiasach podano powierzchnie pomieszczenia netto

W nawiasach podano powierzchnie pomieszczenia netto
Działka
Wybór działki to jedna z ważniejszych decyzji poprzedzających budowę wymarzonego domu. Oczywiście najważniejsza jest jej lokalizacja, ale trzeba także przeanalizować lokalne ograniczenia wyszczególnione w miejscowym planie zagospodarowania przestrzennego lub w warunkach zabudowy. Często zapisy w w/w dokumentach uniemożliwiają budowę wybranego projektu i trzeba szukać dalej.
Ważne jest także usytuowanie działki i domu względem stron świata, gdyż to właśnie decyduje o stopniu nasłonecznienia poszczególnych pomieszczeń. Dlatego każdy projekt oferujemy w dwóch wersjach: podstawowej oraz lustrzanej, aby można było wybrać najkorzystniejszy układ pomieszczeń względem stron świata, a także względem ukształtowania krajobrazu w otoczeniu działki.

Parametry
Opis projektu
Z330 D p to kolejny z serii domów Z500, nadających się do budowy na wąskiej działce. Dostarczy jego właścicielom potrójnej satysfakcji:
1 - Posiada portfenetrowe okna zapewniające elegancki wygląd i możliwość wyjścia na taras.
2 – podzielony jest na komfortowe strefy: dzienną i nocną.
3 – wąska działka przestaje być problemem a staje się możliwością.
Połączenie dwóch stylów w architekturze: nowoczesnego i tradycyjnego wyrażone jest w podłużnej, zwartej bryle bez ozdób oraz w pokryciu bezokapowym dachem dwuspadowym. Dominujące ciemne elementy przykrywają część białego tynku prowokując zabawę całością formy.
Funkcjonalny układ pomieszczeń podzielono na strefę dzienną, która znajduje się w parterze oraz część nocną na poddaszu użytkowym.
Garaż dwustanowiskowy, obszerny salon z jadalnią i kuchnia open space, pięknie wykończona łazienka na planie kwadratu oraz praktyczny schowek wpisują się w cześć parterową. Bez wątpienia duży atut stanowią rozpostarte z trzech stron świata tarasy, z ozdobnymi ażurowymi elementami. Wyjście na zewnątrz prowadzi z każdej strony. Dzięki temu wielbiciele słonecznych kąpieli mogą „ścigać słońce”, od świtu do zmierzchu, przechodząc z jednego tarasu na drugi. Natomiast entuzjaści wieczornych eventów mają możliwość dobudowania kominka na głównym tarasie. Daje nam to okazję do spędzania tam czasu także w celu zbliżenia się do natury, nie tylko w refleksach światła słonecznego, lecz także w blasku ciepłych płomieni tańczącego w kominku ognia.
Na poddasze użytkowe składają się 3 pokoje, które stanowią strefę nocną, w którą wpisują się 3 pokoje. Sypialnia rodziców posiada oddzielną łazienkę, a każda z sypialni wyposażona jest w okna połaciowe. Ściany szczytowe również mają dodatkowe okna, aby bardziej doświetlić wnętrza.
Pomimo okrojonych wymiarów działki architektowi udało się wygospodarować miejsce w dedykowanym domu dla 4-5 osobowej rodziny.
Koszty
wytyczenie budynku i roboty ziemne; ławy i stopy fundamentowe; ściany podziemne z izolacjami cieplnymi i przeciwwilgociowymi
ściany murowane zewnętrzne i wewnętrzne; stropy i schody wewnętrzne; konstrukcja dachu z pokryciem, obróbkami, rynnami i rurami spustowymi; podłoża pod posadzki ( np. chudy beton)
okna i drzwi zewnętrzne; bramy garażowe; warstwy wyrównawcze pod posadzki na gruncie i na stropie z izolacjami cieplnymi i przeciwwilgociowymi
*
wewnętrzna instalacja oświetleniowa; instalacja gniazd wtykowych; instalacja siły oraz instalacja odgromowa i inne wewnętrzne instalacje teletechniczne
**
wewnętrzna instalacja wod. - kan. z przyborami sanitarnymi i bateriami; instalacja c.o. z kotłem i grzejnikami, bez kominka; instalacja gazowa bez osprzętu kuchennego; wentylacja mechaniczna ( jeśli występuje)
***
system dociepleń i tynki zewnętrzne z malowaniem; okładziny elewacyjne; balustrady, parapety zewnętrzne i inne roboty zewnętrzne np. taras, opaski wokół domu, schody zewnętrzne
***
tynki wewnętrzne, drzwi i okna wewnętrzne, lekkie ścianki działowe, roboty malarskie, posadzki i inne prace wykończeniowe
* w zależności od ilości punktów elektrycznych na 1m2
** w zależności od ilości punktów sanitarnych na 1m2 oraz ilości (odległości) instalacji rurowej
*** w zależności od rodzaju użytych meteriałów i specyfikacji wykończenia
Zmiany w projekcie
Jeśli zmiany, które chcesz wprowadzić nie są ujęte w powyższym zestawieniu, skontaktuj się z nami. Nasz architekt przeanalizuje i doradzi, które z Twoich propozycji warto wdrożyć. O zgodę na zmiany możesz wystąpić nie tylko w momencie zakupu projektu, ale także później i otrzymasz ją bezpłatnie w ciągu kilku dni.
Dokumentacja (zawartość pakietu projektowego)
3 egzemplarze projektu architektoniczno-budowlanego ze szczegółowym opisem
Dowiedz sie wiecej3 egzemplarze projektu technicznego (konstrukcja, instalacje: wodno-kanalizacyjna, c.o., elektryczna, gazowa (jeśli występują)) ze szczegółowym opisem
Dowiedz sie wiecejCharakterystyka energetyczna (jeśli dotyczy)
Lista zmian, które można wprowadzić w ramach adaptacji projektu
Dodatki
Pakiet dodatków, który otrzymasz razem z projektem




Masz 30 dni na zwrot i 365 dni na wymianę projektu
Dodatki w dobrej cenie
Dodatki możesz dobrać także w koszyku lub podczas zakupów u naszego doradcy.