pn.-pt. 8-20
 
            Projekt domu SP027 energo wersja lustrzana
 
        
     
        
     
        
     
        
     
        
     
        
     
        
     
        
     
        
     
        
     
        
     
        
     
        
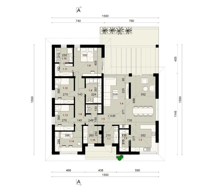
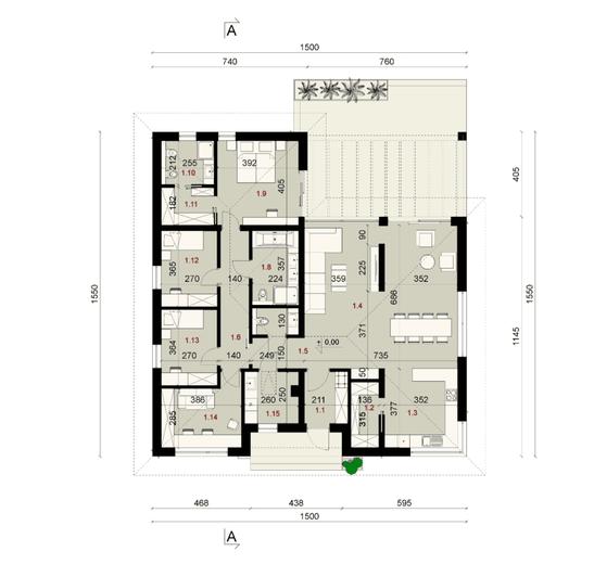
    W nawiasach podano powierzchnie pomieszczenia netto
 
        
     
        
    Projekt domu SP027 energo
wersja lustrzanaKoncepcja projektu
Nasi doradcy przedstawią szczegółowe informacje dotyczące projektu.
Projekt wycofany z oferty
Dodatki
Atrakcyjne rabaty
Kompleksowe wsparcie
Gwarancja najniższej ceny
Wygodne zakupy
Zgoda na zmiany w projekcie
Szczegółowa dokumentacja
Rzuty, przekrój, elewacje
 
            
        Możliwość wykorzystania dodatkowej powierzchni na strychu
W nawiasach podano powierzchnie pomieszczenia netto
 
                    
                 
                    
                 
                    Parametry
Opis projektu
Minimalistyczne wykończenie elewacji utrzymane w odcieniach szarości nadają bryle ciekawego efektu wizualnego.
Projekt dostępny także w wersji odbicia lustrzanego.
Zmiany w projekcie
Jeśli zmiany, które chcesz wprowadzić nie są ujęte w powyższym zestawieniu, skontaktuj się z nami. Nasz architekt przeanalizuje i doradzi, które z Twoich propozycji warto wdrożyć. O zgodę na zmiany możesz wystąpić nie tylko w momencie zakupu projektu, ale także później i otrzymasz ją bezpłatnie w ciągu kilku dni.
Dokumentacja (zawartość pakietu projektowego)
3 egzemplarze projektu architektoniczno-budowlanego ze szczegółowym opisem
Dowiedz sie wiecej3 egzemplarze projektu technicznego (konstrukcja, instalacje: wodno-kanalizacyjna, c.o., elektryczna, gazowa (jeśli występują)) ze szczegółowym opisem
Dowiedz sie wiecejCharakterystyka energetyczna (jeśli dotyczy)
Dowiedz sie wiecejDodatki
Pakiet dodatków, który otrzymasz razem z projektem
 
             
             
            Masz 30 dni na zwrot i 365 dni na wymianę projektu
Dodatki w dobrej cenie
Dodatki możesz dobrać także w koszyku lub podczas zakupów u naszego doradcy.
Inspiracje
 
                     
                     
                     
                     
                     
                     
                     
                     
                     
    
 
    
 
    
 
    
 
    
 
    
 
    
 
    
 
    
 
    
 
    
 
    
 
    
 
            
            
         
            
            
         
            
            
         
            
            
         
            
            
         
            
            
         
                     
                     
                    