pn.-pt. 8-20

Projekt domu EG-100 wersja lustrzana



W nawiasach podano powierzchnie pomieszczenia netto





Projekt domu EG-100
wersja lustrzanaKoncepcja projektu
Nasi doradcy przedstawią szczegółowe informacje dotyczące projektu.
Projekt wycofany z oferty
Dodatki
Atrakcyjne rabaty
Kompleksowe wsparcie
Gwarancja najniższej ceny
Wygodne zakupy
Zgoda na zmiany w projekcie
Szczegółowa dokumentacja
Rzuty, przekrój, elewacje

W nawiasach podano powierzchnie pomieszczenia netto

do indywidualnej adaptacji (57,29 m2 pow. użytkowej)





Działka
Wybór działki to jedna z ważniejszych decyzji poprzedzających budowę wymarzonego domu. Oczywiście najważniejsza jest jej lokalizacja, ale trzeba także przeanalizować lokalne ograniczenia wyszczególnione w miejscowym planie zagospodarowania przestrzennego lub w warunkach zabudowy. Często zapisy w w/w dokumentach uniemożliwiają budowę wybranego projektu i trzeba szukać dalej.
Ważne jest także usytuowanie działki i domu względem stron świata, gdyż to właśnie decyduje o stopniu nasłonecznienia poszczególnych pomieszczeń. Dlatego każdy projekt oferujemy w dwóch wersjach: podstawowej oraz lustrzanej, aby można było wybrać najkorzystniejszy układ pomieszczeń względem stron świata, a także względem ukształtowania krajobrazu w otoczeniu działki.

Parametry
Opis projektu
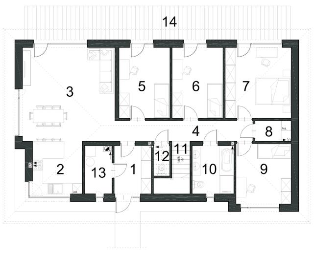
Projekt domu EG-100: Układ pomieszczeń
Na parterze domu EG-100 znajduje się przestronny przedsionek, który prowadzi do serca domu - kuchni oraz pokoju dziennego połączonego z jadalnią. To idealne miejsce do wspólnego spędzania czasu i rodzinnych posiłków. Korytarz łączy wszystkie pomieszczenia, w tym cztery sypialnie, które zapewniają prywatność i komfort każdemu członkowi rodziny. Dodatkowo, na parterze znajdują się dwie łazienki, co jest niezwykle praktyczne w codziennym użytkowaniu. Projekt domu EG-100 przewiduje również pomieszczenie gospodarcze, które może służyć jako pralnia lub schowek. Schody prowadzące na poddasze, które można zaadaptować według własnych potrzeb, dają możliwość powiększenia przestrzeni mieszkalnej w przyszłości. Kotłownia z pompą ciepła zapewnia nowoczesne i ekologiczne ogrzewanie domu. Na zewnątrz znajduje się taras, idealny do relaksu na świeżym powietrzu.Projekt domu EG-100: Komfort i nowoczesność
Dom EG-100 to projekt, który łączy w sobie nowoczesne rozwiązania architektoniczne z funkcjonalnością. Duże przeszklenia w salonie i jadalni wpuszczają mnóstwo naturalnego światła, co sprawia, że wnętrza są jasne i przytulne. Brak garażu i wiaty może być zaletą dla osób, które preferują większą przestrzeń ogrodową lub planują postawienie wolnostojącego garażu. Wysoki standard wykończenia oraz przemyślany układ pomieszczeń sprawiają, że dom EG-100 jest idealnym miejscem do życia dla nowoczesnej rodziny. Dzięki możliwości adaptacji poddasza, dom można dostosować do zmieniających się potrzeb mieszkańców, co czyni go inwestycją na lata. Projekt Projekt domu EG-100 dostępny zarówno w wersji podstawowej, jak i lustrzanej.Koszty
wytyczenie budynku i roboty ziemne; ławy i stopy fundamentowe; ściany podziemne z izolacjami cieplnymi i przeciwwilgociowymi
ściany murowane zewnętrzne i wewnętrzne; stropy i schody wewnętrzne; konstrukcja dachu z pokryciem, obróbkami, rynnami i rurami spustowymi; podłoża pod posadzki ( np. chudy beton)
okna i drzwi zewnętrzne; bramy garażowe; warstwy wyrównawcze pod posadzki na gruncie i na stropie z izolacjami cieplnymi i przeciwwilgociowymi
*
wewnętrzna instalacja oświetleniowa; instalacja gniazd wtykowych; instalacja siły oraz instalacja odgromowa i inne wewnętrzne instalacje teletechniczne
**
wewnętrzna instalacja wod. - kan. z przyborami sanitarnymi i bateriami; instalacja c.o. z kotłem i grzejnikami, bez kominka; instalacja gazowa bez osprzętu kuchennego; wentylacja mechaniczna ( jeśli występuje)
***
system dociepleń i tynki zewnętrzne z malowaniem; okładziny elewacyjne; balustrady, parapety zewnętrzne i inne roboty zewnętrzne np. taras, opaski wokół domu, schody zewnętrzne
***
tynki wewnętrzne, drzwi i okna wewnętrzne, lekkie ścianki działowe, roboty malarskie, posadzki i inne prace wykończeniowe
* w zależności od ilości punktów elektrycznych na 1m2
** w zależności od ilości punktów sanitarnych na 1m2 oraz ilości (odległości) instalacji rurowej
*** w zależności od rodzaju użytych meteriałów i specyfikacji wykończenia
Zmiany w projekcie
Jeśli zmiany, które chcesz wprowadzić nie są ujęte w powyższym zestawieniu, skontaktuj się z nami. Nasz architekt przeanalizuje i doradzi, które z Twoich propozycji warto wdrożyć. O zgodę na zmiany możesz wystąpić nie tylko w momencie zakupu projektu, ale także później i otrzymasz ją bezpłatnie w ciągu kilku dni.
Dokumentacja (zawartość pakietu projektowego)
3 egzemplarze projektu architektoniczno-budowlanego ze szczegółowym opisem
Dowiedz sie wiecej3 egzemplarze projektu technicznego (konstrukcja, instalacje: wodno-kanalizacyjna, c.o., elektryczna, gazowa (jeśli występują)) ze szczegółowym opisem
Dowiedz sie wiecejCharakterystyka energetyczna (jeśli dotyczy)
Lista zmian, które można wprowadzić w ramach adaptacji projektu
Dodatki
Pakiet dodatków, który otrzymasz razem z projektem




Masz 30 dni na zwrot i 365 dni na wymianę projektu
Dodatki w dobrej cenie
Dodatki możesz dobrać także w koszyku lub podczas zakupów u naszego doradcy.