pn.-pt. 8-20

Projekt domu E-220 wersja lustrzana






W nawiasach podano powierzchnie pomieszczenia netto

W nawiasach podano powierzchnie pomieszczenia netto




Projekt domu E-220
wersja lustrzanaKoncepcja projektu
Nasi doradcy przedstawią szczegółowe informacje dotyczące projektu.
Projekt wycofany z oferty
Dodatki
Atrakcyjne rabaty
Kompleksowe wsparcie
Gwarancja najniższej ceny
Wygodne zakupy
Zgoda na zmiany w projekcie
Szczegółowa dokumentacja
Rzuty, przekrój, elewacje

W nawiasach podano powierzchnie pomieszczenia netto

W nawiasach podano powierzchnie pomieszczenia netto





Działka
Wybór działki to jedna z ważniejszych decyzji poprzedzających budowę wymarzonego domu. Oczywiście najważniejsza jest jej lokalizacja, ale trzeba także przeanalizować lokalne ograniczenia wyszczególnione w miejscowym planie zagospodarowania przestrzennego lub w warunkach zabudowy. Często zapisy w w/w dokumentach uniemożliwiają budowę wybranego projektu i trzeba szukać dalej.
Ważne jest także usytuowanie działki i domu względem stron świata, gdyż to właśnie decyduje o stopniu nasłonecznienia poszczególnych pomieszczeń. Dlatego każdy projekt oferujemy w dwóch wersjach: podstawowej oraz lustrzanej, aby można było wybrać najkorzystniejszy układ pomieszczeń względem stron świata, a także względem ukształtowania krajobrazu w otoczeniu działki.

Parametry
Opis projektu
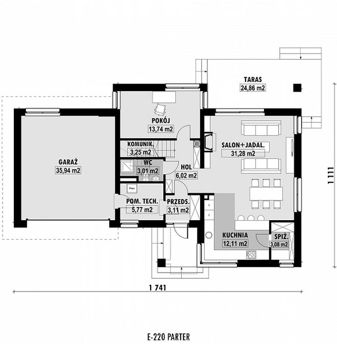
Projekt domu E-220 to projekt piętrowego domu jednorodzinnego, niepodpiwniczonego, o łącznej powierzchni użytkowej 158,9 m2. Jest to wersja domu z garażem dwustanowiskowym z boku budynku. Oferta skierowana do rodzin 5-6 osobowych, najlepiej sprawdzi się w przypadku realizacji na działce średniej wielkości.
Bryła budynku
Projekt domu E-220 charakteryzuje się nieskomplikowaną bryłą budynku. Mimo to nie prezentuje się banalnie dzięki zastosowaniu wielospadowego dachu. Projekt powstał z myślą o zabudowie wolno stojącej. Zalecana technologia – murowana – ma możliwie jak najbardziej zwiększyć solidność i trwałość całego budynku.
Wnętrze budynku
Wnętrze budynku w projekcie E-220 zostało zaprojektowane w sposób funkcjonalny i przestronny. Dzięki temu projekt zadowoli wielopokoleniową rodzinę. Na parterze przewidziano pokój do dostosowania według własnych potrzeb, obok niego toaletę. Strefa dzienna, zajmująca jedną przestrzeń, składa się z salonu, jadalni i kuchni. Zaplanowano również miejsce na wydzieloną spiżarnię. Na piętrze zaprojektowano trzy sypialnie, z czego jedną przeznaczoną dla rodziców, z własną łazienką i garderobą. Oprócz tego autor projektu przewidział wspólną łazienkę, pralnię i praktyczny strych, dający wiele możliwości aranżacyjnych. Wspaniałym podsumowaniem projektu E-220 jest efektowny taras – miejsce stworzone do odpoczynku, relaksu i wspólnego czasu z rodziną.
Jeżeli szukasz idealnego miejsca dla swojej licznej rodziny – właśnie je znalazłeś. Nie ma co się dłużej zastanawiać, projekt E-220 jest atrakcyjny wizualnie, a do tego bardzo komfortowy w użytkowaniu i niedrogi w realizacji. Naprawdę ciężko znaleźć jakiekolwiek słabe strony tego projektu. Dom spełni nawet wysoko postawione oczekiwania.
Koszty
wytyczenie budynku i roboty ziemne; ławy i stopy fundamentowe; ściany podziemne z izolacjami cieplnymi i przeciwwilgociowymi
ściany murowane zewnętrzne i wewnętrzne; stropy i schody wewnętrzne; konstrukcja dachu z pokryciem, obróbkami, rynnami i rurami spustowymi; podłoża pod posadzki ( np. chudy beton)
Stan zero (wytyczenie budynku i roboty ziemne; ławy i stopy fundamentowe; ściany podziemne z izolacjami cieplnymi i przeciwwilgociowymi) oraz stan surowy (ściany murowane z zewnętrzne i wewnętrzne; stropy i schody wewnętrzne, konstrukcja dachu z pokryciem, obróbkami, rynnami i rurami spustowymi; podłoża pod posadzki (np. chudy beton), okna i drzwi zewnętrzne; bramy garażowe; warstwy wyrównawcze pod posadzki na gruncie i na stropie z izolacjami cieplnymi i przeciwwilgociowymi).
*
wewnętrzna instalacja oświetleniowa; instalacja gniazd wtykowych; instalacja siły oraz instalacja odgromowa i inne wewnętrzne instalacje teletechniczne
**
wewnętrzna instalacja wod. - kan. z przyborami sanitarnymi i bateriami; instalacja c.o. z kotłem i grzejnikami, bez kominka; instalacja gazowa bez osprzętu kuchennego; wentylacja mechaniczna ( jeśli występuje)
***
system dociepleń i tynki zewnętrzne z malowaniem; okładziny elewacyjne; balustrady, parapety zewnętrzne i inne roboty zewnętrzne np. taras, opaski wokół domu, schody zewnętrzne
***
tynki wewnętrzne, drzwi i okna wewnętrzne, lekkie ścianki działowe, roboty malarskie, posadzki i inne prace wykończeniowe
* w zależności od ilości punktów elektrycznych na 1m2
** w zależności od ilości punktów sanitarnych na 1m2 oraz ilości (odległości) instalacji rurowej
*** w zależności od rodzaju użytych meteriałów i specyfikacji wykończenia
Zmiany w projekcie
Jeśli zmiany, które chcesz wprowadzić nie są ujęte w powyższym zestawieniu, skontaktuj się z nami. Nasz architekt przeanalizuje i doradzi, które z Twoich propozycji warto wdrożyć. O zgodę na zmiany możesz wystąpić nie tylko w momencie zakupu projektu, ale także później i otrzymasz ją bezpłatnie w ciągu kilku dni.
Pliki do pobrania
Dokumentacja (zawartość pakietu projektowego)
3 egzemplarze projektu architektoniczno-budowlanego ze szczegółowym opisem
Dowiedz sie wiecej3 egzemplarze projektu technicznego (konstrukcja, instalacje: sanitarna, c.o., elektryczna, gazowa (jeśli występują)) ze szczegółowym opisem i charakterystyką energetyczną (jeśli dotyczy)
Dowiedz sie wiecejZgoda autora na zmiany w projekcie "in blanco"
Dodatki
Pakiet dodatków, który otrzymasz razem z projektem




Masz 30 dni na zwrot i 365 dni na wymianę projektu
Dodatki w dobrej cenie
Dodatki możesz dobrać także w koszyku lub podczas zakupów u naszego doradcy.
Inspiracje


