+48 22 59 05 000

pn.-pt. 8-20

Kontakt i pomoc^
Kontakt i pomoc
Zamów rozmowę
Napisz do nas
Pomoc w kredycie
Bezpłatna analiza działki
logo
ulubione 0
REKLAMA
REKLAMA
AI17

Projekt domu AI17

wersja lustrzana
Rzuty
Działka
Parametry
Podobne
Zmiany
Dokumentacja
Dodatki
REKLAMA

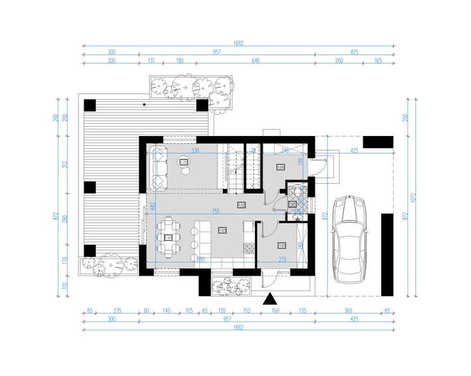
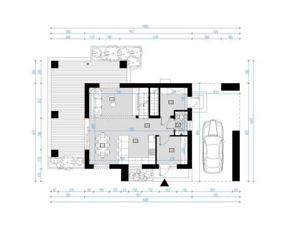
Rzuty, przekrój, elewacje

Parter 53,36 m2
Wersja lustrzana
Pomieszczenie Użytkowa
1
przedsionek
6,73 m2
2
hol
5,0 m2
3
kuchnia
8,52 m2
4
jadalnia
6,7 m2
5
pokój dzienny
17,97 m2
6
kotłownia + pom. gosp.
6,2 m2
7
łazienka
2,24 m2
Razem 53,36 m2

W nawiasach podano powierzchnie pomieszczenia netto

Poddasze 35,28 m2
Wersja lustrzana
Pomieszczenie Użytkowa
2
hol
3,5 m2
3
łazienka (9,6)
6,85 m2
4
pokój (12,14)
7,33 m2
5
pokój (13,9)
9,17 m2
6
pokój (13,15)
8,43 m2
Razem 35,28 m2
1
schody
4,78 m2

W nawiasach podano powierzchnie pomieszczenia netto

Przekrój
Wersja lustrzana
Przekrój
Kąt nachylenia dachu 40°
Wysokość budynku 7,78 m
Wysokość parteru 2,60 m
Elewacje
Wersja lustrzana
Elewacja 1
Elewacja 1
Elewacja 2
Elewacja 3
Elewacja 4
REKLAMA

Działka

Wybór działki to jedna z ważniejszych decyzji poprzedzających budowę wymarzonego domu. Oczywiście najważniejsza jest jej lokalizacja, ale trzeba także przeanalizować lokalne ograniczenia wyszczególnione w miejscowym planie zagospodarowania przestrzennego lub w warunkach zabudowy. Często zapisy w w/w dokumentach uniemożliwiają budowę wybranego projektu i trzeba szukać dalej.

Ważne jest także usytuowanie działki i domu względem stron świata, gdyż to właśnie decyduje o stopniu nasłonecznienia poszczególnych pomieszczeń. Dlatego każdy projekt oferujemy w dwóch wersjach: podstawowej oraz lustrzanej, aby można było wybrać najkorzystniejszy układ pomieszczeń względem stron świata, a także względem ukształtowania krajobrazu w otoczeniu działki.

Wymiary działki
Wymiary działki (szerokość x głębokość), na której możliwe jest wybudowanie domu. Wynikają one z wymiarów budynku powiększonych o wymagane przepisami odległości poszczególnych elementów budynku od granic działki. Rzeczywistą odległość od drogi należy sprawdzić i dostosować do wymogów zawartych w MPZA lub WZ.
22.82 x 16.72 m
Przekrój
Wersja lustrzana

Parametry

Dane Techniczne
Technologia i materiały
Parametry cieplne
Powierzchnia użytkowa
Suma powierzchni pomieszczeń mierzona po wewnętrznym obrysie ścian. Na jej wielkość ma wpływ wysokość pomieszczenia i jest liczona: – w 100% – przy wysokości w świetle powyżej 2,2 m, – w 50% – przy wysokości między 1,4 m a 2,2 m, – pomija się – przy wysokości poniżej 1,4 m. Do powierzchni użytkowej domu nie dolicza się powierzchni niektórych pomieszczeń, np. piwnicy, garażu, kotłowni, strychu.
88,64 m2
Powierzchnia zabudowy
Powierzchnia mierzona po obrysie zewnętrznych krawędzi wykończonego budynku z uwzględnieniem powierzchni nadwieszonych (np. wykusz). Nie dolicza się do niej elementów drugorzędnych (np. schodów zewnętrznych, daszków, ramp) oraz elementów niewystających ponad powierzchnię terenu
79,29 m2
Powierzchnia netto
Powierzchnia wszystkich pomieszczeń budynku mierzona na poziomie podłogi, po wewnętrznym obrysie ścian w stanie wykończonym. Na jej wartość nie wpływa wysokość pomieszczeń.
110,43 m2
Powierzchnia dachu
123,45 m2
Kąt nachylenia dachu
40°
Kubatura
Objętość budynku liczona wraz z przegrodami zewnętrznymi i wewnętrznymi (ścianami, stropem, dachem i podmurówką)
428 m3
Wysokość budynku
Wysokość mierzona od poziomu terenu przy wejściu do budynku do najwyższego punktu dachu – kalenicy
7,78 m
Wysokość parteru
Podana wartość to wysokość pomieszczeń parteru w stanie wykończonym, mierzona od poziomu posadzki do spodu sufitu.
2,60 m
Wysokość ścianki kolankowej
Ścianka kolankowa to zewnętrzna ściana nośna poddasza, wznoszona powyżej najwyższego stropu budynku, na której jest oparta więźba dachowa. Od wysokości ścianki kolankowej zależy funkcjonalność poddasza, wielkość jego powierzchni użytkowej oraz wygląd bryły budynku.
1 m
Wymiary budynku
16,82 x 10,72 m
Wymiary działki
Wymiary działki (szerokość x głębokość), na której możliwe jest wybudowanie domu. Wynikają one z wymiarów budynku powiększonych o wymagane przepisami odległości poszczególnych elementów budynku od granic działki. Rzeczywistą odległość od drogi należy sprawdzić i dostosować do wymogów zawartych w MPZA lub WZ
22,82 x 16,72 m
Pokoje (z salonem)
Liczba wszystkich pokoi
4
Łazienki i wc
Suma łazienek i wc
2
Miejsca postojowe
Suma miejsc postojowych (garaż + wiata garażowa)
1
Sezonowość
Całoroczny
REKLAMA

Opis projektu

Projekt domu AI17 dzięki oszczędnej, nowoczesnej formie oraz neutralnej stylistyce doskonale wpisuje się zarówno w zabudowę podmiejską, jak i w bardziej zurbanizowane otoczenie. Budynek jednorodzinny o dwóch kondygnacjach użytkowych parter oraz poddasze użytkowe. Prosta forma architektoniczna została wzbogacona o wydłużające horyzontalnie bryłę zadaszenie nad miejscem parkingowym oraz pergolę nad tarasem. Budynek łączy w sobie estetykę współczesnej architektury z funkcjonalnymi rozwiązaniami, tworząc komfortową przestrzeń do codziennego życia. Strefa wejściowa została zaprojektowana jako czytelny i wyraźnie zaakcentowany , zadaszony element elewacji frontowej, podnoszący komfort użytkowania niezależnie od warunków atmosferycznych. Zadaszenie pełni jednocześnie funkcję estetyczną, porządkując kompozycję bryły od strony frontowej. Parter stanowi przestrzeń wspólną domowników. Kuchnia została funkcjonalnie powiązana z jadalnią, co sprzyja codziennemu użytkowaniu i organizacji życia rodzinnego. Salon, usytuowany od strony ogrodu, posiada duże przeszklenia oraz bezpośrednie wyjście na taras, tworząc naturalne przedłużenie przestrzeni mieszkalnej na zewnątrz. Otwarty charakter tej kondygnacji zapewnia poczucie przestronności oraz sprzyja integracji domowników. Na poddaszu użytkowym zaprojektowano strefę prywatną. Układ obejmuje kilka sypialni o zbliżonych, funkcjonalnych proporcjach, co umożliwia ich elastyczne wykorzystanie – jako sypialnie, pokoje dziecięce, gabinet lub pokój gościnny.
Projekt zawiera szereg rozwiązań korzystnych z punktu widzenia deweloperskiego, m.in.: klarowny i kompaktowy układ komunikacji, prosta bryła wpływająca na obniżenie kosztów realizacji i eksploatacji, logiczny podział na strefy funkcjonalne, zwiększający atrakcyjność lokalu dla przyszłych użytkowników. Prosta bryła to niższe koszty wykonania i eksploatacji.
REKLAMA

Zmiany w projekcie

Zobacz zakres zmian, które możesz wprowadzić, w tym projekcie bez zgody autora.
Lista możliwych zmian

Jeśli zmiany, które chcesz wprowadzić nie są ujęte w powyższym zestawieniu, skontaktuj się z nami. Nasz architekt przeanalizuje i doradzi, które z Twoich propozycji warto wdrożyć. O zgodę na zmiany możesz wystąpić nie tylko w momencie zakupu projektu, ale także później i otrzymasz ją bezpłatnie w ciągu kilku dni.

Dokumentacja (zawartość pakietu projektowego)

Dodatki

Pakiet dodatków, który otrzymasz razem z projektem

addon
Teczka inwestora
Do przechowywania niezbędnej dokumentacji
addon
Kupony rabatowe na zakupy
Dzięki którym zaoszczędzisz nawet kilkanaście tysięcy złotych.
addon
Projekty małej architektury
Wybudujesz samodzielnie m.in. domek dla dzieci czy altanę z grillem.
Pamiętaj
dostawa
Wysyłkę projektu ze wszystkimi dodatkami na terenie Polski bierzemy na siebie. Ty wybierasz, gdzie odbierzesz swój projekt. Masz do wyboru kuriera DPD lub punkty Paczkomat InPost 24/7.
zwroty

Masz 30 dni na zwrot i 365 dni na wymianę projektu