+48 22 59 05 000

pn.-pt. 8-20

Kontakt i pomoc^
Kontakt i pomoc
Zamów rozmowę
Umów wideorozmowę
Napisz do nas
Pomoc w kredycie
Bezpłatna analiza działki
logo
ulubione 0
REKLAMA
REKLAMA
AI01

Projekt domu AI01 (bliźniak)

wersja lustrzana
Kupując u nas, zyskujesz więcej

Dodatki

Atrakcyjne rabaty

Kompleksowe wsparcie

Gwarancja najniższej ceny

Wygodne zakupy

Zgoda na zmiany w projekcie

Szczegółowa dokumentacja

Rzuty
Działka
Parametry
Koszty
Podobne
Zmiany
Dokumentacja
Dodatki
Inspiracje
REKLAMA

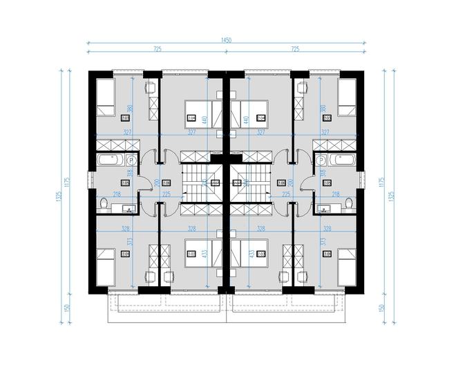
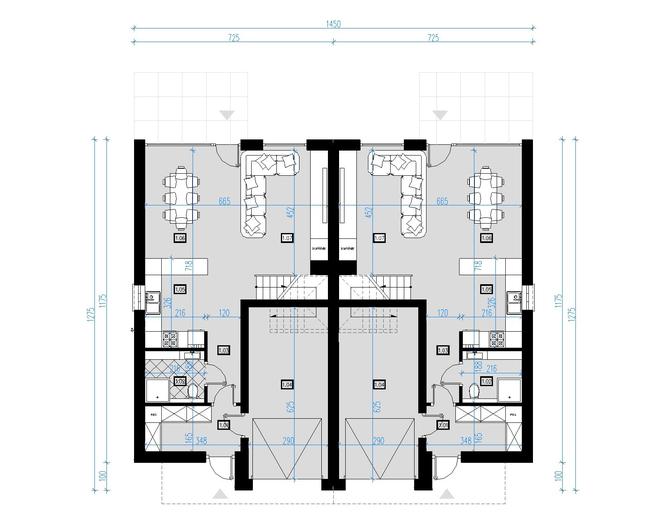
Rzuty, przekrój, elewacje

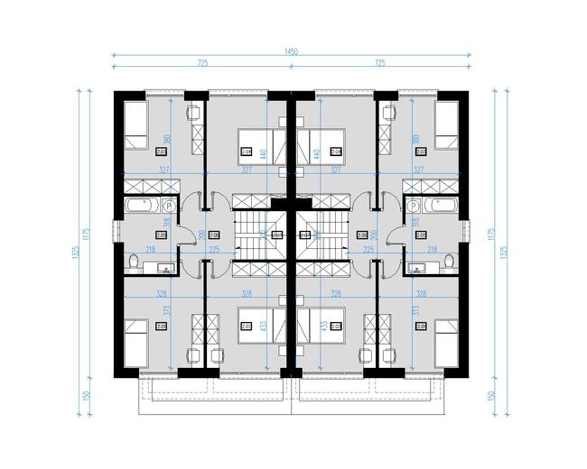
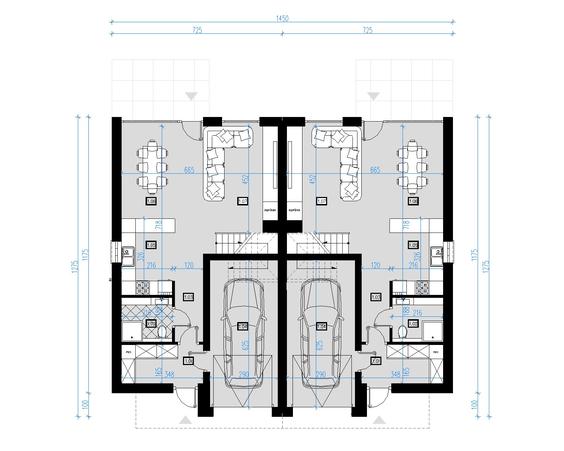
Parter 52,05 m2
Wersja lustrzana
Pomieszczenie Użytkowa
1
przedsionek
5,74 m2
2
łazienka
4,06 m2
3
korytarz
4,51 m2
5
aneks kuchenny
6,06 m2
6
jadalnia
10,3 m2
7
pokój dzienny
21,38 m2
Razem 52,05 m2
4
pom. gosp.
19,0 m2

W nawiasach podano powierzchnie pomieszczenia netto

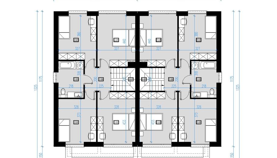
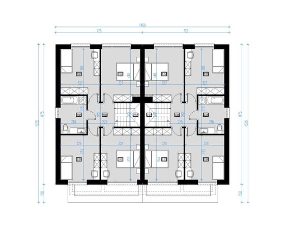
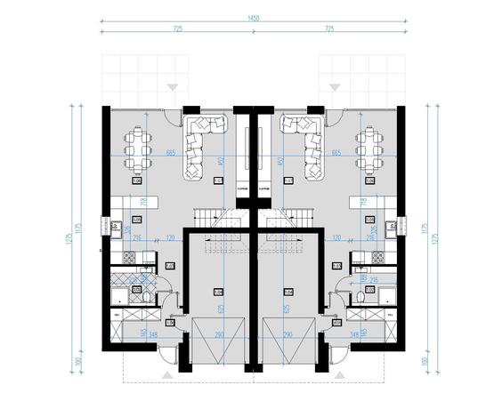
Piętro 69,86 m2
Wersja lustrzana
Pomieszczenie Użytkowa
1
sypialnia
12,8 m2
2
sypialnia
14,13 m2
3
sypialnia
13,03 m2
4
sypialnia
14,36 m2
5
łazienka
6,91 m2
6
korytarz
4,44 m2
7
schody
4,19 m2
Razem 69,86 m2

W nawiasach podano powierzchnie pomieszczenia netto

Przekrój
Wersja lustrzana
Przekrój
Kąt nachylenia dachu
Wysokość budynku 6,48 m
Wysokość parteru 2,7 m
Elewacje
Wersja lustrzana
Elewacja 1
Elewacja 1
Elewacja 2
REKLAMA

Działka

Wybór działki to jedna z ważniejszych decyzji poprzedzających budowę wymarzonego domu. Oczywiście najważniejsza jest jej lokalizacja, ale trzeba także przeanalizować lokalne ograniczenia wyszczególnione w miejscowym planie zagospodarowania przestrzennego lub w warunkach zabudowy. Często zapisy w w/w dokumentach uniemożliwiają budowę wybranego projektu i trzeba szukać dalej.

Ważne jest także usytuowanie działki i domu względem stron świata, gdyż to właśnie decyduje o stopniu nasłonecznienia poszczególnych pomieszczeń. Dlatego każdy projekt oferujemy w dwóch wersjach: podstawowej oraz lustrzanej, aby można było wybrać najkorzystniejszy układ pomieszczeń względem stron świata, a także względem ukształtowania krajobrazu w otoczeniu działki.

Wymiary działki
Wymiary działki (szerokość x głębokość), na której możliwe jest wybudowanie domu. Wynikają one z wymiarów budynku powiększonych o wymagane przepisami odległości poszczególnych elementów budynku od granic działki. Rzeczywistą odległość od drogi należy sprawdzić i dostosować do wymogów zawartych w MPZA lub WZ.
22.64 x 20.75 m
Przekrój

Parametry

Wymiary budynku i działki dotyczą dwóch segmentów. Pozostałe dane techniczne - jednego segmentu. W dokumentacji uwzględniono dwa źródła ciepła (kocioł na gaz i pompę ciepła). Wyboru opcji należy dokonać na etapie zamówienia projektu.

Dane Techniczne
Technologia i materiały
Parametry cieplne
Powierzchnia użytkowa
Suma powierzchni pomieszczeń mierzona po wewnętrznym obrysie ścian. Na jej wielkość ma wpływ wysokość pomieszczenia i jest liczona: – w 100% – przy wysokości w świetle powyżej 2,2 m, – w 50% – przy wysokości między 1,4 m a 2,2 m, – pomija się – przy wysokości poniżej 1,4 m. Do powierzchni użytkowej domu nie dolicza się powierzchni niektórych pomieszczeń, np. piwnicy, garażu, kotłowni, strychu.
121,91 m2
Powierzchnia zabudowy
Powierzchnia mierzona po obrysie zewnętrznych krawędzi wykończonego budynku z uwzględnieniem powierzchni nadwieszonych (np. wykusz). Nie dolicza się do niej elementów drugorzędnych (np. schodów zewnętrznych, daszków, ramp) oraz elementów niewystających ponad powierzchnię terenu
89,82 m2
Powierzchnia netto
Powierzchnia wszystkich pomieszczeń budynku mierzona na poziomie podłogi, po wewnętrznym obrysie ścian w stanie wykończonym. Na jej wartość nie wpływa wysokość pomieszczeń.
140,91 m2
Powierzchnia całkowita
Suma powierzchni całkowitych wszystkich kondygnacji (w tym znajdujących się całkowicie lub częściowo poniżej poziomu terenu) mierzona po zewnętrznym obrysie ścian (wraz z ociepleniem) oraz wszystkich elementów wykraczających poza kubaturę, np. tarasy, schody zewnętrzne, balkony, podcienie, zjazdy do garaży, itp.
175,44 m2
Kąt nachylenia dachu
Kubatura
Objętość budynku liczona wraz z przegrodami zewnętrznymi i wewnętrznymi (ścianami, stropem, dachem i podmurówką)
583,79 m3
Wysokość budynku
Wysokość mierzona od poziomu terenu przy wejściu do budynku do najwyższego punktu dachu – kalenicy
6,48 m
Wysokość parteru
Podana wartość to wysokość pomieszczeń parteru w stanie wykończonym, mierzona od poziomu posadzki do spodu sufitu.
2,7 m
Wymiary budynku
14,64 x 12,75 m
Wymiary działki
Wymiary działki (szerokość x głębokość), na której możliwe jest wybudowanie domu. Wynikają one z wymiarów budynku powiększonych o wymagane przepisami odległości poszczególnych elementów budynku od granic działki. Rzeczywistą odległość od drogi należy sprawdzić i dostosować do wymogów zawartych w MPZA lub WZ
22,64 x 20,75 m
Pokoje (z salonem)
Liczba wszystkich pokoi
5
Łazienki i wc
Suma łazienek i wc
2
Miejsca postojowe
Suma miejsc postojowych (garaż + wiata garażowa)
1
Sezonowość
Całoroczny
REKLAMA

Opis projektu

Piętrowy dom w zabudowie bliźniaczej posiada nowoczesną bryłę. Charakteryzującą się prostą linią i oszczędnymi detalami. Zastosowanie drewnianej szalówki wspaniale ociepla i wzbogaca elewację. Dzięki oszczędności formy, budynek z łatwością wpasowałby się zarówno w miejski, jaki i bardziej swojski klimat otoczenia. Jeden segment budynku z łatwością pomieści pięcioosobową rodzinę. Plan segmentu ma wyraźny podział na część gospodarczą, dzienną i nocną. Z pomieszczenia gospodarczego możemy dostać się do przestronnego wiatrołapu wyposażonego w pojemne szafy o łącznej długości ok 280 cm. Stamtąd przechodzimy do strefy dziennej. Strefa dzienna składa się z : łazienki z prysznicem, półotwartej kuchni, jadalni oraz salonu. Salon szerokimi przeszkleniami otwiera się na część ogrodową za domem i posiada możliwość zamontowania kominka. Część dzienna posiada wygodne i proste przejście z kuchni na taras pomiędzy salonem, a jadalnią. Jadalnia została zlokalizowana tuż przy samej kuchni dla wygody użytkowania domowników.
Znajdująca się na piętrze strefa nocna składa się z czterech wygodnych pokoi i dużej łazienki. Ciekawym rozwiązaniem jest świetlik dachowy, który zarówno doświetla korytarz na piętrze jak również jest wyjściem na dach na potrzeby przeglądów technicznych.
Budynek posiada szereg rozwiązań i udogodnień dla deweloperów takich jak m.in.:
- obszerne pomieszczenie gospodarcze dające możliwość zaparkowania samochodu, takie rozwiązanie umożliwia ewentualny montaż elementów wyposażenia domu których nie wolno montować w garażu oraz nieznacznego zredukowania wielkości pomieszczenia względem wymogów dla pomieszczeń garażowych
- minimalna powierzchnia komunikacji przekłada się na większe i bardziej ustawne pomieszczenia użytkowe
- schody na piętro zostały tak zaprojektowane, aby ewentualnie zaparkowany samochód był w stanie wjechać pod wysoki bieg schodów. Dzięki temu powierzchnia salonu została powiększona kosztem nieużytkowej części pod schodami.
- dzięki zastosowaniu między pokojami na piętrze ścian wyłącznie działowych istnieje możliwość swobodnej aranżacji
- prosta bryła to niższe koszty wykonania i eksploatacji
- istnieje możliwość wykonania ścian szczytowych bez okien dzięki czemu szerokość minimalna dla działki może zostać zredukowana o 2 metry.

Koszty

Orientacyjne koszty budowy netto - wycena wskaźnikowa Ceny aktualne na: IV kwartał 2025
Jak dokonujemy wyliczeń? icon arrow
Przedstawione orientacyjne koszty budowy dotyczą jednego segmentu.
Razem (etapy 1-3): 377 400 zł
1. Stan zero
Koszt etapu 53 600 zł
Zakres prac

wytyczenie budynku i roboty ziemne; ławy i stopy fundamentowe; ściany podziemne z izolacjami cieplnymi i przeciwwilgociowymi

2. Stan surowy otwarty
Koszt etapu + 270 400 zł
Zakres prac

ściany murowane zewnętrzne i wewnętrzne; stropy i schody wewnętrzne; konstrukcja dachu z pokryciem, obróbkami, rynnami i rurami spustowymi; podłoża pod posadzki ( np. chudy beton)

3. Stan surowy zamknięty
Koszt etapu + 53 500 zł
Zakres prac

okna i drzwi zewnętrzne; bramy garażowe; warstwy wyrównawcze pod posadzki na gruncie i na stropie z izolacjami cieplnymi i przeciwwilgociowymi

Razem (etapy 1-3): 377 400 zł
4. Instalacje elektryczne
Koszt etapu od 62,40 do 219,70 zł/m2

*

Zakres prac

wewnętrzna instalacja oświetleniowa; instalacja gniazd wtykowych; instalacja siły oraz instalacja odgromowa i inne wewnętrzne instalacje teletechniczne

5. Instalacje sanitarne
Koszt etapu od 232,70 do 910 zł/m2

**

Zakres prac

wewnętrzna instalacja wod. - kan. z przyborami sanitarnymi i bateriami; instalacja c.o. z kotłem i grzejnikami, bez kominka; instalacja gazowa bez osprzętu kuchennego; wentylacja mechaniczna ( jeśli występuje)

6. Wykończenie zewnętrzne
Koszt etapu od 126,10 do 638,30 zł/m2

***

Zakres prac

system dociepleń i tynki zewnętrzne z malowaniem; okładziny elewacyjne; balustrady, parapety zewnętrzne i inne roboty zewnętrzne np. taras, opaski wokół domu, schody zewnętrzne

7. Wykończenie wewnętrzne
Koszt etapu od 429 do 878,80 zł/m2

***

Zakres prac

tynki wewnętrzne, drzwi i okna wewnętrzne, lekkie ścianki działowe, roboty malarskie, posadzki i inne prace wykończeniowe

* w zależności od ilości punktów elektrycznych na 1m2

** w zależności od ilości punktów sanitarnych na 1m2 oraz ilości (odległości) instalacji rurowej

*** w zależności od rodzaju użytych meteriałów i specyfikacji wykończenia

REKLAMA

Zmiany w projekcie

Zobacz zakres zmian, które możesz wprowadzić, w tym projekcie bez zgody autora.
Lista możliwych zmian

Jeśli zmiany, które chcesz wprowadzić nie są ujęte w powyższym zestawieniu, skontaktuj się z nami. Nasz architekt przeanalizuje i doradzi, które z Twoich propozycji warto wdrożyć. O zgodę na zmiany możesz wystąpić nie tylko w momencie zakupu projektu, ale także później i otrzymasz ją bezpłatnie w ciągu kilku dni.

Dokumentacja (zawartość pakietu projektowego)

Dodatki

Pakiet dodatków, który otrzymasz razem z projektem

addon
Teczka inwestora
Do przechowywania niezbędnej dokumentacji
addon
Kupony rabatowe na zakupy
Dzięki którym zaoszczędzisz nawet kilkanaście tysięcy złotych.
addon
Projekty małej architektury
Wybudujesz samodzielnie m.in. domek dla dzieci czy altanę z grillem.
Pamiętaj
dostawa
Wysyłkę projektu ze wszystkimi dodatkami na terenie Polski bierzemy na siebie. Ty wybierasz, gdzie odbierzesz swój projekt. Masz do wyboru kuriera DPD lub punkty Paczkomat InPost 24/7.
zwroty

Masz 30 dni na zwrot i 365 dni na wymianę projektu

Inspiracje

Wnętrza
Realizacje 1
Wszystkie