+48 22 59 05 000

pn.-pt. 8-20

Kontakt i pomoc^
Kontakt i pomoc
Zamów rozmowę
Umów wideorozmowę
Napisz do nas
Pomoc w kredycie
Bezpłatna analiza działki
logo
ulubione 0
REKLAMA
REKLAMA
LDP03

Pireus Pasywny 3

wersja lustrzana
Kupując u nas, zyskujesz więcej

Dodatki

Atrakcyjne rabaty

Kompleksowe wsparcie

Gwarancja najniższej ceny

Wygodne zakupy

Zgoda na zmiany w projekcie

Szczegółowa dokumentacja

Rzuty
Działka
Parametry
Koszty
Podobne
Zmiany
Dokumentacja
Dodatki
REKLAMA

Rzuty, przekrój, elewacje

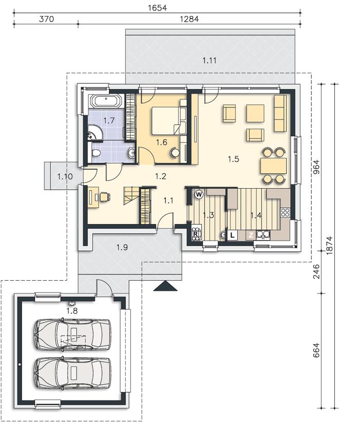
Parter 88,79 m2
Wersja lustrzana
Pomieszczenie Użytkowa
1
przedsionek
5,41 m2
2
komunikacja (13,68)
9,93 m2
3
pom. gosp.
5,99 m2
4
kuchnia
11,44 m2
5
pokój dzienny
33,0 m2
6
pokój
13,91 m2
7
łazienka
9,11 m2
Razem 88,79 m2
8
garaż
32,83 m2
9
podest
13,32 m2
10
podest
2,56 m2
11
taras
27,83 m2

W nawiasach podano powierzchnie pomieszczenia netto

Poddasze 51,41 m2
Wersja lustrzana
Pomieszczenie Użytkowa
1
schody
4,92 m2
2
komunikacja
9,88 m2
3
łazienka (11,47)
7,25 m2
4
garderoba (3,77)
1,8 m2
5
pokój (18,56)
12,41 m2
6
pokój (18,56)
12,41 m2
7
garderoba (5,74)
2,74 m2
Razem 51,41 m2
8
strych (32,83)
11,29 m2

W nawiasach podano powierzchnie pomieszczenia netto

Przekrój
Wersja lustrzana
Przekrój
Kąt nachylenia dachu 35°
Wysokość budynku 7,47 m
Elewacje
Wersja lustrzana
Elewacja 1
Elewacja 1
Elewacja 2
Elewacja 3
Elewacja 4
REKLAMA

Działka

Wybór działki to jedna z ważniejszych decyzji poprzedzających budowę wymarzonego domu. Oczywiście najważniejsza jest jej lokalizacja, ale trzeba także przeanalizować lokalne ograniczenia wyszczególnione w miejscowym planie zagospodarowania przestrzennego lub w warunkach zabudowy. Często zapisy w w/w dokumentach uniemożliwiają budowę wybranego projektu i trzeba szukać dalej.

Ważne jest także usytuowanie działki i domu względem stron świata, gdyż to właśnie decyduje o stopniu nasłonecznienia poszczególnych pomieszczeń. Dlatego każdy projekt oferujemy w dwóch wersjach: podstawowej oraz lustrzanej, aby można było wybrać najkorzystniejszy układ pomieszczeń względem stron świata, a także względem ukształtowania krajobrazu w otoczeniu działki.

Wymiary działki
Wymiary działki (szerokość x głębokość), na której możliwe jest wybudowanie domu. Wynikają one z wymiarów budynku powiększonych o wymagane przepisami odległości poszczególnych elementów budynku od granic działki. Rzeczywistą odległość od drogi należy sprawdzić i dostosować do wymogów zawartych w MPZA lub WZ.
23.60 x 27.50 m
Przekrój
Wersja lustrzana

Parametry

Dane Techniczne
Technologia i materiały
Parametry cieplne
Powierzchnia użytkowa
Suma powierzchni pomieszczeń mierzona po wewnętrznym obrysie ścian. Na jej wielkość ma wpływ wysokość pomieszczenia i jest liczona: – w 100% – przy wysokości w świetle powyżej 2,2 m, – w 50% – przy wysokości między 1,4 m a 2,2 m, – pomija się – przy wysokości poniżej 1,4 m. Do powierzchni użytkowej domu nie dolicza się powierzchni niektórych pomieszczeń, np. piwnicy, garażu, kotłowni, strychu.
140,2 m2
Powierzchnia zabudowy
Powierzchnia mierzona po obrysie zewnętrznych krawędzi wykończonego budynku z uwzględnieniem powierzchni nadwieszonych (np. wykusz). Nie dolicza się do niej elementów drugorzędnych (np. schodów zewnętrznych, daszków, ramp) oraz elementów niewystających ponad powierzchnię terenu
163,07 m2
Powierzchnia netto
Powierzchnia wszystkich pomieszczeń budynku mierzona na poziomie podłogi, po wewnętrznym obrysie ścian w stanie wykończonym. Na jej wartość nie wpływa wysokość pomieszczeń.
198,27 m2
Powierzchnia dodatkowa
Dodatkowe powierzchnie niewliczane do powierzchni użytkowej: piwnica + garaż + kotłownia + strych + poddasze do adaptacji.
44,12 m2
Powierzchnia garażu
32,83 m2
Kąt nachylenia dachu
35°
Kubatura
Objętość budynku liczona wraz z przegrodami zewnętrznymi i wewnętrznymi (ścianami, stropem, dachem i podmurówką)
916 m3
Wysokość budynku
Wysokość mierzona od poziomu terenu przy wejściu do budynku do najwyższego punktu dachu – kalenicy
7,47 m
Wysokość ścianki kolankowej
Ścianka kolankowa to zewnętrzna ściana nośna poddasza, wznoszona powyżej najwyższego stropu budynku, na której jest oparta więźba dachowa. Od wysokości ścianki kolankowej zależy funkcjonalność poddasza, wielkość jego powierzchni użytkowej oraz wygląd bryły budynku.
1,1 m
Wymiary działki
Wymiary działki (szerokość x głębokość), na której możliwe jest wybudowanie domu. Wynikają one z wymiarów budynku powiększonych o wymagane przepisami odległości poszczególnych elementów budynku od granic działki. Rzeczywistą odległość od drogi należy sprawdzić i dostosować do wymogów zawartych w MPZA lub WZ
23,6 x 27,5 m
Pokoje (z salonem)
Liczba wszystkich pokoi
4
Łazienki i wc
Suma łazienek i wc
2
Miejsca postojowe
Suma miejsc postojowych (garaż + wiata garażowa)
2
Sezonowość
Całoroczny
REKLAMA

Opis projektu

Ten dom ma w sobie lekkość. Nie tylko wiąże się to z miłą dla oka architekturą, ale głównie jest spowodowane tym, że jako dom pasywny, dom ten jest czysty ekologicznie. Oferuje zatem czyste ciepło, przyjazne dla środowiska i wielokrotnie tańsze. Dom jest jasny i przestronny dzięki dużym przeszkleniom, otwierającym dom na otoczenie, a funkcja domu dostosowuje się do zmieniających się potrzeb mieszkańców. Dwie sypialnie na poddaszu to znakomite miejsce dla dzieci, które mają swoją prywatną, odizolowaną akustycznie strefę. Sypialnia dla rodziców znajduje się na parterze, w sąsiedztwie sporej łazienki. Z czasem, gdy dorastające dzieci wyprowadzą się z domu, poddasze może być doskonałą przestrzenią rodziców z garderobą i np.: pokojem do ćwiczeń. Wówczas w pokoju na parterze może zamieszkać osoba starsza. Miejsce pod schodami idealnie nadaje się na kącik komputerowy, wygodnie wydzielony ze strefy dziennej, a z czasem można tam zamontować, w razie potrzeby, podnośnik. Ciekawie także zostało zaprojektowane przejście z domu do garażu – całkowicie zadaszone. Przestrzeń nad garażem może nadawać się na pokój hobby – nawet bardzo głośne. Projekt spełnia określone w programie dopłat NFOŚIGW warunki standardu NF15. Uzyskaliśmy to dzięki zastosowanym izolacjom wszystkich przegród zewnętrznych, wybitnej szczelności i wyeliminowaniu mostków termicznych. W przypadku tego projektu równie ważna była ekonomia takiego rozwiązania, aby koszt realizacji był możliwie mały.

Koszty

Orientacyjne koszty budowy netto - wycena wskaźnikowa Ceny aktualne na: II kwartał 2023
Jak dokonujemy wyliczeń? icon arrow
Razem: 440 600 zł
1. Stan surowy zamknięty
Koszt etapu 440 600 zł
Zakres prac

Stan zero (wytyczenie budynku i roboty ziemne; ławy i stopy fundamentowe; ściany podziemne z izolacjami cieplnymi i przeciwwilgociowymi) oraz stan surowy (ściany murowane z zewnętrzne i wewnętrzne; stropy i schody wewnętrzne, konstrukcja dachu z pokryciem, obróbkami, rynnami i rurami spustowymi; podłoża pod posadzki (np. chudy beton), okna i drzwi zewnętrzne; bramy garażowe; warstwy wyrównawcze pod posadzki na gruncie i na stropie z izolacjami cieplnymi i przeciwwilgociowymi).

Razem: 440 600 zł
2. Instalacje elektryczne
Koszt etapu od 62,40 do 219,70 zł/m2

*

Zakres prac

wewnętrzna instalacja oświetleniowa; instalacja gniazd wtykowych; instalacja siły oraz instalacja odgromowa i inne wewnętrzne instalacje teletechniczne

3. Instalacje sanitarne
Koszt etapu od 232,70 do 910 zł/m2

**

Zakres prac

wewnętrzna instalacja wod. - kan. z przyborami sanitarnymi i bateriami; instalacja c.o. z kotłem i grzejnikami, bez kominka; instalacja gazowa bez osprzętu kuchennego; wentylacja mechaniczna ( jeśli występuje)

4. Wykończenie zewnętrzne
Koszt etapu od 126,10 do 638,30 zł/m2

***

Zakres prac

system dociepleń i tynki zewnętrzne z malowaniem; okładziny elewacyjne; balustrady, parapety zewnętrzne i inne roboty zewnętrzne np. taras, opaski wokół domu, schody zewnętrzne

5. Wykończenie wewnętrzne
Koszt etapu od 429 do 878,80 zł/m2

***

Zakres prac

tynki wewnętrzne, drzwi i okna wewnętrzne, lekkie ścianki działowe, roboty malarskie, posadzki i inne prace wykończeniowe

* w zależności od ilości punktów elektrycznych na 1m2

** w zależności od ilości punktów sanitarnych na 1m2 oraz ilości (odległości) instalacji rurowej

*** w zależności od rodzaju użytych meteriałów i specyfikacji wykończenia

REKLAMA

Zmiany w projekcie

Zobacz zakres zmian, które możesz wprowadzić, w tym projekcie bez zgody autora.
Lista możliwych zmian

Jeśli zmiany, które chcesz wprowadzić nie są ujęte w powyższym zestawieniu, skontaktuj się z nami. Nasz architekt przeanalizuje i doradzi, które z Twoich propozycji warto wdrożyć. O zgodę na zmiany możesz wystąpić nie tylko w momencie zakupu projektu, ale także później i otrzymasz ją bezpłatnie w ciągu kilku dni.

Dokumentacja (zawartość pakietu projektowego)

Dodatki

Pakiet dodatków, który otrzymasz razem z projektem

addon
Teczka inwestora
Do przechowywania niezbędnej dokumentacji
addon
Kupony rabatowe na zakupy
Dzięki którym zaoszczędzisz nawet kilkanaście tysięcy złotych.
addon
Projekty małej architektury
Wybudujesz samodzielnie m.in. domek dla dzieci czy altanę z grillem.
Pamiętaj
dostawa
Wysyłkę projektu ze wszystkimi dodatkami na terenie Polski bierzemy na siebie. Ty wybierasz, gdzie odbierzesz swój projekt. Masz do wyboru kuriera DPD lub punkty Paczkomat InPost 24/7.
zwroty

Masz 30 dni na zwrot i 365 dni na wymianę projektu