+48 22 59 05 000

pn.-pt. 8-20

Kontakt i pomoc^
Kontakt i pomoc
Zamów rozmowę
Napisz do nas
Pomoc w kredycie
Bezpłatna analiza działki
logo
ulubione 0
REKLAMA
REKLAMA
AA013

Parterowy klasyk 120 Plus

wersja lustrzana
Rzuty
Działka
Parametry
Podobne
Zmiany
Pliki do pobrania
Dokumentacja
Dodatki
REKLAMA

Rzuty, przekrój, elewacje

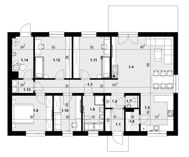
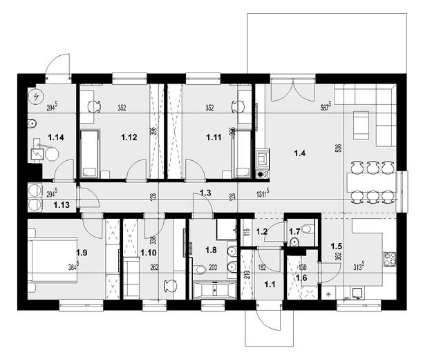
Parter 121,88 m2
Wersja lustrzana

Możliwość wykorzystania dodatkowej powierzchni na strychu.

Pomieszczenie Użytkowa
1
przedsionek
3,71 m2
2
hol
2,02 m2
3
korytarz
8,39 m2
4
pokój dzienny + jadalnia
27,63 m2
5
kuchnia
11,24 m2
6
spiżarnia
2,42 m2
7
wc
1,26 m2
8
łazienka
6,29 m2
9
sypialnia
12,78 m2
10
sypialnia
8,68 m2
11
sypialnia
13,71 m2
12
sypialnia
13,71 m2
13
pralnia
2,52 m2
14
kotłownia + pom. gosp.
7,52 m2
Razem 121,88 m2
T
taras (15,0)

W nawiasach podano powierzchnie pomieszczenia netto

Przekrój
Wersja lustrzana
Przekrój
Kąt nachylenia dachu 30°
Wysokość budynku 6,11 m
Wysokość parteru 2,73 m
Elewacje
Wersja lustrzana
Elewacja 1
Elewacja 1
Elewacja 2
Elewacja 3
Elewacja 4
REKLAMA

Działka

Wybór działki to jedna z ważniejszych decyzji poprzedzających budowę wymarzonego domu. Oczywiście najważniejsza jest jej lokalizacja, ale trzeba także przeanalizować lokalne ograniczenia wyszczególnione w miejscowym planie zagospodarowania przestrzennego lub w warunkach zabudowy. Często zapisy w w/w dokumentach uniemożliwiają budowę wybranego projektu i trzeba szukać dalej.

Ważne jest także usytuowanie działki i domu względem stron świata, gdyż to właśnie decyduje o stopniu nasłonecznienia poszczególnych pomieszczeń. Dlatego każdy projekt oferujemy w dwóch wersjach: podstawowej oraz lustrzanej, aby można było wybrać najkorzystniejszy układ pomieszczeń względem stron świata, a także względem ukształtowania krajobrazu w otoczeniu działki.

Wymiary działki
Wymiary działki (szerokość x głębokość), na której możliwe jest wybudowanie domu. Wynikają one z wymiarów budynku powiększonych o wymagane przepisami odległości poszczególnych elementów budynku od granic działki. Rzeczywistą odległość od drogi należy sprawdzić i dostosować do wymogów zawartych w MPZA lub WZ.
23.14 x 17.80 m
Wymiary działki po obrocie domu o 90°
Wymiary działki po adaptacji – obrót o 90 st.
Wymiary (szerokość x głębokość) działki, na której możliwe jest wybudowanie domu, po obróceniu budynku o 90 st. (przy założeniu, że taka zmiana jest możliwa i nie wpłynie niekorzystnie na układ funkcjonalny działki oraz budynku mieszkalnego). Wynikają z wymiarów budynku powiększonych o wymagane przepisami odległości poszczególnych elementów budynku od granic działki. Rzeczywistą odległość od drogi należy sprawdzić i dostosować do wymogów zawartych w MPZA lub WZ.
17.80 x 23.14 m
Przekrój
Wersja lustrzana

Parametry

W dokumentacji uwzględniono dwa źródła ciepła: kocioł na paliwo stałe oraz kocioł na gaz + kolektory słoneczne (solary). Wyboru opcji należy dokonać na etapie adaptacji projektu.

Dane Techniczne
Technologia i materiały
Parametry cieplne
Powierzchnia użytkowa
Suma powierzchni pomieszczeń mierzona po wewnętrznym obrysie ścian. Na jej wielkość ma wpływ wysokość pomieszczenia i jest liczona: – w 100% – przy wysokości w świetle powyżej 2,2 m, – w 50% – przy wysokości między 1,4 m a 2,2 m, – pomija się – przy wysokości poniżej 1,4 m. Do powierzchni użytkowej domu nie dolicza się powierzchni niektórych pomieszczeń, np. piwnicy, garażu, kotłowni, strychu.
121,88 m2
Powierzchnia zabudowy
Powierzchnia mierzona po obrysie zewnętrznych krawędzi wykończonego budynku z uwzględnieniem powierzchni nadwieszonych (np. wykusz). Nie dolicza się do niej elementów drugorzędnych (np. schodów zewnętrznych, daszków, ramp) oraz elementów niewystających ponad powierzchnię terenu
158,17 m2
Powierzchnia netto
Powierzchnia wszystkich pomieszczeń budynku mierzona na poziomie podłogi, po wewnętrznym obrysie ścian w stanie wykończonym. Na jej wartość nie wpływa wysokość pomieszczeń.
121,88 m2
Powierzchnia dachu
220,91 m2
Kąt nachylenia dachu
30°
Kubatura
Objętość budynku liczona wraz z przegrodami zewnętrznymi i wewnętrznymi (ścianami, stropem, dachem i podmurówką)
715,64 m3
Wysokość budynku
Wysokość mierzona od poziomu terenu przy wejściu do budynku do najwyższego punktu dachu – kalenicy
6,11 m
Wysokość parteru
Podana wartość to wysokość pomieszczeń parteru w stanie wykończonym, mierzona od poziomu posadzki do spodu sufitu.
2,73 m
Wymiary budynku
16,14 x 9,8 m
Wymiary działki
Wymiary działki (szerokość x głębokość), na której możliwe jest wybudowanie domu. Wynikają one z wymiarów budynku powiększonych o wymagane przepisami odległości poszczególnych elementów budynku od granic działki. Rzeczywistą odległość od drogi należy sprawdzić i dostosować do wymogów zawartych w MPZA lub WZ
23,14 x 17,8 m
Pokoje (z salonem)
Liczba wszystkich pokoi
5
Łazienki i wc
Suma łazienek i wc
2
Sezonowość
Całoroczny
REKLAMA

Opis projektu

Parterowy klasyk 120 Plus jest odpowiedzią naszej pracowni na potrzeby rodziny 2+2 lub nawet 2+3. Wysoka funkcjonalność połączona z prostą bryłą budynku pozwalają na zaadaptowanie projektu na większości działek oraz duże oszczędności w trakcie budowy.
Hole i korytarze zostały ograniczone do niezbędnego minimum. Po domu porusza się wygodnie i komfortowo, ale przemyślany układ pomieszczeń sprawia, że długość przejścia w poszczególne strefy jest niewielka. Wiatrołap mimo niewielkich rozmiarów mieści obszerną szafę, a w przedsionku znajduje się dodatkowe miejsce do siedzenia, gdzie można wygodnie założyć buty.
Strefa dzienna, na którą składa się salon, jadalnia i kuchnia są wprost dopasowane do wielkości mebli i miejsca potrzebnego do wygodnego, codziennego przebywania 4/5-osobowej rodziny. W kuchni zmieszczą się wszystkie sprzęty AGD i wystarczająca ilość szafek na potrzebną zastawę i urządzenia do gotowania. Ponadto przy kuchni znajduje się pojemna spiżarnia. Przy stole jadalnianym, znajdującym się przy samym oknie standardowo mieści się sześć osób, jednak przewidziane zostało miejsce do jego rozłożenia, aż do 10 osób. Na narożnej kanapie także każdy znajdzie swoje miejsce, żeby spokojnie odpocząć przed TV i kominku, z którego wykonania oczywiście można zrezygnować. W tym projekcie nic nie dzieje się z przypadku.
Sypialnie i pokoje zostały przygotowane ściśle dla modelu rodziny 2+2, z uwzględnieniem nowoczesnego modelu pracy zdalnej. Dlatego w parterze znajduje się funkcjonalny gabinet, gdzie można urządzić wygodne biuro. Pomieszczenie to można także zaaranżować na dotykowy pokój dziecięcy lub pokój gościnny z podwójnym łóżkiem. Sypialnia rodziców mieści dwie szafy na ubrania oraz szafkę TV. W pokojach dzieci umieszczono wszystkie niezbędne meble - szerokie łóżko z szafką nocną, wygodne biurko oraz bardzo dużą szafę na ubrania.
Z korytarza dostępna jest przestronna łazienka zlokalizowana blisko pokoi. W łazience umieszczono kabinę prysznicową i wygodną wannę. Ponadto dla większego komfortu zaprojektowano toaletę, która może być dostępna zarówno dla domowników jak i gości.
Kotłownia może zostać wyposażona w dowolne źródło ciepła. Mimo niewielkich rozmiarów można umieścić tutaj piec na pellet z podajnikiem, boiler na ciepłą wodę, umywalkę, zmiękczacz wody i całą niezbędną instalację. Jeżeli jednak zdecydujesz się na gaz czy pompę ciepła zyskasz dodatkową przestrzeń magazynową na kosiarkę czy sprzęty ogrodowe. W drodze do kotłowni zaprojektowano funkcjonalne pomieszczenie gospodarcze, gdzie zmieści się pralka i suszarka bębnowa. Dodatkowo na strychu znajdzie się dodatkowa ogromna przestrzeń do składowania rzadziej używanych przedmiotów, dostępna poprzez składane schody znajdujące się na poddaszu.
Konstrukcja strych umożliwia także jego adaptację na poddasze użytkowe w przyszłości.
Architekturę i konstrukcję budynku zaprojektowano w sposób oszczędny bez stosowania drogich i niepotrzebnych, niepraktycznych rozwiązań. Przede wszystkim budynek jest niewielkich rozmiarów w rzucie, dzięki czemu można go wybudować na działce o powierzchni tylko 385 metrów kwadratowych, co przy rosnących cenach działek jest ogromną zaletą. Bryła budynku jest prosta, przekryta dachem dwuspadowym, którego wykonanie jest dużo tańsze od np. dachu kopertowego. Na zaplanowanym tarasie wystarczy miejsca dla wszystkich domowników, a także zaproszonych gości. Okna i witryny nie są przepastnie szerokie i wysokie, co sprawia, że na pewno otrzymasz korzystną ofertę na ich dostawę i montaż.
Fasada budynku zaprojektowana została z zastosowaniem nowoczesnych materiałów w stonowanej i bardzo eleganckiej kolorystyce. Pokrycie dachu stanowi naturalna, grafitowa dachówka ceramiczna. Elewację pokrywa jasna struktura uzupełniona elementami kamienia, szarej cegły łupkowej i jasnego drewna, co z stolarką w odcieniach szerokości stanowi dopełnienie nowoczesnego wyglądu budynku.
Projekt dostępny jest, także w wersji odbicia lustrzanego.
REKLAMA

Zmiany w projekcie

Zobacz zakres zmian, które możesz wprowadzić, w tym projekcie bez zgody autora.
Lista możliwych zmian

Jeśli zmiany, które chcesz wprowadzić nie są ujęte w powyższym zestawieniu, skontaktuj się z nami. Nasz architekt przeanalizuje i doradzi, które z Twoich propozycji warto wdrożyć. O zgodę na zmiany możesz wystąpić nie tylko w momencie zakupu projektu, ale także później i otrzymasz ją bezpłatnie w ciągu kilku dni.

Pliki do pobrania

Rysunki szczegółowepdf Pobierz

Dokumentacja (zawartość pakietu projektowego)

Dodatki

Pakiet dodatków, który otrzymasz razem z projektem

addon
Teczka inwestora
Do przechowywania niezbędnej dokumentacji
addon
Kupony rabatowe na zakupy
Dzięki którym zaoszczędzisz nawet kilkanaście tysięcy złotych.
addon
Projekty małej architektury
Wybudujesz samodzielnie m.in. domek dla dzieci czy altanę z grillem.
Pamiętaj
dostawa
Wysyłkę projektu ze wszystkimi dodatkami na terenie Polski bierzemy na siebie. Ty wybierasz, gdzie odbierzesz swój projekt. Masz do wyboru kuriera DPD lub punkty Paczkomat InPost 24/7.
zwroty

Masz 30 dni na zwrot i 365 dni na wymianę projektu