pn.-pt. 8-20
 
            Naturalny 1A wersja lustrzana
 
        
     
        
     
        
     
        
     
        
     
        
     
        
     
        
     
        
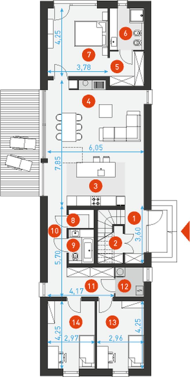
    W nawiasach podano powierzchnie pomieszczenia netto
 
        
    W nawiasach podano powierzchnie pomieszczenia netto
Naturalny 1A
wersja lustrzanaKoncepcja projektu
Nasi doradcy przedstawią szczegółowe informacje dotyczące projektu.
Projekt wycofany z oferty
Dodatki
Atrakcyjne rabaty
Kompleksowe wsparcie
Gwarancja najniższej ceny
Wygodne zakupy
Zgoda na zmiany w projekcie
Szczegółowa dokumentacja
Rzuty, przekrój, elewacje
 
            
        W nawiasach podano powierzchnie pomieszczenia netto
 
            
        W nawiasach podano powierzchnie pomieszczenia netto
Działka
Wybór działki to jedna z ważniejszych decyzji poprzedzających budowę wymarzonego domu. Oczywiście najważniejsza jest jej lokalizacja, ale trzeba także przeanalizować lokalne ograniczenia wyszczególnione w miejscowym planie zagospodarowania przestrzennego lub w warunkach zabudowy. Często zapisy w w/w dokumentach uniemożliwiają budowę wybranego projektu i trzeba szukać dalej.
Ważne jest także usytuowanie działki i domu względem stron świata, gdyż to właśnie decyduje o stopniu nasłonecznienia poszczególnych pomieszczeń. Dlatego każdy projekt oferujemy w dwóch wersjach: podstawowej oraz lustrzanej, aby można było wybrać najkorzystniejszy układ pomieszczeń względem stron świata, a także względem ukształtowania krajobrazu w otoczeniu działki.
 
            Parametry
Opis projektu
Plan pomieszczeń w dużej części nie odbiega od wersji pierwszej. Sercem domu nadal jest strefa dzienna łącząca salon, jadalnię i kuchnię. Inaczej rozwiązano za to układ kuchni, stołu w jadalni oraz sypialni rodziców. Dzięki likwidacji małego gabinetu na parterze zaprojektowaliśmy odrębną strefę „masterbedroom”, która zyskała w ten sposób dodatkową powierzchnię oraz pomieszczenie garderoby. Część dzieci składająca się dwóch pokoi, przejściowej garderoby oraz pomieszczenia gospodarczego z piecem i pralką pozostała bez zmian. Podobnie poddasze obejmujące pokój gościnny i pomieszczenie techniczne na rekuperator.
Tak jak każda nowoczesna stodoła również Naturalny 1A z pewnością nie jest domem miejskim. Taki projekt musi być ulokowany we właściwym otoczeniu, podkreślającym jego rustykalny rodowód. Jeśli więc planujesz budowę z dala od miejskiego zgiełku, w otoczeniu przyrody i blisko natury, ten dom będzie dla Ciebie i twojej rodziny idealny.
Zalety projektu:
- piękna nowoczesna stodoła o ponadczasowych walorach estetycznych i użytkowych
- może być wybudowana jako luksusowy całoroczny dom letniskowy
- wersja ekonomiczna z tańszymi rozwiązaniami materiałowymi na elewacji
- nieduża szerokość traktu umożliwiająca budowę na bardzo wąskich działkach
- możliwość położenia domu równolegle lub prostopadle do granicy frontowej działki
- pełny program pomieszczeń dla 4-5 osobowej rodziny
- dwupoziomowe i otwarte wnętrze części dziennej
- na parterze: funkcjonalna garderoba wejściowa pod schodami / nowoczesna kuchnia z wyspą i spiżarnią / zamknięta strefa sypialni głównej rodziców z prywatną łazienką i garderobą
- na poddaszu: dodatkowe pomieszczenie mogące pełnić funkcję pokoju gościnnego lub pracowni
- dom energooszczędny, w standardzie wentylacja mechaniczna z rekuperacją i ogrzewanie podłogowe
Koszty
wytyczenie budynku i roboty ziemne; ławy i stopy fundamentowe; ściany podziemne z izolacjami cieplnymi i przeciwwilgociowymi
ściany murowane zewnętrzne i wewnętrzne; stropy i schody wewnętrzne; konstrukcja dachu z pokryciem, obróbkami, rynnami i rurami spustowymi; podłoża pod posadzki ( np. chudy beton)
okna i drzwi zewnętrzne; bramy garażowe; warstwy wyrównawcze pod posadzki na gruncie i na stropie z izolacjami cieplnymi i przeciwwilgociowymi
*
wewnętrzna instalacja oświetleniowa; instalacja gniazd wtykowych; instalacja siły oraz instalacja odgromowa i inne wewnętrzne instalacje teletechniczne
**
wewnętrzna instalacja wod. - kan. z przyborami sanitarnymi i bateriami; instalacja c.o. z kotłem i grzejnikami, bez kominka; instalacja gazowa bez osprzętu kuchennego; wentylacja mechaniczna ( jeśli występuje)
***
system dociepleń i tynki zewnętrzne z malowaniem; okładziny elewacyjne; balustrady, parapety zewnętrzne i inne roboty zewnętrzne np. taras, opaski wokół domu, schody zewnętrzne
***
tynki wewnętrzne, drzwi i okna wewnętrzne, lekkie ścianki działowe, roboty malarskie, posadzki i inne prace wykończeniowe
* w zależności od ilości punktów elektrycznych na 1m2
** w zależności od ilości punktów sanitarnych na 1m2 oraz ilości (odległości) instalacji rurowej
*** w zależności od rodzaju użytych meteriałów i specyfikacji wykończenia
Zmiany w projekcie
Jeśli zmiany, które chcesz wprowadzić nie są ujęte w powyższym zestawieniu, skontaktuj się z nami. Nasz architekt przeanalizuje i doradzi, które z Twoich propozycji warto wdrożyć. O zgodę na zmiany możesz wystąpić nie tylko w momencie zakupu projektu, ale także później i otrzymasz ją bezpłatnie w ciągu kilku dni.
Dokumentacja (zawartość pakietu projektowego)
3 egzemplarze projektu architektoniczno-budowlanego ze szczegółowym opisem
Dowiedz sie wiecej2 egzemplarze projektu technicznego (konstrukcja, instalacje: wodno-kanalizacyjna, c.o., elektryczna, gazowa (jeśli występują)) ze szczegółowym opisem
Dowiedz sie wiecejCharakterystyka energetyczna wraz z analizą możliwości wykorzystania wysokoefektywnych systemów alternatywnych zaopatrzenia w energię i ciepło
Komplet dokumentów potwierdzających uprawnienia poszczególnych projektantów branżowych w okresie opracowania dokumentacji
Dokument określający zakres dopuszczalnych zmian w projekcie, dokonywanych przez architekta adaptującego
Dodatki
Pakiet dodatków, który otrzymasz razem z projektem
 
             
             
            Masz 30 dni na zwrot i 365 dni na wymianę projektu
Dodatki w dobrej cenie
Dodatki możesz dobrać także w koszyku lub podczas zakupów u naszego doradcy.
 
    
 
    
 
    
 
    
 
    
 
    
 
    
 
    
 
    
 
            
            
         
            
            
         
            
            
         
            
            
         
            
            
         
            
            
         
            
            
         
            
            
         
            
            
         
            
            
         
                     
                     
                    