+48 22 59 05 000

pn.-pt. 8-20

Kontakt i pomoc^
Kontakt i pomoc
Zamów rozmowę
Umów wideorozmowę
Napisz do nas
Pomoc w kredycie
Bezpłatna analiza działki
logo
ulubione 0
REKLAMA
REKLAMA
DXM1035

Nasz Domek

wersja lustrzana
Kupując u nas, zyskujesz więcej

Dodatki

Atrakcyjne rabaty

Kompleksowe wsparcie

Gwarancja najniższej ceny

Wygodne zakupy

Zgoda na zmiany w projekcie

Szczegółowa dokumentacja

Rzuty
Parametry
Podobne
Zmiany
Dokumentacja
Dodatki
Inspiracje
REKLAMA

Rzuty, przekrój, elewacje

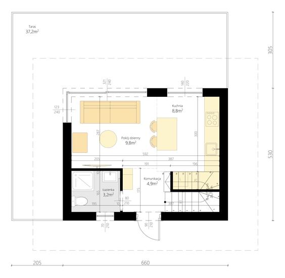
Parter 26,7 m2
Wersja lustrzana
Pomieszczenie Użytkowa
1
przedsionek
4,9 m2
2
łazienka
3,2 m2
3
pokój dzienny
9,8 m2
4
kuchnia
8,8 m2
Razem 26,7 m2
5
taras (37,2)

W nawiasach podano powierzchnie pomieszczenia netto

Poddasze 17 m2
Wersja lustrzana
Pomieszczenie Użytkowa
2
sypialnia (17,6)
14,8 m2
3
łazienka (3,9)
2,2 m2
Razem 17,0 m2
1
komunikacja (5,2)
3,1 m2

W nawiasach podano powierzchnie pomieszczenia netto

Elewacje
Wersja lustrzana
Elewacja 1
Elewacja 1
Elewacja 2
Elewacja 3
Elewacja 4
REKLAMA

Parametry

Dane Techniczne
Technologia i materiały
Parametry cieplne
Powierzchnia użytkowa
Suma powierzchni pomieszczeń mierzona po wewnętrznym obrysie ścian. Na jej wielkość ma wpływ wysokość pomieszczenia i jest liczona: – w 100% – przy wysokości w świetle powyżej 2,2 m, – w 50% – przy wysokości między 1,4 m a 2,2 m, – pomija się – przy wysokości poniżej 1,4 m. Do powierzchni użytkowej domu nie dolicza się powierzchni niektórych pomieszczeń, np. piwnicy, garażu, kotłowni, strychu.
42,7 m2
Powierzchnia zabudowy
Powierzchnia mierzona po obrysie zewnętrznych krawędzi wykończonego budynku z uwzględnieniem powierzchni nadwieszonych (np. wykusz). Nie dolicza się do niej elementów drugorzędnych (np. schodów zewnętrznych, daszków, ramp) oraz elementów niewystających ponad powierzchnię terenu
35 m2
Powierzchnia netto
Powierzchnia wszystkich pomieszczeń budynku mierzona na poziomie podłogi, po wewnętrznym obrysie ścian w stanie wykończonym. Na jej wartość nie wpływa wysokość pomieszczeń.
53,4 m2
Powierzchnia dachu
107,9 m2
Kąt nachylenia dachu
45°
Kubatura
Objętość budynku liczona wraz z przegrodami zewnętrznymi i wewnętrznymi (ścianami, stropem, dachem i podmurówką)
218,28 m3
Wysokość budynku
Wysokość mierzona od poziomu terenu przy wejściu do budynku do najwyższego punktu dachu – kalenicy
6,9 m
Wysokość ścianki kolankowej
Ścianka kolankowa to zewnętrzna ściana nośna poddasza, wznoszona powyżej najwyższego stropu budynku, na której jest oparta więźba dachowa. Od wysokości ścianki kolankowej zależy funkcjonalność poddasza, wielkość jego powierzchni użytkowej oraz wygląd bryły budynku.
0,91 m
Wymiary budynku
6,6 x 5,3 m
Wymiary działki
Wymiary działki (szerokość x głębokość), na której możliwe jest wybudowanie domu. Wynikają one z wymiarów budynku powiększonych o wymagane przepisami odległości poszczególnych elementów budynku od granic działki. Rzeczywistą odległość od drogi należy sprawdzić i dostosować do wymogów zawartych w MPZA lub WZ
14,6 x 13,3 m
Pokoje (z salonem)
Liczba wszystkich pokoi
2
Łazienki i wc
Suma łazienek i wc
2
Sezonowość
Całoroczny
REKLAMA

Opis projektu

Nasz Domek to kompaktowy projekt o powierzchni zabudowy 35 m² oraz powierzchni użytkowej 42,7 m², dzięki czemu spełnia wymagania budynku na zgłoszenie. Dzięki przemyślanej funkcji może pełnić rolę domu letniskowego, rekreacyjnego lub w pełni całorocznego - w zależności od potrzeb inwestora.

Na parterze zaplanowano funkcjonalny przedpokój z wygodnymi schodami prowadzącymi na poddasze, łazienkę oraz przestronną kuchnię otwartą na strefę dzienną. Duże okna wprowadzają mnóstwo naturalnego światła, tworząc jasne i przytulne wnętrze sprzyjające codziennemu wypoczynkowi. Na poddaszu znajduje się komfortowa przestrzeń mieszkalna z oddzielnym WC. Układ przewiduje miejsce na podwójne łóżko, szafy oraz strefę relaksu. Dodatkowo z części sypialnianej dostępne są dwa niewielkie balkony, które podkreślają charakter projektu i zapewniają bezpośredni kontakt z otaczającą naturą.

Bryła budynku została zaprojektowana w nowoczesnym stylu podhalańskim. Charakteryzuje ją dach o kącie nachylenia 45°, okapy wysunięte aż na 120 cm oraz duże przeszklenia w elewacjach szczytowych. Całość dopełnia pionowa elewacja drewniana, która nadaje domowi naturalnego, eleganckiego wyglądu i wpisuje go harmonijnie w krajobraz. Nasz Domek to propozycja dla osób, które szukają małego, ale pełnowartościowego domu – funkcjonalnego, przytulnego i ekonomicznego w budowie, a przy tym nowoczesnego i pełnego uroku."

Zmiany w projekcie

Zobacz zakres zmian, które możesz wprowadzić, w tym projekcie bez zgody autora.
Lista możliwych zmian

Jeśli zmiany, które chcesz wprowadzić nie są ujęte w powyższym zestawieniu, skontaktuj się z nami. Nasz architekt przeanalizuje i doradzi, które z Twoich propozycji warto wdrożyć. O zgodę na zmiany możesz wystąpić nie tylko w momencie zakupu projektu, ale także później i otrzymasz ją bezpłatnie w ciągu kilku dni.

Dokumentacja (zawartość pakietu projektowego)

Dodatki

Pakiet dodatków, który otrzymasz razem z projektem

addon
Prezent na Święta: Karta 200 zł do Zalando!
Święta tuż-tuż, a my mamy dla Ciebie prezent, który umili czas oczekiwania!
addon
Teczka inwestora
Do przechowywania niezbędnej dokumentacji
addon
Kupony rabatowe na zakupy
Dzięki którym zaoszczędzisz nawet kilkanaście tysięcy złotych.
addon
Projekty małej architektury
Wybudujesz samodzielnie m.in. domek dla dzieci czy altanę z grillem.
Pamiętaj
dostawa
Wysyłkę projektu ze wszystkimi dodatkami na terenie Polski bierzemy na siebie. Ty wybierasz, gdzie odbierzesz swój projekt. Masz do wyboru kuriera DPD lub punkty Paczkomat InPost 24/7.
zwroty

Masz 30 dni na zwrot i 365 dni na wymianę projektu

Inspiracje

Wnętrza
Wszystkie
Pokój dzienny
Kuchnia
Sypialnia
Łazienka