+48 22 59 05 000

pn.-pt. 8-20

Kontakt i pomoc^
Kontakt i pomoc
Zamów rozmowę
Umów wideorozmowę
Napisz do nas
Pomoc w kredycie
Bezpłatna analiza działki
logo
ulubione 0
REKLAMA
REKLAMA
MG0548

Narcyz 3

wersja lustrzana
Kupując u nas, zyskujesz więcej

Dodatki

Atrakcyjne rabaty

Kompleksowe wsparcie

Gwarancja najniższej ceny

Wygodne zakupy

Zgoda na zmiany w projekcie

Szczegółowa dokumentacja

Rzuty
Działka
Parametry
Koszty
Podobne
Zmiany
Pliki do pobrania
Dokumentacja
Dodatki
Inspiracje
REKLAMA

Rzuty, przekrój, elewacje

Parter 64,57 m2
Wersja lustrzana
Pomieszczenie Użytkowa
1
przedsionek
3,6 m2
2
kuchnia
8,53 m2
3
spiżarnia
1,73 m2
4
pokój dzienny
33,25 m2
5
pokój
8,02 m2
6
łazienka
2,43 m2
7
pokój
7,01 m2
Razem 64,57 m2
8
kotłownia
4,52 m2
9
garaż
18,68 m2

W nawiasach podano powierzchnie pomieszczenia netto

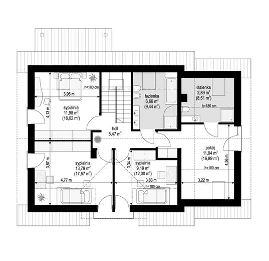
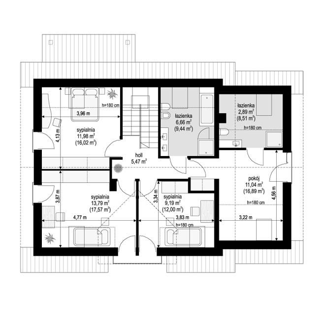
Poddasze 61,02 m2
Wersja lustrzana
Pomieszczenie Użytkowa
1
hol
5,47 m2
2
sypialnia (16,02)
11,98 m2
3
łazienka (9,44)
6,66 m2
4
łazienka (8,51)
2,89 m2
5
pokój (16,89)
11,04 m2
6
sypialnia (12,0)
9,19 m2
7
sypialnia (17,57)
13,79 m2
Razem 61,02 m2

W nawiasach podano powierzchnie pomieszczenia netto

Elewacje
Wersja lustrzana
Elewacja 1
Elewacja 1
Elewacja 2
Elewacja 3
Elewacja 4
REKLAMA

Działka

Wybór działki to jedna z ważniejszych decyzji poprzedzających budowę wymarzonego domu. Oczywiście najważniejsza jest jej lokalizacja, ale trzeba także przeanalizować lokalne ograniczenia wyszczególnione w miejscowym planie zagospodarowania przestrzennego lub w warunkach zabudowy. Często zapisy w w/w dokumentach uniemożliwiają budowę wybranego projektu i trzeba szukać dalej.

Ważne jest także usytuowanie działki i domu względem stron świata, gdyż to właśnie decyduje o stopniu nasłonecznienia poszczególnych pomieszczeń. Dlatego każdy projekt oferujemy w dwóch wersjach: podstawowej oraz lustrzanej, aby można było wybrać najkorzystniejszy układ pomieszczeń względem stron świata, a także względem ukształtowania krajobrazu w otoczeniu działki.

Wymiary działki
Wymiary działki (szerokość x głębokość), na której możliwe jest wybudowanie domu. Wynikają one z wymiarów budynku powiększonych o wymagane przepisami odległości poszczególnych elementów budynku od granic działki. Rzeczywistą odległość od drogi należy sprawdzić i dostosować do wymogów zawartych w MPZA lub WZ.
21.10 x 17.88 m
Przekrój
Wersja lustrzana

Parametry

Dane Techniczne
Technologia i materiały
Parametry cieplne
Powierzchnia użytkowa
Suma powierzchni pomieszczeń mierzona po wewnętrznym obrysie ścian. Na jej wielkość ma wpływ wysokość pomieszczenia i jest liczona: – w 100% – przy wysokości w świetle powyżej 2,2 m, – w 50% – przy wysokości między 1,4 m a 2,2 m, – pomija się – przy wysokości poniżej 1,4 m. Do powierzchni użytkowej domu nie dolicza się powierzchni niektórych pomieszczeń, np. piwnicy, garażu, kotłowni, strychu.
125,59 m2
Powierzchnia zabudowy
Powierzchnia mierzona po obrysie zewnętrznych krawędzi wykończonego budynku z uwzględnieniem powierzchni nadwieszonych (np. wykusz). Nie dolicza się do niej elementów drugorzędnych (np. schodów zewnętrznych, daszków, ramp) oraz elementów niewystających ponad powierzchnię terenu
113,98 m2
Powierzchnia netto
Powierzchnia wszystkich pomieszczeń budynku mierzona na poziomie podłogi, po wewnętrznym obrysie ścian w stanie wykończonym. Na jej wartość nie wpływa wysokość pomieszczeń.
173,67 m2
Powierzchnia całkowita
Suma powierzchni całkowitych wszystkich kondygnacji (w tym znajdujących się całkowicie lub częściowo poniżej poziomu terenu) mierzona po zewnętrznym obrysie ścian (wraz z ociepleniem) oraz wszystkich elementów wykraczających poza kubaturę, np. tarasy, schody zewnętrzne, balkony, podcienie, zjazdy do garaży, itp.
190,87 m2
Powierzchnia dodatkowa
Dodatkowe powierzchnie niewliczane do powierzchni użytkowej: piwnica + garaż + kotłownia + strych + poddasze do adaptacji.
23,2 m2
Powierzchnia garażu
18,68 m2
Kąt nachylenia dachu
40°
Kubatura
Objętość budynku liczona wraz z przegrodami zewnętrznymi i wewnętrznymi (ścianami, stropem, dachem i podmurówką)
695 m3
Wysokość budynku
Wysokość mierzona od poziomu terenu przy wejściu do budynku do najwyższego punktu dachu – kalenicy
8,25 m
Wymiary budynku
13,1 x 10,88 m
Wymiary działki
Wymiary działki (szerokość x głębokość), na której możliwe jest wybudowanie domu. Wynikają one z wymiarów budynku powiększonych o wymagane przepisami odległości poszczególnych elementów budynku od granic działki. Rzeczywistą odległość od drogi należy sprawdzić i dostosować do wymogów zawartych w MPZA lub WZ
21,1 x 17,88 m
Pokoje (z salonem)
Liczba wszystkich pokoi
7
Łazienki i wc
Suma łazienek i wc
3
Miejsca postojowe
Suma miejsc postojowych (garaż + wiata garażowa)
1
Sezonowość
Całoroczny
REKLAMA

Opis projektu

Projekt domu Narcyz 3 to projekt parterowy z poddaszem użytkowym z serii domów Narcyz. Ideą jaka przyświecała stworzeniu projektów z tej serii było uzyskanie prawdziwego domu - o takim kształcie i funkcji, które większość z nas automatycznie ma w głowie wyobrażając sobie dom. Takie domy rysują nasze dzieci, takie domy są głęboko w naszej pamięci. Postanowiliśmy połączyć tradycyjną formę budynku z dwuspadowym dachem z nowoczesnymi rozwiązaniami funkcjonalno - materiałowymi, tak aby jego architektura była maksymalnie ponadczasowa, ładnie się starzała, a jednocześnie żeby nawiązywała do obecnie obowiązującej mody. Wygląd i wnętrze projektu domu Narcyz 3 Projekt domku Narcyz 3 to parterowy dom z poddaszem użytkowym, zbudowany na planie prostokąta, przykryty dwuspadowym dachem. Do głównej bryły projektu Narcyz 3 dobudowana jest część garażowa z poddaszem. W projekcie domku Narcyz 3 symetryczna proporcjonalna elewacja frontowa ozdobiona jest podcieniem wejściowymi i szeroką lukarną z balkonem. Urozmaiceniem elewacji tylnej projektu Narcyz 3 jest zadaszenie tarasu, oraz szerokie przesuwne drzwi balkonowe salonu.Wnętrze parteru projektu Narcyz 3 to 40-metrowa połączona przestrzeń salonu, holu i kuchni, reprezentacyjne schody na poddasze, oraz dwa dodatkowe pokoje na parterze (gabinet do pracy, lub np. sypialnia seniora), oraz łazienka, garaż i kotłownia. Lokalizacja kotłowni w projekcie domu Narcyz 3 pozwala na instalację zarówno kotła gazowego lub pompy ciepła, jak i kotła na paliwo stałe. W projekcie domu Narcyz 3 na poddaszu, mimo skosów dachu, zmieściły się wygodne cztery pokoje i dwie łazienki (pokój nad garażem ma własną oddzielną łazienkę z prysznicem). Powierzchnię użytkową na poddaszu w projekcie domu Narcyz 3 można powiększyć podnosząc nieco ściany kolankowe. Projekt Narcyz 3 ma zwartą prostą bryłę, budynek nie jest trudny w budowie, a nowoczesne rozwiązania instalacyjne i bardzo dobre izolacje sprawiają, że jest budynkiem energooszczędnym i tanim w utrzymaniu. Koszt budowy domu to 190014 zł za stan surowy zamknięty. Projekt domku Narcyz 3 to idealna propozycja dla osób, które nie chcą ryzykować, chcą postawić na sprawdzoną od wielu lat architekturę, bez udziwnień i potencjalnych kłopotów, tak aby mieć kontrolę nad procesem budowy, a przede wszystkim nad kosztami budowy. Projekt domu Narcyz 3 to po prostu śliczny zgrabny dom jednorodzinny, który doskonale wpasuje się w każde otoczenie. Pracownia architektoniczna MG Projekt dysponuje również projektem domku Narcyz 3 w odbiciu lustrzanym oraz wersjami wariantowymi budynku: projekt domu Narcyz, projekt domu Narcyz 2, projekt domu Narcyz 4. 

Koszty

Orientacyjne koszty budowy netto - wycena wskaźnikowa Ceny aktualne na: IV kwartał 2025
Jak dokonujemy wyliczeń? icon arrow
Razem (etapy 1-3): 376 100 zł
1. Stan zero
Koszt etapu 68 000 zł
Zakres prac

wytyczenie budynku i roboty ziemne; ławy i stopy fundamentowe; ściany podziemne z izolacjami cieplnymi i przeciwwilgociowymi

2. Stan surowy otwarty
Koszt etapu + 242 300 zł
Zakres prac

ściany murowane zewnętrzne i wewnętrzne; stropy i schody wewnętrzne; konstrukcja dachu z pokryciem, obróbkami, rynnami i rurami spustowymi; podłoża pod posadzki ( np. chudy beton)

3. Stan surowy zamknięty
Koszt etapu + 65 900 zł
Zakres prac

Stan zero (wytyczenie budynku i roboty ziemne; ławy i stopy fundamentowe; ściany podziemne z izolacjami cieplnymi i przeciwwilgociowymi) oraz stan surowy (ściany murowane z zewnętrzne i wewnętrzne; stropy i schody wewnętrzne, konstrukcja dachu z pokryciem, obróbkami, rynnami i rurami spustowymi; podłoża pod posadzki (np. chudy beton), okna i drzwi zewnętrzne; bramy garażowe; warstwy wyrównawcze pod posadzki na gruncie i na stropie z izolacjami cieplnymi i przeciwwilgociowymi).

Razem (etapy 1-3): 376 100 zł
4. Instalacje elektryczne
Koszt etapu od 62,40 do 219,70 zł/m2

*

Zakres prac

wewnętrzna instalacja oświetleniowa; instalacja gniazd wtykowych; instalacja siły oraz instalacja odgromowa i inne wewnętrzne instalacje teletechniczne

5. Instalacje sanitarne
Koszt etapu od 232,70 do 910 zł/m2

**

Zakres prac

wewnętrzna instalacja wod. - kan. z przyborami sanitarnymi i bateriami; instalacja c.o. z kotłem i grzejnikami, bez kominka; instalacja gazowa bez osprzętu kuchennego; wentylacja mechaniczna ( jeśli występuje)

6. Wykończenie zewnętrzne
Koszt etapu od 126,10 do 638,30 zł/m2

***

Zakres prac

system dociepleń i tynki zewnętrzne z malowaniem; okładziny elewacyjne; balustrady, parapety zewnętrzne i inne roboty zewnętrzne np. taras, opaski wokół domu, schody zewnętrzne

7. Wykończenie wewnętrzne
Koszt etapu od 429 do 878,80 zł/m2

***

Zakres prac

tynki wewnętrzne, drzwi i okna wewnętrzne, lekkie ścianki działowe, roboty malarskie, posadzki i inne prace wykończeniowe

* w zależności od ilości punktów elektrycznych na 1m2

** w zależności od ilości punktów sanitarnych na 1m2 oraz ilości (odległości) instalacji rurowej

*** w zależności od rodzaju użytych meteriałów i specyfikacji wykończenia

Zmiany w projekcie

Zobacz zakres zmian, które możesz wprowadzić, w tym projekcie bez zgody autora.
Lista możliwych zmian

Jeśli zmiany, które chcesz wprowadzić nie są ujęte w powyższym zestawieniu, skontaktuj się z nami. Nasz architekt przeanalizuje i doradzi, które z Twoich propozycji warto wdrożyć. O zgodę na zmiany możesz wystąpić nie tylko w momencie zakupu projektu, ale także później i otrzymasz ją bezpłatnie w ciągu kilku dni.

Pliki do pobrania

Zestawienie materiałówpdf Pobierz
Rysunki szczegółowepdf Pobierz

Dokumentacja (zawartość pakietu projektowego)

Dodatki

Pakiet dodatków, który otrzymasz razem z projektem

addon
Prezent na Święta: Karta 200 zł do Zalando!
Święta tuż-tuż, a my mamy dla Ciebie prezent, który umili czas oczekiwania!
addon
Teczka inwestora
Do przechowywania niezbędnej dokumentacji
addon
Kupony rabatowe na zakupy
Dzięki którym zaoszczędzisz nawet kilkanaście tysięcy złotych.
addon
Projekty małej architektury
Wybudujesz samodzielnie m.in. domek dla dzieci czy altanę z grillem.
Pamiętaj
dostawa
Wysyłkę projektu ze wszystkimi dodatkami na terenie Polski bierzemy na siebie. Ty wybierasz, gdzie odbierzesz swój projekt. Masz do wyboru kuriera DPD lub punkty Paczkomat InPost 24/7.
zwroty

Masz 30 dni na zwrot i 365 dni na wymianę projektu

Inspiracje

Wnętrza
Wszystkie