pn.-pt. 8-20

Mini 13 G2 PLUS reco wersja lustrzana







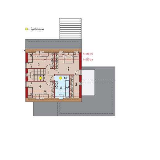
W nawiasach podano powierzchnie pomieszczenia netto

W nawiasach podano powierzchnie pomieszczenia netto

Mini 13 G2 PLUS reco
wersja lustrzanaKoncepcja projektu
Nasi doradcy przedstawią szczegółowe informacje dotyczące projektu.
Projekt wycofany z oferty
Dodatki
Atrakcyjne rabaty
Kompleksowe wsparcie
Gwarancja najniższej ceny
Wygodne zakupy
Zgoda na zmiany w projekcie
Szczegółowa dokumentacja
Rzuty, przekrój, elewacje

W nawiasach podano powierzchnie pomieszczenia netto

W nawiasach podano powierzchnie pomieszczenia netto

Działka
Wybór działki to jedna z ważniejszych decyzji poprzedzających budowę wymarzonego domu. Oczywiście najważniejsza jest jej lokalizacja, ale trzeba także przeanalizować lokalne ograniczenia wyszczególnione w miejscowym planie zagospodarowania przestrzennego lub w warunkach zabudowy. Często zapisy w w/w dokumentach uniemożliwiają budowę wybranego projektu i trzeba szukać dalej.
Ważne jest także usytuowanie działki i domu względem stron świata, gdyż to właśnie decyduje o stopniu nasłonecznienia poszczególnych pomieszczeń. Dlatego każdy projekt oferujemy w dwóch wersjach: podstawowej oraz lustrzanej, aby można było wybrać najkorzystniejszy układ pomieszczeń względem stron świata, a także względem ukształtowania krajobrazu w otoczeniu działki.

Parametry
Opis projektu
Budynek zaprojektowano jako wysokoenergooszczędny, wyposażony w pompę ciepła i wentylację mechaniczną oraz system fotowoltaiczny firmy Vaillant. Ogrzewanie podłogowe firmy Purmo.
Charakterystyka: Dom parterowy z
poddaszem użytkowym, niepodpiwniczony, z garażem dwustanowiskowym
Przeznaczenie: Dom dla 3-4-osobowej
rodziny
Technologia i
konstrukcja:
Ściany zewnętrzne: murowane,
trójwarstwowe, beton komórkowy firmy Solbet 24 cm, ocieplenie wełna mineralna
Isover Super-Vent 15 cm + warstwa elewacyjna z płytek włóknocementowych firmy
Cedral na podkonstrukcji drewnianej
Ściany wewnętrzne: nośne i działowe
murowane, beton komórkowy firmy Solbet 24 cm i 12 cm
Strop
i stropodach nad garażem: międzypiętrowy
gęstożebrowy Teriva, stropodach pełny
Dach: konstrukcja drewniana,
ocieplenie wełna mineralna Isover 30 cm, pokrycie z małoformatowych
włóknocementowych płytek dachowych firmy Cedral w kolorze grafitowym
Schody: schody wewnętrzne
drewniane
Rozwiązania
instalacyjne:
Ogrzewanie: pompa
ciepła aroTHERM Split firmy Vaillant, rozprowadzenie ciepła:
ogrzewanie podłogowe firmy Purmo
Wentylacja: wentylacja
mechaniczna recoVAIR firmy Vaillant
OZE: system fotowoltaiczny firmy Vaillant
Wykończenie:
Elewacje: małoformatowe
włóknocementowe płytki elewacyjne i dachowe firmy Cedral w kolorze grafitowym,
okładzina drewniana w poziomym układzie desek
Stolarka:
drewniana, PVC lub aluminiowa, drzwi tarasowe
podnoszono-przesuwne typu HS aluminiowo-drewniane Innowiev firmy Fakro, drzwi
wejściowe i brama garażowa firmy Okna połaciowe: rozwiązania technologiczne
i wyłaz dachowy firmy VELUX, świetlik dachowy firmy VELUX Pobierz ekspercki poradnik VELUX i dowiedz się jak wybrać okna dachowe
Otoczenie: kostka betonowa i
płyty tarasowe firmy Libet
Wersje w serii
Mini 13 - zapytaj o dostępność:
- Mini 13 – dom z pergolą od strony ogrodu, standardowe
instalacje: kocioł gazowy, wentylacja grawitacyjna, kolektory słoneczne
- Mini 13 PLUS (wersja A) – dom z pergolą od strony ogrodu,
instalacje energooszczędne firmy Viessmann: pompa ciepła, wentylacja
mechaniczna z rekuperacją, panele fotowoltaiczne
- Mini 13 PLUS (wersja B) – dom z elewacjami
klinkierowymi firmy Röben, instalacje energooszczędne firmy Viessmann: pompa
ciepła, wentylacja mechaniczna z rekuperacją, panele fotowoltaiczne
- Mini 13 PLUS Reco – dom wykończony płytkami elewacyjnymi i
dachowymi firmy Cedral, instalacje energooszczędne firmy Vaillant
- każda wersja z inną propozycją wykończenia elewacji
- niewielkie różnice w stolarce okiennej w każdej wersji
- każda wersja z trzema wariantami garaży
- odbicie lustrzane do wszystkich wersji
Wszystkie wersje domów możliwość w dwóch
standardach/wariantach instalacyjnych:
- ENERGO: kocioł gazowy kondensacyjny, grzejniki, wentylacja
grawitacyjna, kolektory słoneczne
- ENERGO PLUS / PLUS: pompa ciepła, ogrzewanie podłogowe, wentylacja
mechaniczna, dodatkowo system solarny lub panele fotowoltaiczne
Istnieją techniczne możliwości wykonania zmian:
- podpiwniczenia budynku
- wykonania budynku w technologii szkieletowej
- dokonania zmian funkcjonalnych wg indywidualnych wymagań
Koszty
wytyczenie budynku i roboty ziemne; ławy i stopy fundamentowe; ściany podziemne z izolacjami cieplnymi i przeciwwilgociowymi
ściany murowane zewnętrzne i wewnętrzne; stropy i schody wewnętrzne; konstrukcja dachu z pokryciem, obróbkami, rynnami i rurami spustowymi; podłoża pod posadzki ( np. chudy beton)
Stan zero (wytyczenie budynku i roboty ziemne; ławy i stopy fundamentowe; ściany podziemne z izolacjami cieplnymi i przeciwwilgociowymi) oraz stan surowy (ściany murowane z zewnętrzne i wewnętrzne; stropy i schody wewnętrzne, konstrukcja dachu z pokryciem, obróbkami, rynnami i rurami spustowymi; podłoża pod posadzki (np. chudy beton), okna i drzwi zewnętrzne; bramy garażowe; warstwy wyrównawcze pod posadzki na gruncie i na stropie z izolacjami cieplnymi i przeciwwilgociowymi).
*
wewnętrzna instalacja oświetleniowa; instalacja gniazd wtykowych; instalacja siły oraz instalacja odgromowa i inne wewnętrzne instalacje teletechniczne
**
wewnętrzna instalacja wod. - kan. z przyborami sanitarnymi i bateriami; instalacja c.o. z kotłem i grzejnikami, bez kominka; instalacja gazowa bez osprzętu kuchennego; wentylacja mechaniczna ( jeśli występuje)
***
system dociepleń i tynki zewnętrzne z malowaniem; okładziny elewacyjne; balustrady, parapety zewnętrzne i inne roboty zewnętrzne np. taras, opaski wokół domu, schody zewnętrzne
***
tynki wewnętrzne, drzwi i okna wewnętrzne, lekkie ścianki działowe, roboty malarskie, posadzki i inne prace wykończeniowe
* w zależności od ilości punktów elektrycznych na 1m2
** w zależności od ilości punktów sanitarnych na 1m2 oraz ilości (odległości) instalacji rurowej
*** w zależności od rodzaju użytych meteriałów i specyfikacji wykończenia
Zmiany w projekcie
Jeśli zmiany, które chcesz wprowadzić nie są ujęte w powyższym zestawieniu, skontaktuj się z nami. Nasz architekt przeanalizuje i doradzi, które z Twoich propozycji warto wdrożyć. O zgodę na zmiany możesz wystąpić nie tylko w momencie zakupu projektu, ale także później i otrzymasz ją bezpłatnie w ciągu kilku dni.
Dokumentacja (zawartość pakietu projektowego)
3 egzemplarze projektu architektoniczno-budowlanego ze szczegółowym opisem
Dowiedz sie wiecej tralalala lalatral2 egzemplarze projektu technicznego (architektura, konstrukcja, instalacje: wodno-kanalizacyjna, c.o., elektryczna, gazowa (jeśli występują)) ze szczegółowym opisem
Charakterystyka energetyczna w dwóch egzemplarzach (jeśli dotyczy)
Materiały pomocnicze (zestawienie więźby dachowej, wykaz materiałów instalacyjnych, obliczenia statyczne)
Oświadczenie projektantów – wymagane prawem potwierdzenie, że projekt został sporządzony zgodnie z obowiązującymi przepisami oraz zasadami wiedzy technicznej
Obowiązki architekta adaptującego – wykaz i zakres prac niezbędny do przystosowania domu do warunków lokalnych panujących na działce i stworzenia projektu budowlanego
Informacje o alternatywnych rozwiązaniach technicznych i instalacyjnych – wyjaśnienie konieczności zastosowania w projekcie jednoznacznych rozwiązań projektowych
Dodatki
Pakiet dodatków, który otrzymasz razem z projektem




Masz 30 dni na zwrot i 365 dni na wymianę projektu
Dodatki w dobrej cenie
Dodatki możesz dobrać także w koszyku lub podczas zakupów u naszego doradcy.