pn.-pt. 8-20

Miarodajny - wariant XVII wersja lustrzana





W nawiasach podano powierzchnie pomieszczenia netto





Miarodajny - wariant XVII
wersja lustrzanaKoncepcja projektu
Nasi doradcy przedstawią szczegółowe informacje dotyczące projektu.
Projekt wycofany z oferty
Dodatki
Atrakcyjne rabaty
Kompleksowe wsparcie
Gwarancja najniższej ceny
Wygodne zakupy
Zgoda na zmiany w projekcie
Szczegółowa dokumentacja
Rzuty, przekrój, elewacje

W nawiasach podano powierzchnie pomieszczenia netto

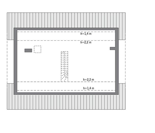
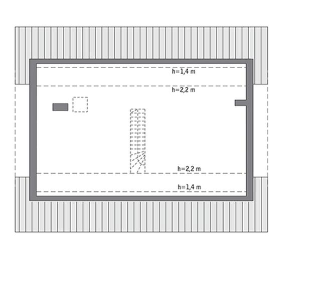
Do indywidualnej adaptacji (83,2 m2 powierzchni użytkowej)



Działka
Wybór działki to jedna z ważniejszych decyzji poprzedzających budowę wymarzonego domu. Oczywiście najważniejsza jest jej lokalizacja, ale trzeba także przeanalizować lokalne ograniczenia wyszczególnione w miejscowym planie zagospodarowania przestrzennego lub w warunkach zabudowy. Często zapisy w w/w dokumentach uniemożliwiają budowę wybranego projektu i trzeba szukać dalej.
Ważne jest także usytuowanie działki i domu względem stron świata, gdyż to właśnie decyduje o stopniu nasłonecznienia poszczególnych pomieszczeń. Dlatego każdy projekt oferujemy w dwóch wersjach: podstawowej oraz lustrzanej, aby można było wybrać najkorzystniejszy układ pomieszczeń względem stron świata, a także względem ukształtowania krajobrazu w otoczeniu działki.
Parametry
Opis projektu
Miarodajny – wariant XVII zachwyca barwami natury. Na elewacji frontowej i bocznej prawej, prym wiodą elementy z drewna, przełamane ciepłą bielą ścian. Kolorystykę tarasu idealnie skomponowano z elewacją, dzięki czemu dom oraz taras, tworzą spójną całość. Bryłę zwieńczono grafitowym dachem z brązową podbitką. W Miarodajnym – wariant XVII, postawiono na bliski kontakt z otoczeniem. Zapewnią go obszerne przeszklenia, które zaprojektowano z dwóch stron salonu. Strefa dzienna, to komfortowa przestrzeń o powierzchni około 44 mkw., podzielona funkcjonalnie na część wypoczynkową, jadalną i kuchenną. Taka powierzchnia pozbawiona ścian, pozwala na dowolną aranżację i daje mieszkańcom poczucie pełnej swobody. W rogu salonu zaplanowano kominek, który idealnie ociepli strefę wypoczynku, będąc jednocześnie dodatkowym, pięknym „meblem”. Duży taras, który roztacza się wzdłuż dwóch elewacji, zapewni mieszkańcom i ich gościom beztroski relaks na świeżym powietrzu. Strefa nocna to dwie sypialnie oraz łazienka. Pomieszczenia te przewidziano od strony elewacji tylnej, gwarantując domownikom intymność i ciszę. Zaplanowano także dodatkową łazienkę, zlokalizowaną przy salonie. Garaż zaprojektowano jako dwustanowiskowy, a na jego tyłach – przewidziano kotłownię. Inwestorzy, dla których parter Miarodajnego – wariant XVII będzie niewystarczający, mogą zaadaptować (na etapie indywidualnej adaptacji) poddasze na cele użytkowe. Zyskają wtedy dodatkową przestrzeń, o powierzchni ponad 80 mkw. Projekty domów z Kolekcji Muratora są dostępne także w wersji lustrzanego odbicia.
Jeśli szukasz tego projektu z dachem czterospadowym zobacz projekt C444t - Czterolistna koniczyna - wariant XVII
Koszty
wytyczenie budynku i roboty ziemne; ławy i stopy fundamentowe; ściany podziemne z izolacjami cieplnymi i przeciwwilgociowymi
ściany murowane zewnętrzne i wewnętrzne; stropy i schody wewnętrzne; konstrukcja dachu z pokryciem, obróbkami, rynnami i rurami spustowymi; podłoża pod posadzki ( np. chudy beton)
okna i drzwi zewnętrzne; bramy garażowe; warstwy wyrównawcze pod posadzki na gruncie i na stropie z izolacjami cieplnymi i przeciwwilgociowymi
*
wewnętrzna instalacja oświetleniowa; instalacja gniazd wtykowych; instalacja siły oraz instalacja odgromowa i inne wewnętrzne instalacje teletechniczne
**
wewnętrzna instalacja wod. - kan. z przyborami sanitarnymi i bateriami; instalacja c.o. z kotłem i grzejnikami, bez kominka; instalacja gazowa bez osprzętu kuchennego; wentylacja mechaniczna ( jeśli występuje)
***
system dociepleń i tynki zewnętrzne z malowaniem; okładziny elewacyjne; balustrady, parapety zewnętrzne i inne roboty zewnętrzne np. taras, opaski wokół domu, schody zewnętrzne
***
tynki wewnętrzne, drzwi i okna wewnętrzne, lekkie ścianki działowe, roboty malarskie, posadzki i inne prace wykończeniowe
* w zależności od ilości punktów elektrycznych na 1m2
** w zależności od ilości punktów sanitarnych na 1m2 oraz ilości (odległości) instalacji rurowej
*** w zależności od rodzaju użytych meteriałów i specyfikacji wykończenia
Zmiany w projekcie
Jeśli zmiany, które chcesz wprowadzić nie są ujęte w powyższym zestawieniu, skontaktuj się z nami. Nasz architekt przeanalizuje i doradzi, które z Twoich propozycji warto wdrożyć. O zgodę na zmiany możesz wystąpić nie tylko w momencie zakupu projektu, ale także później i otrzymasz ją bezpłatnie w ciągu kilku dni.
Pliki do pobrania
Dokumentacja (zawartość pakietu projektowego)
3 egzemplarze projektu architektoniczno-budowlanego ze szczegółowym opisem
Dowiedz sie wiecej3 egzemplarze projektu technicznego (konstrukcja, instalacje: wodno-kanalizacyjna, c.o., elektryczna, gazowa (jeśli występują)) ze szczegółowym opisem
Dowiedz sie wiecejCharakterystyka energetyczna (jeśli dotyczy)
Uproszczony ślepy kosztorys – orientacyjne zestawienie materiałów, robocizny i sprzętu z podziałem na etapy budowy
Lista zmian, które można wprowadzić w ramach adaptacji projektu
Dodatki
Pakiet dodatków, który otrzymasz razem z projektem




Masz 30 dni na zwrot i 365 dni na wymianę projektu
Dodatki w dobrej cenie
Dodatki możesz dobrać także w koszyku lub podczas zakupów u naszego doradcy.