pn.-pt. 8-20

Lea II (z wiatą) wersja lustrzana






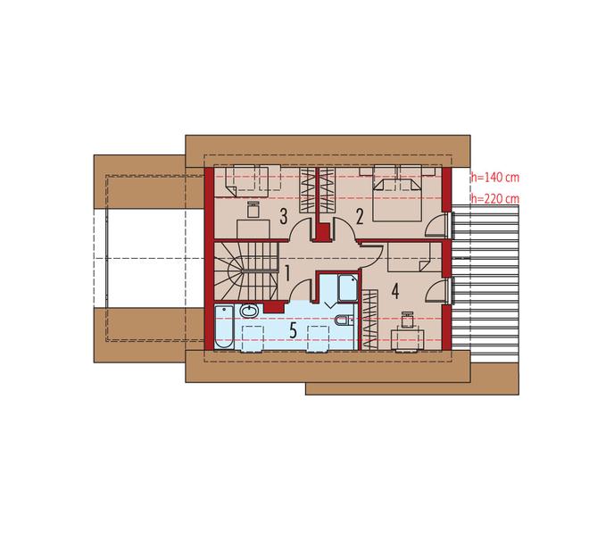
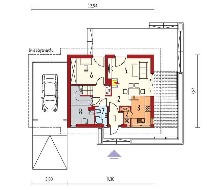
W nawiasach podano powierzchnie pomieszczenia netto

W nawiasach podano powierzchnie pomieszczenia netto

Lea II (z wiatą)
wersja lustrzanaKoncepcja projektu
Nasi doradcy przedstawią szczegółowe informacje dotyczące projektu.
Projekt wycofany z oferty
Dodatki
Atrakcyjne rabaty
Kompleksowe wsparcie
Gwarancja najniższej ceny
Wygodne zakupy
Zgoda na zmiany w projekcie
Szczegółowa dokumentacja
Rzuty, przekrój, elewacje

W nawiasach podano powierzchnie pomieszczenia netto

W nawiasach podano powierzchnie pomieszczenia netto

Działka
Wybór działki to jedna z ważniejszych decyzji poprzedzających budowę wymarzonego domu. Oczywiście najważniejsza jest jej lokalizacja, ale trzeba także przeanalizować lokalne ograniczenia wyszczególnione w miejscowym planie zagospodarowania przestrzennego lub w warunkach zabudowy. Często zapisy w w/w dokumentach uniemożliwiają budowę wybranego projektu i trzeba szukać dalej.
Ważne jest także usytuowanie działki i domu względem stron świata, gdyż to właśnie decyduje o stopniu nasłonecznienia poszczególnych pomieszczeń. Dlatego każdy projekt oferujemy w dwóch wersjach: podstawowej oraz lustrzanej, aby można było wybrać najkorzystniejszy układ pomieszczeń względem stron świata, a także względem ukształtowania krajobrazu w otoczeniu działki.

Parametry
Opis projektu
Charakterystyka: Dom parterowy z
poddaszem użytkowym, niepodpiwniczony
Przeznaczenie: Dom dla 3-5-osobowej
rodziny
Technologia i
konstrukcja:
Ściany zewnętrzne: murowane,
dwuwarstwowe, beton komórkowy firmy H+H 24 cm, ocieplenie styropian Termo
Organika 20 cm
Ściany wewnętrzne: nośne i działowe
murowane, beton komórkowy firmy H+H 24 cm i 12 cm
Strop: międzypiętrowy
gęstożebrowy Teriva
Dach: konstrukcja drewniana,
ocieplenie wełna mineralna Isover 30
cm, dachówka ceramiczna płaska Bergamo firmy Röben
Schody: schody wewnętrzne drewniane
Rozwiązania instalacyjne:
Ogrzewanie: kocioł gazowy
kondensacyjny firmy Viessmann, rozprowadzenie ciepła: grzejniki firmy Purmo
Wentylacja: grawitacyjna
OZE: kolektory słoneczne firmy Viessmann
Dodatkowo: stacja uzdatniania wody firmy Viessmann
Wykończenie:
Elewacje: tynk cienkowarstwowy
mineralny w kolorze białym TO-PA 001 z palety firmy Termo Organika
Stolarka: drewniana, PVC lub
aluminiowa, drzwi tarasowe podnoszono-przesuwne typu HS, rolety zewnętrzne w systemie
CleverBox firmy BeClever
Okna połaciowe: rozwiązania
technologiczne i wyłaz dachowy firmy Velux
Otoczenie: kostka betonowa i płyty tarasowe firmy Libet, system
tarasowy ProDeck - deska kompozytowa Terra w kolorze orzech
Wersje w serii Lea - zapytaj o dostępność:
- Lea – wersja podstawowa
- Lea (wersja A) – inne wykończenie elewacji
- Lea (wersja B) – inne wykończenie elewacji
- Lea II (z wiatą) – inne wykończenie elewacji, dobudowana wiata na
jedno auto
- wszystkie wersje takim samym układzie funkcji oraz z inną
propozycją wykończenia elewacji
- wszystkie wersje z trzema wariantami garaży: bez garażu, z garażem
jedno- i dwustanowiskowym
- odbicie lustrzane do każdej wersji
Wszystkie
wersje domów możliwe w dwóch standardach/wariantach instalacyjnych:
- ENERGO: kocioł gazowy kondensacyjny, grzejniki, wentylacja
grawitacyjna, OZE: kolektory słoneczne
- ENERGO PLUS: pompa ciepła, ogrzewanie podłogowe, wentylacja
mechaniczna, OZE: system fotowoltaiczn
Istnieją techniczne możliwości wykonania
zmian:
-
podpiwniczenia budynku
- wykonania budynku w technologii szkieletowej
- dokonania zmian funkcjonalnych wg indywidualnych wymagań
Koszty
wytyczenie budynku i roboty ziemne; ławy i stopy fundamentowe; ściany podziemne z izolacjami cieplnymi i przeciwwilgociowymi
ściany murowane zewnętrzne i wewnętrzne; stropy i schody wewnętrzne; konstrukcja dachu z pokryciem, obróbkami, rynnami i rurami spustowymi; podłoża pod posadzki ( np. chudy beton)
Stan zero (wytyczenie budynku i roboty ziemne; ławy i stopy fundamentowe; ściany podziemne z izolacjami cieplnymi i przeciwwilgociowymi) oraz stan surowy (ściany murowane z zewnętrzne i wewnętrzne; stropy i schody wewnętrzne, konstrukcja dachu z pokryciem, obróbkami, rynnami i rurami spustowymi; podłoża pod posadzki (np. chudy beton), okna i drzwi zewnętrzne; bramy garażowe; warstwy wyrównawcze pod posadzki na gruncie i na stropie z izolacjami cieplnymi i przeciwwilgociowymi).
*
wewnętrzna instalacja oświetleniowa; instalacja gniazd wtykowych; instalacja siły oraz instalacja odgromowa i inne wewnętrzne instalacje teletechniczne
**
wewnętrzna instalacja wod. - kan. z przyborami sanitarnymi i bateriami; instalacja c.o. z kotłem i grzejnikami, bez kominka; instalacja gazowa bez osprzętu kuchennego; wentylacja mechaniczna ( jeśli występuje)
***
system dociepleń i tynki zewnętrzne z malowaniem; okładziny elewacyjne; balustrady, parapety zewnętrzne i inne roboty zewnętrzne np. taras, opaski wokół domu, schody zewnętrzne
***
tynki wewnętrzne, drzwi i okna wewnętrzne, lekkie ścianki działowe, roboty malarskie, posadzki i inne prace wykończeniowe
* w zależności od ilości punktów elektrycznych na 1m2
** w zależności od ilości punktów sanitarnych na 1m2 oraz ilości (odległości) instalacji rurowej
*** w zależności od rodzaju użytych meteriałów i specyfikacji wykończenia
Zmiany w projekcie
Jeśli zmiany, które chcesz wprowadzić nie są ujęte w powyższym zestawieniu, skontaktuj się z nami. Nasz architekt przeanalizuje i doradzi, które z Twoich propozycji warto wdrożyć. O zgodę na zmiany możesz wystąpić nie tylko w momencie zakupu projektu, ale także później i otrzymasz ją bezpłatnie w ciągu kilku dni.
Dokumentacja (zawartość pakietu projektowego)
3 egzemplarze projektu architektoniczno-budowlanego ze szczegółowym opisem
Dowiedz sie wiecej tralalala lalatral2 egzemplarze projektu technicznego (architektura, konstrukcja, instalacje: wodno-kanalizacyjna, c.o., elektryczna, gazowa (jeśli występują)) ze szczegółowym opisem
Charakterystyka energetyczna w dwóch egzemplarzach (jeśli dotyczy)
Materiały pomocnicze (zestawienie więźby dachowej, wykaz materiałów instalacyjnych, obliczenia statyczne)
Oświadczenie projektantów – wymagane prawem potwierdzenie, że projekt został sporządzony zgodnie z obowiązującymi przepisami oraz zasadami wiedzy technicznej
Obowiązki architekta adaptującego – wykaz i zakres prac niezbędny do przystosowania domu do warunków lokalnych panujących na działce i stworzenia projektu budowlanego
Informacje o alternatywnych rozwiązaniach technicznych i instalacyjnych – wyjaśnienie konieczności zastosowania w projekcie jednoznacznych rozwiązań projektowych
Dodatki
Pakiet dodatków, który otrzymasz razem z projektem




Masz 30 dni na zwrot i 365 dni na wymianę projektu
Dodatki w dobrej cenie
Dodatki możesz dobrać także w koszyku lub podczas zakupów u naszego doradcy.
Inspiracje

