+48 22 59 05 000

pn.-pt. 8-20

Kontakt i pomoc^
Kontakt i pomoc
Zamów rozmowę
Umów wideorozmowę
Napisz do nas
Pomoc w kredycie
Bezpłatna analiza działki
logo
ulubione 0
REKLAMA
REKLAMA
AN1200

Koral (murowana - beton komórkowy)

wersja lustrzana
Kupując u nas, zyskujesz więcej

Dodatki

Atrakcyjne rabaty

Kompleksowe wsparcie

Gwarancja najniższej ceny

Wygodne zakupy

Zgoda na zmiany w projekcie

Szczegółowa dokumentacja

Rzuty
Działka
Parametry
Zmiany
Dokumentacja
Dodatki
REKLAMA

Rzuty, przekrój, elewacje

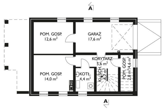
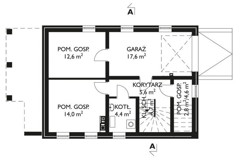
Piwnica
Wersja lustrzana
Pomieszczenie Użytkowa
1
pom. gosp. (4,5)
2
pom. gosp. (13,0)
3
korytarz (5,2)
4
komunikacja (4,4)
5
pom. gosp. (13,6)
6
garaż (18,2)
7
kotłownia (4,4)

W nawiasach podano powierzchnie pomieszczenia netto

Parter 54,9 m2
Wersja lustrzana
Pomieszczenie Użytkowa
1
pokój dzienny
27,1 m2
2
kuchnia
17,4 m2
3
hol
6,0 m2
4
wc
3,1 m2
5
przedsionek
1,3 m2
Razem 54,9 m2
6
komunikacja (2,4)

W nawiasach podano powierzchnie pomieszczenia netto

Poddasze 46,7 m2
Wersja lustrzana
Pomieszczenie Użytkowa
1
pokój (17,5)
14,5 m2
2
pokój (14,5)
11,7 m2
3
pokój (13,1)
10,9 m2
4
korytarz
6,3 m2
5
łazienka (4,5)
3,3 m2
Razem 46,7 m2
6
komunikacja (2,4)

W nawiasach podano powierzchnie pomieszczenia netto

REKLAMA

Działka

Wybór działki to jedna z ważniejszych decyzji poprzedzających budowę wymarzonego domu. Oczywiście najważniejsza jest jej lokalizacja, ale trzeba także przeanalizować lokalne ograniczenia wyszczególnione w miejscowym planie zagospodarowania przestrzennego lub w warunkach zabudowy. Często zapisy w w/w dokumentach uniemożliwiają budowę wybranego projektu i trzeba szukać dalej.

Ważne jest także usytuowanie działki i domu względem stron świata, gdyż to właśnie decyduje o stopniu nasłonecznienia poszczególnych pomieszczeń. Dlatego każdy projekt oferujemy w dwóch wersjach: podstawowej oraz lustrzanej, aby można było wybrać najkorzystniejszy układ pomieszczeń względem stron świata, a także względem ukształtowania krajobrazu w otoczeniu działki.

Wymiary działki
Wymiary działki (szerokość x głębokość), na której możliwe jest wybudowanie domu. Wynikają one z wymiarów budynku powiększonych o wymagane przepisami odległości poszczególnych elementów budynku od granic działki. Rzeczywistą odległość od drogi należy sprawdzić i dostosować do wymogów zawartych w MPZA lub WZ.
15.90 x 20.90 m
Przekrój
Wersja lustrzana

Parametry

Dane Techniczne
Technologia i materiały
Parametry cieplne
Powierzchnia użytkowa
Suma powierzchni pomieszczeń mierzona po wewnętrznym obrysie ścian. Na jej wielkość ma wpływ wysokość pomieszczenia i jest liczona: – w 100% – przy wysokości w świetle powyżej 2,2 m, – w 50% – przy wysokości między 1,4 m a 2,2 m, – pomija się – przy wysokości poniżej 1,4 m. Do powierzchni użytkowej domu nie dolicza się powierzchni niektórych pomieszczeń, np. piwnicy, garażu, kotłowni, strychu.
101,4 m2
Powierzchnia zabudowy
Powierzchnia mierzona po obrysie zewnętrznych krawędzi wykończonego budynku z uwzględnieniem powierzchni nadwieszonych (np. wykusz). Nie dolicza się do niej elementów drugorzędnych (np. schodów zewnętrznych, daszków, ramp) oraz elementów niewystających ponad powierzchnię terenu
85,4 m2
Powierzchnia netto
Powierzchnia wszystkich pomieszczeń budynku mierzona na poziomie podłogi, po wewnętrznym obrysie ścian w stanie wykończonym. Na jej wartość nie wpływa wysokość pomieszczeń.
178,5 m2
Powierzchnia całkowita
Suma powierzchni całkowitych wszystkich kondygnacji (w tym znajdujących się całkowicie lub częściowo poniżej poziomu terenu) mierzona po zewnętrznym obrysie ścian (wraz z ociepleniem) oraz wszystkich elementów wykraczających poza kubaturę, np. tarasy, schody zewnętrzne, balkony, podcienie, zjazdy do garaży, itp.
256,1 m2
Kubatura
Objętość budynku liczona wraz z przegrodami zewnętrznymi i wewnętrznymi (ścianami, stropem, dachem i podmurówką)
769,3 m3
Wysokość budynku
Wysokość mierzona od poziomu terenu przy wejściu do budynku do najwyższego punktu dachu – kalenicy
9,5 m
Wymiary budynku
7,9 x 10,9 m
Wymiary działki
Wymiary działki (szerokość x głębokość), na której możliwe jest wybudowanie domu. Wynikają one z wymiarów budynku powiększonych o wymagane przepisami odległości poszczególnych elementów budynku od granic działki. Rzeczywistą odległość od drogi należy sprawdzić i dostosować do wymogów zawartych w MPZA lub WZ
15,9 x 20,9 m
Pokoje (z salonem)
Liczba wszystkich pokoi
4
Łazienki i wc
Suma łazienek i wc
2
Miejsca postojowe
Suma miejsc postojowych (garaż + wiata garażowa)
1
Sezonowość
Całoroczny
REKLAMA

Opis projektu

Dom parterowy, z użytkowym poddaszem, calkowicie podpiwniczony, z garażem. Projekt domu Koral to jeden z nielicznych projektów małych domów z użytkowym poddaszem przeznaczonych na wąską działkę, który oferuje całkowite podpiwniczenie. Jest o kilkanaście m2 mniejszy od Korala Rex przewidującego identyczny program użytkowy na nieco dłuższym planie. Front obu propozycji zwrócono szczytem dwuspadowego dachu w kierunku wjazdu na parcelę. Rozwiązanie to wyróżnia wnęka z narożnym słupem niosącym balkon sypialni poddasza, który osłania wejście. Wysoki parter zajmuje tradycyjnie zagospodarowana wydzielonymi pomieszczeniami część dzienna mieszkania: pokój dzienny, duża kuchnia i łazienka oraz hol i schody. Na poddaszu zmieszczą się trzy sypialnie z łazienką, a w piwnicy, oprócz jednostanowiskowego garażu, kotłownia i kilka pomieszczeń gospodarczych. Tradycyjny i ekonomiczny jest też sposób oświetlenia poddasza – bez lukarn, głównie dużymi oknami w ścianach szczytowych. Oprócz zagłębienia pod okapem akcentującego wejściowe schody, jedynym urozmaiceniem ekonomicznej bryły jest w projekcie domu Koral długi balkon. Doskonale osłania i zacienia wyjście z salonu na duży taras ogrodowy.

Zmiany w projekcie

Zobacz zakres zmian, które możesz wprowadzić, w tym projekcie bez zgody autora.
Lista możliwych zmian

Jeśli zmiany, które chcesz wprowadzić nie są ujęte w powyższym zestawieniu, skontaktuj się z nami. Nasz architekt przeanalizuje i doradzi, które z Twoich propozycji warto wdrożyć. O zgodę na zmiany możesz wystąpić nie tylko w momencie zakupu projektu, ale także później i otrzymasz ją bezpłatnie w ciągu kilku dni.

Dokumentacja (zawartość pakietu projektowego)

Dodatki

Pakiet dodatków, który otrzymasz razem z projektem

addon
Teczka inwestora
Do przechowywania niezbędnej dokumentacji
addon
Poradnik Zbuduj dom
192 strony praktycznych porad dot. budowy domu
addon
Kupony rabatowe na zakupy
Dzięki którym zaoszczędzisz nawet kilkanaście tysięcy złotych.
addon
Projekty małej architektury
Wybudujesz samodzielnie m.in. domek dla dzieci czy altanę z grillem.
Pamiętaj
dostawa
Wysyłkę projektu ze wszystkimi dodatkami na terenie Polski bierzemy na siebie. Ty wybierasz, gdzie odbierzesz swój projekt. Masz do wyboru kuriera DPD lub punkty Paczkomat InPost 24/7.
zwroty

Masz 30 dni na zwrot i 365 dni na wymianę projektu