+48 22 59 05 000

pn.-pt. 8-20

Kontakt i pomoc^
Kontakt i pomoc
Zamów rozmowę
Umów wideorozmowę
Napisz do nas
Pomoc w kredycie
Bezpłatna analiza działki
logo
ulubione 0
REKLAMA
REKLAMA
DD1853

Klara VIII z garażem 1-st. [A]

wersja lustrzana
Kupując u nas, zyskujesz więcej

Dodatki

Atrakcyjne rabaty

Kompleksowe wsparcie

Gwarancja najniższej ceny

Wygodne zakupy

Zgoda na zmiany w projekcie

Szczegółowa dokumentacja

Rzuty
Działka
Parametry
Podobne
Zmiany
Dokumentacja
Dodatki
REKLAMA

Rzuty, przekrój, elewacje

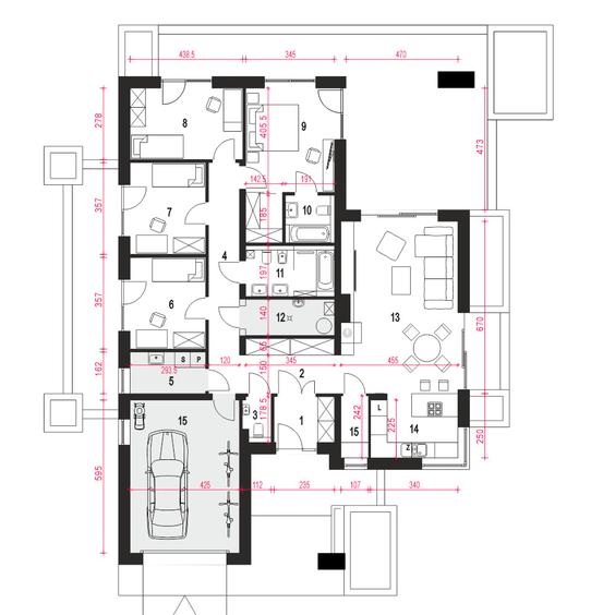
Parter 123,6 m2
Wersja lustrzana
Pomieszczenie Użytkowa
1
przedsionek
4,1 m2
2
hol
8,1 m2
3
wc
1,8 m2
4
korytarz
10,5 m2
6
sypialnia
10,3 m2
7
sypialnia
10,3 m2
8
sypialnia
12,0 m2
9
sypialnia
16,6 m2
10
łazienka
3,4 m2
11
łazienka
6,1 m2
13
pokój dzienny + jadalnia
29,7 m2
14
kuchnia
8,2 m2
15
spiżarnia
2,5 m2
Razem 123,6 m2
5
pralnia
4,6 m2
12
kotłownia
4,7 m2
16
garaż
25,0 m2

W nawiasach podano powierzchnie pomieszczenia netto

Elewacje
Wersja lustrzana
Elewacja 1
Elewacja 1
Elewacja 2
Elewacja 3
Elewacja 4
REKLAMA

Działka

Wybór działki to jedna z ważniejszych decyzji poprzedzających budowę wymarzonego domu. Oczywiście najważniejsza jest jej lokalizacja, ale trzeba także przeanalizować lokalne ograniczenia wyszczególnione w miejscowym planie zagospodarowania przestrzennego lub w warunkach zabudowy. Często zapisy w w/w dokumentach uniemożliwiają budowę wybranego projektu i trzeba szukać dalej.

Ważne jest także usytuowanie działki i domu względem stron świata, gdyż to właśnie decyduje o stopniu nasłonecznienia poszczególnych pomieszczeń. Dlatego każdy projekt oferujemy w dwóch wersjach: podstawowej oraz lustrzanej, aby można było wybrać najkorzystniejszy układ pomieszczeń względem stron świata, a także względem ukształtowania krajobrazu w otoczeniu działki.

Wymiary działki
Wymiary działki (szerokość x głębokość), na której możliwe jest wybudowanie domu. Wynikają one z wymiarów budynku powiększonych o wymagane przepisami odległości poszczególnych elementów budynku od granic działki. Rzeczywistą odległość od drogi należy sprawdzić i dostosować do wymogów zawartych w MPZA lub WZ.
22.10 x 27.30 m
Przekrój
Wersja lustrzana

Parametry

Dane Techniczne
Technologia i materiały
Parametry cieplne
Powierzchnia użytkowa
Suma powierzchni pomieszczeń mierzona po wewnętrznym obrysie ścian. Na jej wielkość ma wpływ wysokość pomieszczenia i jest liczona: – w 100% – przy wysokości w świetle powyżej 2,2 m, – w 50% – przy wysokości między 1,4 m a 2,2 m, – pomija się – przy wysokości poniżej 1,4 m. Do powierzchni użytkowej domu nie dolicza się powierzchni niektórych pomieszczeń, np. piwnicy, garażu, kotłowni, strychu.
123,6 m2
Powierzchnia netto
Powierzchnia wszystkich pomieszczeń budynku mierzona na poziomie podłogi, po wewnętrznym obrysie ścian w stanie wykończonym. Na jej wartość nie wpływa wysokość pomieszczeń.
157,9 m2
Powierzchnia dodatkowa
Dodatkowe powierzchnie niewliczane do powierzchni użytkowej: piwnica + garaż + kotłownia + strych + poddasze do adaptacji.
29,7 m2
Powierzchnia garażu
25 m2
Powierzchnia dachu
247 m2
Kąt nachylenia dachu
Wysokość budynku
Wysokość mierzona od poziomu terenu przy wejściu do budynku do najwyższego punktu dachu – kalenicy
4,5 m
Wysokość parteru
Podana wartość to wysokość pomieszczeń parteru w stanie wykończonym, mierzona od poziomu posadzki do spodu sufitu.
2,70 m
Wymiary budynku
14,1 x 19,3 m
Wymiary działki
Wymiary działki (szerokość x głębokość), na której możliwe jest wybudowanie domu. Wynikają one z wymiarów budynku powiększonych o wymagane przepisami odległości poszczególnych elementów budynku od granic działki. Rzeczywistą odległość od drogi należy sprawdzić i dostosować do wymogów zawartych w MPZA lub WZ
22,1 x 27,3 m
Pokoje (z salonem)
Liczba wszystkich pokoi
5
Łazienki i wc
Suma łazienek i wc
3
Miejsca postojowe
Suma miejsc postojowych (garaż + wiata garażowa)
1
Sezonowość
Całoroczny
REKLAMA

Opis projektu

Projekt domu Klara VIII z garażem to nowoczesny dom parterowy z płaskim dachem dla 5-osobowej rodziny. Dom zaprojektowany jest w technologii murowanej przekryty płaskim dachem.

Klara VIII to funkcjonalny projekt domu parterowego, łączący strefę ogólnodostępną i prywatną na jednym poziomie. Projekt jest opracowany w oparciu o projekt Klara V, względem którego różni się wyłącznie sposobem zadaszenia. W części wejściowej mamy przewidziany wygodny wiatrołap i hol z szafami wnękowymi, pralnię oraz toaletę. W części ogólnodostępnej zaprojektowano przestronny i dobrze doświetlony salon z miejscem na wygodny stół jadalniany z widokiem na ogród. Dzięki dużym drzwiom tarasowym od strony ogrodowej, dostaniemy się wprost na zewnętrzny taras. W części ogólnodostępnej projekt przewiduje również wygodną kuchnię z wyspą i praktyczną spiżarnią. Kuchnia z układem mebli w kształcie litery "L", zapewnia odpowiednią przestrzeń do pracy, a duże narożne okno doświetla idealnie przestrzeń roboczą. Do części prywatnej dostaniemy się przez korytarz dostępny z holu wejściowego. W części prywatnej mamy do dyspozycji cztery pokoje sypialne, w tym jeden typu master bedroom. Znajdziemy tu też wygodną, wspólną łazienkę z wanną oraz pomieszczenie techniczne z piecem CO.

Klara VIII to atrakcyjna propozycja domu energooszczędnego, o nowoczesnym wyglądzie. To projekt domu z serii "eco" - ekonomiczny w budowie i w utrzymaniu - idealna propozycja dla rodzin planujących budowę pierwszego domu. Projekt dostępny w wersji lustrzanej.
REKLAMA

Zmiany w projekcie

Zobacz zakres zmian, które możesz wprowadzić, w tym projekcie bez zgody autora.
Lista możliwych zmian

Jeśli zmiany, które chcesz wprowadzić nie są ujęte w powyższym zestawieniu, skontaktuj się z nami. Nasz architekt przeanalizuje i doradzi, które z Twoich propozycji warto wdrożyć. O zgodę na zmiany możesz wystąpić nie tylko w momencie zakupu projektu, ale także później i otrzymasz ją bezpłatnie w ciągu kilku dni.

Dokumentacja (zawartość pakietu projektowego)

Dodatki

Pakiet dodatków, który otrzymasz razem z projektem

addon
Teczka inwestora
Do przechowywania niezbędnej dokumentacji
addon
Kupony rabatowe na zakupy
Dzięki którym zaoszczędzisz nawet kilkanaście tysięcy złotych.
addon
Projekty małej architektury
Wybudujesz samodzielnie m.in. domek dla dzieci czy altanę z grillem.
Pamiętaj
dostawa
Wysyłkę projektu ze wszystkimi dodatkami na terenie Polski bierzemy na siebie. Ty wybierasz, gdzie odbierzesz swój projekt. Masz do wyboru kuriera DPD lub punkty Paczkomat InPost 24/7.
zwroty

Masz 30 dni na zwrot i 365 dni na wymianę projektu