+48 22 59 05 000

pn.-pt. 8-20

Kontakt i pomoc^
Kontakt i pomoc
Zamów rozmowę
Umów wideorozmowę
Napisz do nas
Pomoc w kredycie
Bezpłatna analiza działki
logo
ulubione 0
REKLAMA
REKLAMA
MG0554

Kasjopea 7 B

wersja lustrzana
Kupując u nas, zyskujesz więcej

Dodatki

Atrakcyjne rabaty

Kompleksowe wsparcie

Gwarancja najniższej ceny

Wygodne zakupy

Zgoda na zmiany w projekcie

Szczegółowa dokumentacja

Rzuty
Działka
Parametry
Koszty
Podobne
Zmiany
Pliki do pobrania
Dokumentacja
Dodatki
Inspiracje
REKLAMA

Rzuty, przekrój, elewacje

Parter 94,57 m2
Wersja lustrzana
Pomieszczenie Użytkowa
1
przedsionek
3,6 m2
2
hol
12,4 m2
3
wc
1,94 m2
4
łazienka
2,57 m2
5
gabinet
11,55 m2
6
pokój dzienny + jadalnia
47,51 m2
7
kuchnia
15,0 m2
Razem 94,57 m2
8
kotłownia
7,59 m2
9
garaż
32,95 m2

W nawiasach podano powierzchnie pomieszczenia netto

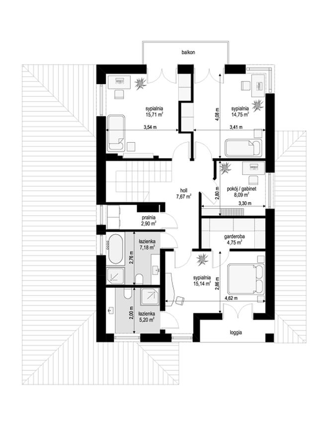
Piętro 81,39 m2
Wersja lustrzana
Pomieszczenie Użytkowa
1
hol
7,67 m2
2
sypialnia
15,71 m2
3
sypialnia
14,75 m2
4
pokój
8,09 m2
5
garderoba
4,75 m2
6
sypialnia
15,14 m2
7
łazienka
5,2 m2
8
łazienka
7,18 m2
9
pralnia
2,9 m2
Razem 81,39 m2

W nawiasach podano powierzchnie pomieszczenia netto

Elewacje
Wersja lustrzana
Elewacja 1
Elewacja 1
Elewacja 2
Elewacja 3
Elewacja 4
REKLAMA

Działka

Wybór działki to jedna z ważniejszych decyzji poprzedzających budowę wymarzonego domu. Oczywiście najważniejsza jest jej lokalizacja, ale trzeba także przeanalizować lokalne ograniczenia wyszczególnione w miejscowym planie zagospodarowania przestrzennego lub w warunkach zabudowy. Często zapisy w w/w dokumentach uniemożliwiają budowę wybranego projektu i trzeba szukać dalej.

Ważne jest także usytuowanie działki i domu względem stron świata, gdyż to właśnie decyduje o stopniu nasłonecznienia poszczególnych pomieszczeń. Dlatego każdy projekt oferujemy w dwóch wersjach: podstawowej oraz lustrzanej, aby można było wybrać najkorzystniejszy układ pomieszczeń względem stron świata, a także względem ukształtowania krajobrazu w otoczeniu działki.

Wymiary działki
Wymiary działki (szerokość x głębokość), na której możliwe jest wybudowanie domu. Wynikają one z wymiarów budynku powiększonych o wymagane przepisami odległości poszczególnych elementów budynku od granic działki. Rzeczywistą odległość od drogi należy sprawdzić i dostosować do wymogów zawartych w MPZA lub WZ.
19.73 x 23.02 m
Przekrój
Wersja lustrzana

Parametry

Dane Techniczne
Technologia i materiały
Parametry cieplne
Powierzchnia użytkowa
Suma powierzchni pomieszczeń mierzona po wewnętrznym obrysie ścian. Na jej wielkość ma wpływ wysokość pomieszczenia i jest liczona: – w 100% – przy wysokości w świetle powyżej 2,2 m, – w 50% – przy wysokości między 1,4 m a 2,2 m, – pomija się – przy wysokości poniżej 1,4 m. Do powierzchni użytkowej domu nie dolicza się powierzchni niektórych pomieszczeń, np. piwnicy, garażu, kotłowni, strychu.
175,95 m2
Powierzchnia zabudowy
Powierzchnia mierzona po obrysie zewnętrznych krawędzi wykończonego budynku z uwzględnieniem powierzchni nadwieszonych (np. wykusz). Nie dolicza się do niej elementów drugorzędnych (np. schodów zewnętrznych, daszków, ramp) oraz elementów niewystających ponad powierzchnię terenu
168,79 m2
Powierzchnia netto
Powierzchnia wszystkich pomieszczeń budynku mierzona na poziomie podłogi, po wewnętrznym obrysie ścian w stanie wykończonym. Na jej wartość nie wpływa wysokość pomieszczeń.
216,5 m2
Powierzchnia całkowita
Suma powierzchni całkowitych wszystkich kondygnacji (w tym znajdujących się całkowicie lub częściowo poniżej poziomu terenu) mierzona po zewnętrznym obrysie ścian (wraz z ociepleniem) oraz wszystkich elementów wykraczających poza kubaturę, np. tarasy, schody zewnętrzne, balkony, podcienie, zjazdy do garaży, itp.
276,43 m2
Powierzchnia dodatkowa
Dodatkowe powierzchnie niewliczane do powierzchni użytkowej: piwnica + garaż + kotłownia + strych + poddasze do adaptacji.
40,54 m2
Powierzchnia garażu
32,95 m2
Kąt nachylenia dachu
30°
Kubatura
Objętość budynku liczona wraz z przegrodami zewnętrznymi i wewnętrznymi (ścianami, stropem, dachem i podmurówką)
812 m3
Wysokość budynku
Wysokość mierzona od poziomu terenu przy wejściu do budynku do najwyższego punktu dachu – kalenicy
8,97 m
Wymiary budynku
12,73 x 15,02 m
Wymiary działki
Wymiary działki (szerokość x głębokość), na której możliwe jest wybudowanie domu. Wynikają one z wymiarów budynku powiększonych o wymagane przepisami odległości poszczególnych elementów budynku od granic działki. Rzeczywistą odległość od drogi należy sprawdzić i dostosować do wymogów zawartych w MPZA lub WZ
19,73 x 23,02 m
Pokoje (z salonem)
Liczba wszystkich pokoi
6
Łazienki i wc
Suma łazienek i wc
4
Miejsca postojowe
Suma miejsc postojowych (garaż + wiata garażowa)
2
Sezonowość
Całoroczny
REKLAMA

Opis projektu

Projekt domu Kasjopea 7 B jest wersją wariantową popularnego projektu Kasjopea 7 z wyższym kątem nachylenia dachu, co może być ułatwieniem dla Inwestorów, na których działkach warunki urbanistyczne nakazują budowę domu z wyższym dachem. Projekt domu Kasjopea 7 BProjekt domu Kasjopea 7 B jest energooszczędny, zastosowano w nim najnowsze materiały i instalacje. Budynek ma dość prostą konstrukcję - będzie łatwy i szybki w budowie. Dzięki zwartej bryle i dobrym izolacjom będzie też tani w późniejszej eksploatacji. Projekt dostępny jest w odbiciu lustrzanym oraz kilku wersjach: podstawowa ( to projekt domu jednorodzinnego, piętrowego. Jego prostokątna piętrowa bryła przykryta jest czterospadowym dachem. Do głównej bryły dobudowana jest parterowa część nad garażem i dodatkowym pokojem przekryta trzyspadowym dachem. Elewacje domu podzielono na poziome pasy. Ściany parteru są boniowane - ściany piętra tynkowane na gładko. Duże przeszklenia, loggia, podcienie , balkon - stanowią elementy ozdobne urozmaicające zewnętrzną sylwetkę budynku. Zastosowane nowoczesne materiały w stonowanych kolorach tworzą elegancki, powściągliwy efekt. Dom, jako podmiejska willa, doskonale wpasuje się w otoczenie innych zabudowań. Wnętrze budynku podzielono na następujące części: przestrzeń dzienną i gospodarczo garażową na parterze, oraz sypialnie na piętrze. Do domu wchodzimy przez przedsionek połączony z garażem i przechodzimy na wprost do połączonej otwartej powierzchni holu, salonu z jadalnią i kuchni. Salon i jadalnia otwierają się dużymi przeszkleniami na częściowo zadaszony taras, oraz ogród. Wygodna kuchnia z kącikiem na szybkie posiłki jest częściowo wizualne oddzielona od reszty wnętrza. Reprezentacyjne schody stanowią ozdobę wnętrza domu. Za schodami niewielkim korytarzem przechodzimy do dodatkowego pokoju (gabinet, lub sypialnia gościnna) i łazienki. Z kolei z dwustanowiskowego garażu przechodzimy do kotłowni. Na piętrze do dyspozycji mamy cztery pokoje, w tym: apartament rodziców, z własną łazienką, garderobą i tarasem, oraz trzy sypialnie dzieci (jedna mniejsza) z łazienką i pralnią dostępną z holu. Nad piętrem mamy jeszcze do dyspozycji spory strych - dodatkową przestrzeń magazynową domu.projekt domu Kasjopea) i jej wersja odświeżona (projekt domu Kasjopea 8), bliźniak (projekt domu Kasjopea 2), ze zmienionym układem pomieszczeń (projekt domu Kasjopea 3), pomniejszona (projekt domu Kasjopea 4), komfortowa (projekt domu Kasjopea 5), największa (projekt domu Kasjopea 6) i z nowocześniejszą architekturą (projekt domu Kasjopea 7). Zapraszamy !

Koszty

Orientacyjne koszty budowy netto - wycena wskaźnikowa Ceny aktualne na: IV kwartał 2025
Jak dokonujemy wyliczeń? icon arrow
Razem (etapy 1-3): 567 500 zł
1. Stan zero
Koszt etapu 100 700 zł
Zakres prac

wytyczenie budynku i roboty ziemne; ławy i stopy fundamentowe; ściany podziemne z izolacjami cieplnymi i przeciwwilgociowymi

2. Stan surowy otwarty
Koszt etapu + 384 700 zł
Zakres prac

ściany murowane zewnętrzne i wewnętrzne; stropy i schody wewnętrzne; konstrukcja dachu z pokryciem, obróbkami, rynnami i rurami spustowymi; podłoża pod posadzki ( np. chudy beton)

3. Stan surowy zamknięty
Koszt etapu + 82 200 zł
Zakres prac

Stan zero (wytyczenie budynku i roboty ziemne; ławy i stopy fundamentowe; ściany podziemne z izolacjami cieplnymi i przeciwwilgociowymi) oraz stan surowy (ściany murowane z zewnętrzne i wewnętrzne; stropy i schody wewnętrzne, konstrukcja dachu z pokryciem, obróbkami, rynnami i rurami spustowymi; podłoża pod posadzki (np. chudy beton), okna i drzwi zewnętrzne; bramy garażowe; warstwy wyrównawcze pod posadzki na gruncie i na stropie z izolacjami cieplnymi i przeciwwilgociowymi).

Razem (etapy 1-3): 567 500 zł
4. Instalacje elektryczne
Koszt etapu od 62,40 do 219,70 zł/m2

*

Zakres prac

wewnętrzna instalacja oświetleniowa; instalacja gniazd wtykowych; instalacja siły oraz instalacja odgromowa i inne wewnętrzne instalacje teletechniczne

5. Instalacje sanitarne
Koszt etapu od 232,70 do 910 zł/m2

**

Zakres prac

wewnętrzna instalacja wod. - kan. z przyborami sanitarnymi i bateriami; instalacja c.o. z kotłem i grzejnikami, bez kominka; instalacja gazowa bez osprzętu kuchennego; wentylacja mechaniczna ( jeśli występuje)

6. Wykończenie zewnętrzne
Koszt etapu od 126,10 do 638,30 zł/m2

***

Zakres prac

system dociepleń i tynki zewnętrzne z malowaniem; okładziny elewacyjne; balustrady, parapety zewnętrzne i inne roboty zewnętrzne np. taras, opaski wokół domu, schody zewnętrzne

7. Wykończenie wewnętrzne
Koszt etapu od 429 do 878,80 zł/m2

***

Zakres prac

tynki wewnętrzne, drzwi i okna wewnętrzne, lekkie ścianki działowe, roboty malarskie, posadzki i inne prace wykończeniowe

* w zależności od ilości punktów elektrycznych na 1m2

** w zależności od ilości punktów sanitarnych na 1m2 oraz ilości (odległości) instalacji rurowej

*** w zależności od rodzaju użytych meteriałów i specyfikacji wykończenia

Zmiany w projekcie

Zobacz zakres zmian, które możesz wprowadzić, w tym projekcie bez zgody autora.
Lista możliwych zmian

Jeśli zmiany, które chcesz wprowadzić nie są ujęte w powyższym zestawieniu, skontaktuj się z nami. Nasz architekt przeanalizuje i doradzi, które z Twoich propozycji warto wdrożyć. O zgodę na zmiany możesz wystąpić nie tylko w momencie zakupu projektu, ale także później i otrzymasz ją bezpłatnie w ciągu kilku dni.

Pliki do pobrania

Zestawienie materiałówpdf Pobierz
Rysunki szczegółowepdf Pobierz

Dokumentacja (zawartość pakietu projektowego)

Dodatki

Pakiet dodatków, który otrzymasz razem z projektem

addon
Prezent na Święta: Karta 200 zł do Zalando!
Święta tuż-tuż, a my mamy dla Ciebie prezent, który umili czas oczekiwania!
addon
Teczka inwestora
Do przechowywania niezbędnej dokumentacji
addon
Kupony rabatowe na zakupy
Dzięki którym zaoszczędzisz nawet kilkanaście tysięcy złotych.
addon
Projekty małej architektury
Wybudujesz samodzielnie m.in. domek dla dzieci czy altanę z grillem.
Pamiętaj
dostawa
Wysyłkę projektu ze wszystkimi dodatkami na terenie Polski bierzemy na siebie. Ty wybierasz, gdzie odbierzesz swój projekt. Masz do wyboru kuriera DPD lub punkty Paczkomat InPost 24/7.
zwroty

Masz 30 dni na zwrot i 365 dni na wymianę projektu

Inspiracje

Wnętrza
Wszystkie
Pokój dzienny
Kuchnia