+48 22 59 05 000

pn.-pt. 8-20

Kontakt i pomoc^
Kontakt i pomoc
Zamów rozmowę
Umów wideorozmowę
Napisz do nas
Pomoc w kredycie
Bezpłatna analiza działki
logo
ulubione 0
REKLAMA
REKLAMA
DXM1036

Jutrzenka powiększona z zadaszonym tarasem

wersja lustrzana
Kupując u nas, zyskujesz więcej

Dodatki

Atrakcyjne rabaty

Kompleksowe wsparcie

Gwarancja najniższej ceny

Wygodne zakupy

Zgoda na zmiany w projekcie

Szczegółowa dokumentacja

Rzuty
Parametry
Podobne
Zmiany
Dokumentacja
Dodatki
Inspiracje
REKLAMA

Rzuty, przekrój, elewacje

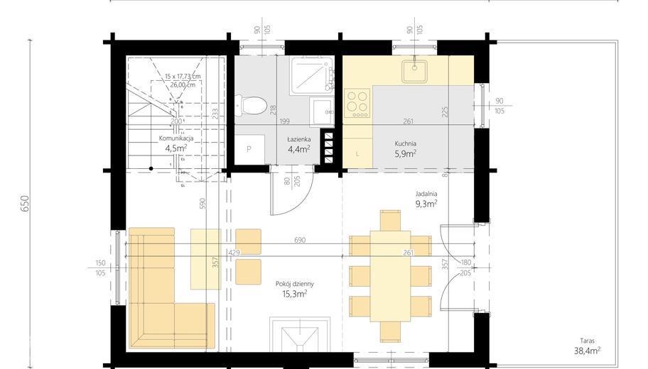
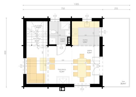
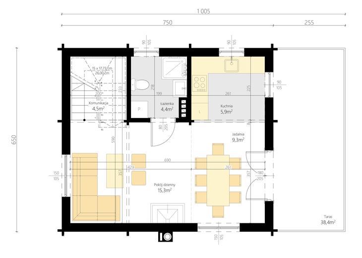
Parter 39,4 m2
Wersja lustrzana
Pomieszczenie Użytkowa
1
pokój dzienny
15,3 m2
2
jadalnia
9,3 m2
3
łazienka
4,4 m2
4
kuchnia
5,9 m2
5
komunikacja
4,5 m2
Razem 39,4 m2
6
taras (38,4)

W nawiasach podano powierzchnie pomieszczenia netto

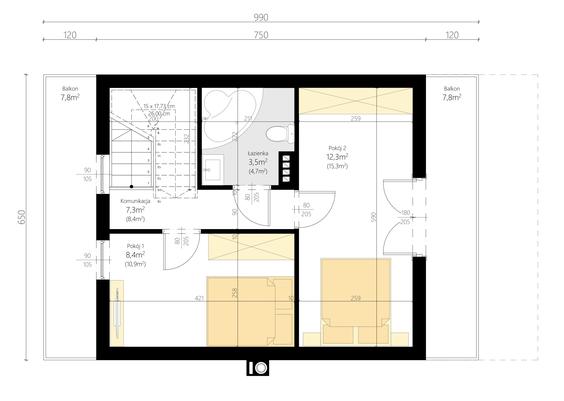
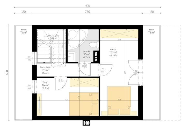
Poddasze 31,5 m2
Wersja lustrzana
Pomieszczenie Użytkowa
1
komunikacja (8,4)
7,3 m2
2
łazienka (4,7)
3,5 m2
3
sypialnia (15,3)
12,3 m2
4
sypialnia (10,9)
8,4 m2
Razem 31,5 m2
5
balkon (7,8)
6
balkon (7,8)

W nawiasach podano powierzchnie pomieszczenia netto

Elewacje
Wersja lustrzana
Elewacja 1
Elewacja 1
Elewacja 2
Elewacja 3
Elewacja 4
REKLAMA

Parametry

Dane Techniczne
Technologia i materiały
Parametry cieplne
Powierzchnia użytkowa
Suma powierzchni pomieszczeń mierzona po wewnętrznym obrysie ścian. Na jej wielkość ma wpływ wysokość pomieszczenia i jest liczona: – w 100% – przy wysokości w świetle powyżej 2,2 m, – w 50% – przy wysokości między 1,4 m a 2,2 m, – pomija się – przy wysokości poniżej 1,4 m. Do powierzchni użytkowej domu nie dolicza się powierzchni niektórych pomieszczeń, np. piwnicy, garażu, kotłowni, strychu.
70,6 m2
Powierzchnia zabudowy
Powierzchnia mierzona po obrysie zewnętrznych krawędzi wykończonego budynku z uwzględnieniem powierzchni nadwieszonych (np. wykusz). Nie dolicza się do niej elementów drugorzędnych (np. schodów zewnętrznych, daszków, ramp) oraz elementów niewystających ponad powierzchnię terenu
46,75 m2
Powierzchnia netto
Powierzchnia wszystkich pomieszczeń budynku mierzona na poziomie podłogi, po wewnętrznym obrysie ścian w stanie wykończonym. Na jej wartość nie wpływa wysokość pomieszczeń.
78,7 m2
Powierzchnia dachu
142,29 m2
Kąt nachylenia dachu
45°
Kubatura
Objętość budynku liczona wraz z przegrodami zewnętrznymi i wewnętrznymi (ścianami, stropem, dachem i podmurówką)
302,26 m3
Wysokość budynku
Wysokość mierzona od poziomu terenu przy wejściu do budynku do najwyższego punktu dachu – kalenicy
7,73 m
Wysokość ścianki kolankowej
Ścianka kolankowa to zewnętrzna ściana nośna poddasza, wznoszona powyżej najwyższego stropu budynku, na której jest oparta więźba dachowa. Od wysokości ścianki kolankowej zależy funkcjonalność poddasza, wielkość jego powierzchni użytkowej oraz wygląd bryły budynku.
1,21 m
Wymiary budynku
6,5 x 7,5 m
Wymiary działki
Wymiary działki (szerokość x głębokość), na której możliwe jest wybudowanie domu. Wynikają one z wymiarów budynku powiększonych o wymagane przepisami odległości poszczególnych elementów budynku od granic działki. Rzeczywistą odległość od drogi należy sprawdzić i dostosować do wymogów zawartych w MPZA lub WZ
14,5 x 15,5 m
Pokoje (z salonem)
Liczba wszystkich pokoi
3
Łazienki i wc
Suma łazienek i wc
2
Sezonowość
Całoroczny
REKLAMA

Opis projektu

Jutrzenka powiększona z zadaszonym tarasem to klasyczny dom drewniany o powierzchni zabudowy 46,75 m² i powierzchni użytkowej 70,6 m², mieszczący się w kategorii budynków do 70 m² na zgłoszenie. To idealna propozycja dla osób, które szukają efektownego, rodzinnego domu o tradycyjnym charakterze, a jednocześnie zależy im na zachowaniu niewielkich gabarytów i prostej procedury realizacji.

Po wejściu do budynku z wygodnego, zadaszonego tarasu, przechodzimy do jasnej strefy dziennej. Mieści się tu duży stół jadalniany, wygodna część wypoczynkowa z klimatycznym kominkiem, a także wydzielona kuchnia, umożliwiająca komfortowe przygotowywanie posiłków. Program parteru uzupełnia funkcjonalna łazienka oraz klatka schodowa prowadząca na piętro. Na poddaszu zaplanowano dwa przestronne pokoje, każdy z bezpośrednim wyjściem na własny balkon. To doskonałe miejsca na sypialnie, pokoje gościnne lub domowe pracownie. Z korytarza na piętrze dostępna jest także duża łazienka z wygodną wanną, zapewniająca wysoki komfort użytkowania.

Dom wykonany jest w konstrukcji wieńcowej, która pełni funkcję nośną i nadaje budynkowi wyjątkowej trwałości oraz naturalnego charakteru. Projekt utrzymano w stylu klasycznym, z elewacją z drewnianych płazów, dekoracyjnymi balustradami, okiennicami i detalingiem podkreślającym tradycyjną estetykę domu górskiego. Jutrzenka powiększona z zadaszonym tarasem to dom łączący urok klasycznej architektury z funkcjonalnym i komfortowym układem wnętrz, idealny zarówno jako dom całoroczny, rodzinny, jak i rekreacyjny.

Zmiany w projekcie

Zobacz zakres zmian, które możesz wprowadzić, w tym projekcie bez zgody autora.
Lista możliwych zmian

Jeśli zmiany, które chcesz wprowadzić nie są ujęte w powyższym zestawieniu, skontaktuj się z nami. Nasz architekt przeanalizuje i doradzi, które z Twoich propozycji warto wdrożyć. O zgodę na zmiany możesz wystąpić nie tylko w momencie zakupu projektu, ale także później i otrzymasz ją bezpłatnie w ciągu kilku dni.

Dokumentacja (zawartość pakietu projektowego)

Dodatki

Pakiet dodatków, który otrzymasz razem z projektem

addon
Prezent na Święta: Karta 200 zł do Zalando!
Święta tuż-tuż, a my mamy dla Ciebie prezent, który umili czas oczekiwania!
addon
Teczka inwestora
Do przechowywania niezbędnej dokumentacji
addon
Kupony rabatowe na zakupy
Dzięki którym zaoszczędzisz nawet kilkanaście tysięcy złotych.
addon
Projekty małej architektury
Wybudujesz samodzielnie m.in. domek dla dzieci czy altanę z grillem.
Pamiętaj
dostawa
Wysyłkę projektu ze wszystkimi dodatkami na terenie Polski bierzemy na siebie. Ty wybierasz, gdzie odbierzesz swój projekt. Masz do wyboru kuriera DPD lub punkty Paczkomat InPost 24/7.
zwroty

Masz 30 dni na zwrot i 365 dni na wymianę projektu

Inspiracje

Wnętrza
Wszystkie
Pokój dzienny
Sypialnia
Łazienka