pn.-pt. 8-20

HOMEKONCEPT 93 B (bliźniak, segment B) wersja lustrzana































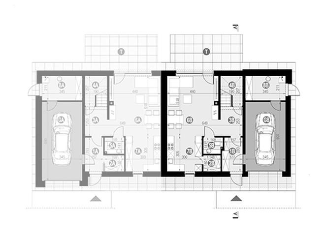
W nawiasach podano powierzchnie pomieszczenia netto

W nawiasach podano powierzchnie pomieszczenia netto





HOMEKONCEPT 93 B (bliźniak, segment B)
wersja lustrzanaKoncepcja projektu
Nasi doradcy przedstawią szczegółowe informacje dotyczące projektu.
Projekt wycofany z oferty
Wymiary budynku i działki dotyczą dwóch segmentów. Pozostałe dane techniczne - jednego segmentu.
Dodatki
Atrakcyjne rabaty
Kompleksowe wsparcie
Gwarancja najniższej ceny
Wygodne zakupy
Zgoda na zmiany w projekcie
Szczegółowa dokumentacja
Rzuty, przekrój, elewacje

Segment A - patrz HK93B (bliźniak, segment A)
W nawiasach podano powierzchnie pomieszczenia netto

Segment A - patrz HK93B (bliźniak, segment A)
W nawiasach podano powierzchnie pomieszczenia netto






Działka
Wybór działki to jedna z ważniejszych decyzji poprzedzających budowę wymarzonego domu. Oczywiście najważniejsza jest jej lokalizacja, ale trzeba także przeanalizować lokalne ograniczenia wyszczególnione w miejscowym planie zagospodarowania przestrzennego lub w warunkach zabudowy. Często zapisy w w/w dokumentach uniemożliwiają budowę wybranego projektu i trzeba szukać dalej.
Ważne jest także usytuowanie działki i domu względem stron świata, gdyż to właśnie decyduje o stopniu nasłonecznienia poszczególnych pomieszczeń. Dlatego każdy projekt oferujemy w dwóch wersjach: podstawowej oraz lustrzanej, aby można było wybrać najkorzystniejszy układ pomieszczeń względem stron świata, a także względem ukształtowania krajobrazu w otoczeniu działki.

Parametry
Wymiary budynku i działki dotyczą dwóch segmentów. Pozostałe dane techniczne - jednego segmentu.
Opis projektu
Projekt domu HomeKONCEPT-93 B (bliźniak, segment B) to projekt jednorodzinnego, nowoczesnego domu z poddaszem, o łącznej powierzchni użytkowej 132,8 m2. Budynek stworzony dla 4-osobowej rodziny, która zapewniony będzie miała maksymalny poziom komfortu. W projekcie zaplanowano praktyczny garaż jednostanowiskowy.
Projekt domu HomeKONCEPT-93 B (bliźniak, segment B) bryła budynku
Projekt domu HomeKONCEPT-93 B (bliźniak, segment B) to doskonała propozycja dla osób, które marzą o budowie domu w zabudowie bliźniaczej. W projekcie zastosowano najbardziej ekonomiczne i funkcjonalne rozwiązania – połączono prostą bryłę z dwuspadowym dachem. Dzięki temu istnieje możliwość zaoszczędzenia pieniędzy oraz czasu w procesie realizacji. Jeżeli za tym pójdzie zastosowanie technologii murowanej to będzie to perfekcyjny dom na długie lata.
Projekt domu HomeKONCEPT-93 B (bliźniak, segment B) wnętrze budynku
Wnętrze domu -93 B (bliźniak, segment B) to przede wszystkim przemyślana aranżacja każdego metra kwadratowego. W projekcie wszystko ma swój sens i konkretne zastosowanie po to, żeby w pełni zadowolić każdego domownika rodziny. Na parterze znajdziemy takie pomieszczenia jak kuchnię, spiżarnię, salon z jadalnią, wc oraz pomocny schowek i pomieszczenie gospodarcze. Poddasze to ekskluzywna strefa nocna – trzy sypialnie, dwie łazienki i garderoba. Całości dopełnia zaplanowany przez autora projektu atrakcyjny taras, będący miłą opcją do odpoczynku i relaksu w rodzinnym komplecie.
Projekt domu HomeKONCEPT-93 B (bliźniak, segment B) wpisuje się doskonale w aktualne trendy. Jest połączeniem nowoczesnej estetyki z kompletną praktycznością. Po prostu dom idealny więc czego chcieć więcej?
Koszty
wytyczenie budynku i roboty ziemne; ławy i stopy fundamentowe; ściany podziemne z izolacjami cieplnymi i przeciwwilgociowymi
ściany murowane zewnętrzne i wewnętrzne; stropy i schody wewnętrzne; konstrukcja dachu z pokryciem, obróbkami, rynnami i rurami spustowymi; podłoża pod posadzki ( np. chudy beton)
Stan zero (wytyczenie budynku i roboty ziemne; ławy i stopy fundamentowe; ściany podziemne z izolacjami cieplnymi i przeciwwilgociowymi) oraz stan surowy (ściany murowane z zewnętrzne i wewnętrzne; stropy i schody wewnętrzne, konstrukcja dachu z pokryciem, obróbkami, rynnami i rurami spustowymi; podłoża pod posadzki (np. chudy beton), okna i drzwi zewnętrzne; bramy garażowe; warstwy wyrównawcze pod posadzki na gruncie i na stropie z izolacjami cieplnymi i przeciwwilgociowymi).
*
wewnętrzna instalacja oświetleniowa; instalacja gniazd wtykowych; instalacja siły oraz instalacja odgromowa i inne wewnętrzne instalacje teletechniczne
**
wewnętrzna instalacja wod. - kan. z przyborami sanitarnymi i bateriami; instalacja c.o. z kotłem i grzejnikami, bez kominka; instalacja gazowa bez osprzętu kuchennego; wentylacja mechaniczna ( jeśli występuje)
***
system dociepleń i tynki zewnętrzne z malowaniem; okładziny elewacyjne; balustrady, parapety zewnętrzne i inne roboty zewnętrzne np. taras, opaski wokół domu, schody zewnętrzne
***
tynki wewnętrzne, drzwi i okna wewnętrzne, lekkie ścianki działowe, roboty malarskie, posadzki i inne prace wykończeniowe
* w zależności od ilości punktów elektrycznych na 1m2
** w zależności od ilości punktów sanitarnych na 1m2 oraz ilości (odległości) instalacji rurowej
*** w zależności od rodzaju użytych meteriałów i specyfikacji wykończenia
Zmiany w projekcie
Jeśli zmiany, które chcesz wprowadzić nie są ujęte w powyższym zestawieniu, skontaktuj się z nami. Nasz architekt przeanalizuje i doradzi, które z Twoich propozycji warto wdrożyć. O zgodę na zmiany możesz wystąpić nie tylko w momencie zakupu projektu, ale także później i otrzymasz ją bezpłatnie w ciągu kilku dni.
Pliki do pobrania
Dokumentacja (zawartość pakietu projektowego)
3 egzemplarze projektu architektoniczno-budowlanego ze szczegółowym opisem
Dowiedz sie wiecej3 egzemplarze projektu technicznego (konstrukcja, instalacje: wodno-kanalizacyjna, c.o., elektryczna, gazowa (jeśli występują)) ze szczegółowym opisem
Dowiedz sie wiecejCharakterystyka energetyczna (jeśli dotyczy)
Lista zmian, które można wprowadzić w ramach adaptacji projektu
Dodatki
Pakiet dodatków, który otrzymasz razem z projektem




Masz 30 dni na zwrot i 365 dni na wymianę projektu
Dodatki w dobrej cenie
Dodatki możesz dobrać także w koszyku lub podczas zakupów u naszego doradcy.
Inspiracje


















