pn.-pt. 8-20
 
            HOMEKONCEPT 144 wariant 1 wersja lustrzana
 
        
     
        
     
        
     
        
     
        
     
        
     
        
     
        
     
        
     
        
     
        
     
        
     
        
     
        
     
        
     
        
     
        
     
        
     
        
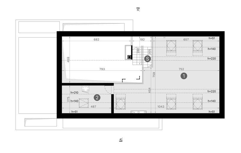
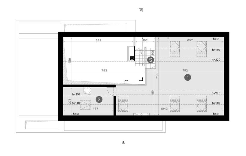
    W nawiasach podano powierzchnie pomieszczenia netto
 
        
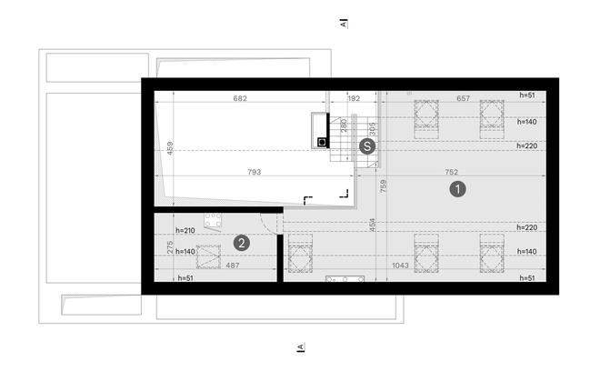
    W nawiasach podano powierzchnie pomieszczenia netto
 
        
     
        
     
        
     
        
     
        
    HOMEKONCEPT 144 wariant 1
wersja lustrzanaKoncepcja projektu
Nasi doradcy przedstawią szczegółowe informacje dotyczące projektu.
Projekt wycofany z oferty
Dodatki
Atrakcyjne rabaty
Kompleksowe wsparcie
Gwarancja najniższej ceny
Wygodne zakupy
Zgoda na zmiany w projekcie
Szczegółowa dokumentacja
Rzuty, przekrój, elewacje
 
            
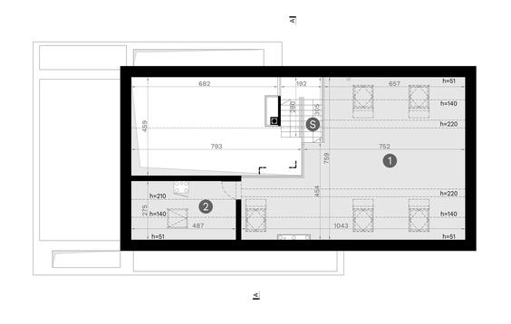
        W nawiasach podano powierzchnie pomieszczenia netto
 
            
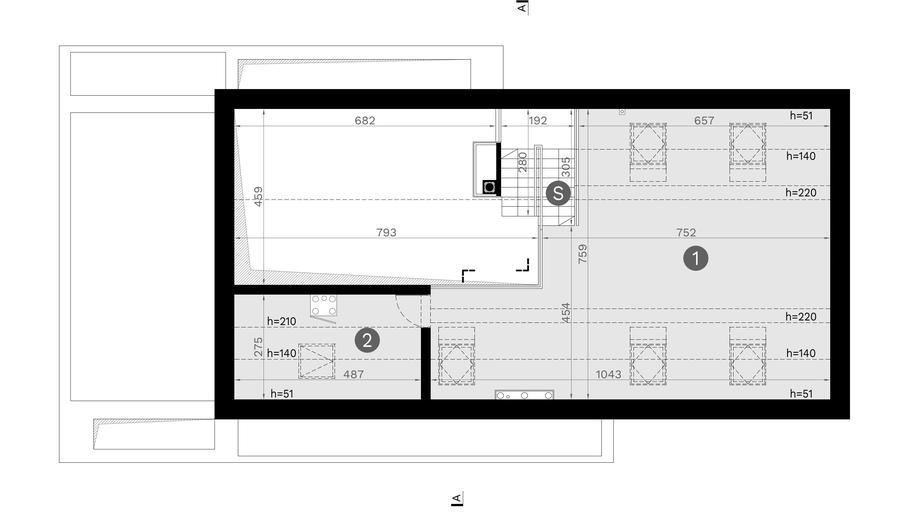
        W nawiasach podano powierzchnie pomieszczenia netto
 
                    
                 
                    
                 
                     
                     
                     
                    Działka
Wybór działki to jedna z ważniejszych decyzji poprzedzających budowę wymarzonego domu. Oczywiście najważniejsza jest jej lokalizacja, ale trzeba także przeanalizować lokalne ograniczenia wyszczególnione w miejscowym planie zagospodarowania przestrzennego lub w warunkach zabudowy. Często zapisy w w/w dokumentach uniemożliwiają budowę wybranego projektu i trzeba szukać dalej.
Ważne jest także usytuowanie działki i domu względem stron świata, gdyż to właśnie decyduje o stopniu nasłonecznienia poszczególnych pomieszczeń. Dlatego każdy projekt oferujemy w dwóch wersjach: podstawowej oraz lustrzanej, aby można było wybrać najkorzystniejszy układ pomieszczeń względem stron świata, a także względem ukształtowania krajobrazu w otoczeniu działki.
Wymiary (szerokość x głębokość) działki, na której możliwe jest wybudowanie domu, po obróceniu budynku o 90 st. (przy założeniu, że taka zmiana jest możliwa i nie wpłynie niekorzystnie na układ funkcjonalny działki oraz budynku mieszkalnego). Wynikają z wymiarów budynku powiększonych o wymagane przepisami odległości poszczególnych elementów budynku od granic działki. Rzeczywistą odległość od drogi należy sprawdzić i dostosować do wymogów zawartych w MPZA lub WZ.
 
            Parametry
Opis projektu
Zmiany w projekcie
Jeśli zmiany, które chcesz wprowadzić nie są ujęte w powyższym zestawieniu, skontaktuj się z nami. Nasz architekt przeanalizuje i doradzi, które z Twoich propozycji warto wdrożyć. O zgodę na zmiany możesz wystąpić nie tylko w momencie zakupu projektu, ale także później i otrzymasz ją bezpłatnie w ciągu kilku dni.
Pliki do pobrania
Dokumentacja (zawartość pakietu projektowego)
3 egzemplarze projektu architektoniczno-budowlanego ze szczegółowym opisem
Dowiedz sie wiecej3 egzemplarze projektu technicznego (konstrukcja, instalacje: wodno-kanalizacyjna, c.o., elektryczna, gazowa (jeśli występują)) ze szczegółowym opisem
Dowiedz sie wiecejCharakterystyka energetyczna (jeśli dotyczy)
Lista zmian, które można wprowadzić w ramach adaptacji projektu
Dodatki
Pakiet dodatków, który otrzymasz razem z projektem
 
             
             
            Masz 30 dni na zwrot i 365 dni na wymianę projektu
Dodatki w dobrej cenie
Dodatki możesz dobrać także w koszyku lub podczas zakupów u naszego doradcy.
 
    
 
    
 
    
 
    
 
    
 
    
 
    
 
    
 
    
 
    
 
    
 
    
 
    
 
    
 
    
 
    
 
    
 
    
 
    
 
    
 
            
            
         
            
            
         
            
            
         
            
            
         
            
            
         
            
            
         
            
            
         
            
            
         
            
            
         
            
            
         
            
            
         
            
            
         
            
            
         
            
            
         
            
            
         
            
            
         
            
            
         
            
            
         
            
            
         
            
            
         
            
            
         
            
            
         
            
            
         
            
            
         
            
            
         
             
                     
                     
                     
                     
                     
                     
                     
                    