+48 22 59 05 000

pn.-pt. 8-20

Kontakt i pomoc^
Kontakt i pomoc
Zamów rozmowę
Umów wideorozmowę
Napisz do nas
Pomoc w kredycie
Bezpłatna analiza działki
logo
ulubione 0
REKLAMA
REKLAMA
MG0661

Hiacynt 8

wersja lustrzana
Kupując u nas, zyskujesz więcej

Dodatki

Atrakcyjne rabaty

Kompleksowe wsparcie

Gwarancja najniższej ceny

Wygodne zakupy

Zgoda na zmiany w projekcie

Szczegółowa dokumentacja

Rzuty
Działka
Parametry
Koszty
Podobne
Zmiany
Pliki do pobrania
Dokumentacja
Dodatki
Inspiracje
REKLAMA

Rzuty, przekrój, elewacje

Parter 110,03 m2
Wersja lustrzana
Pomieszczenie Użytkowa
1
przedsionek
5,28 m2
2
garderoba
2,52 m2
3
hol
13,02 m2
4
wc
2,2 m2
5
sypialnia
16,1 m2
6
łazienka
6,6 m2
7
garderoba
6,48 m2
8
pokój dzienny + jadalnia
43,22 m2
9
kuchnia
12,01 m2
10
spiżarnia
2,6 m2
Razem 110,03 m2
11
kotłownia
4,68 m2
12
garaż
34,2 m2

W nawiasach podano powierzchnie pomieszczenia netto

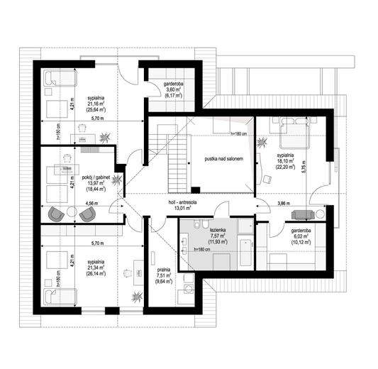
Poddasze 112,28 m2
Wersja lustrzana
Pomieszczenie Użytkowa
1
hol
13,01 m2
2
sypialnia (25,64)
21,16 m2
3
garderoba (6,17)
3,6 m2
4
gabinet (18,44)
13,97 m2
5
sypialnia (26,14)
21,34 m2
6
pralnia (9,64)
7,51 m2
7
łazienka (11,93)
7,57 m2
8
sypialnia (22,2)
18,1 m2
9
garderoba (10,12)
6,02 m2
Razem 112,28 m2

W nawiasach podano powierzchnie pomieszczenia netto

Elewacje
Wersja lustrzana
Elewacja 1
Elewacja 1
Elewacja 2
Elewacja 3
Elewacja 4
REKLAMA

Działka

Wybór działki to jedna z ważniejszych decyzji poprzedzających budowę wymarzonego domu. Oczywiście najważniejsza jest jej lokalizacja, ale trzeba także przeanalizować lokalne ograniczenia wyszczególnione w miejscowym planie zagospodarowania przestrzennego lub w warunkach zabudowy. Często zapisy w w/w dokumentach uniemożliwiają budowę wybranego projektu i trzeba szukać dalej.

Ważne jest także usytuowanie działki i domu względem stron świata, gdyż to właśnie decyduje o stopniu nasłonecznienia poszczególnych pomieszczeń. Dlatego każdy projekt oferujemy w dwóch wersjach: podstawowej oraz lustrzanej, aby można było wybrać najkorzystniejszy układ pomieszczeń względem stron świata, a także względem ukształtowania krajobrazu w otoczeniu działki.

Wymiary działki
Wymiary działki (szerokość x głębokość), na której możliwe jest wybudowanie domu. Wynikają one z wymiarów budynku powiększonych o wymagane przepisami odległości poszczególnych elementów budynku od granic działki. Rzeczywistą odległość od drogi należy sprawdzić i dostosować do wymogów zawartych w MPZA lub WZ.
24.08 x 22.53 m
Przekrój
Wersja lustrzana

Parametry

Dane Techniczne
Technologia i materiały
Parametry cieplne
Powierzchnia użytkowa
Suma powierzchni pomieszczeń mierzona po wewnętrznym obrysie ścian. Na jej wielkość ma wpływ wysokość pomieszczenia i jest liczona: – w 100% – przy wysokości w świetle powyżej 2,2 m, – w 50% – przy wysokości między 1,4 m a 2,2 m, – pomija się – przy wysokości poniżej 1,4 m. Do powierzchni użytkowej domu nie dolicza się powierzchni niektórych pomieszczeń, np. piwnicy, garażu, kotłowni, strychu.
222,33 m2
Powierzchnia zabudowy
Powierzchnia mierzona po obrysie zewnętrznych krawędzi wykończonego budynku z uwzględnieniem powierzchni nadwieszonych (np. wykusz). Nie dolicza się do niej elementów drugorzędnych (np. schodów zewnętrznych, daszków, ramp) oraz elementów niewystających ponad powierzchnię terenu
187,04 m2
Powierzchnia netto
Powierzchnia wszystkich pomieszczeń budynku mierzona na poziomie podłogi, po wewnętrznym obrysie ścian w stanie wykończonym. Na jej wartość nie wpływa wysokość pomieszczeń.
292,2 m2
Powierzchnia całkowita
Suma powierzchni całkowitych wszystkich kondygnacji (w tym znajdujących się całkowicie lub częściowo poniżej poziomu terenu) mierzona po zewnętrznym obrysie ścian (wraz z ociepleniem) oraz wszystkich elementów wykraczających poza kubaturę, np. tarasy, schody zewnętrzne, balkony, podcienie, zjazdy do garaży, itp.
314,68 m2
Powierzchnia dodatkowa
Dodatkowe powierzchnie niewliczane do powierzchni użytkowej: piwnica + garaż + kotłownia + strych + poddasze do adaptacji.
38,88 m2
Powierzchnia garażu
34,2 m2
Kąt nachylenia dachu
35°
Kubatura
Objętość budynku liczona wraz z przegrodami zewnętrznymi i wewnętrznymi (ścianami, stropem, dachem i podmurówką)
1092 m3
Wysokość budynku
Wysokość mierzona od poziomu terenu przy wejściu do budynku do najwyższego punktu dachu – kalenicy
7,96 m
Wymiary budynku
16,88 x 14,53 m
Wymiary działki
Wymiary działki (szerokość x głębokość), na której możliwe jest wybudowanie domu. Wynikają one z wymiarów budynku powiększonych o wymagane przepisami odległości poszczególnych elementów budynku od granic działki. Rzeczywistą odległość od drogi należy sprawdzić i dostosować do wymogów zawartych w MPZA lub WZ
24,08 x 22,53 m
Pokoje (z salonem)
Liczba wszystkich pokoi
6
Łazienki i wc
Suma łazienek i wc
3
Miejsca postojowe
Suma miejsc postojowych (garaż + wiata garażowa)
2
Sezonowość
Całoroczny
REKLAMA

Opis projektu

Projekt domu Hiacynt 8 to kolejny wariant projektu z popularnej serii „Hiacyntów”. Jest to parterowy dom z poddaszem użytkowym, zbudowany na planie litery T, z układem dwóch przecinających się dachów dwuspadowych. Zarówno od frontowej elewacji, jak i od strony ogrodowej poddasze posiada ściany szczytowe, dzięki czemu aż trzy szczyty domu zapewniają na poddaszu okna w ścianach zamiast okien tylko połaciowych w skosach dachów. Architektura domu łączy w sobie tradycyjną formę z nowoczesnymi rozwiązaniami,detalami i materiałami wykończeniowymi. Elewacje budynku urozmaicono podziałami kontrastujących powierzchni wykończonych różnymi materiałami. Do domu wchodzimy przez reprezentacyjne drzwi z naświetlami bocznymi, ukryte w podcieniu wejściowym pod podciągami i płytą nad podestem wejściowym i garażem. Dodatkowymi elementami zasługującymi na uwagę jest piękne narożne okno kuchni, oraz ciekawie obudowane okna ściany szczytowej poddasza. Od strony ogrodu uwagę przyciąga szeroka na niemal całą elewację belka podpierająca zadaszenie tarasu i pergolę nad tarasowym patio. Ciekawa i urozmaicona bryła budynku, nowoczesne materiały i kolorystyka, dają w sumie atrakcyjny wygląd domu i niepowtarzalny styl. Wnętrze domu - zarówno parteru jak i poddasza, podzielono na oddzielone strefy o różnej funkcji. Na parterze w centrum domu znajduje się część dzienna, z jednoprzestrzennym wnętrzem salonu z antresolą, jadalnią połączoną z tarasem, oraz obszerną kuchnią ze spiżarnią. Na lewo od schodów przechodzimy do oddzielnego apartamentu rodziców, z własną łazienką i garderobą, połączonego z tarasem i ogrodem. Parter zamyka część techniczna budynku z garażem i kotłownią. Na poddaszu dzięki trzem szczytom i zredukowanej ilości skosów dachów w stosunku do takiej samej powierzchni podłogi, mamy aż cztery pokoje ( w tym dwa z własnymi garderobami ), dużą łazienkę i pomieszczenie pralni. To bardzo duże poddasze udało się uzyskać w identycznym obrysie zewnętrznych ścian jak w wersjach Hiacynta 7, lub 7B. W projekcie zastosowano bardzo dobre izolacje i nowoczesne instalacje, dzięki czemu budynek jest energooszczędny i będzie niedrogi w późniejszej eksploatacji. Hiacynt 8 to idealna propozycja dla osób, którym spodobały się domy z tej serii, ale chcieli uzyskać możliwie największe poddasze, z normalnymi oknami w ścianach i ze zmniejszoną ilością skosów od połaci dachów poddasza. To propozycja dla Inwestorów chcących wy Zapraszamy również do zapoznania się z projektami domu: Hiacynt,, Hiacynt 2, Hiacynt 3, Hiacynt 4, Hiacynt 5,Hiacynt 6, Hiacynt 7,Hiacynt 7 B, Hiacynt 8.

Koszty

Orientacyjne koszty budowy netto - wycena wskaźnikowa Ceny aktualne na: IV kwartał 2025
Jak dokonujemy wyliczeń? icon arrow
Razem (etapy 1-3): 629 900 zł
1. Stan zero
Koszt etapu 111 600 zł
Zakres prac

wytyczenie budynku i roboty ziemne; ławy i stopy fundamentowe; ściany podziemne z izolacjami cieplnymi i przeciwwilgociowymi

2. Stan surowy otwarty
Koszt etapu + 407 600 zł
Zakres prac

ściany murowane zewnętrzne i wewnętrzne; stropy i schody wewnętrzne; konstrukcja dachu z pokryciem, obróbkami, rynnami i rurami spustowymi; podłoża pod posadzki ( np. chudy beton)

3. Stan surowy zamknięty
Koszt etapu + 110 900 zł
Zakres prac

Stan zero (wytyczenie budynku i roboty ziemne; ławy i stopy fundamentowe; ściany podziemne z izolacjami cieplnymi i przeciwwilgociowymi) oraz stan surowy (ściany murowane z zewnętrzne i wewnętrzne; stropy i schody wewnętrzne, konstrukcja dachu z pokryciem, obróbkami, rynnami i rurami spustowymi; podłoża pod posadzki (np. chudy beton), okna i drzwi zewnętrzne; bramy garażowe; warstwy wyrównawcze pod posadzki na gruncie i na stropie z izolacjami cieplnymi i przeciwwilgociowymi).

Razem (etapy 1-3): 629 900 zł
4. Instalacje elektryczne
Koszt etapu od 62,40 do 219,70 zł/m2

*

Zakres prac

wewnętrzna instalacja oświetleniowa; instalacja gniazd wtykowych; instalacja siły oraz instalacja odgromowa i inne wewnętrzne instalacje teletechniczne

5. Instalacje sanitarne
Koszt etapu od 232,70 do 910 zł/m2

**

Zakres prac

wewnętrzna instalacja wod. - kan. z przyborami sanitarnymi i bateriami; instalacja c.o. z kotłem i grzejnikami, bez kominka; instalacja gazowa bez osprzętu kuchennego; wentylacja mechaniczna ( jeśli występuje)

6. Wykończenie zewnętrzne
Koszt etapu od 126,10 do 638,30 zł/m2

***

Zakres prac

system dociepleń i tynki zewnętrzne z malowaniem; okładziny elewacyjne; balustrady, parapety zewnętrzne i inne roboty zewnętrzne np. taras, opaski wokół domu, schody zewnętrzne

7. Wykończenie wewnętrzne
Koszt etapu od 429 do 878,80 zł/m2

***

Zakres prac

tynki wewnętrzne, drzwi i okna wewnętrzne, lekkie ścianki działowe, roboty malarskie, posadzki i inne prace wykończeniowe

* w zależności od ilości punktów elektrycznych na 1m2

** w zależności od ilości punktów sanitarnych na 1m2 oraz ilości (odległości) instalacji rurowej

*** w zależności od rodzaju użytych meteriałów i specyfikacji wykończenia

Zmiany w projekcie

Zobacz zakres zmian, które możesz wprowadzić, w tym projekcie bez zgody autora.
Lista możliwych zmian

Jeśli zmiany, które chcesz wprowadzić nie są ujęte w powyższym zestawieniu, skontaktuj się z nami. Nasz architekt przeanalizuje i doradzi, które z Twoich propozycji warto wdrożyć. O zgodę na zmiany możesz wystąpić nie tylko w momencie zakupu projektu, ale także później i otrzymasz ją bezpłatnie w ciągu kilku dni.

Pliki do pobrania

Zestawienie materiałówpdf Pobierz
Rysunki szczegółowepdf Pobierz

Dokumentacja (zawartość pakietu projektowego)

Dodatki

Pakiet dodatków, który otrzymasz razem z projektem

addon
Teczka inwestora
Do przechowywania niezbędnej dokumentacji
addon
Kupony rabatowe na zakupy
Dzięki którym zaoszczędzisz nawet kilkanaście tysięcy złotych.
addon
Projekty małej architektury
Wybudujesz samodzielnie m.in. domek dla dzieci czy altanę z grillem.
Pamiętaj
dostawa
Wysyłkę projektu ze wszystkimi dodatkami na terenie Polski bierzemy na siebie. Ty wybierasz, gdzie odbierzesz swój projekt. Masz do wyboru kuriera DPD lub punkty Paczkomat InPost 24/7.
zwroty

Masz 30 dni na zwrot i 365 dni na wymianę projektu

Inspiracje

Wnętrza
Wszystkie