+48 22 59 05 000

pn.-pt. 8-20

Kontakt i pomoc^
Kontakt i pomoc
Zamów rozmowę
Umów wideorozmowę
Napisz do nas
Pomoc w kredycie
Bezpłatna analiza działki
logo
ulubione 0
REKLAMA
REKLAMA
MG0660

Hiacynt 7 B

wersja lustrzana
Kupując u nas, zyskujesz więcej

Dodatki

Atrakcyjne rabaty

Kompleksowe wsparcie

Gwarancja najniższej ceny

Wygodne zakupy

Zgoda na zmiany w projekcie

Szczegółowa dokumentacja

Rzuty
Działka
Parametry
Koszty
Podobne
Zmiany
Pliki do pobrania
Dokumentacja
Dodatki
Inspiracje
REKLAMA

Rzuty, przekrój, elewacje

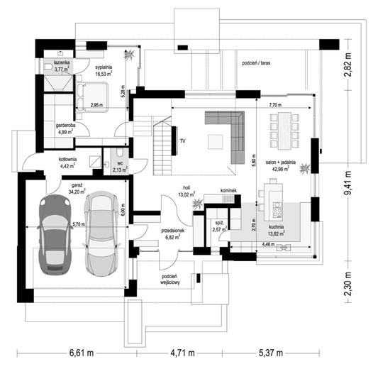
Parter 106,53 m2
Wersja lustrzana
Pomieszczenie Użytkowa
1
przedsionek
6,82 m2
2
hol
13,02 m2
3
wc
2,13 m2
4
sypialnia
16,53 m2
5
garderoba
4,89 m2
6
łazienka
3,77 m2
7
pokój dzienny + jadalnia
42,98 m2
8
kuchnia
13,82 m2
9
spiżarnia
2,57 m2
Razem 106,53 m2
10
kotłownia
4,42 m2
11
garaż
34,2 m2

W nawiasach podano powierzchnie pomieszczenia netto

Poddasze 73,87 m2
Wersja lustrzana
Pomieszczenie Użytkowa
1
hol
9,33 m2
2
sypialnia (19,79)
14,8 m2
3
sypialnia (19,41)
14,42 m2
4
pralnia (5,43)
3,44 m2
5
łazienka (10,65)
6,77 m2
6
sypialnia (23,5)
19,22 m2
7
garderoba (10,18)
5,89 m2
Razem 73,87 m2

W nawiasach podano powierzchnie pomieszczenia netto

Elewacje
Wersja lustrzana
Elewacja 1
Elewacja 1
Elewacja 2
Elewacja 3
Elewacja 4
REKLAMA

Działka

Wybór działki to jedna z ważniejszych decyzji poprzedzających budowę wymarzonego domu. Oczywiście najważniejsza jest jej lokalizacja, ale trzeba także przeanalizować lokalne ograniczenia wyszczególnione w miejscowym planie zagospodarowania przestrzennego lub w warunkach zabudowy. Często zapisy w w/w dokumentach uniemożliwiają budowę wybranego projektu i trzeba szukać dalej.

Ważne jest także usytuowanie działki i domu względem stron świata, gdyż to właśnie decyduje o stopniu nasłonecznienia poszczególnych pomieszczeń. Dlatego każdy projekt oferujemy w dwóch wersjach: podstawowej oraz lustrzanej, aby można było wybrać najkorzystniejszy układ pomieszczeń względem stron świata, a także względem ukształtowania krajobrazu w otoczeniu działki.

Wymiary działki
Wymiary działki (szerokość x głębokość), na której możliwe jest wybudowanie domu. Wynikają one z wymiarów budynku powiększonych o wymagane przepisami odległości poszczególnych elementów budynku od granic działki. Rzeczywistą odległość od drogi należy sprawdzić i dostosować do wymogów zawartych w MPZA lub WZ.
23.88 x 22.53 m
Przekrój
Wersja lustrzana

Parametry

Dane Techniczne
Technologia i materiały
Parametry cieplne
Powierzchnia użytkowa
Suma powierzchni pomieszczeń mierzona po wewnętrznym obrysie ścian. Na jej wielkość ma wpływ wysokość pomieszczenia i jest liczona: – w 100% – przy wysokości w świetle powyżej 2,2 m, – w 50% – przy wysokości między 1,4 m a 2,2 m, – pomija się – przy wysokości poniżej 1,4 m. Do powierzchni użytkowej domu nie dolicza się powierzchni niektórych pomieszczeń, np. piwnicy, garażu, kotłowni, strychu.
180,37 m2
Powierzchnia zabudowy
Powierzchnia mierzona po obrysie zewnętrznych krawędzi wykończonego budynku z uwzględnieniem powierzchni nadwieszonych (np. wykusz). Nie dolicza się do niej elementów drugorzędnych (np. schodów zewnętrznych, daszków, ramp) oraz elementów niewystających ponad powierzchnię terenu
181,62 m2
Powierzchnia netto
Powierzchnia wszystkich pomieszczeń budynku mierzona na poziomie podłogi, po wewnętrznym obrysie ścian w stanie wykończonym. Na jej wartość nie wpływa wysokość pomieszczeń.
243,44 m2
Powierzchnia całkowita
Suma powierzchni całkowitych wszystkich kondygnacji (w tym znajdujących się całkowicie lub częściowo poniżej poziomu terenu) mierzona po zewnętrznym obrysie ścian (wraz z ociepleniem) oraz wszystkich elementów wykraczających poza kubaturę, np. tarasy, schody zewnętrzne, balkony, podcienie, zjazdy do garaży, itp.
260,94 m2
Powierzchnia dodatkowa
Dodatkowe powierzchnie niewliczane do powierzchni użytkowej: piwnica + garaż + kotłownia + strych + poddasze do adaptacji.
38,62 m2
Powierzchnia garażu
34,2 m2
Kubatura
Objętość budynku liczona wraz z przegrodami zewnętrznymi i wewnętrznymi (ścianami, stropem, dachem i podmurówką)
995 m3
Wysokość budynku
Wysokość mierzona od poziomu terenu przy wejściu do budynku do najwyższego punktu dachu – kalenicy
7,96 m
Wymiary budynku
16,88 x 14,53 m
Wymiary działki
Wymiary działki (szerokość x głębokość), na której możliwe jest wybudowanie domu. Wynikają one z wymiarów budynku powiększonych o wymagane przepisami odległości poszczególnych elementów budynku od granic działki. Rzeczywistą odległość od drogi należy sprawdzić i dostosować do wymogów zawartych w MPZA lub WZ
23,88 x 22,53 m
Pokoje (z salonem)
Liczba wszystkich pokoi
5
Łazienki i wc
Suma łazienek i wc
3
Miejsca postojowe
Suma miejsc postojowych (garaż + wiata garażowa)
2
Sezonowość
Całoroczny
REKLAMA

Opis projektu

Projekt domu Hiacynt 7 B jest wersją wariantową domu z popularnej serii „Hiacyntów”. Parterowy dom z poddaszem użytkowym, do wygodnego zamieszkania dla cztero-sześcioosobowej rodziny. Bryłę budynku zaprojektowano na planie litery „T” - podobnie jak w innych wariantach Hiacyntów. Tym razem poddasze przykryto dwuspadowym symetrycznym dachem, pokrytym nowoczesną blachą na rąbek. Parterowe poszerzenie bryły od frontu i od tyłu domu zwieńczone zostały tarasami dostępnymi z górnego piętra. Hiacynt 7B to dom o nowoczesnej stylistyce. Elewacje budynku dzielą poziome pasy białych podciągów i szerokich przeszkleń okiennych. Reprezentacyjne wejście do domu z drzwiami z bocznymi naświetlami, umieszczono w podcieniu pod długim masywnym podciągiem połączonym z garażem. Od strony elewacji ogrodowej zaprojektowano długą belkę biegnącą przez całą szerokość domu, podpierającą częściowo zadaszone patio tarasu. Hiacynt 7 B dzięki dodatkom urozmaicającymi bryłę ma atrakcyjny i ciekawy wygląd, zachowując przy tym prostotę konstrukcji budynku. Wnętrze domu podzielono funkcjonalnie na części o równym przeznaczeniu. Na parterze zaprojektowano centralną część dzienną, z jednoprzestrzennym wnętrzem salonu z antresolą, wydzieloną jadalnią z przejściem na taras, ładną kuchnią ze spiżarnią i reprezentacyjnym holem. Na parterze przewidziano też apartament państwa domu, z własną łazienką, garderobą i połączeniem z tarasem. Całość parteru uzupełniona jest częścią garażowo- gospodarczą domu. Na poddaszu zaprojektowane zostały trzy pokoje sypialne, z łazienką pralnią, garderobą i antresolą z widokiem na pokój dzienny na parterze. Na poddaszu można bez kłopotu wykroić również 4 pokoje. Hiacynt 7B w stosunku do pozostałych wariantów tego projektu ma uproszczoną konstrukcję oraz kształt bryły, co powinno korzystne wpłynąć na łatwość i koszt budowy. Jednocześnie dom nadal zachował atrakcyjny wygląd i stylistykę. Dzięki dobrym izolacjom i nowoczesnym instalacjom, Hiacynt 7B jest budynkiem energooszczędnym i będzie niedrogi w późniejszej eksploatacji. Hiacynt 7 to dobra propozycja dla Inwestorów lubiących projekty z serii „Hiacynt”, ale szukających uproszczonych rozwiązań na przyszłą budowę.To dom dla osób chcących wybudować ładny, nie za duży dom jednorodzinny, o atrakcyjnej nowoczesnej architekturze i funkcjonalnym wnętrzu. Zapraszamy ! Zapraszamy również do zapoznania się z projektami domu: Hiacynt,, Hiacynt 2, Hiacynt 3, Hiacynt 4, Hiacynt 5,Hiacynt 6, Hiacynt 7, Hiacynt 8.

Koszty

Orientacyjne koszty budowy netto - wycena wskaźnikowa Ceny aktualne na: IV kwartał 2025
Jak dokonujemy wyliczeń? icon arrow
Razem (etapy 1-3): 540 200 zł
1. Stan zero
Koszt etapu 108 400 zł
Zakres prac

wytyczenie budynku i roboty ziemne; ławy i stopy fundamentowe; ściany podziemne z izolacjami cieplnymi i przeciwwilgociowymi

2. Stan surowy otwarty
Koszt etapu + 339 600 zł
Zakres prac

ściany murowane zewnętrzne i wewnętrzne; stropy i schody wewnętrzne; konstrukcja dachu z pokryciem, obróbkami, rynnami i rurami spustowymi; podłoża pod posadzki ( np. chudy beton)

3. Stan surowy zamknięty
Koszt etapu + 92 400 zł
Zakres prac

Stan zero (wytyczenie budynku i roboty ziemne; ławy i stopy fundamentowe; ściany podziemne z izolacjami cieplnymi i przeciwwilgociowymi) oraz stan surowy (ściany murowane z zewnętrzne i wewnętrzne; stropy i schody wewnętrzne, konstrukcja dachu z pokryciem, obróbkami, rynnami i rurami spustowymi; podłoża pod posadzki (np. chudy beton), okna i drzwi zewnętrzne; bramy garażowe; warstwy wyrównawcze pod posadzki na gruncie i na stropie z izolacjami cieplnymi i przeciwwilgociowymi).

Razem (etapy 1-3): 540 200 zł
4. Instalacje elektryczne
Koszt etapu od 62,40 do 219,70 zł/m2

*

Zakres prac

wewnętrzna instalacja oświetleniowa; instalacja gniazd wtykowych; instalacja siły oraz instalacja odgromowa i inne wewnętrzne instalacje teletechniczne

5. Instalacje sanitarne
Koszt etapu od 232,70 do 910 zł/m2

**

Zakres prac

wewnętrzna instalacja wod. - kan. z przyborami sanitarnymi i bateriami; instalacja c.o. z kotłem i grzejnikami, bez kominka; instalacja gazowa bez osprzętu kuchennego; wentylacja mechaniczna ( jeśli występuje)

6. Wykończenie zewnętrzne
Koszt etapu od 126,10 do 638,30 zł/m2

***

Zakres prac

system dociepleń i tynki zewnętrzne z malowaniem; okładziny elewacyjne; balustrady, parapety zewnętrzne i inne roboty zewnętrzne np. taras, opaski wokół domu, schody zewnętrzne

7. Wykończenie wewnętrzne
Koszt etapu od 429 do 878,80 zł/m2

***

Zakres prac

tynki wewnętrzne, drzwi i okna wewnętrzne, lekkie ścianki działowe, roboty malarskie, posadzki i inne prace wykończeniowe

* w zależności od ilości punktów elektrycznych na 1m2

** w zależności od ilości punktów sanitarnych na 1m2 oraz ilości (odległości) instalacji rurowej

*** w zależności od rodzaju użytych meteriałów i specyfikacji wykończenia

Zmiany w projekcie

Zobacz zakres zmian, które możesz wprowadzić, w tym projekcie bez zgody autora.
Lista możliwych zmian

Jeśli zmiany, które chcesz wprowadzić nie są ujęte w powyższym zestawieniu, skontaktuj się z nami. Nasz architekt przeanalizuje i doradzi, które z Twoich propozycji warto wdrożyć. O zgodę na zmiany możesz wystąpić nie tylko w momencie zakupu projektu, ale także później i otrzymasz ją bezpłatnie w ciągu kilku dni.

Pliki do pobrania

Zestawienie materiałówpdf Pobierz
Rysunki szczegółowepdf Pobierz

Dokumentacja (zawartość pakietu projektowego)

Dodatki

Pakiet dodatków, który otrzymasz razem z projektem

addon
Prezent na Święta: Karta 200 zł do Zalando!
Święta tuż-tuż, a my mamy dla Ciebie prezent, który umili czas oczekiwania!
addon
Teczka inwestora
Do przechowywania niezbędnej dokumentacji
addon
Kupony rabatowe na zakupy
Dzięki którym zaoszczędzisz nawet kilkanaście tysięcy złotych.
addon
Projekty małej architektury
Wybudujesz samodzielnie m.in. domek dla dzieci czy altanę z grillem.
Pamiętaj
dostawa
Wysyłkę projektu ze wszystkimi dodatkami na terenie Polski bierzemy na siebie. Ty wybierasz, gdzie odbierzesz swój projekt. Masz do wyboru kuriera DPD lub punkty Paczkomat InPost 24/7.
zwroty

Masz 30 dni na zwrot i 365 dni na wymianę projektu

Inspiracje

Wnętrza
Wszystkie