+48 22 59 05 000

pn.-pt. 8-20

Kontakt i pomoc^
Kontakt i pomoc
Zamów rozmowę
Umów wideorozmowę
Napisz do nas
Pomoc w kredycie
Bezpłatna analiza działki
logo
ulubione 0
REKLAMA
REKLAMA
MG0582

Hiacynt 3

wersja lustrzana
Kupując u nas, zyskujesz więcej

Dodatki

Atrakcyjne rabaty

Kompleksowe wsparcie

Gwarancja najniższej ceny

Wygodne zakupy

Zgoda na zmiany w projekcie

Szczegółowa dokumentacja

Rzuty
Działka
Parametry
Koszty
Podobne
Zmiany
Pliki do pobrania
Dokumentacja
Dodatki
Inspiracje
REKLAMA

Rzuty, przekrój, elewacje

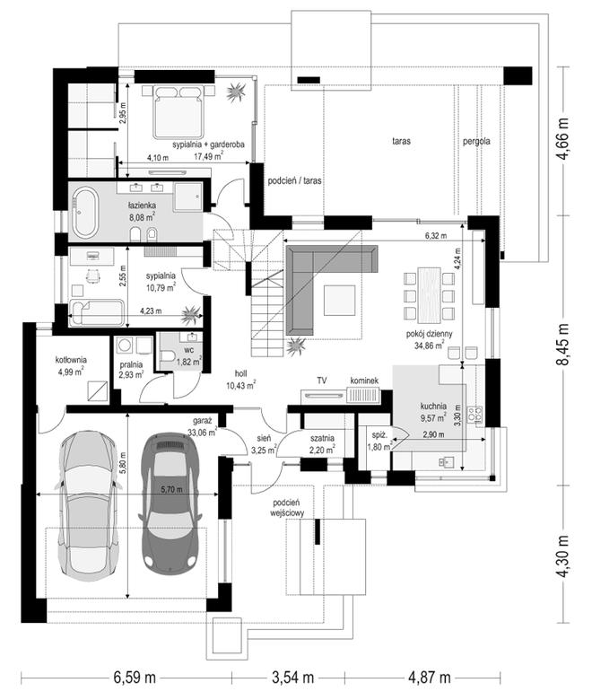
Parter 103,22 m2
Wersja lustrzana
Pomieszczenie Użytkowa
1
wiatrołap
3,25 m2
2
garderoba
2,2 m2
3
hol
10,43 m2
4
pokój dzienny + jadalnia
34,86 m2
5
kuchnia
9,57 m2
6
spiżarnia
1,8 m2
7
pokój + garderoba
17,49 m2
8
łazienka
8,08 m2
9
pokój
10,79 m2
10
wc
1,82 m2
11
pom. gosp.
2,93 m2
Razem 103,22 m2
13
kotłownia
4,99 m2
13
garaż
33,06 m2

W nawiasach podano powierzchnie pomieszczenia netto

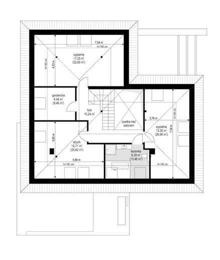
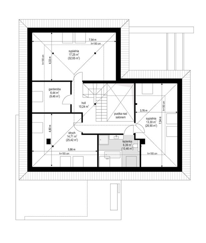
Poddasze 53,62 m2
Wersja lustrzana
Pomieszczenie Użytkowa
1
hol
10,24 m2
2
pokój (32,65)
17,25 m2
3
garderoba (9,46)
6,44 m2
5
łazienka (10,46)
6,39 m2
6
pokój (26,9)
13,3 m2
Razem 53,62 m2
4
strych (25,42)
14,71 m2

W nawiasach podano powierzchnie pomieszczenia netto

Elewacje
Wersja lustrzana
Elewacja 1
Elewacja 1
Elewacja 2
Elewacja 3
Elewacja 4
REKLAMA

Działka

Wybór działki to jedna z ważniejszych decyzji poprzedzających budowę wymarzonego domu. Oczywiście najważniejsza jest jej lokalizacja, ale trzeba także przeanalizować lokalne ograniczenia wyszczególnione w miejscowym planie zagospodarowania przestrzennego lub w warunkach zabudowy. Często zapisy w w/w dokumentach uniemożliwiają budowę wybranego projektu i trzeba szukać dalej.

Ważne jest także usytuowanie działki i domu względem stron świata, gdyż to właśnie decyduje o stopniu nasłonecznienia poszczególnych pomieszczeń. Dlatego każdy projekt oferujemy w dwóch wersjach: podstawowej oraz lustrzanej, aby można było wybrać najkorzystniejszy układ pomieszczeń względem stron świata, a także względem ukształtowania krajobrazu w otoczeniu działki.

Wymiary działki
Wymiary działki (szerokość x głębokość), na której możliwe jest wybudowanie domu. Wynikają one z wymiarów budynku powiększonych o wymagane przepisami odległości poszczególnych elementów budynku od granic działki. Rzeczywistą odległość od drogi należy sprawdzić i dostosować do wymogów zawartych w MPZA lub WZ.
22.00 x 25.41 m
Przekrój
Wersja lustrzana

Parametry

Dane Techniczne
Technologia i materiały
Parametry cieplne
Powierzchnia użytkowa
Suma powierzchni pomieszczeń mierzona po wewnętrznym obrysie ścian. Na jej wielkość ma wpływ wysokość pomieszczenia i jest liczona: – w 100% – przy wysokości w świetle powyżej 2,2 m, – w 50% – przy wysokości między 1,4 m a 2,2 m, – pomija się – przy wysokości poniżej 1,4 m. Do powierzchni użytkowej domu nie dolicza się powierzchni niektórych pomieszczeń, np. piwnicy, garażu, kotłowni, strychu.
156,83 m2
Powierzchnia zabudowy
Powierzchnia mierzona po obrysie zewnętrznych krawędzi wykończonego budynku z uwzględnieniem powierzchni nadwieszonych (np. wykusz). Nie dolicza się do niej elementów drugorzędnych (np. schodów zewnętrznych, daszków, ramp) oraz elementów niewystających ponad powierzchnię terenu
179,9 m2
Powierzchnia netto
Powierzchnia wszystkich pomieszczeń budynku mierzona na poziomie podłogi, po wewnętrznym obrysie ścian w stanie wykończonym. Na jej wartość nie wpływa wysokość pomieszczeń.
256,4 m2
Powierzchnia całkowita
Suma powierzchni całkowitych wszystkich kondygnacji (w tym znajdujących się całkowicie lub częściowo poniżej poziomu terenu) mierzona po zewnętrznym obrysie ścian (wraz z ociepleniem) oraz wszystkich elementów wykraczających poza kubaturę, np. tarasy, schody zewnętrzne, balkony, podcienie, zjazdy do garaży, itp.
251,92 m2
Powierzchnia dodatkowa
Dodatkowe powierzchnie niewliczane do powierzchni użytkowej: piwnica + garaż + kotłownia + strych + poddasze do adaptacji.
52,76 m2
Powierzchnia garażu
33,06 m2
Kąt nachylenia dachu
35°
Kubatura
Objętość budynku liczona wraz z przegrodami zewnętrznymi i wewnętrznymi (ścianami, stropem, dachem i podmurówką)
974 m3
Wysokość budynku
Wysokość mierzona od poziomu terenu przy wejściu do budynku do najwyższego punktu dachu – kalenicy
7,61 m
Wymiary budynku
15 x 17,41 m
Wymiary działki
Wymiary działki (szerokość x głębokość), na której możliwe jest wybudowanie domu. Wynikają one z wymiarów budynku powiększonych o wymagane przepisami odległości poszczególnych elementów budynku od granic działki. Rzeczywistą odległość od drogi należy sprawdzić i dostosować do wymogów zawartych w MPZA lub WZ
22 x 25,41 m
Pokoje (z salonem)
Liczba wszystkich pokoi
5
Łazienki i wc
Suma łazienek i wc
3
Miejsca postojowe
Suma miejsc postojowych (garaż + wiata garażowa)
2
Sezonowość
Całoroczny
REKLAMA

Opis projektu

Projekt domu Hiacynt 3, znany również jako MG0582, to zmodyfikowana wersja popularnej serii Hiacyntów. Jest to mniejsza wersja oryginalnego projektu, z powierzchnią użytkową wynoszącą 156,83 m², idealna na mniejsze działki. Budynek jest węższy i ma mniejszą powierzchnię zabudowy, co pozwala na obniżenie kosztów budowy, zachowując jednocześnie estetykę i funkcjonalność oryginału.

Hiacynt 3 - Nowoczesna Architektura i Funkcjonalność

Dom Hiacynt 3 jest parterowy z użytkowym poddaszem, a jego parter ma układ w kształcie litery T. Dach jest wielospadowy, z płaskim fragmentem nad garażem. Od strony ogrodu znajduje się częściowo osłonięty taras z pergolą, idealny do relaksu. Nowoczesna architektura domu jest podkreślona detalami wykończeniowymi, takimi jak duże przeszklenia, narożne okna, beton architektoniczny i drewno, które tworzą spójną kompozycję. Elewacja wykonana z tynku cienkowarstwowego jest podzielona na poziome pasy, tworzące ramy dla strefy wejściowej i tarasu. Wnętrze domu zaprojektowano tak, aby można było mieszkać tylko na parterze lub korzystać z całego domu z poddaszem. Wejście prowadzi przez reprezentacyjne drzwi do holu i części dziennej. Nad pokojem dziennym znajduje się antresola, która powiększa przestrzeń. W salonie przewidziano miejsce na meble wypoczynkowe, kominek i stół jadalny. Kuchnia ze spiżarnią i narożnym oknem jest częściowo otwarta na część dzienną, a szerokie drzwi balkonowe łączą wnętrze z tarasem i ogrodem.

Hiacynt 3 - Komfort i Przemyślane Rozwiązania

Na parterze znajduje się apartament rodziców z garderobami i łazienką oraz dodatkowy pokój. Przy wejściu umieszczono dwustanowiskowy garaż o powierzchni 33,06 m² oraz kotłownię o powierzchni 4,99 m². Na poddaszu są dwa pokoje, łazienka i garderoba, a dodatkowo strych o powierzchni 14,71 m². Dom jest energooszczędny, z dobrą izolacją termiczną i nowoczesnymi instalacjami, co czyni go idealnym wyborem dla osób szukających komfortowego i nowoczesnego domu z oryginalnymi rozwiązaniami. MG0582 to propozycja dla osób ceniących nowoczesność i funkcjonalność. Warto również zapoznać się z innymi projektami z serii: Hiacynt, Hiacynt 2, Hiacynt 4. Dom jest dostępny również w wersji lustrzanej. Zachęcamy do obejrzenia podobnych domów w kategorii Projekty domów nowoczesnych. Wymiary budynku wynoszą 15 x 17,41 m, a jego wysokość to 7,61 m. Kąt nachylenia dachu wynosi 35°, co dodaje mu nowoczesnego charakteru. MG0582 to dom, który łączy w sobie nowoczesność, funkcjonalność i komfort, spełniając oczekiwania nawet najbardziej wymagających klientów.

Koszty

Orientacyjne koszty budowy netto - wycena wskaźnikowa Ceny aktualne na: IV kwartał 2025
Jak dokonujemy wyliczeń? icon arrow
Razem (etapy 1-3): 580 000 zł
1. Stan zero
Koszt etapu 107 300 zł
Zakres prac

wytyczenie budynku i roboty ziemne; ławy i stopy fundamentowe; ściany podziemne z izolacjami cieplnymi i przeciwwilgociowymi

2. Stan surowy otwarty
Koszt etapu + 375 500 zł
Zakres prac

ściany murowane zewnętrzne i wewnętrzne; stropy i schody wewnętrzne; konstrukcja dachu z pokryciem, obróbkami, rynnami i rurami spustowymi; podłoża pod posadzki ( np. chudy beton)

3. Stan surowy zamknięty
Koszt etapu + 97 300 zł
Zakres prac

Stan zero (wytyczenie budynku i roboty ziemne; ławy i stopy fundamentowe; ściany podziemne z izolacjami cieplnymi i przeciwwilgociowymi) oraz stan surowy (ściany murowane z zewnętrzne i wewnętrzne; stropy i schody wewnętrzne, konstrukcja dachu z pokryciem, obróbkami, rynnami i rurami spustowymi; podłoża pod posadzki (np. chudy beton), okna i drzwi zewnętrzne; bramy garażowe; warstwy wyrównawcze pod posadzki na gruncie i na stropie z izolacjami cieplnymi i przeciwwilgociowymi).

Razem (etapy 1-3): 580 000 zł
4. Instalacje elektryczne
Koszt etapu od 62,40 do 219,70 zł/m2

*

Zakres prac

wewnętrzna instalacja oświetleniowa; instalacja gniazd wtykowych; instalacja siły oraz instalacja odgromowa i inne wewnętrzne instalacje teletechniczne

5. Instalacje sanitarne
Koszt etapu od 232,70 do 910 zł/m2

**

Zakres prac

wewnętrzna instalacja wod. - kan. z przyborami sanitarnymi i bateriami; instalacja c.o. z kotłem i grzejnikami, bez kominka; instalacja gazowa bez osprzętu kuchennego; wentylacja mechaniczna ( jeśli występuje)

6. Wykończenie zewnętrzne
Koszt etapu od 126,10 do 638,30 zł/m2

***

Zakres prac

system dociepleń i tynki zewnętrzne z malowaniem; okładziny elewacyjne; balustrady, parapety zewnętrzne i inne roboty zewnętrzne np. taras, opaski wokół domu, schody zewnętrzne

7. Wykończenie wewnętrzne
Koszt etapu od 429 do 878,80 zł/m2

***

Zakres prac

tynki wewnętrzne, drzwi i okna wewnętrzne, lekkie ścianki działowe, roboty malarskie, posadzki i inne prace wykończeniowe

* w zależności od ilości punktów elektrycznych na 1m2

** w zależności od ilości punktów sanitarnych na 1m2 oraz ilości (odległości) instalacji rurowej

*** w zależności od rodzaju użytych meteriałów i specyfikacji wykończenia

Zmiany w projekcie

Zobacz zakres zmian, które możesz wprowadzić, w tym projekcie bez zgody autora.
Lista możliwych zmian

Jeśli zmiany, które chcesz wprowadzić nie są ujęte w powyższym zestawieniu, skontaktuj się z nami. Nasz architekt przeanalizuje i doradzi, które z Twoich propozycji warto wdrożyć. O zgodę na zmiany możesz wystąpić nie tylko w momencie zakupu projektu, ale także później i otrzymasz ją bezpłatnie w ciągu kilku dni.

Pliki do pobrania

Zestawienie materiałówpdf Pobierz
Rysunki szczegółowepdf Pobierz

Dokumentacja (zawartość pakietu projektowego)

Dodatki

Pakiet dodatków, który otrzymasz razem z projektem

addon
Prezent na Święta: Karta 200 zł do Zalando!
Święta tuż-tuż, a my mamy dla Ciebie prezent, który umili czas oczekiwania!
addon
Teczka inwestora
Do przechowywania niezbędnej dokumentacji
addon
Kupony rabatowe na zakupy
Dzięki którym zaoszczędzisz nawet kilkanaście tysięcy złotych.
addon
Projekty małej architektury
Wybudujesz samodzielnie m.in. domek dla dzieci czy altanę z grillem.
Pamiętaj
dostawa
Wysyłkę projektu ze wszystkimi dodatkami na terenie Polski bierzemy na siebie. Ty wybierasz, gdzie odbierzesz swój projekt. Masz do wyboru kuriera DPD lub punkty Paczkomat InPost 24/7.
zwroty

Masz 30 dni na zwrot i 365 dni na wymianę projektu

Inspiracje

Wnętrza
Wszystkie