+48 22 59 05 000

pn.-pt. 8-20

Kontakt i pomoc^
Kontakt i pomoc
Zamów rozmowę
Umów wideorozmowę
Napisz do nas
Pomoc w kredycie
Bezpłatna analiza działki
logo
ulubione 0
REKLAMA
REKLAMA
DD1855

Gąska IV A z garażem 1-st. [A]

wersja lustrzana
Kupując u nas, zyskujesz więcej

Dodatki

Atrakcyjne rabaty

Kompleksowe wsparcie

Gwarancja najniższej ceny

Wygodne zakupy

Zgoda na zmiany w projekcie

Szczegółowa dokumentacja

Rzuty
Działka
Parametry
Podobne
Zmiany
Dokumentacja
Dodatki
Inspiracje
REKLAMA

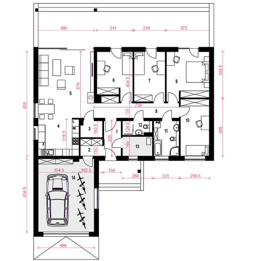
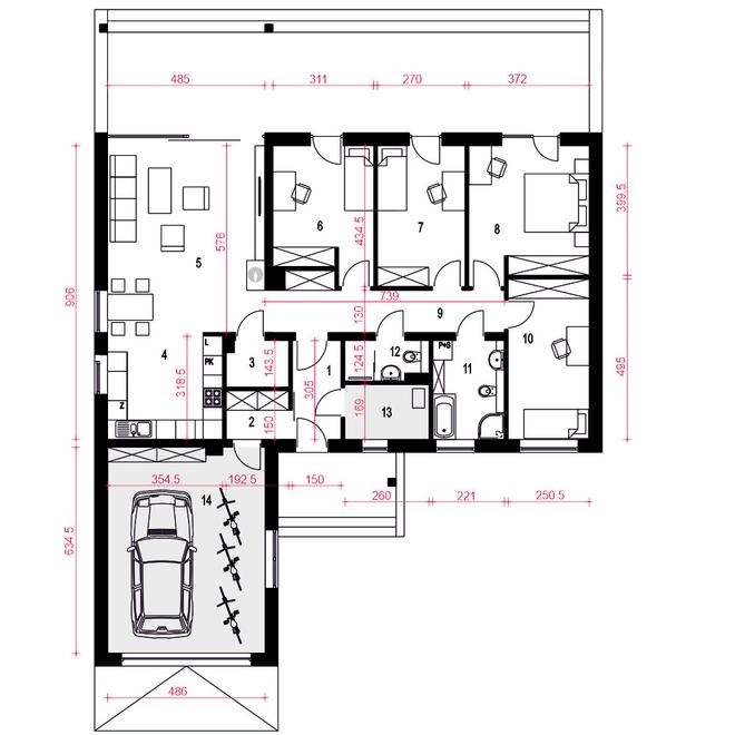
Rzuty, przekrój, elewacje

Parter 119,4 m2
Wersja lustrzana
Pomieszczenie Użytkowa
1
przedsionek
4,4 m2
2
garderoba
2,8 m2
3
spiżarnia
2,8 m2
4
kuchnia
11,5 m2
5
pokój dzienny
27,6 m2
6
sypialnia
11,9 m2
7
sypialnia
11,5 m2
8
sypialnia
14,9 m2
9
korytarz
10,3 m2
10
sypialnia
12,1 m2
11
łazienka
6,6 m2
12
łazienka
3,0 m2
Razem 119,4 m2
13
pom. gosp. (4,3)
14
garaż (29,8)

W nawiasach podano powierzchnie pomieszczenia netto

Przekrój
Wersja lustrzana
Przekrój
Elewacje
Wersja lustrzana
Elewacja 1
Elewacja 1
Elewacja 2
Elewacja 3
Elewacja 4
REKLAMA

Działka

Wybór działki to jedna z ważniejszych decyzji poprzedzających budowę wymarzonego domu. Oczywiście najważniejsza jest jej lokalizacja, ale trzeba także przeanalizować lokalne ograniczenia wyszczególnione w miejscowym planie zagospodarowania przestrzennego lub w warunkach zabudowy. Często zapisy w w/w dokumentach uniemożliwiają budowę wybranego projektu i trzeba szukać dalej.

Ważne jest także usytuowanie działki i domu względem stron świata, gdyż to właśnie decyduje o stopniu nasłonecznienia poszczególnych pomieszczeń. Dlatego każdy projekt oferujemy w dwóch wersjach: podstawowej oraz lustrzanej, aby można było wybrać najkorzystniejszy układ pomieszczeń względem stron świata, a także względem ukształtowania krajobrazu w otoczeniu działki.

Wymiary działki
Wymiary działki (szerokość x głębokość), na której możliwe jest wybudowanie domu. Wynikają one z wymiarów budynku powiększonych o wymagane przepisami odległości poszczególnych elementów budynku od granic działki. Rzeczywistą odległość od drogi należy sprawdzić i dostosować do wymogów zawartych w MPZA lub WZ.
22.80 x 26.10 m
Przekrój
Wersja lustrzana

Parametry

Dane Techniczne
Technologia i materiały
Parametry cieplne
Powierzchnia użytkowa
Suma powierzchni pomieszczeń mierzona po wewnętrznym obrysie ścian. Na jej wielkość ma wpływ wysokość pomieszczenia i jest liczona: – w 100% – przy wysokości w świetle powyżej 2,2 m, – w 50% – przy wysokości między 1,4 m a 2,2 m, – pomija się – przy wysokości poniżej 1,4 m. Do powierzchni użytkowej domu nie dolicza się powierzchni niektórych pomieszczeń, np. piwnicy, garażu, kotłowni, strychu.
119,4 m2
Powierzchnia zabudowy
Powierzchnia mierzona po obrysie zewnętrznych krawędzi wykończonego budynku z uwzględnieniem powierzchni nadwieszonych (np. wykusz). Nie dolicza się do niej elementów drugorzędnych (np. schodów zewnętrznych, daszków, ramp) oraz elementów niewystających ponad powierzchnię terenu
214,3 m2
Powierzchnia netto
Powierzchnia wszystkich pomieszczeń budynku mierzona na poziomie podłogi, po wewnętrznym obrysie ścian w stanie wykończonym. Na jej wartość nie wpływa wysokość pomieszczeń.
153,5 m2
Powierzchnia garażu
29,8 m2
Powierzchnia dachu
302 m2
Kąt nachylenia dachu
30°
Wysokość budynku
Wysokość mierzona od poziomu terenu przy wejściu do budynku do najwyższego punktu dachu – kalenicy
7,1 m
Wymiary budynku
15,8 x 16,6 m
Wymiary działki
Wymiary działki (szerokość x głębokość), na której możliwe jest wybudowanie domu. Wynikają one z wymiarów budynku powiększonych o wymagane przepisami odległości poszczególnych elementów budynku od granic działki. Rzeczywistą odległość od drogi należy sprawdzić i dostosować do wymogów zawartych w MPZA lub WZ
22,8 x 26,1 m
Pokoje (z salonem)
Liczba wszystkich pokoi
5
Łazienki i wc
Suma łazienek i wc
2
Miejsca postojowe
Suma miejsc postojowych (garaż + wiata garażowa)
1
Sezonowość
Całoroczny
REKLAMA

Opis projektu

Projekt domu Gąska IV z garażem to przemyślana i atrakcyjna propozycja dla 4–5-osobowej rodziny, która ceni sobie wygodę codziennego życia, funkcjonalne rozwiązania przestrzenne oraz rozsądne koszty realizacji i utrzymania budynku. Dom został zaprojektowany z myślą o maksymalnym wykorzystaniu dostępnej przestrzeni użytkowej, zachowując jednocześnie estetyczny wygląd i nowoczesny charakter bryły.

Gąska IV z garażem, to funkcjonalny projekt domu parterowego, łączący strefę ogólnodostępną i prywatną na jednym poziomie. Na stosunkowo niewielkiej powierzchni udało się zaplanować układ, który odpowiada na potrzeby współczesnej rodziny. Znajdują się tu cztery indywidualne sypialnie i przestronny salon z dużymi przeszkleniami. Salon płynnie łączy się z otwartą kuchnią oraz jadalnią, tworząc jedną, harmonijną przestrzeń dzienną. W pobliżu kuchni znajduje się praktyczna spiżarnia i utrzymanie porządku.

W projekcie Gąska IV z garażem przewidziano dwie funkcjonalne łazienki, co znacząco wpływa na komfort codziennego użytkowania. Przy wejściu zaprojektowano wiatrołap z garderobą, który pomaga w organizacji ubrań i butów. Kotłownia, dostępna z wiatrołapu, została wydzielona w sposób umożliwiający łatwą obsługę systemu grzewczego bez ingerencji w przestrzeń mieszkalną. Zarówno od strony frontowej, jak i ogrodowej przewidziano zadaszenia. Dzięki dobrze przemyślanym rozwiązaniom architektonicznym, dom Gąska IV jest nie tylko przyjazny dla mieszkańców, ale również ekonomiczny w budowie i eksploatacji. Projekt W projekcie Gąska IV z garażem dostępny jest także w wersji lustrzanego odbicia.

Zmiany w projekcie

Zobacz zakres zmian, które możesz wprowadzić, w tym projekcie bez zgody autora.
Lista możliwych zmian

Jeśli zmiany, które chcesz wprowadzić nie są ujęte w powyższym zestawieniu, skontaktuj się z nami. Nasz architekt przeanalizuje i doradzi, które z Twoich propozycji warto wdrożyć. O zgodę na zmiany możesz wystąpić nie tylko w momencie zakupu projektu, ale także później i otrzymasz ją bezpłatnie w ciągu kilku dni.

Dokumentacja (zawartość pakietu projektowego)

Dodatki

Pakiet dodatków, który otrzymasz razem z projektem

addon
Prezent na Święta: Karta 200 zł do Zalando!
Święta tuż-tuż, a my mamy dla Ciebie prezent, który umili czas oczekiwania!
addon
Teczka inwestora
Do przechowywania niezbędnej dokumentacji
addon
Kupony rabatowe na zakupy
Dzięki którym zaoszczędzisz nawet kilkanaście tysięcy złotych.
addon
Projekty małej architektury
Wybudujesz samodzielnie m.in. domek dla dzieci czy altanę z grillem.
Pamiętaj
dostawa
Wysyłkę projektu ze wszystkimi dodatkami na terenie Polski bierzemy na siebie. Ty wybierasz, gdzie odbierzesz swój projekt. Masz do wyboru kuriera DPD lub punkty Paczkomat InPost 24/7.
zwroty

Masz 30 dni na zwrot i 365 dni na wymianę projektu

Inspiracje

Wnętrza
Wszystkie
Pokój dzienny
Kuchnia