pn.-pt. 8-20

Eryk IV G1 ECONOMIC wersja lustrzana




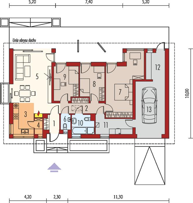
W nawiasach podano powierzchnie pomieszczenia netto

Eryk IV G1 ECONOMIC
wersja lustrzanaKoncepcja projektu
Nasi doradcy przedstawią szczegółowe informacje dotyczące projektu.
Projekt wycofany z oferty
Dodatki
Atrakcyjne rabaty
Kompleksowe wsparcie
Gwarancja najniższej ceny
Wygodne zakupy
Zgoda na zmiany w projekcie
Szczegółowa dokumentacja
Rzuty, przekrój, elewacje

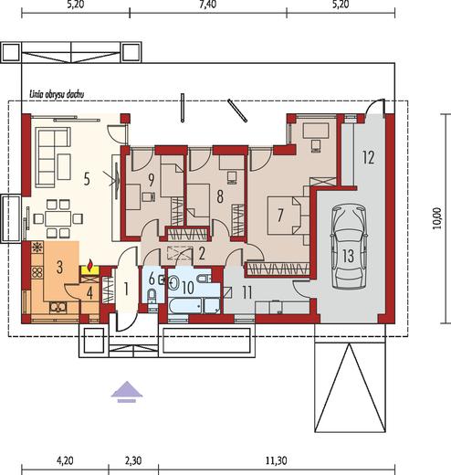
W nawiasach podano powierzchnie pomieszczenia netto

Działka
Wybór działki to jedna z ważniejszych decyzji poprzedzających budowę wymarzonego domu. Oczywiście najważniejsza jest jej lokalizacja, ale trzeba także przeanalizować lokalne ograniczenia wyszczególnione w miejscowym planie zagospodarowania przestrzennego lub w warunkach zabudowy. Często zapisy w w/w dokumentach uniemożliwiają budowę wybranego projektu i trzeba szukać dalej.
Ważne jest także usytuowanie działki i domu względem stron świata, gdyż to właśnie decyduje o stopniu nasłonecznienia poszczególnych pomieszczeń. Dlatego każdy projekt oferujemy w dwóch wersjach: podstawowej oraz lustrzanej, aby można było wybrać najkorzystniejszy układ pomieszczeń względem stron świata, a także względem ukształtowania krajobrazu w otoczeniu działki.

Parametry
Opis projektu
Charakterystyka: dom parterowy, niepodpiwniczony, z garażem
jednostanowiskowym
Przeznaczenie: dom dla 3-4-osobowej rodziny
Technologia i konstrukcja:
Fundamenty: ławy, bloczki betonowe 24 cm, ocieplenie styropian
15 cm
Ściany zewnętrzne: murowane, dwuwarstwowe, beton komórkowy firmy
Solbet 24 cm, ocieplenie 20 cm
Ściany wewnętrzne: murowane, bloczki betonu komórkowego firmy Solbet 24
cm i 12 cm
Strop: strop gęstożebrowy Teriva, ocieplenie wełna
mineralna 30 cm
Dach: konstrukcja drewniana, ocieplenie wełna mineralna
30 cm, dachówka cementowa IBF, więźba
dachowa dostępna również w systemie prefabrykacji drewnianej
Rozwiązania instalacyjne:
Ogrzewanie: kocioł gazowy kondensacyjny, rozprowadzenie
ciepła: grzejniki
Wentylacja: grawitacyjna
Wykończenie:
Elewacje: tynk cienkowarstwowy mineralny w kolorze TO-PA003
z palety firmy Termo Organika, okładzina z płyty
HPL z naturalną okleiną drewnianą firmy Prodema
Stolarka: drewniana, PVC lub aluminiowa, drzwi wejściowe i brama garażowa firmy Hörmann, rolety zewnętrzne w
systemie CleverBox firmy BeClever
Wersje - zapytaj o dostępność:
- Eryk IV ECONOMIC - bez garażu
- Eryk – podobny układ funkcjonalny, bez garażu lub
z garażem jednostanowiskowym
- Eryk (z wiatą) - podobny układ funkcjonalny, z wiatą
samochodową
- Eryk II - podobny układ funkcjonalny, różne wersje
garaży
- Eryk III - system suchej zabudowy ścian działowych
Rigips, wiązary prefabrykowane, podobny układ funkcjonalny, standard ociepleń
ENERGO, bez garażu i z garażem jednostanowiskowym
- Eryk MULTI-COMFORT - dom z
rozwiązaniami materiałowo-technologicznymi Grupy Saint-Gobain,taki sam układ funkcjonalny, bez
garażu i z garażem jednostanowiskowym
- Eryk ENERGO PLUS - instalacje
energooszczędne: pompa ciepła, ogrzewanie podłogowe, wentylacja mechaniczna z
rekuperacją firmy Zehnder, system solarny, podobny układ funkcjonalny, standard
ociepleń ENERGO, bez garażu i z garażem jednostanowiskowym
Wersje z
dachem o kącie nachylenia 30°:
- Eryk (30 stopni), Eryk z wiatą (30 stopni)
- Eryk G1 (30 stopni), Eryk G1
MULTI-COMFORT (30 stopni)
- Eryk II G1 (30 stopni)
- każda wersja z
inną propozycją wykończenia elewacji
- odbicie
lustrzane do każdej wersji
Istnieje techniczna możliwość:
-
podpiwniczenia budynku
- zmiany
kąta nachylenia dachu do 30º oraz adaptacji poddasza na strych
-
zbliźniaczenia
-
wykonania budynku w technologii szkieletowej
Atuty projektu okiem architekta:
- Zwarta
bryła budynku oraz prosty, dwuspadowy dach wpływające pozytywnie zarówno na koszty
budowy jak i użytkowania domu
- Kuchnia
z praktyczną spiżarnią
-
Funkcjonalne szafy wnękowe
- Trzy
sypialnie, w tym główna z atrakcyjną przestrzenią oferującą wiele możliwości
aranżacji – miejsce na komfortową toaletkę lub mini-gabinet, który można
wydzielić ścianką
- Duże
przeszklenia w salonie oraz w jadalni
- Żaluzje
zewnętrzne obrotowe jako osłona przed przegrzewaniem w upalne dni
-
Zacieniony taras w podcieniu
- Garaż
oddzielony termicznie od ogrzewanej części budynku
-
Przestronna strefa gospodarcza: kotłownia oraz pomieszczenie gospodarcze przy
garażu
Koszty
wytyczenie budynku i roboty ziemne; ławy i stopy fundamentowe; ściany podziemne z izolacjami cieplnymi i przeciwwilgociowymi
ściany murowane zewnętrzne i wewnętrzne; stropy i schody wewnętrzne; konstrukcja dachu z pokryciem, obróbkami, rynnami i rurami spustowymi; podłoża pod posadzki ( np. chudy beton)
Stan zero (wytyczenie budynku i roboty ziemne; ławy i stopy fundamentowe; ściany podziemne z izolacjami cieplnymi i przeciwwilgociowymi) oraz stan surowy (ściany murowane z zewnętrzne i wewnętrzne; stropy i schody wewnętrzne, konstrukcja dachu z pokryciem, obróbkami, rynnami i rurami spustowymi; podłoża pod posadzki (np. chudy beton), okna i drzwi zewnętrzne; bramy garażowe; warstwy wyrównawcze pod posadzki na gruncie i na stropie z izolacjami cieplnymi i przeciwwilgociowymi).
*
wewnętrzna instalacja oświetleniowa; instalacja gniazd wtykowych; instalacja siły oraz instalacja odgromowa i inne wewnętrzne instalacje teletechniczne
**
wewnętrzna instalacja wod. - kan. z przyborami sanitarnymi i bateriami; instalacja c.o. z kotłem i grzejnikami, bez kominka; instalacja gazowa bez osprzętu kuchennego; wentylacja mechaniczna ( jeśli występuje)
***
system dociepleń i tynki zewnętrzne z malowaniem; okładziny elewacyjne; balustrady, parapety zewnętrzne i inne roboty zewnętrzne np. taras, opaski wokół domu, schody zewnętrzne
***
tynki wewnętrzne, drzwi i okna wewnętrzne, lekkie ścianki działowe, roboty malarskie, posadzki i inne prace wykończeniowe
* w zależności od ilości punktów elektrycznych na 1m2
** w zależności od ilości punktów sanitarnych na 1m2 oraz ilości (odległości) instalacji rurowej
*** w zależności od rodzaju użytych meteriałów i specyfikacji wykończenia
Zmiany w projekcie
Jeśli zmiany, które chcesz wprowadzić nie są ujęte w powyższym zestawieniu, skontaktuj się z nami. Nasz architekt przeanalizuje i doradzi, które z Twoich propozycji warto wdrożyć. O zgodę na zmiany możesz wystąpić nie tylko w momencie zakupu projektu, ale także później i otrzymasz ją bezpłatnie w ciągu kilku dni.
Dokumentacja (zawartość pakietu projektowego)
3 egzemplarze projektu architektoniczno-budowlanego ze szczegółowym opisem
Dowiedz sie wiecej tralalala lalatral2 egzemplarze projektu technicznego (architektura, konstrukcja, instalacje: wodno-kanalizacyjna, c.o., elektryczna, gazowa (jeśli występują)) ze szczegółowym opisem
Charakterystyka energetyczna w dwóch egzemplarzach (jeśli dotyczy)
Materiały pomocnicze (zestawienie więźby dachowej, wykaz materiałów instalacyjnych, obliczenia statyczne)
Oświadczenie projektantów – wymagane prawem potwierdzenie, że projekt został sporządzony zgodnie z obowiązującymi przepisami oraz zasadami wiedzy technicznej
Obowiązki architekta adaptującego – wykaz i zakres prac niezbędny do przystosowania domu do warunków lokalnych panujących na działce i stworzenia projektu budowlanego
Informacje o alternatywnych rozwiązaniach technicznych i instalacyjnych – wyjaśnienie konieczności zastosowania w projekcie jednoznacznych rozwiązań projektowych
Dodatki
Pakiet dodatków, który otrzymasz razem z projektem




Masz 30 dni na zwrot i 365 dni na wymianę projektu
Dodatki w dobrej cenie
Dodatki możesz dobrać także w koszyku lub podczas zakupów u naszego doradcy.