+48 22 59 05 000

pn.-pt. 8-20

Kontakt i pomoc^
Kontakt i pomoc
Zamów rozmowę
Umów wideorozmowę
Napisz do nas
Pomoc w kredycie
Bezpłatna analiza działki
logo
ulubione 0
REKLAMA
REKLAMA
BCC346a

Elastyczny - wariant I (bliźniak)

wersja lustrzana
Kupując u nas, zyskujesz więcej

Dodatki

Atrakcyjne rabaty

Kompleksowe wsparcie

Gwarancja najniższej ceny

Wygodne zakupy

Zgoda na zmiany w projekcie

Szczegółowa dokumentacja

Rzuty
Działka
Parametry
Koszty
Podobne
Zmiany
Pliki do pobrania
Dokumentacja
Dodatki
Inspiracje
REKLAMA

Rzuty, przekrój, elewacje

Parter 75,2 m2
Wersja lustrzana
Pomieszczenie Użytkowa
1
przedsionek
3,0 m2
2
garderoba
3,8 m2
3
pokój dzienny
30,0 m2
4
korytarz
2,8 m2
5
sypialnia
11,0 m2
6
sypialnia
12,0 m2
7
łazienka
5,0 m2
8
kuchnia
7,6 m2
Razem 75,2 m2
9
kotłownia
5,2 m2
10
taras (18,3)

W nawiasach podano powierzchnie pomieszczenia netto

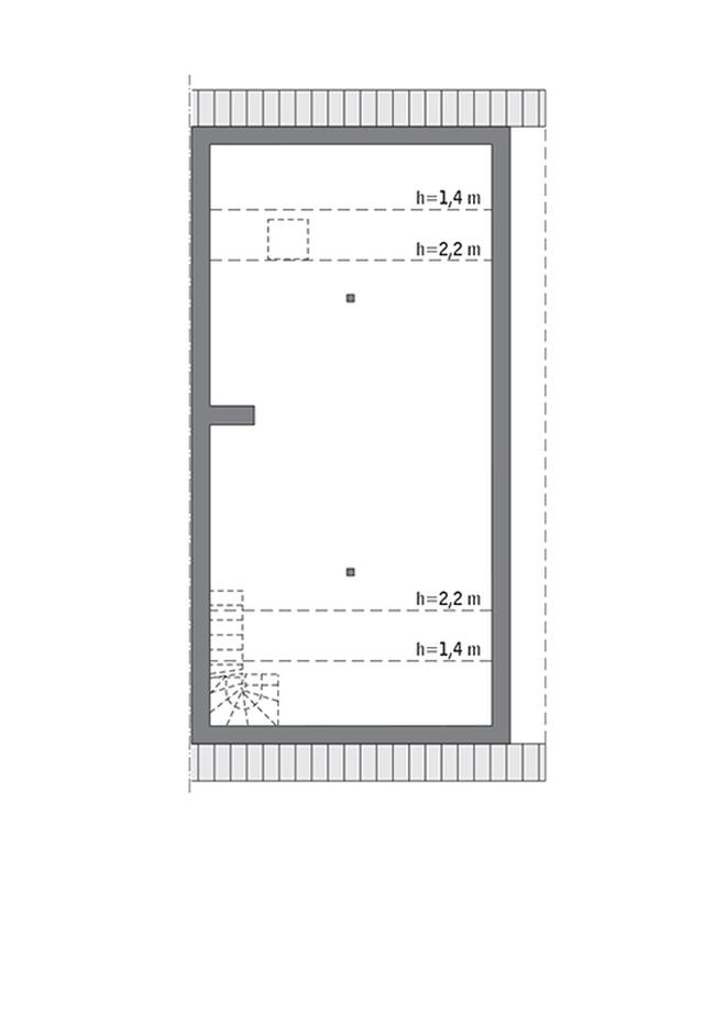
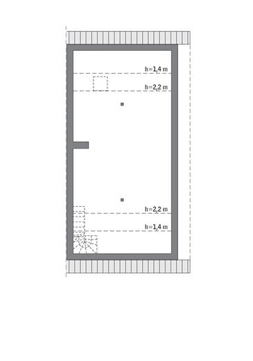
Poddasze
Wersja lustrzana

do indywidualnej adaptacji (55,5 m2 powierzchni użytkowej)

Przekrój
Wersja lustrzana
Przekrój
Kąt nachylenia dachu 35°
Wysokość budynku 8,74 m
Wysokość parteru 2,71 m
Elewacje
Wersja lustrzana
Elewacja 1
Elewacja 1
REKLAMA

Działka

Wybór działki to jedna z ważniejszych decyzji poprzedzających budowę wymarzonego domu. Oczywiście najważniejsza jest jej lokalizacja, ale trzeba także przeanalizować lokalne ograniczenia wyszczególnione w miejscowym planie zagospodarowania przestrzennego lub w warunkach zabudowy. Często zapisy w w/w dokumentach uniemożliwiają budowę wybranego projektu i trzeba szukać dalej.

Ważne jest także usytuowanie działki i domu względem stron świata, gdyż to właśnie decyduje o stopniu nasłonecznienia poszczególnych pomieszczeń. Dlatego każdy projekt oferujemy w dwóch wersjach: podstawowej oraz lustrzanej, aby można było wybrać najkorzystniejszy układ pomieszczeń względem stron świata, a także względem ukształtowania krajobrazu w otoczeniu działki.

Wymiary działki
Wymiary działki (szerokość x głębokość), na której możliwe jest wybudowanie domu. Wynikają one z wymiarów budynku powiększonych o wymagane przepisami odległości poszczególnych elementów budynku od granic działki. Rzeczywistą odległość od drogi należy sprawdzić i dostosować do wymogów zawartych w MPZA lub WZ.
22.20 x 22.10 m

Parametry

Wymiary budynku i działki dotyczą dwóch segmentów. Pozostałe dane techniczne - jednego segmentu.

Dane Techniczne
Technologia i materiały
Parametry cieplne
Powierzchnia użytkowa
Suma powierzchni pomieszczeń mierzona po wewnętrznym obrysie ścian. Na jej wielkość ma wpływ wysokość pomieszczenia i jest liczona: – w 100% – przy wysokości w świetle powyżej 2,2 m, – w 50% – przy wysokości między 1,4 m a 2,2 m, – pomija się – przy wysokości poniżej 1,4 m. Do powierzchni użytkowej domu nie dolicza się powierzchni niektórych pomieszczeń, np. piwnicy, garażu, kotłowni, strychu.
75,2 m2
Powierzchnia zabudowy
Powierzchnia mierzona po obrysie zewnętrznych krawędzi wykończonego budynku z uwzględnieniem powierzchni nadwieszonych (np. wykusz). Nie dolicza się do niej elementów drugorzędnych (np. schodów zewnętrznych, daszków, ramp) oraz elementów niewystających ponad powierzchnię terenu
101,7 m2
Powierzchnia netto
Powierzchnia wszystkich pomieszczeń budynku mierzona na poziomie podłogi, po wewnętrznym obrysie ścian w stanie wykończonym. Na jej wartość nie wpływa wysokość pomieszczeń.
80,4 m2
Powierzchnia całkowita
Suma powierzchni całkowitych wszystkich kondygnacji (w tym znajdujących się całkowicie lub częściowo poniżej poziomu terenu) mierzona po zewnętrznym obrysie ścian (wraz z ociepleniem) oraz wszystkich elementów wykraczających poza kubaturę, np. tarasy, schody zewnętrzne, balkony, podcienie, zjazdy do garaży, itp.
101,7 m2
Powierzchnia dodatkowa
Dodatkowe powierzchnie niewliczane do powierzchni użytkowej: piwnica + garaż + kotłownia + strych + poddasze do adaptacji.
5,2 m2
Kąt nachylenia dachu
35°
Kubatura
Objętość budynku liczona wraz z przegrodami zewnętrznymi i wewnętrznymi (ścianami, stropem, dachem i podmurówką)
634,3 m3
Wysokość budynku
Wysokość mierzona od poziomu terenu przy wejściu do budynku do najwyższego punktu dachu – kalenicy
8,74 m
Wysokość parteru
Podana wartość to wysokość pomieszczeń parteru w stanie wykończonym, mierzona od poziomu posadzki do spodu sufitu.
2,71 m
Wymiary budynku
14,2 x 14,1 m
Wymiary działki
Wymiary działki (szerokość x głębokość), na której możliwe jest wybudowanie domu. Wynikają one z wymiarów budynku powiększonych o wymagane przepisami odległości poszczególnych elementów budynku od granic działki. Rzeczywistą odległość od drogi należy sprawdzić i dostosować do wymogów zawartych w MPZA lub WZ
22,2 x 22,1 m
Pokoje (z salonem)
Liczba wszystkich pokoi
3
Łazienki i wc
Suma łazienek i wc
1
Sezonowość
Całoroczny
REKLAMA

Opis projektu

,,Elastyczny - wariant I ’’ to dom do zabudowy bliźniaczej, który dzięki wymiarom (krótszy bok ma zaledwie 7,3 m) nadaje się na bardzo wąską działkę. Elewacja zewnętrzna jest utrzymana w nowoczesnej stalowoszarej i białej kolorystyce. Jego atutem jest możliwość adaptacji poddasza (56 mkw.), które powiększy powierzchnię domu do ponad 120 mkw. Od frontu znajduje się z jednej strony kuchnia z widokiem na strefę wejścia, a z drugiej – garderoba, w miejscu której w przyszłości będą schody na poddasze. Centrum domu zajmuje obszerna strefa dzienna z miejscem na wypoczynek oraz wspólne posiłki. Relaks umili zaplanowany w narożniku kominek. Niemal cała ściana salonu jest przeszklona, co rekompensuje brak okien z drugiej strony. Wystarczy otworzyć okno tarasowe, by powiększyć salon o dodatkowe 20 mkw. tarasu. W głębi domu zaplanowano część nocną oddzieloną od salonu drzwiami przesuwnymi. Znajdziemy tam łazienkę, której powierzchnię powiększono dzięki sprytnej lokalizacji brodzika, dwie spore sypialnie oraz kotłownię z kotłem na paliwo stałe.
Projekty domów z Kolekcji Muratora są dostępne także w wersji lustrzanego odbicia

Koszty

Orientacyjne koszty budowy netto - wycena wskaźnikowa Ceny aktualne na: IV kwartał 2025
Jak dokonujemy wyliczeń? icon arrow
Przedstawione orientacyjne koszty budowy dotyczą jednego segmentu.
Razem (etapy 1-3): 295 300 zł
1. Stan zero
Koszt etapu 60 700 zł
Zakres prac

wytyczenie budynku i roboty ziemne; ławy i stopy fundamentowe; ściany podziemne z izolacjami cieplnymi i przeciwwilgociowymi

2. Stan surowy otwarty
Koszt etapu + 193 900 zł
Zakres prac

ściany murowane zewnętrzne i wewnętrzne; stropy i schody wewnętrzne; konstrukcja dachu z pokryciem, obróbkami, rynnami i rurami spustowymi; podłoża pod posadzki ( np. chudy beton)

3. Stan surowy zamknięty
Koszt etapu + 40 800 zł
Zakres prac

okna i drzwi zewnętrzne; bramy garażowe; warstwy wyrównawcze pod posadzki na gruncie i na stropie z izolacjami cieplnymi i przeciwwilgociowymi

Razem (etapy 1-3): 295 300 zł
4. Instalacje elektryczne
Koszt etapu od 62,40 do 219,70 zł/m2

*

Zakres prac

wewnętrzna instalacja oświetleniowa; instalacja gniazd wtykowych; instalacja siły oraz instalacja odgromowa i inne wewnętrzne instalacje teletechniczne

5. Instalacje sanitarne
Koszt etapu od 232,70 do 910 zł/m2

**

Zakres prac

wewnętrzna instalacja wod. - kan. z przyborami sanitarnymi i bateriami; instalacja c.o. z kotłem i grzejnikami, bez kominka; instalacja gazowa bez osprzętu kuchennego; wentylacja mechaniczna ( jeśli występuje)

6. Wykończenie zewnętrzne
Koszt etapu od 126,10 do 638,30 zł/m2

***

Zakres prac

system dociepleń i tynki zewnętrzne z malowaniem; okładziny elewacyjne; balustrady, parapety zewnętrzne i inne roboty zewnętrzne np. taras, opaski wokół domu, schody zewnętrzne

7. Wykończenie wewnętrzne
Koszt etapu od 429 do 878,80 zł/m2

***

Zakres prac

tynki wewnętrzne, drzwi i okna wewnętrzne, lekkie ścianki działowe, roboty malarskie, posadzki i inne prace wykończeniowe

* w zależności od ilości punktów elektrycznych na 1m2

** w zależności od ilości punktów sanitarnych na 1m2 oraz ilości (odległości) instalacji rurowej

*** w zależności od rodzaju użytych meteriałów i specyfikacji wykończenia

Zmiany w projekcie

Zobacz zakres zmian, które możesz wprowadzić, w tym projekcie bez zgody autora.
Lista możliwych zmian

Jeśli zmiany, które chcesz wprowadzić nie są ujęte w powyższym zestawieniu, skontaktuj się z nami. Nasz architekt przeanalizuje i doradzi, które z Twoich propozycji warto wdrożyć. O zgodę na zmiany możesz wystąpić nie tylko w momencie zakupu projektu, ale także później i otrzymasz ją bezpłatnie w ciągu kilku dni.

Pliki do pobrania

Rysunki szczegółowepdf Pobierz

Dokumentacja (zawartość pakietu projektowego)

Dodatki

Pakiet dodatków, który otrzymasz razem z projektem

addon
Prezent na Święta: Karta 200 zł do Zalando!
Święta tuż-tuż, a my mamy dla Ciebie prezent, który umili czas oczekiwania!
addon
Teczka inwestora
Do przechowywania niezbędnej dokumentacji
addon
Kupony rabatowe na zakupy
Dzięki którym zaoszczędzisz nawet kilkanaście tysięcy złotych.
addon
Projekty małej architektury
Wybudujesz samodzielnie m.in. domek dla dzieci czy altanę z grillem.
Pamiętaj
dostawa
Wysyłkę projektu ze wszystkimi dodatkami na terenie Polski bierzemy na siebie. Ty wybierasz, gdzie odbierzesz swój projekt. Masz do wyboru kuriera DPD lub punkty Paczkomat InPost 24/7.
zwroty

Masz 30 dni na zwrot i 365 dni na wymianę projektu

Inspiracje

Wnętrza
Wszystkie
Pokój dzienny
Kuchnia