pn.-pt. 8-20
![Egon bez garażu [B]](https://cdn.pgotowe.smcloud.net/t/Dom-dla-Ciebie/12166/views/projekt-egon-p1-maxbl_912x520_w.jpg)
Egon bez garażu [B] wersja lustrzana
![Egon bez garażu [B]](https://cdn.pgotowe.smcloud.net/t/Dom-dla-Ciebie/12166/views/projekt-egon-p1-maxbl_0x520_w.jpg)
![Egon bez garażu [B]](https://cdn.pgotowe.smcloud.net/t/Dom-dla-Ciebie/12166/views/projekt-egon-p2-maxbl_0x520_w.jpg)
![Egon bez garażu [B]](https://cdn.pgotowe.smcloud.net/t/Dom-dla-Ciebie/12166/plans/1_projekt-egon-rzut-parteru-max_0x520_w.jpg)
W nawiasach podano powierzchnie pomieszczenia netto
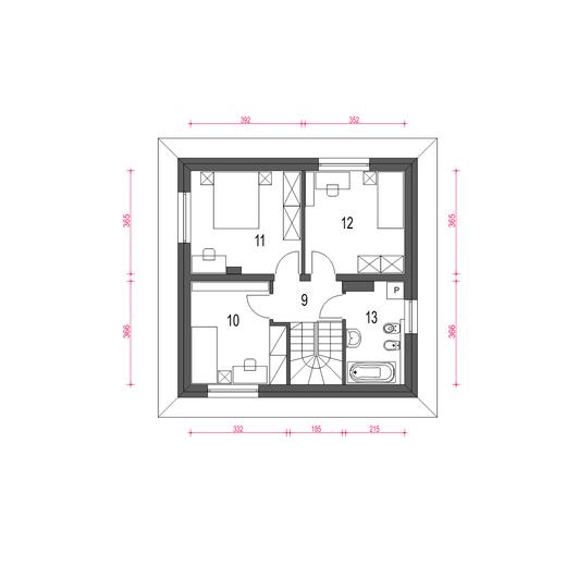
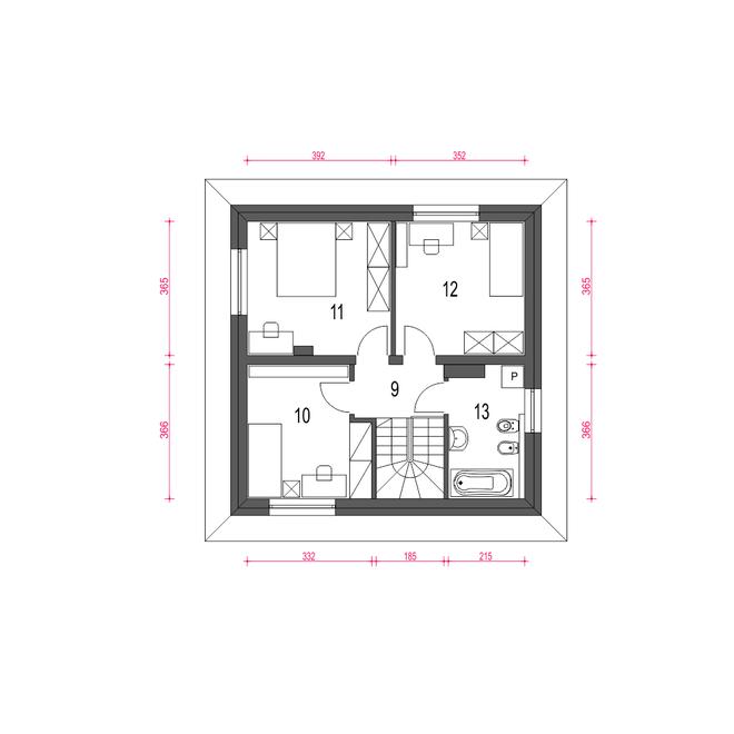
![Egon bez garażu [B]](https://cdn.pgotowe.smcloud.net/t/Dom-dla-Ciebie/12166/plans/1_projekt-egon-rzut-poddasza-max_0x520_w.jpg)
W nawiasach podano powierzchnie pomieszczenia netto
![Egon bez garażu [B]](https://cdn.pgotowe.smcloud.net/t/Dom-dla-Ciebie/12166/cross_sections/projekt-egon-przekroj_0x520_w.jpg)
![Egon bez garażu [B]](https://cdn.pgotowe.smcloud.net/t/Dom-dla-Ciebie/12166/elevations/projekt-egon-elewacja1-max_0x520_w.jpg)
![Egon bez garażu [B]](https://cdn.pgotowe.smcloud.net/t/Dom-dla-Ciebie/12166/elevations/projekt-egon-elewacja2-max_0x520_w.jpg)
![Egon bez garażu [B]](https://cdn.pgotowe.smcloud.net/t/Dom-dla-Ciebie/12166/elevations/projekt-egon-elewacja3-max_0x520_w.jpg)
![Egon bez garażu [B]](https://cdn.pgotowe.smcloud.net/t/Dom-dla-Ciebie/12166/elevations/projekt-egon-elewacja4-max_0x520_w.jpg)
Egon bez garażu [B]
wersja lustrzanaKoncepcja projektu
Nasi doradcy przedstawią szczegółowe informacje dotyczące projektu.
Projekt wycofany z oferty
Dodatki
Atrakcyjne rabaty
Kompleksowe wsparcie
Gwarancja najniższej ceny
Wygodne zakupy
Zgoda na zmiany w projekcie
Szczegółowa dokumentacja
Rzuty, przekrój, elewacje

W nawiasach podano powierzchnie pomieszczenia netto

W nawiasach podano powierzchnie pomieszczenia netto






Działka
Wybór działki to jedna z ważniejszych decyzji poprzedzających budowę wymarzonego domu. Oczywiście najważniejsza jest jej lokalizacja, ale trzeba także przeanalizować lokalne ograniczenia wyszczególnione w miejscowym planie zagospodarowania przestrzennego lub w warunkach zabudowy. Często zapisy w w/w dokumentach uniemożliwiają budowę wybranego projektu i trzeba szukać dalej.
Ważne jest także usytuowanie działki i domu względem stron świata, gdyż to właśnie decyduje o stopniu nasłonecznienia poszczególnych pomieszczeń. Dlatego każdy projekt oferujemy w dwóch wersjach: podstawowej oraz lustrzanej, aby można było wybrać najkorzystniejszy układ pomieszczeń względem stron świata, a także względem ukształtowania krajobrazu w otoczeniu działki.

Parametry
Opis projektu
Koszty
wytyczenie budynku i roboty ziemne; ławy i stopy fundamentowe; ściany podziemne z izolacjami cieplnymi i przeciwwilgociowymi
ściany murowane zewnętrzne i wewnętrzne; stropy i schody wewnętrzne; konstrukcja dachu z pokryciem, obróbkami, rynnami i rurami spustowymi; podłoża pod posadzki ( np. chudy beton)
Stan zero (wytyczenie budynku i roboty ziemne; ławy i stopy fundamentowe; ściany podziemne z izolacjami cieplnymi i przeciwwilgociowymi) oraz stan surowy (ściany murowane z zewnętrzne i wewnętrzne; stropy i schody wewnętrzne, konstrukcja dachu z pokryciem, obróbkami, rynnami i rurami spustowymi; podłoża pod posadzki (np. chudy beton), okna i drzwi zewnętrzne; bramy garażowe; warstwy wyrównawcze pod posadzki na gruncie i na stropie z izolacjami cieplnymi i przeciwwilgociowymi).
*
wewnętrzna instalacja oświetleniowa; instalacja gniazd wtykowych; instalacja siły oraz instalacja odgromowa i inne wewnętrzne instalacje teletechniczne
**
wewnętrzna instalacja wod. - kan. z przyborami sanitarnymi i bateriami; instalacja c.o. z kotłem i grzejnikami, bez kominka; instalacja gazowa bez osprzętu kuchennego; wentylacja mechaniczna ( jeśli występuje)
***
system dociepleń i tynki zewnętrzne z malowaniem; okładziny elewacyjne; balustrady, parapety zewnętrzne i inne roboty zewnętrzne np. taras, opaski wokół domu, schody zewnętrzne
***
tynki wewnętrzne, drzwi i okna wewnętrzne, lekkie ścianki działowe, roboty malarskie, posadzki i inne prace wykończeniowe
* w zależności od ilości punktów elektrycznych na 1m2
** w zależności od ilości punktów sanitarnych na 1m2 oraz ilości (odległości) instalacji rurowej
*** w zależności od rodzaju użytych meteriałów i specyfikacji wykończenia
Zmiany w projekcie
Jeśli zmiany, które chcesz wprowadzić nie są ujęte w powyższym zestawieniu, skontaktuj się z nami. Nasz architekt przeanalizuje i doradzi, które z Twoich propozycji warto wdrożyć. O zgodę na zmiany możesz wystąpić nie tylko w momencie zakupu projektu, ale także później i otrzymasz ją bezpłatnie w ciągu kilku dni.
Dokumentacja (zawartość pakietu projektowego)
3 egzemplarze projektu architektoniczno-budowlanego ze szczegółowym opisem
Dowiedz sie wiecej3 egzemplarze projektu technicznego (konstrukcja, instalacje: wodno-kanalizacyjna, c.o., elektryczna, gazowa (jeśli występują)) ze szczegółowym opisem
Dowiedz sie wiecejCharakterystyka energetyczna (jeśli dotyczy)
Bezpłatna pisemna zgoda na zmiany w projekcie (standardowo na 4 stronie projektu dołączamy ogólną zgodę na zmiany, w każdej chwili mogą Państwo otrzymać bezpłatnie dodatkową indywidualną zgodę na zmiany)
Kopia uprawnień projektantów
Dodatki
Pakiet dodatków, który otrzymasz razem z projektem




Masz 30 dni na zwrot i 365 dni na wymianę projektu
Dodatki w dobrej cenie
Dodatki możesz dobrać także w koszyku lub podczas zakupów u naszego doradcy.