pn.-pt. 8-20
 
            E13 G1 ENERGO PLUS wersja lustrzana
 
        
     
        
     
        
     
        
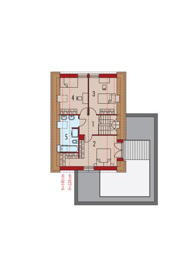
    W nawiasach podano powierzchnie pomieszczenia netto
 
        
    W nawiasach podano powierzchnie pomieszczenia netto
E13 G1 ENERGO PLUS
wersja lustrzanaKoncepcja projektu
Nasi doradcy przedstawią szczegółowe informacje dotyczące projektu.
Projekt wycofany z oferty
Dodatki
Atrakcyjne rabaty
Kompleksowe wsparcie
Gwarancja najniższej ceny
Wygodne zakupy
Zgoda na zmiany w projekcie
Szczegółowa dokumentacja
Rzuty, przekrój, elewacje
 
            
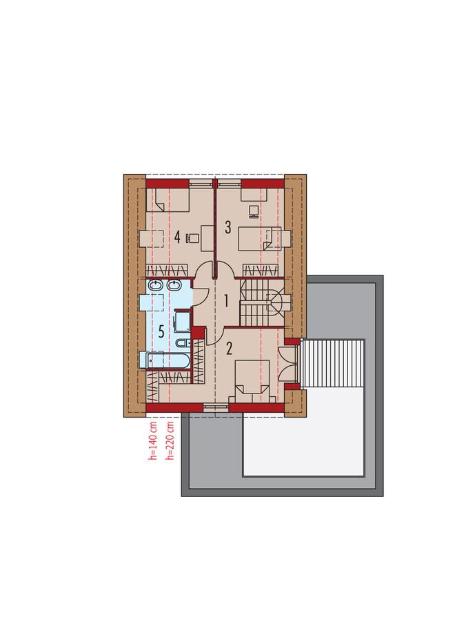
        W nawiasach podano powierzchnie pomieszczenia netto
 
            
        W nawiasach podano powierzchnie pomieszczenia netto
Działka
Wybór działki to jedna z ważniejszych decyzji poprzedzających budowę wymarzonego domu. Oczywiście najważniejsza jest jej lokalizacja, ale trzeba także przeanalizować lokalne ograniczenia wyszczególnione w miejscowym planie zagospodarowania przestrzennego lub w warunkach zabudowy. Często zapisy w w/w dokumentach uniemożliwiają budowę wybranego projektu i trzeba szukać dalej.
Ważne jest także usytuowanie działki i domu względem stron świata, gdyż to właśnie decyduje o stopniu nasłonecznienia poszczególnych pomieszczeń. Dlatego każdy projekt oferujemy w dwóch wersjach: podstawowej oraz lustrzanej, aby można było wybrać najkorzystniejszy układ pomieszczeń względem stron świata, a także względem ukształtowania krajobrazu w otoczeniu działki.
 
            Parametry
Opis projektu
Budynek zaprojektowano jako wysokoenergooszczędny, wyposażony w pompę ciepła oraz panele fotowoltaiczne. W projekcie przewidziano wentylację mechaniczną z rekuperacją. 
Charakterystyka: dom parterowy z poddaszem użytkowym, niepodpiwniczony, z garażem jednostanowiskowym
Przeznaczenie: dom dla 3-4-osobowej rodziny
Technologia i konstrukcja:
Fundamenty: ławy, bloczki betonowe 24 cm, ocieplenie styropian 15 cm
Ściany zewnętrzne: murowane, dwuwarstwowe, pustaki ceramiki poryzowanej 24 cm, ocieplenie styropian Termo Organika 20 cm
Ściany wewnętrzne: murowane, ściany nośne 24 cm, ścianki działowe 12 cm
Podłoga na gruncie: płyta betonowa, ocieplenie styropian 15 cm
Strop i stropodach nad garażem: strop międzypiętrowy gęstożebrowy Teriva, stropodach pełny: ocieplenie styropian 30 cm
Dach: konstrukcja drewniana, ocieplenie wełna mineralna Isover 30 cm, dachówka ceramiczna firmy Röben
Inne: schody wewnętrzne drewniane
Rozwiązania instalacyjne energooszczędne:
Ogrzewanie: pompa ciepła firmy Viessman, rozprowadzenie ciepła: ogrzewanie podłogowe firmy Purmo
Wentylacja: wentylacja mechaniczna z odzyskiem ciepła firmy Viessman
OZE: panele fotowoltaiczne firmy Viessman
Wykończenie:
Elewacja: tynk cienkowarstwowy mineralny i okładzina drewniana
Stolarka: drewniana, PCV lub aluminiowa. drzwi wejściowe i brama garażowa firmy Hörmann
Okna połaciowe: rozwiązania technologiczne firmy FAKRO
Wersje - zapytaj o dostępność:
- E13 ENERGO PLUS – bez garażu i z garażem dwustanowiskowym
-
 E13 ECONOMIC – wersja ze standardowymi instalacjami: kotłem gazowym i 
wentylacją grawitacyjną, inne wykończenie elewacji, taki sam układ 
funkcjonalny, różne wersje garaży
- E13 II ECONOMIC - wersja ze 
standardowymi instalacjami, inne wykończenie elewacji, podobny układ 
funkcjonalny, różne wersje garaży
- E13 III ECONOMIC - wersja ze 
standardowymi instalacjami, inne wykończenie elewacji, podobny układ 
funkcjonalny, system zabudowy ścian działowych i poddaszy firmy Rigips, 
różne wersje garaży
- Odbicie lustrzane do każdej wersji 
Istnieje techniczna możliwość:
- podpiwniczenia budynku
- zbliźniaczenia 
Atuty projektu okiem architekta:
- Znakomite parametry cieplne budynku
- Funkcjonalne i ergonomiczne wnętrze z podziałem na strefę dzienną na parterze i nocną na poddaszu
- Otwarta przestrzeń strefy dziennej integrująca życie rodzinne
- Główna sypialnia z garderobą i tarasem
- Dobrze doświetlona i ciekawie rozplanowana duża łazienka na poddaszu
- Wygodne, nowoczesne zadaszenie nad wejściem do budynku
- Niskie koszty ogrzewania przy pomocy pompy ciepła, która pracuje wielofunkcyjnie: grzeje, chłodzi i wytwarza ciepłą wodę
- Mniejsze zapotrzebowanie na ciepło dzięki możliwości odzysku podczas pracy wentylacji mechanicznej
- Wysoka jakość powietrza i kontrola procesu wentylacji w budynku
Koszty
wytyczenie budynku i roboty ziemne; ławy i stopy fundamentowe; ściany podziemne z izolacjami cieplnymi i przeciwwilgociowymi
ściany murowane zewnętrzne i wewnętrzne; stropy i schody wewnętrzne; konstrukcja dachu z pokryciem, obróbkami, rynnami i rurami spustowymi; podłoża pod posadzki ( np. chudy beton)
Stan zero (wytyczenie budynku i roboty ziemne; ławy i stopy fundamentowe; ściany podziemne z izolacjami cieplnymi i przeciwwilgociowymi) oraz stan surowy (ściany murowane z zewnętrzne i wewnętrzne; stropy i schody wewnętrzne, konstrukcja dachu z pokryciem, obróbkami, rynnami i rurami spustowymi; podłoża pod posadzki (np. chudy beton), okna i drzwi zewnętrzne; bramy garażowe; warstwy wyrównawcze pod posadzki na gruncie i na stropie z izolacjami cieplnymi i przeciwwilgociowymi).
*
wewnętrzna instalacja oświetleniowa; instalacja gniazd wtykowych; instalacja siły oraz instalacja odgromowa i inne wewnętrzne instalacje teletechniczne
**
wewnętrzna instalacja wod. - kan. z przyborami sanitarnymi i bateriami; instalacja c.o. z kotłem i grzejnikami, bez kominka; instalacja gazowa bez osprzętu kuchennego; wentylacja mechaniczna ( jeśli występuje)
***
system dociepleń i tynki zewnętrzne z malowaniem; okładziny elewacyjne; balustrady, parapety zewnętrzne i inne roboty zewnętrzne np. taras, opaski wokół domu, schody zewnętrzne
***
tynki wewnętrzne, drzwi i okna wewnętrzne, lekkie ścianki działowe, roboty malarskie, posadzki i inne prace wykończeniowe
* w zależności od ilości punktów elektrycznych na 1m2
** w zależności od ilości punktów sanitarnych na 1m2 oraz ilości (odległości) instalacji rurowej
*** w zależności od rodzaju użytych meteriałów i specyfikacji wykończenia
Zmiany w projekcie
Jeśli zmiany, które chcesz wprowadzić nie są ujęte w powyższym zestawieniu, skontaktuj się z nami. Nasz architekt przeanalizuje i doradzi, które z Twoich propozycji warto wdrożyć. O zgodę na zmiany możesz wystąpić nie tylko w momencie zakupu projektu, ale także później i otrzymasz ją bezpłatnie w ciągu kilku dni.
Dokumentacja (zawartość pakietu projektowego)
3 egzemplarze projektu architektoniczno-budowlanego ze szczegółowym opisem
Dowiedz sie wiecej tralalala lalatral2 egzemplarze projektu technicznego (architektura, konstrukcja, instalacje: wodno-kanalizacyjna, c.o., elektryczna, gazowa (jeśli występują)) ze szczegółowym opisem
Charakterystyka energetyczna w dwóch egzemplarzach (jeśli dotyczy)
Materiały pomocnicze (zestawienie więźby dachowej, wykaz materiałów instalacyjnych, obliczenia statyczne)
Oświadczenie projektantów – wymagane prawem potwierdzenie, że projekt został sporządzony zgodnie z obowiązującymi przepisami oraz zasadami wiedzy technicznej
Obowiązki architekta adaptującego – wykaz i zakres prac niezbędny do przystosowania domu do warunków lokalnych panujących na działce i stworzenia projektu budowlanego
Informacje o alternatywnych rozwiązaniach technicznych i instalacyjnych – wyjaśnienie konieczności zastosowania w projekcie jednoznacznych rozwiązań projektowych
Dodatki
Pakiet dodatków, który otrzymasz razem z projektem
 
             
             
            Masz 30 dni na zwrot i 365 dni na wymianę projektu
Dodatki w dobrej cenie
Dodatki możesz dobrać także w koszyku lub podczas zakupów u naszego doradcy.
 
    
 
    
 
    
 
    
 
            
            
         
            
            
         
            
            
         
            
            
         
            
            
         
                     
                     
                     
                     
                     
                     
                     
                    