pn.-pt. 8-20
 
            Dom z Widokiem 3 wersja lustrzana
 
        
     
        
     
        
     
        
     
        
     
        
     
        
     
        
     
        
     
        
     
        
     
        
     
        
     
        
     
        
     
        
     
        
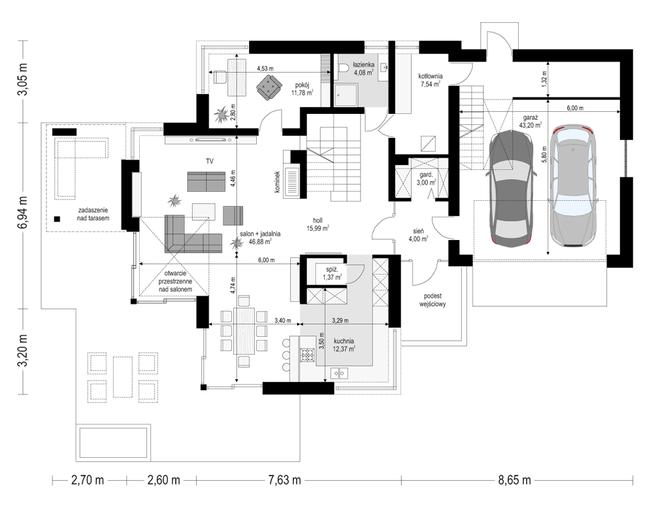
    W nawiasach podano powierzchnie pomieszczenia netto
 
        
    W nawiasach podano powierzchnie pomieszczenia netto
 
        
     
        
     
        
     
        
    Dom z Widokiem 3
wersja lustrzanaKoncepcja projektu
Nasi doradcy przedstawią szczegółowe informacje dotyczące projektu.
Projekt wycofany z oferty
Dodatki
Atrakcyjne rabaty
Kompleksowe wsparcie
Gwarancja najniższej ceny
Wygodne zakupy
Zgoda na zmiany w projekcie
Szczegółowa dokumentacja
Rzuty, przekrój, elewacje
 
            
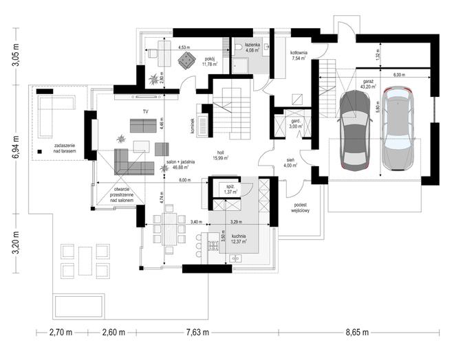
        W nawiasach podano powierzchnie pomieszczenia netto
 
            
        W nawiasach podano powierzchnie pomieszczenia netto
 
                    
                 
                     
                     
                     
                    Działka
Wybór działki to jedna z ważniejszych decyzji poprzedzających budowę wymarzonego domu. Oczywiście najważniejsza jest jej lokalizacja, ale trzeba także przeanalizować lokalne ograniczenia wyszczególnione w miejscowym planie zagospodarowania przestrzennego lub w warunkach zabudowy. Często zapisy w w/w dokumentach uniemożliwiają budowę wybranego projektu i trzeba szukać dalej.
Ważne jest także usytuowanie działki i domu względem stron świata, gdyż to właśnie decyduje o stopniu nasłonecznienia poszczególnych pomieszczeń. Dlatego każdy projekt oferujemy w dwóch wersjach: podstawowej oraz lustrzanej, aby można było wybrać najkorzystniejszy układ pomieszczeń względem stron świata, a także względem ukształtowania krajobrazu w otoczeniu działki.
 
            Parametry
Opis projektu
Koszty
wytyczenie budynku i roboty ziemne; ławy i stopy fundamentowe; ściany podziemne z izolacjami cieplnymi i przeciwwilgociowymi
ściany murowane zewnętrzne i wewnętrzne; stropy i schody wewnętrzne; konstrukcja dachu z pokryciem, obróbkami, rynnami i rurami spustowymi; podłoża pod posadzki ( np. chudy beton)
Stan zero (wytyczenie budynku i roboty ziemne; ławy i stopy fundamentowe; ściany podziemne z izolacjami cieplnymi i przeciwwilgociowymi) oraz stan surowy (ściany murowane z zewnętrzne i wewnętrzne; stropy i schody wewnętrzne, konstrukcja dachu z pokryciem, obróbkami, rynnami i rurami spustowymi; podłoża pod posadzki (np. chudy beton), okna i drzwi zewnętrzne; bramy garażowe; warstwy wyrównawcze pod posadzki na gruncie i na stropie z izolacjami cieplnymi i przeciwwilgociowymi).
*
wewnętrzna instalacja oświetleniowa; instalacja gniazd wtykowych; instalacja siły oraz instalacja odgromowa i inne wewnętrzne instalacje teletechniczne
**
wewnętrzna instalacja wod. - kan. z przyborami sanitarnymi i bateriami; instalacja c.o. z kotłem i grzejnikami, bez kominka; instalacja gazowa bez osprzętu kuchennego; wentylacja mechaniczna ( jeśli występuje)
***
system dociepleń i tynki zewnętrzne z malowaniem; okładziny elewacyjne; balustrady, parapety zewnętrzne i inne roboty zewnętrzne np. taras, opaski wokół domu, schody zewnętrzne
***
tynki wewnętrzne, drzwi i okna wewnętrzne, lekkie ścianki działowe, roboty malarskie, posadzki i inne prace wykończeniowe
* w zależności od ilości punktów elektrycznych na 1m2
** w zależności od ilości punktów sanitarnych na 1m2 oraz ilości (odległości) instalacji rurowej
*** w zależności od rodzaju użytych meteriałów i specyfikacji wykończenia
Zmiany w projekcie
Jeśli zmiany, które chcesz wprowadzić nie są ujęte w powyższym zestawieniu, skontaktuj się z nami. Nasz architekt przeanalizuje i doradzi, które z Twoich propozycji warto wdrożyć. O zgodę na zmiany możesz wystąpić nie tylko w momencie zakupu projektu, ale także później i otrzymasz ją bezpłatnie w ciągu kilku dni.
Pliki do pobrania
Dokumentacja (zawartość pakietu projektowego)
W komplecie dokumentacji projektowej znajdują się 3 egzemplarze projektu architektoniczno-budowlanego oraz 3 egzemplarze projektu technicznego
Projekt architektoniczno-budowlany zawiera: opis architektoniczny z elementami konstrukcji. Część rysunkowa: rzut parteru, poddasza/piętra, rzut dachu w skali 1:100, przekroje skala 1:50, elewacje skala 1:100
Projekt techniczny zawiera: opis techniczny i konstrukcyjny (obliczenia statyczne - w zależności od projektu włączone w projekt lub stanowiące odrębną teczkę).
Część rysunkowa architektura i konstrukcja: rzuty fundamentów, parteru, poddasza, stropu, więźby, dachu, przekroje, elewacje, zestawienie stolarki budowlanej okiennej i drzwiowej, szczegóły konstrukcji i ewentualne szczegóły budowlane
Część instalacyjna: część opisowa do projektów instalacji elektrycznych, wodno-kanalizacyjnych, grzewczych, gazowych (jeśli występują)
Część rysunkowa do projektów instalacji: schematy instalacji elektrycznych, schemat rozdzielni, plan instalacji odgromowej, schematy instalacji wod.-kan. i ciepłej wody, schematy instalacji grzewczych, schemat instalacji gazowej (jeśli występują)
Do projektu dołączane jest zestawienie materiałowe, obejmujące przedmiar robót, z wykazem elementów drewnianych oraz stali budowlanej
Dodatki
Pakiet dodatków, który otrzymasz razem z projektem
 
             
             
            Masz 30 dni na zwrot i 365 dni na wymianę projektu
Dodatki w dobrej cenie
Dodatki możesz dobrać także w koszyku lub podczas zakupów u naszego doradcy.
Inspiracje
 
                     
                     
                     
                     
                     
                     
                     
                     
                     
                     
                     
                     
    
 
    
 
    
 
    
 
    
 
    
 
    
 
    
 
    
 
    
 
    
 
    
 
    
 
    
 
    
 
            
            
         
            
            
         
            
            
         
            
            
         
            
            
         
            
            
         
            
            
         
            
            
         
                     
                    