+48 22 59 05 000

pn.-pt. 8-20

Kontakt i pomoc^
Kontakt i pomoc
Zamów rozmowę
Napisz do nas
Pomoc w kredycie
Bezpłatna analiza działki
logo
ulubione 0
REKLAMA
REKLAMA
MG0859

Dom na Zgrabnej

wersja lustrzana
Rzuty
Działka
Parametry
Podobne
Zmiany
Dokumentacja
Dodatki
Inspiracje
REKLAMA

Rzuty, przekrój, elewacje

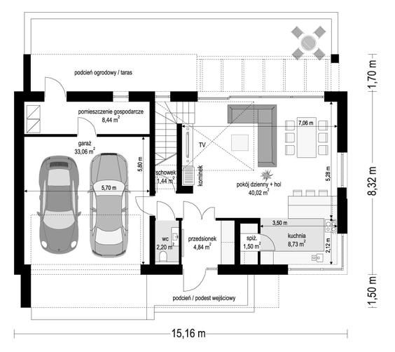
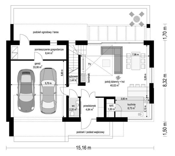
Parter 58,71 m2
Wersja lustrzana
Pomieszczenie Użytkowa
1
przedsionek
4,84 m2
2
wc
2,2 m2
3
schowek
1,42 m2
4
pokój dzienny + komunikacja
40,02 m2
5
kuchnia
8,73 m2
6
spiżarnia
1,5 m2
Razem 58,71 m2
7
kotłownia + pom. gosp.
8,44 m2
8
garaż
33,06 m2

W nawiasach podano powierzchnie pomieszczenia netto

Poddasze 75,52 m2
Wersja lustrzana
Pomieszczenie Użytkowa
1
hol
9,41 m2
2
sypialnia (18,01)
15,94 m2
3
sypialnia (20,15)
17,59 m2
4
sypialnia (17,25)
15,63 m2
5
garderoba (6,4)
5,31 m2
6
łazienka (6,18)
5,0 m2
7
łazienka (8,4)
6,64 m2
Razem 75,52 m2

W nawiasach podano powierzchnie pomieszczenia netto

Elewacje
Wersja lustrzana
Elewacja 1
Elewacja 1
Elewacja 2
Elewacja 3
Elewacja 4
REKLAMA

Działka

Wybór działki to jedna z ważniejszych decyzji poprzedzających budowę wymarzonego domu. Oczywiście najważniejsza jest jej lokalizacja, ale trzeba także przeanalizować lokalne ograniczenia wyszczególnione w miejscowym planie zagospodarowania przestrzennego lub w warunkach zabudowy. Często zapisy w w/w dokumentach uniemożliwiają budowę wybranego projektu i trzeba szukać dalej.

Ważne jest także usytuowanie działki i domu względem stron świata, gdyż to właśnie decyduje o stopniu nasłonecznienia poszczególnych pomieszczeń. Dlatego każdy projekt oferujemy w dwóch wersjach: podstawowej oraz lustrzanej, aby można było wybrać najkorzystniejszy układ pomieszczeń względem stron świata, a także względem ukształtowania krajobrazu w otoczeniu działki.

Wymiary działki
Wymiary działki (szerokość x głębokość), na której możliwe jest wybudowanie domu. Wynikają one z wymiarów budynku powiększonych o wymagane przepisami odległości poszczególnych elementów budynku od granic działki. Rzeczywistą odległość od drogi należy sprawdzić i dostosować do wymogów zawartych w MPZA lub WZ.
23.16 x 17.52 m
Przekrój
Wersja lustrzana

Parametry

Dane Techniczne
Technologia i materiały
Parametry cieplne
Powierzchnia użytkowa
Suma powierzchni pomieszczeń mierzona po wewnętrznym obrysie ścian. Na jej wielkość ma wpływ wysokość pomieszczenia i jest liczona: – w 100% – przy wysokości w świetle powyżej 2,2 m, – w 50% – przy wysokości między 1,4 m a 2,2 m, – pomija się – przy wysokości poniżej 1,4 m. Do powierzchni użytkowej domu nie dolicza się powierzchni niektórych pomieszczeń, np. piwnicy, garażu, kotłowni, strychu.
134,23 m2
Powierzchnia zabudowy
Powierzchnia mierzona po obrysie zewnętrznych krawędzi wykończonego budynku z uwzględnieniem powierzchni nadwieszonych (np. wykusz). Nie dolicza się do niej elementów drugorzędnych (np. schodów zewnętrznych, daszków, ramp) oraz elementów niewystających ponad powierzchnię terenu
127,42 m2
Powierzchnia netto
Powierzchnia wszystkich pomieszczeń budynku mierzona na poziomie podłogi, po wewnętrznym obrysie ścian w stanie wykończonym. Na jej wartość nie wpływa wysokość pomieszczeń.
142,67 m2
Powierzchnia całkowita
Suma powierzchni całkowitych wszystkich kondygnacji (w tym znajdujących się całkowicie lub częściowo poniżej poziomu terenu) mierzona po zewnętrznym obrysie ścian (wraz z ociepleniem) oraz wszystkich elementów wykraczających poza kubaturę, np. tarasy, schody zewnętrzne, balkony, podcienie, zjazdy do garaży, itp.
213,33 m2
Powierzchnia dodatkowa
Dodatkowe powierzchnie niewliczane do powierzchni użytkowej: piwnica + garaż + kotłownia + strych + poddasze do adaptacji.
33,06 m2
Powierzchnia garażu
33,06 m2
Powierzchnia dachu
173,02 m2
Kąt nachylenia dachu
42°
Kubatura
Objętość budynku liczona wraz z przegrodami zewnętrznymi i wewnętrznymi (ścianami, stropem, dachem i podmurówką)
663 m3
Wysokość budynku
Wysokość mierzona od poziomu terenu przy wejściu do budynku do najwyższego punktu dachu – kalenicy
8,6 m
Wysokość parteru
Podana wartość to wysokość pomieszczeń parteru w stanie wykończonym, mierzona od poziomu posadzki do spodu sufitu.
2,7 m
Wysokość poddasza / piętra
Dla poddasza podano zakres wysokości. Pierwsza podana wartość to minimalna wysokość pomieszczenia w stanie wykończonym (mierzona przy ściance kolankowej lub tzw. przedściance - o ile występuje), druga wartość to maksymalna wysokość pomieszczenia mierzona od poziomu posadzki do płyt wykończeniowych mocowanych do elementów konstrukcyjnych ograniczających przestrzeń pomieszczeń. Dla piętra podana wartość to wysokość pomieszczeń piętra w stanie wykończonym, mierzona od poziomu posadzki do spodu sufitu.
2,65  m
Wymiary budynku
15,16 x 8,32 m
Wymiary działki
Wymiary działki (szerokość x głębokość), na której możliwe jest wybudowanie domu. Wynikają one z wymiarów budynku powiększonych o wymagane przepisami odległości poszczególnych elementów budynku od granic działki. Rzeczywistą odległość od drogi należy sprawdzić i dostosować do wymogów zawartych w MPZA lub WZ
23,16 x 17,52 m
Pokoje (z salonem)
Liczba wszystkich pokoi
4
Łazienki i wc
Suma łazienek i wc
3
Miejsca postojowe
Suma miejsc postojowych (garaż + wiata garażowa)
2
Sezonowość
Całoroczny
REKLAMA

Opis projektu

Projekt domu Dom na Zgrabnej , jest budynek parterowy z poddaszem użytkowym przeznaczonym dla 4 - 5-osobowej rodziny. Zaprojektowany na prostokątnym rzucie, przykryty dwuspadowym bezokapowym dachem, z dodatkowymi zadaszeniami nad wejściem i nad tarasem ogrodowym. Dom oparty jest na nowoczesnej stylistyce, z wykorzystaniem minimalistycznych detali. Dwuspadowy dach przykryty jest płaską dachówką ceramiczną. Od strony ogrodowej cała połać dachu może być przeznaczona na montaż paneli fotowoltaicznych.
Fasady domu to skontrastowane ze sobą białe tynkowane ściany, ze wstawkami z deski elewacyjnej i z płyt betonowych (lub HPL). Duże przeszklenia otwierają wnętrze na otaczający ogród, nadając sylwetce domu nowoczesny styl. We frontowej elewacji wyeksponowane zostało szerokie, reprezentacyjne wejście. Po obu stronach elewacji umieszczono drzwi garażowe i narożne okno kuchni. Zadaszenie nad wejściem zostało podkreślone liniowym oświetleniem i ozdobnym stalowym słupem HEB.
Elewację ogrodową zdobi zadaszenie przechodzące w przydomową pergolę nad tarasem. Duże przeszklenie z salonu otwiera pokój dzienny na taras. Wnętrze domu podzielone zostało na trzy strefy: przestrzeń dzienną i garażowo-gospodarczą na parterze oraz sypialnie na poddaszu.
Parter i poddasze zostały wizualnie i przestrzennie połączone pustką/antresolą nad salonem. Do domu wchodzimy przez obszerny przedsionek, wprost do części dziennej łączącej salon, hol i kuchnię w jedną całość. Centralnym elementem jest tutaj ściana telewizyjno-kominkowa przy klatce schodowej. Za schodami znajduje się dwustanowiskowy garaż i duże pomieszczenie gospodarcze/kotłownia.
Na poddaszu zaprojektowano trzy pokoje sypialne: duże pokoje dziecięce z własną łazienką oraz apartament master z oddzielną łazienką i garderobą. Całość poddasza łączy hol, antresola z otwarciem na pustkę nad salonem.
Budynek ma prostą konstrukcję i architekturę – powinien być łatwy i niedrogi w budowie. Prosta bryła bez udziwnień, oraz dobre izolacje przegród zewnętrznych, w połączeniu z wydajnymi instalacjami grzewczymi dają w rezultacie budynek energooszczędny. Ogrzewanie budynku bazowo zasilane jest kotłem gazowym kondensacyjnym lub pompą ciepła. Można tutaj też zastosować kocioł na paliwo stałe.
Projekt dostępny jest, także w wersji odbicia lustrzanego.
REKLAMA

Zmiany w projekcie

Zobacz zakres zmian, które możesz wprowadzić, w tym projekcie bez zgody autora.
Lista możliwych zmian

Jeśli zmiany, które chcesz wprowadzić nie są ujęte w powyższym zestawieniu, skontaktuj się z nami. Nasz architekt przeanalizuje i doradzi, które z Twoich propozycji warto wdrożyć. O zgodę na zmiany możesz wystąpić nie tylko w momencie zakupu projektu, ale także później i otrzymasz ją bezpłatnie w ciągu kilku dni.

Dokumentacja (zawartość pakietu projektowego)

Dodatki

Pakiet dodatków, który otrzymasz razem z projektem

addon
Teczka inwestora
Do przechowywania niezbędnej dokumentacji
addon
Kupony rabatowe na zakupy
Dzięki którym zaoszczędzisz nawet kilkanaście tysięcy złotych.
addon
Projekty małej architektury
Wybudujesz samodzielnie m.in. domek dla dzieci czy altanę z grillem.
Pamiętaj
dostawa
Wysyłkę projektu ze wszystkimi dodatkami na terenie Polski bierzemy na siebie. Ty wybierasz, gdzie odbierzesz swój projekt. Masz do wyboru kuriera DPD lub punkty Paczkomat InPost 24/7.
zwroty

Masz 30 dni na zwrot i 365 dni na wymianę projektu

Inspiracje

Wnętrza
Wszystkie
Pokój dzienny