+48 22 59 05 000

pn.-pt. 8-20

Kontakt i pomoc^
Kontakt i pomoc
Zamów rozmowę
Napisz do nas
Pomoc w kredycie
Bezpłatna analiza działki
logo
ulubione 0
REKLAMA
REKLAMA
MG0861

Dom na Zgrabnej 3

wersja lustrzana
Rzuty
Działka
Parametry
Podobne
Zmiany
Dokumentacja
Dodatki
Inspiracje
REKLAMA

Rzuty, przekrój, elewacje

Parter 58,7 m2
Wersja lustrzana
Pomieszczenie Użytkowa
1
przedsionek
4,84 m2
2
wc
2,2 m2
3
schowek
1,42 m2
4
pokój dzienny + komunikacja
39,84 m2
5
kuchnia
8,9 m2
6
spiżarnia
1,5 m2
Razem 58,7 m2
7
kotłownia + pom. gosp.
8,44 m2
8
garaż
33,06 m2

W nawiasach podano powierzchnie pomieszczenia netto

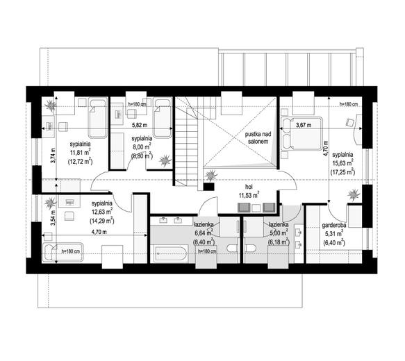
Poddasze 76,55 m2
Wersja lustrzana
Pomieszczenie Użytkowa
1
hol
11,53 m2
2
sypialnia (14,29)
12,63 m2
2
sypialnia (12,72)
11,81 m2
3
sypialnia (8,8)
8,0 m2
4
sypialnia (17,25)
15,63 m2
5
garderoba (6,4)
5,31 m2
6
łazienka (6,18)
5,0 m2
7
łazienka (8,4)
6,64 m2
Razem 76,55 m2

W nawiasach podano powierzchnie pomieszczenia netto

Elewacje
Wersja lustrzana
Elewacja 1
Elewacja 1
Elewacja 2
Elewacja 3
Elewacja 4
REKLAMA

Działka

Wybór działki to jedna z ważniejszych decyzji poprzedzających budowę wymarzonego domu. Oczywiście najważniejsza jest jej lokalizacja, ale trzeba także przeanalizować lokalne ograniczenia wyszczególnione w miejscowym planie zagospodarowania przestrzennego lub w warunkach zabudowy. Często zapisy w w/w dokumentach uniemożliwiają budowę wybranego projektu i trzeba szukać dalej.

Ważne jest także usytuowanie działki i domu względem stron świata, gdyż to właśnie decyduje o stopniu nasłonecznienia poszczególnych pomieszczeń. Dlatego każdy projekt oferujemy w dwóch wersjach: podstawowej oraz lustrzanej, aby można było wybrać najkorzystniejszy układ pomieszczeń względem stron świata, a także względem ukształtowania krajobrazu w otoczeniu działki.

Wymiary działki
Wymiary działki (szerokość x głębokość), na której możliwe jest wybudowanie domu. Wynikają one z wymiarów budynku powiększonych o wymagane przepisami odległości poszczególnych elementów budynku od granic działki. Rzeczywistą odległość od drogi należy sprawdzić i dostosować do wymogów zawartych w MPZA lub WZ.
23.16 x 17.52 m
Przekrój
Wersja lustrzana

Parametry

Dane Techniczne
Technologia i materiały
Parametry cieplne
Powierzchnia użytkowa
Suma powierzchni pomieszczeń mierzona po wewnętrznym obrysie ścian. Na jej wielkość ma wpływ wysokość pomieszczenia i jest liczona: – w 100% – przy wysokości w świetle powyżej 2,2 m, – w 50% – przy wysokości między 1,4 m a 2,2 m, – pomija się – przy wysokości poniżej 1,4 m. Do powierzchni użytkowej domu nie dolicza się powierzchni niektórych pomieszczeń, np. piwnicy, garażu, kotłowni, strychu.
135,27 m2
Powierzchnia zabudowy
Powierzchnia mierzona po obrysie zewnętrznych krawędzi wykończonego budynku z uwzględnieniem powierzchni nadwieszonych (np. wykusz). Nie dolicza się do niej elementów drugorzędnych (np. schodów zewnętrznych, daszków, ramp) oraz elementów niewystających ponad powierzchnię terenu
127,98 m2
Powierzchnia netto
Powierzchnia wszystkich pomieszczeń budynku mierzona na poziomie podłogi, po wewnętrznym obrysie ścian w stanie wykończonym. Na jej wartość nie wpływa wysokość pomieszczeń.
143,71 m2
Powierzchnia całkowita
Suma powierzchni całkowitych wszystkich kondygnacji (w tym znajdujących się całkowicie lub częściowo poniżej poziomu terenu) mierzona po zewnętrznym obrysie ścian (wraz z ociepleniem) oraz wszystkich elementów wykraczających poza kubaturę, np. tarasy, schody zewnętrzne, balkony, podcienie, zjazdy do garaży, itp.
213,89 m2
Powierzchnia dodatkowa
Dodatkowe powierzchnie niewliczane do powierzchni użytkowej: piwnica + garaż + kotłownia + strych + poddasze do adaptacji.
33,06 m2
Powierzchnia garażu
33,06 m2
Powierzchnia dachu
173,7 m2
Kąt nachylenia dachu
42°
Kubatura
Objętość budynku liczona wraz z przegrodami zewnętrznymi i wewnętrznymi (ścianami, stropem, dachem i podmurówką)
668 m3
Wysokość budynku
Wysokość mierzona od poziomu terenu przy wejściu do budynku do najwyższego punktu dachu – kalenicy
8,6 m
Wysokość parteru
Podana wartość to wysokość pomieszczeń parteru w stanie wykończonym, mierzona od poziomu posadzki do spodu sufitu.
2,7 m
Wysokość poddasza / piętra
Dla poddasza podano zakres wysokości. Pierwsza podana wartość to minimalna wysokość pomieszczenia w stanie wykończonym (mierzona przy ściance kolankowej lub tzw. przedściance - o ile występuje), druga wartość to maksymalna wysokość pomieszczenia mierzona od poziomu posadzki do płyt wykończeniowych mocowanych do elementów konstrukcyjnych ograniczających przestrzeń pomieszczeń. Dla piętra podana wartość to wysokość pomieszczeń piętra w stanie wykończonym, mierzona od poziomu posadzki do spodu sufitu.
2,65  m
Wymiary budynku
15,56 x 8,32 m
Wymiary działki
Wymiary działki (szerokość x głębokość), na której możliwe jest wybudowanie domu. Wynikają one z wymiarów budynku powiększonych o wymagane przepisami odległości poszczególnych elementów budynku od granic działki. Rzeczywistą odległość od drogi należy sprawdzić i dostosować do wymogów zawartych w MPZA lub WZ
23,16 x 17,52 m
Pokoje (z salonem)
Liczba wszystkich pokoi
5
Łazienki i wc
Suma łazienek i wc
3
Miejsca postojowe
Suma miejsc postojowych (garaż + wiata garażowa)
2
Sezonowość
Całoroczny
REKLAMA

Opis projektu

Projekt domu Dom na Zgrabnej 3 , jest budynek zaprojektowany jako parterowy z poddaszem użytkowym przeznaczonym dla 4 - 5-osobowej rodziny, w stylistyce bryły „domu-stodoły”. Zaprojektowany na planie prostokąta, z wykończeniem dachu i elewacji w jednym materiale, z wysoką ścianą kolankową i ozdobnymi zadaszeniami nad wejściem i nad tarasem. Stylistyka budynku jest nowoczesna, minimalistyczna, z oszczędnym językiem detali. Bryła budynku wykończona jest jednym materiałem - blachą na rąbek na ścianach i połaciach dachów, z kontrastowymi szczytami domu z okładziną drewnianą. Od strony ogrodowej cała połać dachu może być przeznaczona do ułożenia paneli fotowoltaicznych.
Wejście do budynku od strony elewacji frontowej podkreślone zostało kontrastowym wykończeniem ścian, oraz oświetleniem liniowym zainstalowanym w zadaszeniu nad podestem wejściowym. Fasada frontowa jest raczej zamknięta, natomiast elewacja tylna otwiera szerokim przeszkleniem wnętrze domu na taras i otaczający dom ogród. Wnętrze domu podzielone zostało funkcjonalnie na przestrzeń dzienną i cześć garażowo-gospodarczą na parterze, oraz pokoje domowników na poddaszu. Parter i poddasze zostały połączono pustką - antresolą nad salonem. Do domu wchodzimy wygodnym przedsionkiem z szafami, wprost do części dziennej połączonych pomieszczeń salonu, holu i kuchni.
Na poddaszu przewidziano cztery pokoje sypialne, w tym apartament master z własną łazienką i garderobą.
Budynek ma prostą konstrukcję, dzięki czemu będzie łatwy i niedrogi w budowie, oraz późniejszej eksploatacji. Bardzo dobre izolacje termiczne, prosta bryła, oraz nowoczesne wydajne instalacje dają w połączeniu budynek energooszczędny. Ogrzewanie budynku bazowo zasilane jest kotłem gazowym kondensacyjnym lub pompą ciepła. Można tutaj też zastosować kocioł na paliwo stałe. Dom na Zgrabnej 3 , to propozycja wygodnego nowoczesnego domu jednorodzinnego, o oryginalnej minimalistycznej architekturze. Dom dla Inwestorów chcących się trochę wyróżnić i mieć dom nieprzeciętny, ciekawszy od sąsiadów.
Projekt dostępny jest, także w wersji odbicia lustrzanego.
REKLAMA

Zmiany w projekcie

Zobacz zakres zmian, które możesz wprowadzić, w tym projekcie bez zgody autora.
Lista możliwych zmian

Jeśli zmiany, które chcesz wprowadzić nie są ujęte w powyższym zestawieniu, skontaktuj się z nami. Nasz architekt przeanalizuje i doradzi, które z Twoich propozycji warto wdrożyć. O zgodę na zmiany możesz wystąpić nie tylko w momencie zakupu projektu, ale także później i otrzymasz ją bezpłatnie w ciągu kilku dni.

Dokumentacja (zawartość pakietu projektowego)

Dodatki

Pakiet dodatków, który otrzymasz razem z projektem

addon
Teczka inwestora
Do przechowywania niezbędnej dokumentacji
addon
Kupony rabatowe na zakupy
Dzięki którym zaoszczędzisz nawet kilkanaście tysięcy złotych.
addon
Projekty małej architektury
Wybudujesz samodzielnie m.in. domek dla dzieci czy altanę z grillem.
Pamiętaj
dostawa
Wysyłkę projektu ze wszystkimi dodatkami na terenie Polski bierzemy na siebie. Ty wybierasz, gdzie odbierzesz swój projekt. Masz do wyboru kuriera DPD lub punkty Paczkomat InPost 24/7.
zwroty

Masz 30 dni na zwrot i 365 dni na wymianę projektu

Inspiracje

Wnętrza
Wszystkie
Pokój dzienny