+48 22 59 05 000

pn.-pt. 8-20

Kontakt i pomoc^
Kontakt i pomoc
Zamów rozmowę
Umów wideorozmowę
Napisz do nas
Pomoc w kredycie
Bezpłatna analiza działki
logo
ulubione 0
REKLAMA
REKLAMA
DD1635

Dom Dla Ciebie 5 z garażem 2-st. [A3]

wersja lustrzana
Kupując u nas, zyskujesz więcej

Dodatki

Atrakcyjne rabaty

Kompleksowe wsparcie

Gwarancja najniższej ceny

Wygodne zakupy

Zgoda na zmiany w projekcie

Szczegółowa dokumentacja

Rzuty
Działka
Parametry
Koszty
Podobne
Zmiany
Dokumentacja
Dodatki
REKLAMA

Rzuty, przekrój, elewacje

Parter 60,3 m2
Wersja lustrzana
Pomieszczenie Użytkowa
1
wiatrołap
4,3 m2
2
hol
7,7 m2
3
kuchnia ze spiżarnią
8,3 m2
4
pokój dzienny + jadalnia
24,8 m2
5
łazienka
3,7 m2
7
schody
3,0 m2
8
pokój
8,5 m2
Razem 60,3 m2
6
pralnia
6,4 m2
9
kotłownia
6,6 m2
10
garaż
37,4 m2

W nawiasach podano powierzchnie pomieszczenia netto

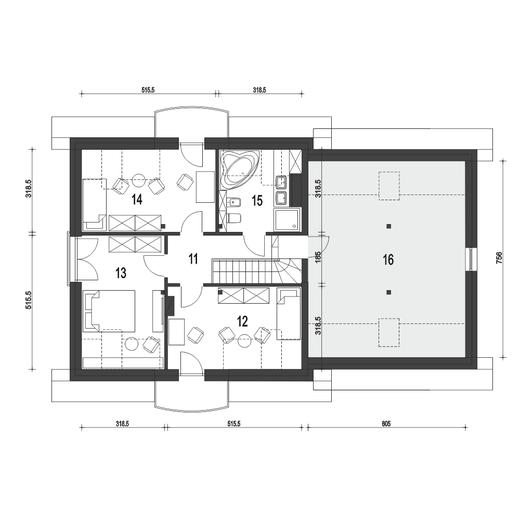
Poddasze 51 m2
Wersja lustrzana
Pomieszczenie Użytkowa
11
korytarz
6,4 m2
12
sypialnia (16,0)
12,6 m2
13
sypialnia (16,2)
12,9 m2
14
sypialnia (16,2)
12,8 m2
15
łazienka (9,4)
6,3 m2
Razem 51,0 m2
16
strych (45,3)
29,9 m2

W nawiasach podano powierzchnie pomieszczenia netto

Przekrój
Wersja lustrzana
Przekrój
Kąt nachylenia dachu 40°
Wysokość budynku 8,6 m
Elewacje
Wersja lustrzana
Elewacja 1
Elewacja 1
Elewacja 2
Elewacja 3
Elewacja 4
REKLAMA

Działka

Wybór działki to jedna z ważniejszych decyzji poprzedzających budowę wymarzonego domu. Oczywiście najważniejsza jest jej lokalizacja, ale trzeba także przeanalizować lokalne ograniczenia wyszczególnione w miejscowym planie zagospodarowania przestrzennego lub w warunkach zabudowy. Często zapisy w w/w dokumentach uniemożliwiają budowę wybranego projektu i trzeba szukać dalej.

Ważne jest także usytuowanie działki i domu względem stron świata, gdyż to właśnie decyduje o stopniu nasłonecznienia poszczególnych pomieszczeń. Dlatego każdy projekt oferujemy w dwóch wersjach: podstawowej oraz lustrzanej, aby można było wybrać najkorzystniejszy układ pomieszczeń względem stron świata, a także względem ukształtowania krajobrazu w otoczeniu działki.

Wymiary działki
Wymiary działki (szerokość x głębokość), na której możliwe jest wybudowanie domu. Wynikają one z wymiarów budynku powiększonych o wymagane przepisami odległości poszczególnych elementów budynku od granic działki. Rzeczywistą odległość od drogi należy sprawdzić i dostosować do wymogów zawartych w MPZA lub WZ.
24.00 x 17.40 m
Przekrój
Wersja lustrzana

Parametry

Dane Techniczne
Technologia i materiały
Parametry cieplne
Powierzchnia użytkowa
Suma powierzchni pomieszczeń mierzona po wewnętrznym obrysie ścian. Na jej wielkość ma wpływ wysokość pomieszczenia i jest liczona: – w 100% – przy wysokości w świetle powyżej 2,2 m, – w 50% – przy wysokości między 1,4 m a 2,2 m, – pomija się – przy wysokości poniżej 1,4 m. Do powierzchni użytkowej domu nie dolicza się powierzchni niektórych pomieszczeń, np. piwnicy, garażu, kotłowni, strychu.
111,4 m2
Powierzchnia zabudowy
Powierzchnia mierzona po obrysie zewnętrznych krawędzi wykończonego budynku z uwzględnieniem powierzchni nadwieszonych (np. wykusz). Nie dolicza się do niej elementów drugorzędnych (np. schodów zewnętrznych, daszków, ramp) oraz elementów niewystających ponad powierzchnię terenu
141,7 m2
Powierzchnia netto
Powierzchnia wszystkich pomieszczeń budynku mierzona na poziomie podłogi, po wewnętrznym obrysie ścian w stanie wykończonym. Na jej wartość nie wpływa wysokość pomieszczeń.
220,2 m2
Powierzchnia całkowita
Suma powierzchni całkowitych wszystkich kondygnacji (w tym znajdujących się całkowicie lub częściowo poniżej poziomu terenu) mierzona po zewnętrznym obrysie ścian (wraz z ociepleniem) oraz wszystkich elementów wykraczających poza kubaturę, np. tarasy, schody zewnętrzne, balkony, podcienie, zjazdy do garaży, itp.
229,8 m2
Powierzchnia dodatkowa
Dodatkowe powierzchnie niewliczane do powierzchni użytkowej: piwnica + garaż + kotłownia + strych + poddasze do adaptacji.
73,9 m2
Powierzchnia garażu
37,4 m2
Kąt nachylenia dachu
40°
Kubatura
Objętość budynku liczona wraz z przegrodami zewnętrznymi i wewnętrznymi (ścianami, stropem, dachem i podmurówką)
481 m3
Wysokość budynku
Wysokość mierzona od poziomu terenu przy wejściu do budynku do najwyższego punktu dachu – kalenicy
8,6 m
Wysokość ścianki kolankowej
Ścianka kolankowa to zewnętrzna ściana nośna poddasza, wznoszona powyżej najwyższego stropu budynku, na której jest oparta więźba dachowa. Od wysokości ścianki kolankowej zależy funkcjonalność poddasza, wielkość jego powierzchni użytkowej oraz wygląd bryły budynku.
0,92 m
Wymiary budynku
16 x 9,4 m
Wymiary działki
Wymiary działki (szerokość x głębokość), na której możliwe jest wybudowanie domu. Wynikają one z wymiarów budynku powiększonych o wymagane przepisami odległości poszczególnych elementów budynku od granic działki. Rzeczywistą odległość od drogi należy sprawdzić i dostosować do wymogów zawartych w MPZA lub WZ
24 x 17,4 m
Pokoje (z salonem)
Liczba wszystkich pokoi
5
Łazienki i wc
Suma łazienek i wc
2
Miejsca postojowe
Suma miejsc postojowych (garaż + wiata garażowa)
2
Sezonowość
Całoroczny
REKLAMA

Opis projektu

Dom Dla Ciebie 5 z garażem dwustanowiskowym, wariant A3 bez wykuszu, to mniejsza wersja popularnego projektu Dom Dla Ciebie 1. Dom Dla Ciebie 5 to projekt domu o popularnej powierzchni użytkowej około 110 m2. To projekt z użytkowym poddaszem, o tradycyjnej więźbie drewnianej ze ścianką kolankową o wysokości około 1m. Przeznaczony jest dla 4ro osobowej rodziny i tak jak pozostałe projekty z tej serii zaprojektowany został z zachowaniem podziału na dwie strefy: ogólnie dostępną i prywatną. Strefa ogólnie dostępna przewidziana jest na parterze. Mamy tu zaprojektowany wiatrołap z wnękowymi szafami, hol, kuchnię ze spiżarnią, salon z jadalnią i kominkiem oraz dodatkowy pokój od frontu, który może służyć np. jako gabinet. Ponadto jest tu nieduża łazienka z prysznicem oraz przechodnia pralnia z której dostaniemy się do garażu. Za garażem, od strony ogrodu zaprojektowana jest kotłownia, która dodatkowo może spełnić funkcję pomieszczenia gospodarczego. Do części prywatnej, na poddasze prowadzą jednobiegowe schody, którymi ostaniemy się do przedpokoju prowadzącego do 3 wygodnych i dobrze oświetlonych pokoi z balkonami. Bezpośrednio ze schodów możemy się dostać do nieużytkowego strychu nad garażem, który z łatwością możemy zaadaptować na cele mieszkaniowe. Na poddaszu jest też przewidziana ogólnie dostępną łazienka z narożną wanną i prysznicem. Projekt domu Dom Dla Ciebie 5, to propozycja dla szukających projektu domu tradycyjnego o stylowej architekturze, funkcjonalnym wnętrzu i o energooszczędnych parametrach.

Koszty

Orientacyjne koszty budowy netto - wycena wskaźnikowa Ceny aktualne na: IV kwartał 2025
Jak dokonujemy wyliczeń? icon arrow
Razem (etapy 1-3): 475 200 zł
1. Stan zero
Koszt etapu 84 600 zł
Zakres prac

wytyczenie budynku i roboty ziemne; ławy i stopy fundamentowe; ściany podziemne z izolacjami cieplnymi i przeciwwilgociowymi

2. Stan surowy otwarty
Koszt etapu + 307 100 zł
Zakres prac

ściany murowane zewnętrzne i wewnętrzne; stropy i schody wewnętrzne; konstrukcja dachu z pokryciem, obróbkami, rynnami i rurami spustowymi; podłoża pod posadzki ( np. chudy beton)

3. Stan surowy zamknięty
Koszt etapu + 83 600 zł
Zakres prac

Stan zero (wytyczenie budynku i roboty ziemne; ławy i stopy fundamentowe; ściany podziemne z izolacjami cieplnymi i przeciwwilgociowymi) oraz stan surowy (ściany murowane z zewnętrzne i wewnętrzne; stropy i schody wewnętrzne, konstrukcja dachu z pokryciem, obróbkami, rynnami i rurami spustowymi; podłoża pod posadzki (np. chudy beton), okna i drzwi zewnętrzne; bramy garażowe; warstwy wyrównawcze pod posadzki na gruncie i na stropie z izolacjami cieplnymi i przeciwwilgociowymi).

Razem (etapy 1-3): 475 200 zł
4. Instalacje elektryczne
Koszt etapu od 62,40 do 219,70 zł/m2

*

Zakres prac

wewnętrzna instalacja oświetleniowa; instalacja gniazd wtykowych; instalacja siły oraz instalacja odgromowa i inne wewnętrzne instalacje teletechniczne

5. Instalacje sanitarne
Koszt etapu od 232,70 do 910 zł/m2

**

Zakres prac

wewnętrzna instalacja wod. - kan. z przyborami sanitarnymi i bateriami; instalacja c.o. z kotłem i grzejnikami, bez kominka; instalacja gazowa bez osprzętu kuchennego; wentylacja mechaniczna ( jeśli występuje)

6. Wykończenie zewnętrzne
Koszt etapu od 126,10 do 638,30 zł/m2

***

Zakres prac

system dociepleń i tynki zewnętrzne z malowaniem; okładziny elewacyjne; balustrady, parapety zewnętrzne i inne roboty zewnętrzne np. taras, opaski wokół domu, schody zewnętrzne

7. Wykończenie wewnętrzne
Koszt etapu od 429 do 878,80 zł/m2

***

Zakres prac

tynki wewnętrzne, drzwi i okna wewnętrzne, lekkie ścianki działowe, roboty malarskie, posadzki i inne prace wykończeniowe

* w zależności od ilości punktów elektrycznych na 1m2

** w zależności od ilości punktów sanitarnych na 1m2 oraz ilości (odległości) instalacji rurowej

*** w zależności od rodzaju użytych meteriałów i specyfikacji wykończenia

Zmiany w projekcie

Zobacz zakres zmian, które możesz wprowadzić, w tym projekcie bez zgody autora.
Lista możliwych zmian

Jeśli zmiany, które chcesz wprowadzić nie są ujęte w powyższym zestawieniu, skontaktuj się z nami. Nasz architekt przeanalizuje i doradzi, które z Twoich propozycji warto wdrożyć. O zgodę na zmiany możesz wystąpić nie tylko w momencie zakupu projektu, ale także później i otrzymasz ją bezpłatnie w ciągu kilku dni.

Dokumentacja (zawartość pakietu projektowego)

Dodatki

Pakiet dodatków, który otrzymasz razem z projektem

addon
Teczka inwestora
Do przechowywania niezbędnej dokumentacji
addon
Kupony rabatowe na zakupy
Dzięki którym zaoszczędzisz nawet kilkanaście tysięcy złotych.
addon
Projekty małej architektury
Wybudujesz samodzielnie m.in. domek dla dzieci czy altanę z grillem.
Pamiętaj
dostawa
Wysyłkę projektu ze wszystkimi dodatkami na terenie Polski bierzemy na siebie. Ty wybierasz, gdzie odbierzesz swój projekt. Masz do wyboru kuriera DPD lub punkty Paczkomat InPost 24/7.
zwroty

Masz 30 dni na zwrot i 365 dni na wymianę projektu